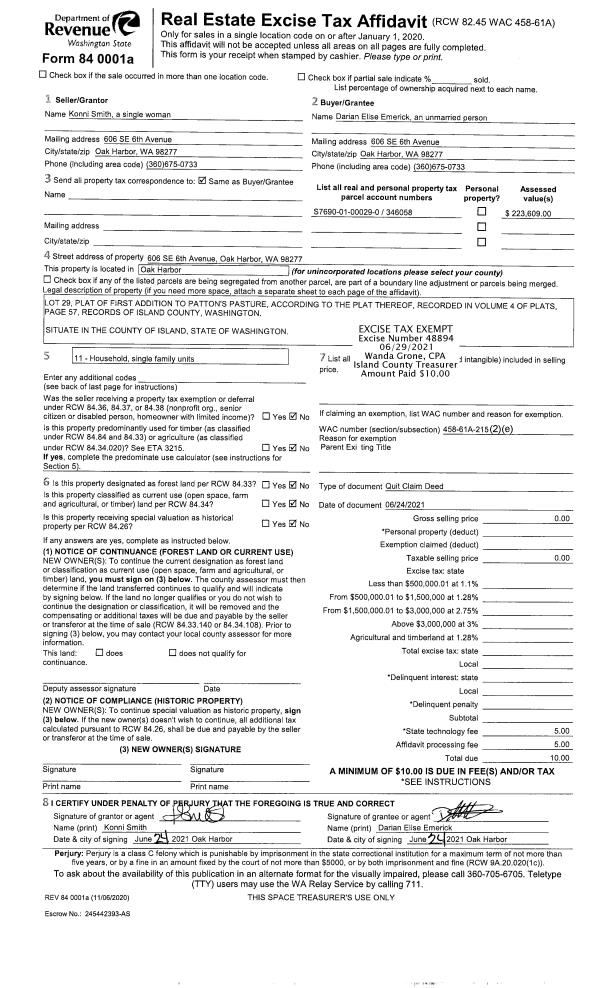
Property
Account |
| Property ID: | 129088 | Abbreviated Legal Description: | 19 - IN GL1: BG NWCR GL1 N88*E375' S1*E115' TPB S1*E 45' N88*E298' TO BLKHD N88*E FR TPB S88*W301' M/L TPB |
| Geographic ID: | R32912-528-0560 | Agent Code: | |
| Type: | Real | | |
| Tax Area: | 710 - APPRAISER-S Whid Schl Dist, outside Langley, improved & 1 acre or less | Land Use Code | 11 |
| Open Space: | N | DFL | N |
| Historic Property: | N | Remodel Property: | N |
| Multi-Family Redevelopment: | N | | |
| Township: | 29 | Section: | 12 |
| Range: | R3 |
Location |
| Address: | 5183 WITTER BEACH PLACE LANGLEY, WA 98260 | Mapsco: | |
| Neighborhood: | Cycle 4 | Map ID: | 763 |
| Neighborhood CD: | 4 |
Owner |
| Name: | WIKLOF, CHRISTOPHER A / JULIA | Owner ID: | 92938 |
| Mailing Address: | 9131 36TH AVE SE EVERETT, WA 98208 | % Ownership: | 100.0000000000% |
| | | Exemptions: | |
Taxes and Assessment Details
Values
| (+) Improvement Homesite Value: | + | $0 | |
| (+) Improvement Non-Homesite Value: | + | $321,933 | |
| (+) Land Homesite Value: | + | $0 | |
| (+) Land Non-Homesite Value: | + | $750,000 | |
| (+) Curr Use (HS): | + | $0 | $0 |
| (+) Curr Use (NHS): | + | $0 | $0 |
| | | -------------------------- | |
| (=) Market Value: | = | $1,071,933 | |
| (–) Productivity Loss: | – | $0 | |
| | | -------------------------- | |
| (=) Subtotal: | = | $1,071,933 | |
| (+) Senior Appraised Value: | + | $0 | |
| (+) Non-Senior Appraised Value: | + | $1,071,933 | |
| | | -------------------------- | |
| (=) Total Appraised Value: | = | $1,071,933 | |
| (–) Senior Exemption Loss: | – | $0 | |
| (–) Exemption Loss: | – | $0 | |
| | | -------------------------- | |
| (=) Taxable Value: | = | $1,071,933 | |
Taxing Jurisdiction
| Owner: | WIKLOF, CHRISTOPHER A / JULIA | | |
| % Ownership: | 100.0000000000% | | |
| Total Value: | $1,071,933 | | |
| Tax Area: | 710 - APPRAISER-S Whid Schl Dist, outside Langley, improved & 1 acre or less |
| CF | Conservation Futures | 0.0316035091 | $1,071,933 | $1,071,933 | $33.88 | | |
| FIRE3 | Fire & Rescue Dist #3 S Whidbey GEN | 1.2004855531 | $1,071,933 | $1,071,933 | $1,286.84 | | |
| HOBOND | Hospital BOND | 0.1910887512 | $1,071,933 | $1,071,933 | $204.83 | | |
| HOGEN | Hospital GEN | 0.3902502903 | $1,071,933 | $1,071,933 | $418.32 | | |
| CE | County Current Expense | 0.3708482477 | $1,071,933 | $1,071,933 | $397.52 | | |
| CR | County Roads | 0.4584763726 | $1,071,933 | $1,071,933 | $491.46 | | |
| ISLANDEMS | Hospital GEN (EMS) | 0.5000000000 | $1,071,933 | $1,071,933 | $535.97 | | |
| LIB | Library Sno-Isle GEN | 0.3153421757 | $1,071,933 | $1,071,933 | $338.03 | | |
| PORTWHID | Port of S Whidbey GEN | 0.1094540357 | $1,071,933 | $1,071,933 | $117.33 | | |
| SCH206BOND | School 206 BOND | 0.3161759235 | $1,071,933 | $1,071,933 | $338.92 | | |
| SCH206MO | School 206 Enrichment | 0.4547169547 | $1,071,933 | $1,071,933 | $487.43 | | |
| ST | State School | 1.3035497053 | $1,071,933 | $1,071,933 | $1,397.32 | | |
| ST2 | State School Part 2 | 0.8169543533 | $1,071,933 | $1,071,933 | $875.72 | | |
| SWHIDPRBD | P & R S Whidbey BOND | 0.0152817568 | $1,071,933 | $1,071,933 | $16.38 | | |
| SWHIDPRBD2 | P & R S Whidbey BOND2 | 0.0138911264 | $1,071,933 | $1,071,933 | $14.89 | | |
| SWHIDPRMT | P & R S Whidbey GEN | 0.2053334452 | $1,071,933 | $1,071,933 | $220.10 | | |
| | Total Tax Rate: | 6.6934522006 | | | | | |
| | | | | Taxes w/Current Exemptions: | $7,174.94 | | |
| | | | | Taxes w/o Exemptions: | $7,174.94 | | |
Improvement / Building
| Improvement #1: | RESIDENTIAL | State Code: | Y | 1264.0 sqft | Value: | $321,933 |
| Bathrooms: | 1 | Bedrooms: | 2 | | Ceiling: | TONGUE & GROOVE | Exterior Wall/Cover: | WOOD SIDING | | Floor Covering: | HARDWOOD/CARP 60-40 | Floor Structure: | WOOD W/SUBFLOOR | | Foundation: | CONCRETE | Heating: | BASEBOARD ELECTRIC | | Interior Finish: | DRYWALL PAINT | Plumbing Fixture Cnt: | 8 | | Roof Slope: | 6" IN 12" | Roof Structure/Cover: | BEAM CLAY TILE |
|
| | Type | Description | Class CD | Sub Class CD | Year Built | Area |
| | BAS | BASE/MAIN FLOOR | 4 | 0 | 1968 | 672.0 |
| | UPS | UPPER STORY | 4 | 0 | 1968 | 592.0 |
| | BAW | BALCONY WOOD RAIL | 4 | 0 | 1968 | 28.0 |
| | OWC | OPEN WOOD PORCH W/STEPS/ROOF/C | 4 | 0 | 1968 | 32.0 |
| | OWP | OPEN WOOD PORCH W/STEPS | 4 | 0 | 1968 | 1063.0 |
Sketch
Property Image
Land
| 1 | LB | LOW BANK | 0.0000 | 0.00 | 45.00 | 0.00 | 1.00 | $750,000 | $0 |
Roll Value History
| 2026 | N/A | N/A | N/A | N/A | N/A |
| 2025 | $321,933 | $750,000 | $0 | $1,071,933 | $1,071,933 |
| 2024 | $331,510 | $750,000 | $0 | $1,081,510 | $1,081,510 |
| 2023 | $335,542 | $750,000 | $0 | $1,085,542 | $1,085,542 |
| 2022 | $307,492 | $700,000 | $0 | $1,007,492 | $1,007,492 |
| 2021 | $270,556 | $430,000 | $0 | $700,556 | $700,556 |
| 2020 | $257,438 | $430,000 | $0 | $687,438 | $687,438 |
| 2019 | $189,585 | $400,000 | $0 | $589,585 | $589,585 |
| 2018 | $190,141 | $300,000 | $0 | $490,141 | $490,141 |
| 2017 | $190,956 | $250,000 | $0 | $440,956 | $440,956 |
| 2016 | $193,178 | $250,000 | $0 | $443,178 | $443,178 |
| 2015 | $195,398 | $250,000 | $0 | $445,398 | $445,398 |
| 2014 | $83,197 | $250,000 | $0 | $333,197 | $333,197 |
| 2013 | $84,656 | $257,799 | $0 | $342,455 | $342,455 |
| 2012 | $86,116 | $257,799 | $0 | $343,915 | $343,915 |
| 2011 | $87,576 | $257,799 | $0 | $345,375 | $345,375 |
| 2010 | $97,644 | $257,799 | $0 | $355,443 | $355,443 |
| 2009 | $102,022 | $277,850 | $0 | $379,872 | $379,872 |
| 2008 | $103,739 | $277,850 | $0 | $381,589 | $381,589 |
| 2007 | $105,312 | $336,198 | $0 | $441,510 | $441,510 |
Deed and Sales History
| 1 | 10/01/1991 | WD | Warranty Deed | WIKLOF, ALLEN L | WIKLOF, CHRISTOPHER A | | | $182,855.00 | 13803 | 91016232 |
| 2 | 01/01/1900 | OTHER | Other - Misc. Documents | Unknown | WIKLOF, ALLEN L | | | $0.00 | 0 | 0 |
Payout Agreement
| No payout information available.. |