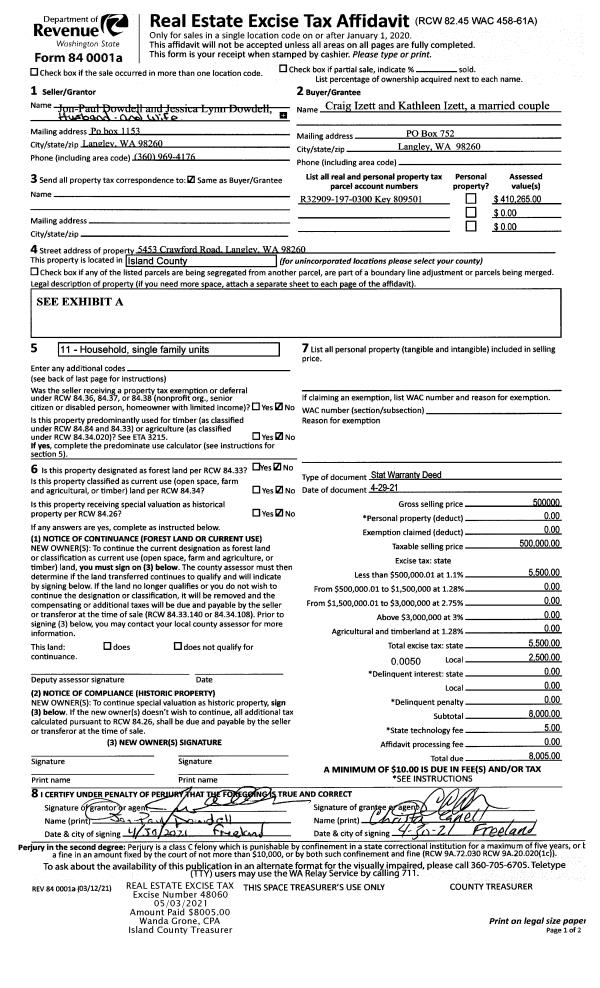
Property
Account |
| Property ID: | 129275 | Abbreviated Legal Description: | 28 - IN GL4 BG @ SW CR GL4 N668.52' E1123.93' TPB N32* W60' N57*E83.5' TO HI TIDE SELY ALG HI TIDE TP N57*E TPB S57*W64.75' TPB TGW TIDES |
| Geographic ID: | R32913-068-2450 | Agent Code: | |
| Type: | Real | | |
| Tax Area: | 720 - APPRAISER-S Whid Schl Dist, Special District, improved & less than 1 acre | Land Use Code | 11 |
| Open Space: | N | DFL | N |
| Historic Property: | N | Remodel Property: | N |
| Multi-Family Redevelopment: | N | | |
| Township: | 29 | Section: | 13 |
| Range: | R3 |
Location |
| Address: | 5951 NORTON BEACH LN LANGLEY, WA 98260 | Mapsco: | |
| Neighborhood: | Cycle 4 | Map ID: | 764 |
| Neighborhood CD: | 4 |
Owner |
| Name: | HISEY TRUSTEE OF THE BRUCE AND, SARAH JANE | Owner ID: | 17774 |
| Mailing Address: | SARAH JANE HISEY TRUST PO BOX 307 NORTH BEND, WA 98045 | % Ownership: | 100.0000000000% |
| | | Exemptions: | |
Taxes and Assessment Details
Values
| (+) Improvement Homesite Value: | + | $0 | |
| (+) Improvement Non-Homesite Value: | + | $122,128 | |
| (+) Land Homesite Value: | + | $0 | |
| (+) Land Non-Homesite Value: | + | $785,600 | |
| (+) Curr Use (HS): | + | $0 | $0 |
| (+) Curr Use (NHS): | + | $0 | $0 |
| | | -------------------------- | |
| (=) Market Value: | = | $907,728 | |
| (–) Productivity Loss: | – | $0 | |
| | | -------------------------- | |
| (=) Subtotal: | = | $907,728 | |
| (+) Senior Appraised Value: | + | $0 | |
| (+) Non-Senior Appraised Value: | + | $907,728 | |
| | | -------------------------- | |
| (=) Total Appraised Value: | = | $907,728 | |
| (–) Senior Exemption Loss: | – | $0 | |
| (–) Exemption Loss: | – | $0 | |
| | | -------------------------- | |
| (=) Taxable Value: | = | $907,728 | |
Taxing Jurisdiction
| Owner: | HISEY TRUSTEE OF THE BRUCE AND, SARAH JANE | | |
| % Ownership: | 100.0000000000% | | |
| Total Value: | $907,728 | | |
| Tax Area: | 720 - APPRAISER-S Whid Schl Dist, Special District, improved & less than 1 acre |
| CF | Conservation Futures | 0.0316035091 | $907,728 | $907,728 | $28.69 | | |
| FIRE3 | Fire & Rescue Dist #3 S Whidbey GEN | 1.2004855531 | $907,728 | $907,728 | $1,089.71 | | |
| HOBOND | Hospital BOND | 0.1910887512 | $907,728 | $907,728 | $173.46 | | |
| HOGEN | Hospital GEN | 0.3902502903 | $907,728 | $907,728 | $354.24 | | |
| CE | County Current Expense | 0.3708482477 | $907,728 | $907,728 | $336.63 | | |
| CR | County Roads | 0.4584763726 | $907,728 | $907,728 | $416.17 | | |
| ISLANDEMS | Hospital GEN (EMS) | 0.5000000000 | $907,728 | $907,728 | $453.86 | | |
| LIB | Library Sno-Isle GEN | 0.3153421757 | $907,728 | $907,728 | $286.24 | | |
| PORTWHID | Port of S Whidbey GEN | 0.1094540357 | $907,728 | $907,728 | $99.35 | | |
| SCH206BOND | School 206 BOND | 0.3161759235 | $907,728 | $907,728 | $287.00 | | |
| SCH206MO | School 206 Enrichment | 0.4547169547 | $907,728 | $907,728 | $412.76 | | |
| ST | State School | 1.3035497053 | $907,728 | $907,728 | $1,183.27 | | |
| ST2 | State School Part 2 | 0.8169543533 | $907,728 | $907,728 | $741.57 | | |
| SWHIDPRBD | P & R S Whidbey BOND | 0.0152817568 | $907,728 | $907,728 | $13.87 | | |
| SWHIDPRBD2 | P & R S Whidbey BOND2 | 0.0138911264 | $907,728 | $907,728 | $12.61 | | |
| SWHIDPRMT | P & R S Whidbey GEN | 0.2053334452 | $907,728 | $907,728 | $186.39 | | |
| | Total Tax Rate: | 6.6934522006 | | | | | |
| | | | | Taxes w/Current Exemptions: | $6,075.82 | | |
| | | | | Taxes w/o Exemptions: | $6,075.82 | | |
Improvement / Building
| Improvement #1: | RESIDENTIAL | State Code: | Y | 1102.0 sqft | Value: | $122,128 |
| Bathrooms: | 1 | Bedrooms: | 2 | | Ceiling: | TONGUE & GROOVE | Exterior Wall/Cover: | WOOD SIDING | | Floor Covering: | CARPET/VINYL 80-20 | Floor Structure: | WOOD W/SUBFLOOR | | Foundation: | CONCRETE | Heating: | BASEBOARD ELECTRIC | | Interior Finish: | DRYWALL PAINT | Plumbing Fixture Cnt: | 6 | | Roof Slope: | 3" IN 12" | Roof Structure/Cover: | BEAM ROLL COMPOSITION |
|
| | Type | Description | Class CD | Sub Class CD | Year Built | Area |
| | BAS | BASE/MAIN FLOOR | 3 | 0 | 1967 | 1102.0 |
| | UTY | STORAGE/UTILITY | 3 | 0 | 1967 | 165.0 |
Sketch
Property Image
Land
| 1 | LB | LOW BANK | 0.0000 | 0.00 | 60.00 | 0.00 | 1.00 | $785,000 | $0 |
| 2 | 55 | TIDES | 0.0000 | 0.00 | 60.00 | 0.00 | 1.00 | $600 | $0 |
Roll Value History
| 2026 | N/A | N/A | N/A | N/A | N/A |
| 2025 | $122,128 | $785,600 | $0 | $907,728 | $907,728 |
| 2024 | $127,006 | $750,600 | $0 | $877,606 | $877,606 |
| 2023 | $130,516 | $750,600 | $0 | $881,116 | $881,116 |
| 2022 | $120,051 | $700,600 | $0 | $820,651 | $820,651 |
| 2021 | $106,015 | $430,600 | $0 | $536,615 | $536,615 |
| 2020 | $102,074 | $430,600 | $0 | $532,674 | $532,674 |
| 2019 | $72,821 | $400,600 | $0 | $473,421 | $473,421 |
| 2018 | $73,095 | $300,600 | $0 | $373,695 | $373,695 |
| 2017 | $73,645 | $300,600 | $0 | $374,245 | $374,245 |
| 2016 | $74,745 | $300,600 | $0 | $375,345 | $375,345 |
| 2015 | $75,843 | $250,600 | $0 | $326,443 | $326,443 |
| 2014 | $66,217 | $250,600 | $0 | $316,817 | $316,817 |
| 2013 | $67,437 | $200,600 | $0 | $268,037 | $268,037 |
| 2012 | $68,655 | $228,642 | $0 | $297,297 | $297,297 |
| 2011 | $69,873 | $228,642 | $0 | $298,515 | $298,515 |
| 2010 | $78,166 | $228,642 | $0 | $306,808 | $306,808 |
| 2009 | $81,782 | $269,430 | $0 | $351,212 | $351,212 |
| 2008 | $83,079 | $269,430 | $0 | $352,509 | $352,509 |
| 2007 | $49,474 | $303,912 | $0 | $353,386 | $353,386 |
Deed and Sales History
| 1 | 12/17/2009 | QCD | Quit Claim Deed | HISEY, BRUCE E | HISEY TRUSTEE OF THE BRUCE AND | | | $0.00 | 33 | 4266598 |
| 2 | 02/01/1981 | EXECUTORD | Executor Deed | VAILLANT, BEN & | HISEY, BRUCE E | | | $115,000.00 | 10689 | 380285 |
| 3 | 01/01/1900 | OTHER | Other - Misc. Documents | Unknown | VAILLANT, BEN & | | | $0.00 | 0 | 0 |
Payout Agreement
| No payout information available.. |