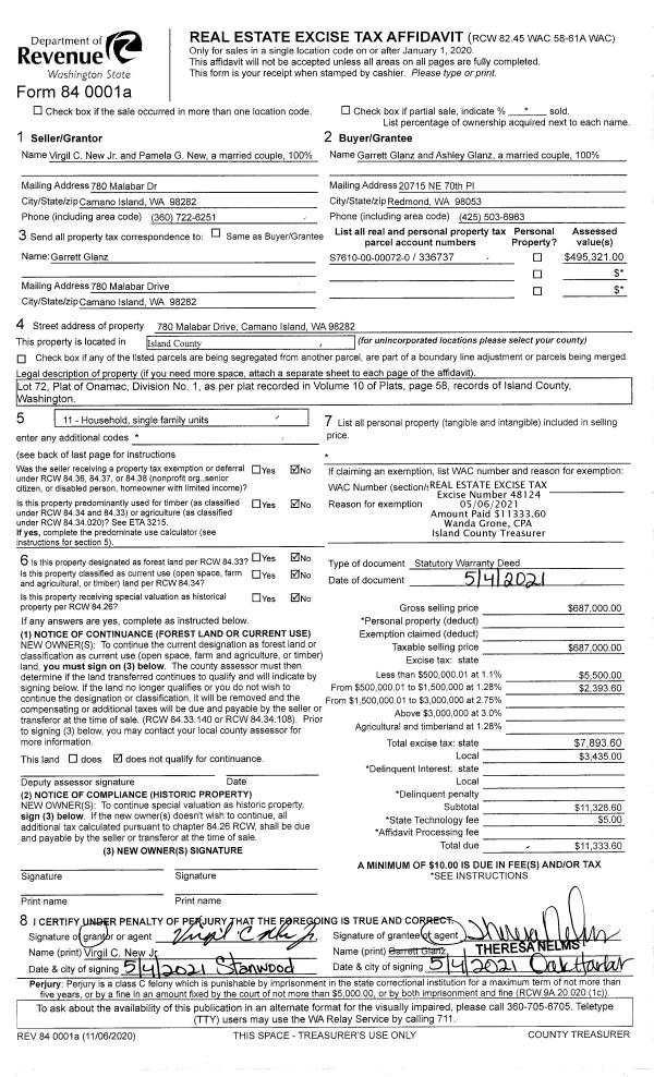
Property
Account |
| Property ID: | 129747 | Abbreviated Legal Description: | 48 -S208' OF W416' OF S/2 N/2 NW SW EX CO RD |
| Geographic ID: | R32914-230-0310 | Agent Code: | |
| Type: | Real | | |
| Tax Area: | 712 - APPRAISER-S Whid Schl Dist, outside Langley, improved, greater than 1 acre | Land Use Code | 11 |
| Open Space: | N | DFL | N |
| Historic Property: | N | Remodel Property: | N |
| Multi-Family Redevelopment: | N | | |
| Township: | 29 | Section: | 14 |
| Range: | R3 |
Location |
| Address: | 5841 LANGLEY RD LANGLEY, WA 98260 | Mapsco: | |
| Neighborhood: | Cycle 4 | Map ID: | 766 |
| Neighborhood CD: | 4 |
Owner |
| Name: | STRINGER, CHALLIS M | Owner ID: | 291769 |
| Mailing Address: | EDOUARD G STRINGER PO BOX 592 LANGLEY, WA 98260 | % Ownership: | 100.0000000000% |
| | | Exemptions: | |
Taxes and Assessment Details
Values
| (+) Improvement Homesite Value: | + | $0 | |
| (+) Improvement Non-Homesite Value: | + | $342,300 | |
| (+) Land Homesite Value: | + | $0 | |
| (+) Land Non-Homesite Value: | + | $290,000 | |
| (+) Curr Use (HS): | + | $0 | $0 |
| (+) Curr Use (NHS): | + | $0 | $0 |
| | | -------------------------- | |
| (=) Market Value: | = | $632,300 | |
| (–) Productivity Loss: | – | $0 | |
| | | -------------------------- | |
| (=) Subtotal: | = | $632,300 | |
| (+) Senior Appraised Value: | + | $0 | |
| (+) Non-Senior Appraised Value: | + | $632,300 | |
| | | -------------------------- | |
| (=) Total Appraised Value: | = | $632,300 | |
| (–) Senior Exemption Loss: | – | $0 | |
| (–) Exemption Loss: | – | $0 | |
| | | -------------------------- | |
| (=) Taxable Value: | = | $632,300 | |
Taxing Jurisdiction
| Owner: | STRINGER, CHALLIS M | | |
| % Ownership: | 100.0000000000% | | |
| Total Value: | $632,300 | | |
| Tax Area: | 712 - APPRAISER-S Whid Schl Dist, outside Langley, improved, greater than 1 acre |
| CF | Conservation Futures | 0.0316035091 | $632,300 | $632,300 | $19.98 | | |
| FIRE3 | Fire & Rescue Dist #3 S Whidbey GEN | 1.2004855531 | $632,300 | $632,300 | $759.07 | | |
| HOBOND | Hospital BOND | 0.1910887512 | $632,300 | $632,300 | $120.83 | | |
| HOGEN | Hospital GEN | 0.3902502903 | $632,300 | $632,300 | $246.76 | | |
| CE | County Current Expense | 0.3708482477 | $632,300 | $632,300 | $234.49 | | |
| CR | County Roads | 0.4584763726 | $632,300 | $632,300 | $289.89 | | |
| ISLANDEMS | Hospital GEN (EMS) | 0.5000000000 | $632,300 | $632,300 | $316.15 | | |
| LIB | Library Sno-Isle GEN | 0.3153421757 | $632,300 | $632,300 | $199.39 | | |
| PORTWHID | Port of S Whidbey GEN | 0.1094540357 | $632,300 | $632,300 | $69.21 | | |
| SCH206BOND | School 206 BOND | 0.3161759235 | $632,300 | $632,300 | $199.92 | | |
| SCH206MO | School 206 Enrichment | 0.4547169547 | $632,300 | $632,300 | $287.52 | | |
| ST | State School | 1.3035497053 | $632,300 | $632,300 | $824.23 | | |
| ST2 | State School Part 2 | 0.8169543533 | $632,300 | $632,300 | $516.56 | | |
| SWHIDPRBD | P & R S Whidbey BOND | 0.0152817568 | $632,300 | $632,300 | $9.66 | | |
| SWHIDPRBD2 | P & R S Whidbey BOND2 | 0.0138911264 | $632,300 | $632,300 | $8.78 | | |
| SWHIDPRMT | P & R S Whidbey GEN | 0.2053334452 | $632,300 | $632,300 | $129.83 | | |
| | Total Tax Rate: | 6.6934522006 | | | | | |
| | | | | Taxes w/Current Exemptions: | $4,232.27 | | |
| | | | | Taxes w/o Exemptions: | $4,232.27 | | |
Improvement / Building
| Improvement #1: | RESIDENTIAL | State Code: | Y | 2103.0 sqft | Value: | $342,300 |
| Bathrooms: | 2 | Bedrooms: | 2 | | Ceiling: | DRYWALL PAINTED | Exterior Wall/Cover: | SHINGLE | | Floor Covering: | CERAMIC TILE/CPT 40-60 | Floor Structure: | WOOD W/SUBFLOOR | | Foundation: | CONCRETE | Heating: | FHA GAS | | Interior Finish: | DRYWALL PAINT | Plumbing Fixture Cnt: | 9 | | Roof Slope: | 8" IN 12" | Roof Structure/Cover: | CJ ASPHALT |
|
| | Type | Description | Class CD | Sub Class CD | Year Built | Area |
| | BAS | BASE/MAIN FLOOR | 3 | 0 | 1958 | 2103.0 |
| | OP4 | OPEN PORCH W/CEILING-ROOF | 3 | 0 | 1958 | 64.0 |
| | OWR | OPEN WOOD PORCH W/STEPS/ROOF | 3 | 0 | 1958 | 24.0 |
| | DGR | DETACHED GARAGE | 3 | 0 | 1958 | 484.0 |
| | UTY | STORAGE/UTILITY | 3 | 0 | 1958 | 440.0 |
Sketch
Property Image
Land
| 1 | 17 | AC (01.01-02.00) | 0.0000 | 0.00 | 0.00 | 0.00 | 1.00 | $290,000 | $0 |
Roll Value History
| 2026 | N/A | N/A | N/A | N/A | N/A |
| 2025 | $342,300 | $290,000 | $0 | $632,300 | $632,300 |
| 2024 | $346,973 | $280,000 | $0 | $626,973 | $626,973 |
| 2023 | $351,646 | $260,000 | $0 | $611,646 | $611,646 |
| 2022 | $322,641 | $250,000 | $0 | $572,641 | $572,641 |
| 2021 | $284,248 | $175,000 | $0 | $459,248 | $459,248 |
| 2020 | $277,938 | $165,000 | $0 | $442,938 | $442,938 |
| 2019 | $179,371 | $200,000 | $0 | $379,371 | $379,371 |
| 2018 | $179,983 | $170,000 | $0 | $349,983 | $349,983 |
| 2017 | $181,207 | $150,000 | $0 | $331,207 | $331,207 |
| 2016 | $183,654 | $130,000 | $0 | $313,654 | $313,654 |
| 2015 | $186,101 | $100,000 | $0 | $286,101 | $286,101 |
| 2014 | $143,154 | $100,000 | $0 | $243,154 | $243,154 |
| 2013 | $147,840 | $85,000 | $0 | $232,840 | $232,840 |
| 2012 | $150,150 | $139,500 | $0 | $289,650 | $289,650 |
| 2011 | $152,459 | $155,000 | $0 | $307,459 | $307,459 |
| 2010 | $164,809 | $155,000 | $0 | $319,809 | $319,809 |
| 2009 | $172,059 | $155,000 | $0 | $327,059 | $327,059 |
| 2008 | $176,002 | $147,900 | $0 | $323,902 | $323,902 |
| 2007 | $179,154 | $147,900 | $0 | $327,054 | $327,054 |
Deed and Sales History
| 1 | 09/13/2019 | WD | Warranty Deed | HEGGENES, JASON | STRINGER, CHALLIS M | | | $520,000.00 | 40268 | 4471410 |
| 2 | 09/05/2001 | ESTSEPPROP | Establish Separate Property | HEGGENES, JASON | S & R MARKETING, LIMITED, | | | $0.00 | 13527 | 20042783 |
| 3 | 05/14/2000 | WD | Warranty Deed | MMILLAN, STEVE | HEGGENES, JASON | | | $130,000.00 | 2214 | 20010571 |
| 4 | 01/27/1999 | QCD | Quit Claim Deed | S, & R | MMILLAN, STEVE | | | $0.00 | 90349 | 99002308 |
| 5 | 05/01/1987 | WD | Warranty Deed | ELLWANGER, IVAN R | S, & R | | | $59,500.00 | 71433 | 87006898 |
| 6 | 01/01/1900 | OTHER | Other - Misc. Documents | Unknown | ELLWANGER, IVAN R | | | $0.00 | 0 | 0 |
Payout Agreement
| No payout information available.. |