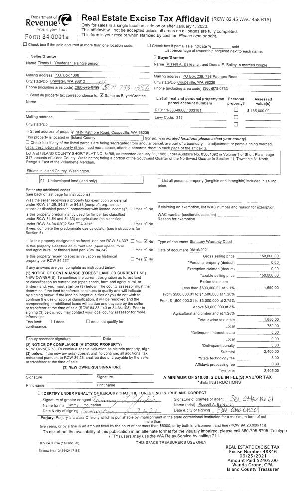
Property
Account |
| Property ID: | 130012 | Abbreviated Legal Description: | 52 - IN SESW:BG 15'N & 20'E OF SW CR SESW N PAR WLN 147 1/2' E PAR SLN 300' S PAR WLN 147 1/2' W PAR SLN 300' TPB TGW DRAINFIELD EZ |
| Geographic ID: | R32915-037-1630 | Agent Code: | |
| Type: | Real | | |
| Tax Area: | 710 - APPRAISER-S Whid Schl Dist, outside Langley, improved & 1 acre or less | Land Use Code | 11 |
| Open Space: | N | DFL | N |
| Historic Property: | N | Remodel Property: | N |
| Multi-Family Redevelopment: | N | | |
| Township: | 29 | Section: | 15 |
| Range: | R3 |
Location |
| Address: | 3707 MIDVALE RD CLINTON, WA 98236 | Mapsco: | |
| Neighborhood: | Cycle 4 | Map ID: | 770 |
| Neighborhood CD: | 4 |
Owner |
| Name: | HAGGLUND, ROY L | Owner ID: | 17871 |
| Mailing Address: | 3707 MIDVALE RD CLINTON, WA 98236-8609 | % Ownership: | 100.0000000000% |
| | | Exemptions: | |
Taxes and Assessment Details
Values
| (+) Improvement Homesite Value: | + | $0 | |
| (+) Improvement Non-Homesite Value: | + | $138,055 | |
| (+) Land Homesite Value: | + | $0 | |
| (+) Land Non-Homesite Value: | + | $260,000 | |
| (+) Curr Use (HS): | + | $0 | $0 |
| (+) Curr Use (NHS): | + | $0 | $0 |
| | | -------------------------- | |
| (=) Market Value: | = | $398,055 | |
| (–) Productivity Loss: | – | $0 | |
| | | -------------------------- | |
| (=) Subtotal: | = | $398,055 | |
| (+) Senior Appraised Value: | + | $0 | |
| (+) Non-Senior Appraised Value: | + | $398,055 | |
| | | -------------------------- | |
| (=) Total Appraised Value: | = | $398,055 | |
| (–) Senior Exemption Loss: | – | $0 | |
| (–) Exemption Loss: | – | $0 | |
| | | -------------------------- | |
| (=) Taxable Value: | = | $398,055 | |
Taxing Jurisdiction
| Owner: | HAGGLUND, ROY L | | |
| % Ownership: | 100.0000000000% | | |
| Total Value: | $398,055 | | |
| Tax Area: | 710 - APPRAISER-S Whid Schl Dist, outside Langley, improved & 1 acre or less |
| CF | Conservation Futures | 0.0316035091 | $398,055 | $398,055 | $12.58 | | |
| FIRE3 | Fire & Rescue Dist #3 S Whidbey GEN | 1.2004855531 | $398,055 | $398,055 | $477.86 | | |
| HOBOND | Hospital BOND | 0.1910887512 | $398,055 | $398,055 | $76.06 | | |
| HOGEN | Hospital GEN | 0.3902502903 | $398,055 | $398,055 | $155.34 | | |
| CE | County Current Expense | 0.3708482477 | $398,055 | $398,055 | $147.62 | | |
| CR | County Roads | 0.4584763726 | $398,055 | $398,055 | $182.50 | | |
| ISLANDEMS | Hospital GEN (EMS) | 0.5000000000 | $398,055 | $398,055 | $199.03 | | |
| LIB | Library Sno-Isle GEN | 0.3153421757 | $398,055 | $398,055 | $125.52 | | |
| PORTWHID | Port of S Whidbey GEN | 0.1094540357 | $398,055 | $398,055 | $43.57 | | |
| SCH206BOND | School 206 BOND | 0.3161759235 | $398,055 | $398,055 | $125.86 | | |
| SCH206MO | School 206 Enrichment | 0.4547169547 | $398,055 | $398,055 | $181.00 | | |
| ST | State School | 1.3035497053 | $398,055 | $398,055 | $518.88 | | |
| ST2 | State School Part 2 | 0.8169543533 | $398,055 | $398,055 | $325.19 | | |
| SWHIDPRBD | P & R S Whidbey BOND | 0.0152817568 | $398,055 | $398,055 | $6.08 | | |
| SWHIDPRBD2 | P & R S Whidbey BOND2 | 0.0138911264 | $398,055 | $398,055 | $5.53 | | |
| SWHIDPRMT | P & R S Whidbey GEN | 0.2053334452 | $398,055 | $398,055 | $81.73 | | |
| | Total Tax Rate: | 6.6934522006 | | | | | |
| | | | | Taxes w/Current Exemptions: | $2,664.35 | | |
| | | | | Taxes w/o Exemptions: | $2,664.35 | | |
Improvement / Building
| Improvement #1: | MANUFACTURED HOME | State Code: | Y | 1584.0 sqft | Value: | $138,055 |
| Bathrooms: | 1.75 | Bedrooms: | 3 | | Ceiling: | PLASTER PAINTED | Cooling: | EVAP NO DUCT | | Exterior Wall/Cover: | VINYL | Floor Covering: | CARPET 100% | | Floor Structure: | SLAB ON GRADE | Foundation: | SLAB | | Heating: | FHA ELECTRIC | Interior Finish: | PLASTER | | Plumbing Fixture Cnt: | 1 | Roof Slope: | FLAT | | Roof Structure/Cover: | CJ ALUMINIUM HEAVY |   |   |
|
| | Type | Description | Class CD | Sub Class CD | Year Built | Area |
| | BAS | BASE/MAIN FLOOR | 4 | 0 | 1980 | 1584.0 |
| | UB8 | BASEMENT UNFINISHED 8" | 4 | 0 | 1980 | 1200.0 |
| | BGR | BASEMENT GARAGE | 4 | 0 | 1980 | 384.0 |
| | OWP | OPEN WOOD PORCH W/STEPS | 4 | 0 | 1980 | 366.0 |
Sketch
Property Image
Land
| 1 | 16 | AC (00.51-01.00) | 0.0000 | 0.00 | 0.00 | 0.00 | 1.00 | $260,000 | $0 |
Roll Value History
| 2026 | N/A | N/A | N/A | N/A | N/A |
| 2025 | $138,055 | $260,000 | $0 | $398,055 | $398,055 |
| 2024 | $146,683 | $250,000 | $0 | $396,683 | $396,683 |
| 2023 | $132,553 | $240,000 | $0 | $372,553 | $372,553 |
| 2022 | $124,567 | $240,000 | $0 | $364,567 | $364,567 |
| 2021 | $112,253 | $160,000 | $0 | $272,253 | $272,253 |
| 2020 | $101,720 | $135,000 | $0 | $236,720 | $236,720 |
| 2019 | $88,122 | $180,000 | $0 | $268,122 | $268,122 |
| 2018 | $90,860 | $150,000 | $0 | $240,860 | $240,860 |
| 2017 | $93,598 | $140,000 | $0 | $233,598 | $233,598 |
| 2016 | $96,336 | $120,000 | $0 | $216,336 | $216,336 |
| 2015 | $100,443 | $114,750 | $0 | $215,193 | $215,193 |
| 2014 | $51,944 | $114,750 | $0 | $166,694 | $166,694 |
| 2013 | $53,626 | $114,750 | $0 | $168,376 | $168,376 |
| 2012 | $55,308 | $114,750 | $0 | $170,058 | $170,058 |
| 2011 | $56,990 | $135,000 | $0 | $191,990 | $191,990 |
| 2010 | $58,689 | $135,000 | $0 | $193,689 | $193,689 |
| 2009 | $61,989 | $145,000 | $0 | $206,989 | $206,989 |
| 2008 | $65,926 | $145,000 | $0 | $210,926 | $210,926 |
| 2007 | $67,162 | $145,000 | $0 | $212,162 | $212,162 |
Deed and Sales History
| 1 | 01/01/1988 | DECREE | Divorce Decree/Legal Separation | HAGGLUND, ROY L | HAGGLUND, ROY L | | | $0.00 | 80081 | 88000322 |
| 2 | 05/01/1987 | EZ | Easement | HAGGLUND, ROY L | HAGGLUND, ROY L | | | $0.00 | 62194 | 84005523 |
| 3 | 11/01/1984 | OTHER | Other - Misc. Documents | LONG, JOSEPH H | HAGGLUND, ROY L | | | $22,500.00 | 61608 | 0 |
| 4 | 02/01/1982 | OTHER | Other - Misc. Documents | HAGGLUND, ROY L | LONG, JOSEPH H | | | $1.00 | 20439 | 0 |
| 5 | 01/01/1900 | OTHER | Other - Misc. Documents | Unknown | HAGGLUND, ROY L | | | $0.00 | 0 | 0 |
Payout Agreement
| No payout information available.. |