Property
Account |
| Property ID: | 130138 | Abbreviated Legal Description: | 65 - IN SW SE: BG N1*W 632.30' FR S/4 CR SEC 15 N89*E614.38' S1*E317.97' S89*W612.25' N1*W316.15' TPB SUB EAS AF#421974 AF#90010999 TGW & SUB EZ AF#94009910 AF#94021757 |
| Geographic ID: | R32915-056-3320 | Agent Code: | |
| Type: | Real | | |
| Tax Area: | 712 - APPRAISER-S Whid Schl Dist, outside Langley, improved, greater than 1 acre | Land Use Code | 11 |
| Open Space: | N | DFL | N |
| Historic Property: | N | Remodel Property: | N |
| Multi-Family Redevelopment: | N | | |
| Township: | 29 | Section: | 15 |
| Range: | R3 |
Location |
| Address: | 5951 HAGGLUND LN CLINTON, WA 98236 | Mapsco: | |
| Neighborhood: | Cycle 4 | Map ID: | 771 |
| Neighborhood CD: | 4 |
Owner |
| Name: | BRADLEY JR, PAUL | Owner ID: | 295792 |
| Mailing Address: | BONNIE L BRADLEY PO BOX 354 CLINTON, WA 98236 | % Ownership: | 100.0000000000% |
| | | Exemptions: | |
Taxes and Assessment Details
Values
| (+) Improvement Homesite Value: | + | $0 | |
| (+) Improvement Non-Homesite Value: | + | $246,760 | |
| (+) Land Homesite Value: | + | $0 | |
| (+) Land Non-Homesite Value: | + | $370,000 | |
| (+) Curr Use (HS): | + | $0 | $0 |
| (+) Curr Use (NHS): | + | $0 | $0 |
| | | -------------------------- | |
| (=) Market Value: | = | $616,760 | |
| (–) Productivity Loss: | – | $0 | |
| | | -------------------------- | |
| (=) Subtotal: | = | $616,760 | |
| (+) Senior Appraised Value: | + | $0 | |
| (+) Non-Senior Appraised Value: | + | $616,760 | |
| | | -------------------------- | |
| (=) Total Appraised Value: | = | $616,760 | |
| (–) Senior Exemption Loss: | – | $0 | |
| (–) Exemption Loss: | – | $0 | |
| | | -------------------------- | |
| (=) Taxable Value: | = | $616,760 | |
Taxing Jurisdiction
| Owner: | BRADLEY JR, PAUL | | |
| % Ownership: | 100.0000000000% | | |
| Total Value: | $616,760 | | |
| Tax Area: | 712 - APPRAISER-S Whid Schl Dist, outside Langley, improved, greater than 1 acre |
| CF | Conservation Futures | 0.0316035091 | $616,760 | $616,760 | $19.49 | | |
| FIRE3 | Fire & Rescue Dist #3 S Whidbey GEN | 1.2004855531 | $616,760 | $616,760 | $740.41 | | |
| HOBOND | Hospital BOND | 0.1910887512 | $616,760 | $616,760 | $117.86 | | |
| HOGEN | Hospital GEN | 0.3902502903 | $616,760 | $616,760 | $240.69 | | |
| CE | County Current Expense | 0.3708482477 | $616,760 | $616,760 | $228.72 | | |
| CR | County Roads | 0.4584763726 | $616,760 | $616,760 | $282.77 | | |
| ISLANDEMS | Hospital GEN (EMS) | 0.5000000000 | $616,760 | $616,760 | $308.38 | | |
| LIB | Library Sno-Isle GEN | 0.3153421757 | $616,760 | $616,760 | $194.49 | | |
| PORTWHID | Port of S Whidbey GEN | 0.1094540357 | $616,760 | $616,760 | $67.51 | | |
| SCH206BOND | School 206 BOND | 0.3161759235 | $616,760 | $616,760 | $195.00 | | |
| SCH206MO | School 206 Enrichment | 0.4547169547 | $616,760 | $616,760 | $280.45 | | |
| ST | State School | 1.3035497053 | $616,760 | $616,760 | $803.98 | | |
| ST2 | State School Part 2 | 0.8169543533 | $616,760 | $616,760 | $503.86 | | |
| SWHIDPRBD | P & R S Whidbey BOND | 0.0152817568 | $616,760 | $616,760 | $9.43 | | |
| SWHIDPRBD2 | P & R S Whidbey BOND2 | 0.0138911264 | $616,760 | $616,760 | $8.57 | | |
| SWHIDPRMT | P & R S Whidbey GEN | 0.2053334452 | $616,760 | $616,760 | $126.64 | | |
| | Total Tax Rate: | 6.6934522006 | | | | | |
| | | | | Taxes w/Current Exemptions: | $4,128.25 | | |
| | | | | Taxes w/o Exemptions: | $4,128.25 | | |
Improvement / Building
| Improvement #1: | RESIDENTIAL | State Code: | Y | 1548.0 sqft | Value: | $246,760 |
| Bathrooms: | 1.75 | Bedrooms: | 2 | | Ceiling: | DRYWALL PAINTED | Exterior Wall/Cover: | WOOD SIDING | | Floor Covering: | CARPET/VINYL 80-20 | Floor Structure: | WOOD W/SUBFLOOR | | Foundation: | CONCRETE BLOCKS | Heating: | WALL HEAT ELECTRIC | | Interior Finish: | DRYWALL PAINT | Plumbing Fixture Cnt: | 9 | | Roof Slope: | 8" IN 12" | Roof Structure/Cover: | CJ ASPHALT |
|
| | Type | Description | Class CD | Sub Class CD | Year Built | Area |
| | BAS | BASE/MAIN FLOOR | 3 | 0 | 1974 | 1240.0 |
| | UPH | HALF STORY | 3 | 0 | 1974 | 308.0 |
| | OWP | OPEN WOOD PORCH W/STEPS | 3 | 0 | 1974 | 300.0 |
| | OWP | OPEN WOOD PORCH W/STEPS | 3 | 0 | 1974 | 220.0 |
| | oPOL | POLE BARN | 3 | 0 | 1974 | 1200.0 |
Sketch
Property Image
Land
| 1 | 32 | AC (03.01-09.99) | 4.0000 | 0.00 | 0.00 | 0.00 | 1.00 | $370,000 | $0 |
Roll Value History
| 2026 | N/A | N/A | N/A | N/A | N/A |
| 2025 | $246,760 | $370,000 | $0 | $616,760 | $616,760 |
| 2024 | $249,802 | $350,000 | $0 | $599,802 | $599,802 |
| 2023 | $252,844 | $330,000 | $0 | $582,844 | $582,844 |
| 2022 | $234,543 | $280,000 | $0 | $514,543 | $514,543 |
| 2021 | $210,253 | $230,000 | $0 | $440,253 | $440,253 |
| 2020 | $195,410 | $190,000 | $0 | $385,410 | $385,410 |
| 2019 | $150,510 | $250,000 | $0 | $400,510 | $400,510 |
| 2018 | $150,944 | $210,000 | $0 | $360,944 | $360,944 |
| 2017 | $151,813 | $190,000 | $0 | $341,813 | $341,813 |
| 2016 | $153,549 | $165,000 | $0 | $318,549 | $318,549 |
| 2015 | $155,287 | $135,000 | $0 | $290,287 | $290,287 |
| 2014 | $157,022 | $128,000 | $0 | $285,022 | $285,022 |
| 2013 | $158,759 | $128,000 | $0 | $286,759 | $286,759 |
| 2012 | $160,497 | $128,000 | $0 | $288,497 | $288,497 |
| 2011 | $162,233 | $128,000 | $0 | $290,233 | $290,233 |
| 2010 | $170,566 | $128,000 | $0 | $298,566 | $298,566 |
| 2009 | $177,448 | $176,000 | $0 | $353,448 | $353,448 |
| 2008 | $180,087 | $153,600 | $0 | $333,687 | $333,687 |
| 2007 | $182,683 | $153,600 | $0 | $336,283 | $336,283 |
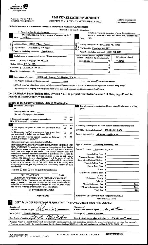
Deed and Sales History
| 1 | 08/13/2020 | QCD | Quit Claim Deed | BRADLEY JR, PAUL | BRADLEY JR, PAUL | | | $88,459.00 | 44415 | 4494764 |
| 2 | 12/27/2016 | ESTSEPPROP | Establish Separate Property | BRADLEY JR, PAUL | BRADLEY JR, PAUL | | | $0.00 | 27664 | 4414802 |
| 3 | 08/28/2014 | SPLTDWARDE | Special Limited Warranty Deed | FEDERAL NATIONAL MORTGAGE ASSOCIATION | BRADLEY JR, PAUL | | | $209,900.00 | 16611 | 4364754 |
| 4 | 09/06/2013 | DEEDINLIEU | Deed In Lieu Of Foreclosure | CONN, WILLIAM T | FEDERAL NATIONAL MORTGAGE ASSOCIATION | | | $0.00 | 14846 | 4357649 |
| 5 | 07/01/1987 | WD | Warranty Deed | HULLINGER, JOHN T | CONN, WILLIAM T | | | $72,000.00 | 72209 | 87010023 |
| 6 | 03/01/1984 | EZ | Easement | Unknown | HULLINGER, JOHN T | | | $0.00 | 60670 | 421974 |
Payout Agreement
| No payout information available.. |