Property
Account |
| Property ID: | 130218 | Abbreviated Legal Description: | 25 - IN SW SW-W/2 OF BG NLN RD & ELN SW SW TH W TO ELN RD N ALG RD TO NLN S/2 SW SW E TO NE CR S/2 S TPB EX S120' OF E120' |
| Geographic ID: | R32915-075-0810 | Agent Code: | |
| Type: | Real | | |
| Tax Area: | 712 - APPRAISER-S Whid Schl Dist, outside Langley, improved, greater than 1 acre | Land Use Code | 11 |
| Open Space: | N | DFL | N |
| Historic Property: | N | Remodel Property: | N |
| Multi-Family Redevelopment: | N | | |
| Township: | 29 | Section: | 15 |
| Range: | R3 |
Location |
| Address: | 3653 MIDVALE RD CLINTON, WA 98236 | Mapsco: | |
| Neighborhood: | Cycle 4 | Map ID: | 770 |
| Neighborhood CD: | 4 |
Owner |
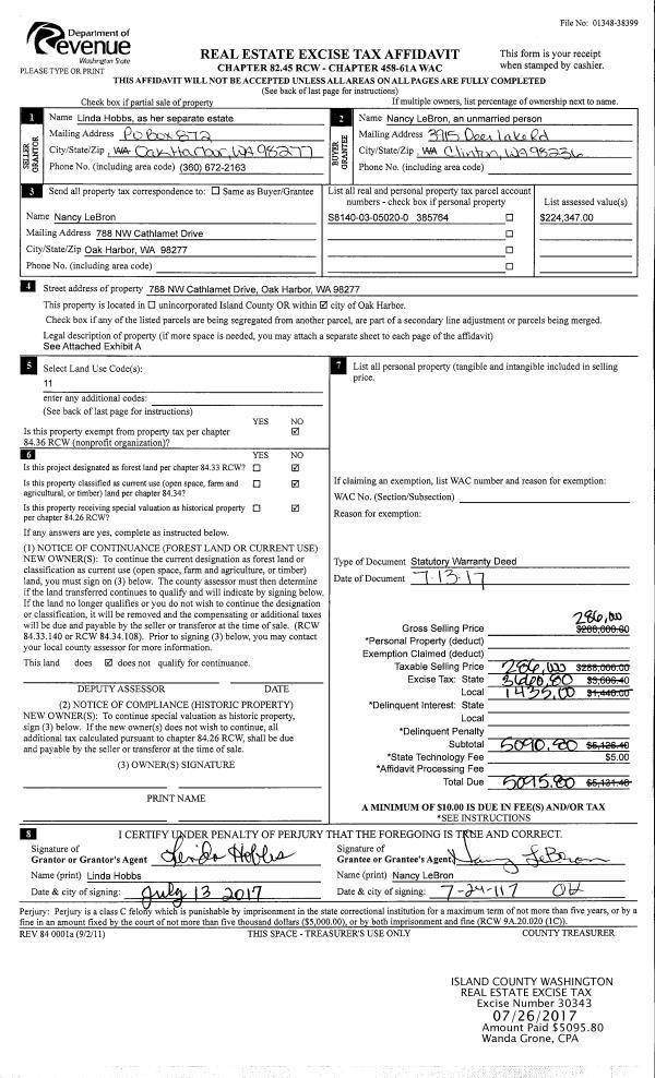
| Name: | CONAWAY, WENDY S | Owner ID: | 279786 |
| Mailing Address: | PATRICK J CONAWAY 3653 MIDVALE RD CLINTON, WA 98236 | % Ownership: | 100.0000000000% |
| | | Exemptions: | |
Taxes and Assessment Details
Values
| (+) Improvement Homesite Value: | + | $0 | |
| (+) Improvement Non-Homesite Value: | + | $206,309 | |
| (+) Land Homesite Value: | + | $0 | |
| (+) Land Non-Homesite Value: | + | $370,000 | |
| (+) Curr Use (HS): | + | $0 | $0 |
| (+) Curr Use (NHS): | + | $0 | $0 |
| | | -------------------------- | |
| (=) Market Value: | = | $576,309 | |
| (–) Productivity Loss: | – | $0 | |
| | | -------------------------- | |
| (=) Subtotal: | = | $576,309 | |
| (+) Senior Appraised Value: | + | $0 | |
| (+) Non-Senior Appraised Value: | + | $576,309 | |
| | | -------------------------- | |
| (=) Total Appraised Value: | = | $576,309 | |
| (–) Senior Exemption Loss: | – | $0 | |
| (–) Exemption Loss: | – | $0 | |
| | | -------------------------- | |
| (=) Taxable Value: | = | $576,309 | |
Taxing Jurisdiction
| Owner: | CONAWAY, WENDY S | | |
| % Ownership: | 100.0000000000% | | |
| Total Value: | $576,309 | | |
| Tax Area: | 712 - APPRAISER-S Whid Schl Dist, outside Langley, improved, greater than 1 acre |
| CF | Conservation Futures | 0.0316035091 | $576,309 | $576,309 | $18.21 | | |
| FIRE3 | Fire & Rescue Dist #3 S Whidbey GEN | 1.2004855531 | $576,309 | $576,309 | $691.85 | | |
| HOBOND | Hospital BOND | 0.1910887512 | $576,309 | $576,309 | $110.13 | | |
| HOGEN | Hospital GEN | 0.3902502903 | $576,309 | $576,309 | $224.90 | | |
| CE | County Current Expense | 0.3708482477 | $576,309 | $576,309 | $213.72 | | |
| CR | County Roads | 0.4584763726 | $576,309 | $576,309 | $264.22 | | |
| ISLANDEMS | Hospital GEN (EMS) | 0.5000000000 | $576,309 | $576,309 | $288.15 | | |
| LIB | Library Sno-Isle GEN | 0.3153421757 | $576,309 | $576,309 | $181.73 | | |
| PORTWHID | Port of S Whidbey GEN | 0.1094540357 | $576,309 | $576,309 | $63.08 | | |
| SCH206BOND | School 206 BOND | 0.3161759235 | $576,309 | $576,309 | $182.22 | | |
| SCH206MO | School 206 Enrichment | 0.4547169547 | $576,309 | $576,309 | $262.06 | | |
| ST | State School | 1.3035497053 | $576,309 | $576,309 | $751.25 | | |
| ST2 | State School Part 2 | 0.8169543533 | $576,309 | $576,309 | $470.82 | | |
| SWHIDPRBD | P & R S Whidbey BOND | 0.0152817568 | $576,309 | $576,309 | $8.81 | | |
| SWHIDPRBD2 | P & R S Whidbey BOND2 | 0.0138911264 | $576,309 | $576,309 | $8.01 | | |
| SWHIDPRMT | P & R S Whidbey GEN | 0.2053334452 | $576,309 | $576,309 | $118.34 | | |
| | Total Tax Rate: | 6.6934522006 | | | | | |
| | | | | Taxes w/Current Exemptions: | $3,857.50 | | |
| | | | | Taxes w/o Exemptions: | $3,857.50 | | |
Improvement / Building
| Improvement #1: | RESIDENTIAL | State Code: | Y | 5009.0 sqft | Value: | $206,309 |
| Bathrooms: | 1.5 | Bedrooms: | 2 | | Ceiling: | ACOUSTIC FURRED | Cooling: | HEAT PUMP/CONV/V | | Exterior Wall/Cover: | WD SIDING/WOOD FRAME | Floor Covering: | VINYL 100% | | Floor Structure: | WOOD ON WOOD JOIST | Foundation: | CONCRETE | | Interior Finish: | DRYWALL PAINT | Plumbing Fixture Cnt: | 8 | | Roof Structure/Cover: | CJ ALUMINIUM HEAVY |   |   |
|
| | Type | Description | Class CD | Sub Class CD | Year Built | Area |
| | BAS | BASE/MAIN FLOOR | 2 | 0 | 1922 | 4541.0 |
| | UTY | STORAGE/UTILITY | 2 | 0 | 1922 | 496.0 |
| | UPS | UPPER STORY | 2 | 0 | 1922 | 468.0 |
| | UTY | STORAGE/UTILITY | 2 | 0 | 1922 | 231.0 |
| | UTY | STORAGE/UTILITY | 2 | 0 | 1922 | 3162.0 |
Sketch
Property Image
Land
| 1 | 32 | AC (03.01-09.99) | 0.0000 | 0.00 | 0.00 | 0.00 | 1.00 | $370,000 | $0 |
Roll Value History
| 2026 | N/A | N/A | N/A | N/A | N/A |
| 2025 | $206,309 | $370,000 | $0 | $576,309 | $576,309 |
| 2024 | $210,042 | $350,000 | $0 | $560,042 | $560,042 |
| 2023 | $213,777 | $330,000 | $0 | $543,777 | $543,777 |
| 2022 | $196,949 | $280,000 | $0 | $476,949 | $476,949 |
| 2021 | $174,202 | $230,000 | $0 | $404,202 | $404,202 |
| 2020 | $157,261 | $190,000 | $0 | $347,261 | $347,261 |
| 2019 | $118,291 | $250,000 | $0 | $368,291 | $368,291 |
| 2018 | $118,817 | $210,000 | $0 | $328,817 | $328,817 |
| 2017 | $126,362 | $190,000 | $0 | $316,362 | $316,362 |
| 2016 | $130,573 | $147,600 | $0 | $278,173 | $278,173 |
| 2015 | $134,784 | $215,251 | $0 | $350,035 | $350,035 |
| 2014 | $125,519 | $207,914 | $0 | $333,433 | $333,433 |
| 2013 | $125,519 | $207,914 | $0 | $333,433 | $333,433 |
| 2012 | $125,519 | $207,914 | $0 | $333,433 | $333,433 |
| 2011 | $125,519 | $207,914 | $0 | $333,433 | $333,433 |
| 2010 | $108,200 | $207,914 | $0 | $316,114 | $316,114 |
| 2009 | $108,953 | $207,914 | $0 | $316,867 | $316,867 |
| 2008 | $110,036 | $207,914 | $0 | $317,950 | $317,950 |
| 2007 | $110,903 | $207,914 | $0 | $318,817 | $318,817 |
Deed and Sales History
| 1 | 05/08/2017 | WD | Warranty Deed | OGDEN, JAMES F | CONAWAY, WENDY S | | | $298,000.00 | 29191 | 4422079 |
| 2 | 06/30/2007 | TRUSTEED | Trustee's Deed | OGDEN, MELVIN R | OGDEN, JAMES F | | | $42,401.00 | 72338 | 4206854 |
| 3 | 12/01/1983 | QCD | Quit Claim Deed | OGDEN, MELVIN R | OGDEN, MELVIN R | | | $0.00 | 33652 | 0 |
| 4 | 09/01/1981 | EXECUTORD | Executor Deed | OGDEN, MELVIN R | OGDEN, MELVIN R | | | $21,500.00 | 13022 | 388413 |
| 5 | 01/01/1979 | OTHER | Other - Misc. Documents | Unknown | OGDEN, MELVIN R | | | $14,631.00 | 90354 | 346418 |
Payout Agreement
| No payout information available.. |