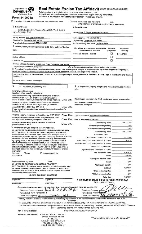
Property
Account |
| Property ID: | 130502 | Abbreviated Legal Description: | 33 - SE NW SE LY NWLY OF MIDVALE RD & LY NWLY & WLY OF ST HWY 525 |
| Geographic ID: | R32915-187-3840 | Agent Code: | |
| Type: | Real | | |
| Tax Area: | 712 - APPRAISER-S Whid Schl Dist, outside Langley, improved, greater than 1 acre | Land Use Code | 11 |
| Open Space: | N | DFL | N |
| Historic Property: | N | Remodel Property: | N |
| Multi-Family Redevelopment: | N | | |
| Township: | 29 | Section: | 15 |
| Range: | R3 |
Location |
| Address: | 3875 MIDVALE RD CLINTON, WA 98236 | Mapsco: | |
| Neighborhood: | Cycle 4 | Map ID: | 771 |
| Neighborhood CD: | 4 |
Owner |
| Name: | GORDON, S CURTIS | Owner ID: | 17925 |
| Mailing Address: | PO BOX 859 CLINTON, WA 98236 | % Ownership: | 100.0000000000% |
| | | Exemptions: | |
Taxes and Assessment Details
Values
| (+) Improvement Homesite Value: | + | $0 | |
| (+) Improvement Non-Homesite Value: | + | $74,243 | |
| (+) Land Homesite Value: | + | $0 | |
| (+) Land Non-Homesite Value: | + | $370,000 | |
| (+) Curr Use (HS): | + | $0 | $0 |
| (+) Curr Use (NHS): | + | $0 | $0 |
| | | -------------------------- | |
| (=) Market Value: | = | $444,243 | |
| (–) Productivity Loss: | – | $0 | |
| | | -------------------------- | |
| (=) Subtotal: | = | $444,243 | |
| (+) Senior Appraised Value: | + | $0 | |
| (+) Non-Senior Appraised Value: | + | $444,243 | |
| | | -------------------------- | |
| (=) Total Appraised Value: | = | $444,243 | |
| (–) Senior Exemption Loss: | – | $0 | |
| (–) Exemption Loss: | – | $0 | |
| | | -------------------------- | |
| (=) Taxable Value: | = | $444,243 | |
Taxing Jurisdiction
| Owner: | GORDON, S CURTIS | | |
| % Ownership: | 100.0000000000% | | |
| Total Value: | $444,243 | | |
| Tax Area: | 712 - APPRAISER-S Whid Schl Dist, outside Langley, improved, greater than 1 acre |
| CF | Conservation Futures | 0.0316035091 | $444,243 | $444,243 | $14.04 | | |
| FIRE3 | Fire & Rescue Dist #3 S Whidbey GEN | 1.2004855531 | $444,243 | $444,243 | $533.31 | | |
| HOBOND | Hospital BOND | 0.1910887512 | $444,243 | $444,243 | $84.89 | | |
| HOGEN | Hospital GEN | 0.3902502903 | $444,243 | $444,243 | $173.37 | | |
| CE | County Current Expense | 0.3708482477 | $444,243 | $444,243 | $164.75 | | |
| CR | County Roads | 0.4584763726 | $444,243 | $444,243 | $203.67 | | |
| ISLANDEMS | Hospital GEN (EMS) | 0.5000000000 | $444,243 | $444,243 | $222.12 | | |
| LIB | Library Sno-Isle GEN | 0.3153421757 | $444,243 | $444,243 | $140.09 | | |
| PORTWHID | Port of S Whidbey GEN | 0.1094540357 | $444,243 | $444,243 | $48.62 | | |
| SCH206BOND | School 206 BOND | 0.3161759235 | $444,243 | $444,243 | $140.46 | | |
| SCH206MO | School 206 Enrichment | 0.4547169547 | $444,243 | $444,243 | $202.00 | | |
| ST | State School | 1.3035497053 | $444,243 | $444,243 | $579.09 | | |
| ST2 | State School Part 2 | 0.8169543533 | $444,243 | $444,243 | $362.93 | | |
| SWHIDPRBD | P & R S Whidbey BOND | 0.0152817568 | $444,243 | $444,243 | $6.79 | | |
| SWHIDPRBD2 | P & R S Whidbey BOND2 | 0.0138911264 | $444,243 | $444,243 | $6.17 | | |
| SWHIDPRMT | P & R S Whidbey GEN | 0.2053334452 | $444,243 | $444,243 | $91.22 | | |
| | Total Tax Rate: | 6.6934522006 | | | | | |
| | | | | Taxes w/Current Exemptions: | $2,973.52 | | |
| | | | | Taxes w/o Exemptions: | $2,973.52 | | |
Improvement / Building
| Improvement #1: | MANUFACTURED HOME | State Code: | Y | 924.0 sqft | Value: | $29,023 |
| Bathrooms: | 2 | Bedrooms: | 2 | | Ceiling: | PLASTER PAINTED | Cooling: | EVAP NO DUCT | | Exterior Wall/Cover: | VINYL | Floor Covering: | CARPET 100% | | Floor Structure: | SLAB ON GRADE | Foundation: | SLAB | | Heating: | FHA ELECTRIC | Interior Finish: | PLASTER | | Plumbing Fixture Cnt: | 1 | Roof Slope: | FLAT | | Roof Structure/Cover: | CJ ALUMINIUM HEAVY |   |   |
|
| Improvement #2: | RESIDENTIAL | State Code: | Y | 0.0 sqft | Value: | $45,220 |
| | Type | Description | Class CD | Sub Class CD | Year Built | Area |
| | oEQU | EQUIP SHED | 1 | 0 | 1900 | 912.0 |
| | oPOL | POLE BARN | 1 | 0 | 1900 | 1444.0 |
Sketch
Property Image
Land
| 1 | 32 | AC (03.01-09.99) | 4.0000 | 0.00 | 0.00 | 0.00 | 1.00 | $370,000 | $0 |
Roll Value History
| 2026 | N/A | N/A | N/A | N/A | N/A |
| 2025 | $74,243 | $370,000 | $0 | $444,243 | $444,243 |
| 2024 | $75,017 | $350,000 | $0 | $425,017 | $425,017 |
| 2023 | $75,791 | $330,000 | $0 | $405,791 | $405,791 |
| 2022 | $73,608 | $280,000 | $0 | $353,608 | $353,608 |
| 2021 | $70,513 | $230,000 | $0 | $300,513 | $300,513 |
| 2020 | $62,686 | $190,000 | $0 | $252,686 | $252,686 |
| 2019 | $57,579 | $250,000 | $0 | $307,579 | $307,579 |
| 2018 | $57,812 | $210,000 | $0 | $267,812 | $267,812 |
| 2017 | $57,696 | $190,000 | $0 | $247,696 | $247,696 |
| 2016 | $57,922 | $165,000 | $0 | $222,922 | $222,922 |
| 2015 | $58,375 | $135,000 | $0 | $193,375 | $193,375 |
| 2014 | $64,451 | $128,000 | $0 | $192,451 | $192,451 |
| 2013 | $64,677 | $128,000 | $0 | $192,677 | $192,677 |
| 2012 | $65,130 | $128,000 | $0 | $193,130 | $193,130 |
| 2011 | $65,357 | $128,000 | $0 | $193,357 | $193,357 |
| 2010 | $67,139 | $128,000 | $0 | $195,139 | $195,139 |
| 2009 | $72,578 | $176,000 | $0 | $248,578 | $248,578 |
| 2008 | $75,175 | $153,600 | $0 | $228,775 | $228,775 |
| 2007 | $63,723 | $153,600 | $0 | $217,323 | $217,323 |
Deed and Sales History
| 1 | 12/01/1989 | WD | Warranty Deed | GORDON, CURTIS S | GORDON, S C | | | $38,200.00 | 95897 | 89018983 |
| 2 | 10/01/1989 | OTHER | Other - Misc. Documents | SHELTON, MIKE | GORDON, CURTIS S | | | $2,800.00 | 94780 | 0 |
| 3 | 03/01/1987 | REC | Real Estate Contract | ONEWAY, ASSOCIATES I | SHELTON, MIKE | | | $19,000.00 | 70831 | 87004394 |
| 4 | 04/01/1986 | QCD | Quit Claim Deed | HOUSE, OF P | ONEWAY, ASSOCIATES I | | | $0.00 | 61182 | 86005526 |
| 5 | 10/01/1981 | EXECUTORD | Executor Deed | ONE, WAY A | HOUSE, OF P | | | $24,000.00 | 13490 | 390009 |
| 6 | 01/01/1900 | OTHER | Other - Misc. Documents | Unknown | ONE, WAY A | | | $0.00 | 0 | 0 |
Payout Agreement
| No payout information available.. |