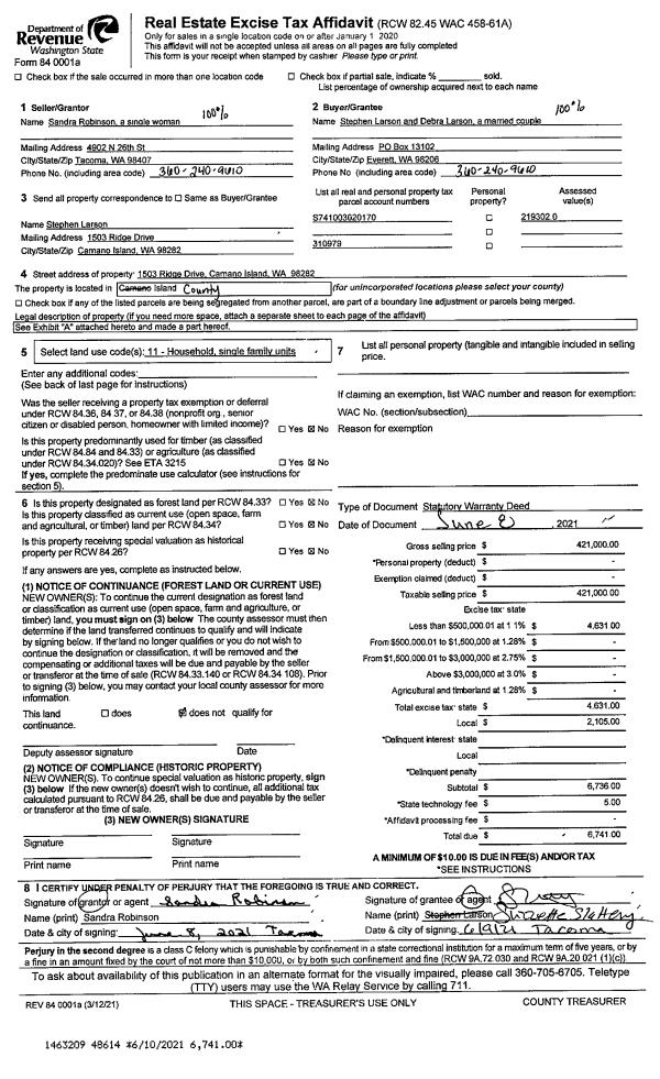
Property
Account |
| Property ID: | 130566 | Abbreviated Legal Description: | 43 - IN NE NE SE: BG SECR NE NE SE N85' TPB N200' W488.5' S200' E488.5' TPB EX E30' |
| Geographic ID: | R32915-212-5390 | Agent Code: | |
| Type: | Real | | |
| Tax Area: | 712 - APPRAISER-S Whid Schl Dist, outside Langley, improved, greater than 1 acre | Land Use Code | 11 |
| Open Space: | N | DFL | N |
| Historic Property: | N | Remodel Property: | N |
| Multi-Family Redevelopment: | N | | |
| Township: | 29 | Section: | 15 |
| Range: | R3 |
Location |
| Address: | 5840 LANGLEY RD LANGLEY, WA 98260 | Mapsco: | |
| Neighborhood: | Cycle 4 | Map ID: | 771 |
| Neighborhood CD: | 4 |
Owner |
| Name: | LEWIS, TAMERA S | Owner ID: | 194934 |
| Mailing Address: | DEXTER LEWIS PO BOX 1471 FREELAND, WA 98249-1471 | % Ownership: | 100.0000000000% |
| | | Exemptions: | |
Taxes and Assessment Details
Values
| (+) Improvement Homesite Value: | + | $0 | |
| (+) Improvement Non-Homesite Value: | + | $260,092 | |
| (+) Land Homesite Value: | + | $0 | |
| (+) Land Non-Homesite Value: | + | $310,000 | |
| (+) Curr Use (HS): | + | $0 | $0 |
| (+) Curr Use (NHS): | + | $0 | $0 |
| | | -------------------------- | |
| (=) Market Value: | = | $570,092 | |
| (–) Productivity Loss: | – | $0 | |
| | | -------------------------- | |
| (=) Subtotal: | = | $570,092 | |
| (+) Senior Appraised Value: | + | $0 | |
| (+) Non-Senior Appraised Value: | + | $570,092 | |
| | | -------------------------- | |
| (=) Total Appraised Value: | = | $570,092 | |
| (–) Senior Exemption Loss: | – | $0 | |
| (–) Exemption Loss: | – | $0 | |
| | | -------------------------- | |
| (=) Taxable Value: | = | $570,092 | |
Taxing Jurisdiction
| Owner: | LEWIS, TAMERA S | | |
| % Ownership: | 100.0000000000% | | |
| Total Value: | $570,092 | | |
| Tax Area: | 712 - APPRAISER-S Whid Schl Dist, outside Langley, improved, greater than 1 acre |
| CF | Conservation Futures | 0.0316035091 | $570,092 | $570,092 | $18.02 | | |
| FIRE3 | Fire & Rescue Dist #3 S Whidbey GEN | 1.2004855531 | $570,092 | $570,092 | $684.39 | | |
| HOBOND | Hospital BOND | 0.1910887512 | $570,092 | $570,092 | $108.94 | | |
| HOGEN | Hospital GEN | 0.3902502903 | $570,092 | $570,092 | $222.48 | | |
| CE | County Current Expense | 0.3708482477 | $570,092 | $570,092 | $211.42 | | |
| CR | County Roads | 0.4584763726 | $570,092 | $570,092 | $261.37 | | |
| ISLANDEMS | Hospital GEN (EMS) | 0.5000000000 | $570,092 | $570,092 | $285.05 | | |
| LIB | Library Sno-Isle GEN | 0.3153421757 | $570,092 | $570,092 | $179.77 | | |
| PORTWHID | Port of S Whidbey GEN | 0.1094540357 | $570,092 | $570,092 | $62.40 | | |
| SCH206BOND | School 206 BOND | 0.3161759235 | $570,092 | $570,092 | $180.25 | | |
| SCH206MO | School 206 Enrichment | 0.4547169547 | $570,092 | $570,092 | $259.23 | | |
| ST | State School | 1.3035497053 | $570,092 | $570,092 | $743.14 | | |
| ST2 | State School Part 2 | 0.8169543533 | $570,092 | $570,092 | $465.74 | | |
| SWHIDPRBD | P & R S Whidbey BOND | 0.0152817568 | $570,092 | $570,092 | $8.71 | | |
| SWHIDPRBD2 | P & R S Whidbey BOND2 | 0.0138911264 | $570,092 | $570,092 | $7.92 | | |
| SWHIDPRMT | P & R S Whidbey GEN | 0.2053334452 | $570,092 | $570,092 | $117.06 | | |
| | Total Tax Rate: | 6.6934522006 | | | | | |
| | | | | Taxes w/Current Exemptions: | $3,815.89 | | |
| | | | | Taxes w/o Exemptions: | $3,815.89 | | |
Improvement / Building
| Improvement #1: | RESIDENTIAL | State Code: | Y | 2560.0 sqft | Value: | $260,092 |
| Bathrooms: | 2 | Bedrooms: | 3 | | Ceiling: | DRYWALL PAINTED | Cooling: | HEAT PUMP/CONV/V | | Exterior Wall/Cover: | WOOD SIDING | Floor Covering: | CARPET/VINYL 60-40 | | Floor Structure: | WOOD W/SUBFLOOR | Foundation: | CONCRETE BLOCKS | | Interior Finish: | DRYWALL PAINT | Plumbing Fixture Cnt: | 9 | | Roof Slope: | 4" IN 12" | Roof Structure/Cover: | CJ ALUMINIUM HEAVY |
|
| | Type | Description | Class CD | Sub Class CD | Year Built | Area |
| | BAS | BASE/MAIN FLOOR | 3 | 0 | 1951 | 1280.0 |
| | OWR | OPEN WOOD PORCH W/STEPS/ROOF | 3 | 0 | 1951 | 15.0 |
| | DWN | DOWNSTAIRS LIVING AREA | 3 | 0 | 1951 | 1280.0 |
| | DGR | DETACHED GARAGE | 3 | 0 | 1951 | 696.0 |
| | OP3 | OPEN PORCH W/ROOF | 3 | 0 | 1951 | 504.0 |
Sketch
Property Image
Land
| 1 | 18 | AC (02.01-03.00) | 0.0000 | 0.00 | 0.00 | 0.00 | 1.00 | $310,000 | $0 |
Roll Value History
| 2026 | N/A | N/A | N/A | N/A | N/A |
| 2025 | $260,092 | $310,000 | $0 | $570,092 | $570,092 |
| 2024 | $264,203 | $300,000 | $0 | $564,203 | $564,203 |
| 2023 | $268,315 | $290,000 | $0 | $558,315 | $558,315 |
| 2022 | $246,682 | $270,000 | $0 | $516,682 | $516,682 |
| 2021 | $217,754 | $175,000 | $0 | $392,754 | $392,754 |
| 2020 | $195,341 | $165,000 | $0 | $360,341 | $360,341 |
| 2019 | $152,591 | $200,000 | $0 | $352,591 | $352,591 |
| 2018 | $153,167 | $170,000 | $0 | $323,167 | $323,167 |
| 2017 | $154,318 | $150,000 | $0 | $304,318 | $304,318 |
| 2016 | $147,942 | $150,000 | $0 | $297,942 | $297,942 |
| 2015 | $150,118 | $95,000 | $0 | $245,118 | $245,118 |
| 2014 | $94,031 | $100,000 | $0 | $194,031 | $194,031 |
| 2013 | $95,668 | $114,750 | $0 | $210,418 | $210,418 |
| 2012 | $97,302 | $114,750 | $0 | $212,052 | $212,052 |
| 2011 | $98,939 | $135,000 | $0 | $233,939 | $233,939 |
| 2010 | $80,395 | $135,000 | $0 | $215,395 | $215,395 |
| 2009 | $83,783 | $155,000 | $0 | $238,783 | $238,783 |
| 2008 | $90,677 | $147,900 | $0 | $238,577 | $238,577 |
| 2007 | $92,773 | $147,900 | $0 | $240,673 | $240,673 |
Deed and Sales History
| 1 | 05/24/2005 | WD | Warranty Deed | STEINER, SUSAN K | LEWIS, TAMERA S | | | $183,000.00 | 52533 | 4136169 |
| 2 | 09/07/2000 | DECREE | Divorce Decree/Legal Separation | FEDERLINE, SUSAN K | STEINER, SUSAN K | | | $0.00 | 3520 | 20016200 |
| 3 | 11/01/1996 | QCD | Quit Claim Deed | FEDERLINE, PAUL A | FEDERLINE, SUSAN K | | | $10,500.00 | 64257 | 96020785 |
| 4 | 12/01/1989 | WD | Warranty Deed | CUSICK, WM D | FEDERLINE, PAUL A | | | $85,000.00 | 95762 | 89018482 |
| 5 | 06/01/1978 | OTHER | Other - Misc. Documents | Unknown | CUSICK, WM D | | | $42,500.00 | 82722 | 334408 |
Payout Agreement
| No payout information available.. |