Property
Account |
| Property ID: | 130575 | Abbreviated Legal Description: | 1.3200 Acres ins Section 15s Township 29s Range R3s LOT C BLA 388-17 AF# 4435449 TL 55 - IN NE NE SE;s |
| Geographic ID: | R32915-225-5080 | Agent Code: | |
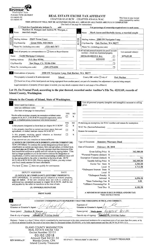
| Type: | Real | | |
| Tax Area: | 712 - APPRAISER-S Whid Schl Dist, outside Langley, improved, greater than 1 acre | Land Use Code | 11 |
| Open Space: | N | DFL | N |
| Historic Property: | N | Remodel Property: | N |
| Multi-Family Redevelopment: | N | | |
| Township: | 29 | Section: | 15 |
| Range: | R3 |
Location |
| Address: | 5864 LANGLEY RD LANGLEY, WA 98260 | Mapsco: | |
| Neighborhood: | Cycle 4 | Map ID: | 771 |
| Neighborhood CD: | 4 |
Owner |
| Name: | KELLEY, BRANDON M | Owner ID: | 289970 |
| Mailing Address: | KELLY N KELLEY JTWRS 5864 LANGLEY RD LANGLEY, WA 98260 | % Ownership: | 100.0000000000% |
| | | Exemptions: | |
Taxes and Assessment Details
Values
| (+) Improvement Homesite Value: | + | $0 | |
| (+) Improvement Non-Homesite Value: | + | $288,331 | |
| (+) Land Homesite Value: | + | $0 | |
| (+) Land Non-Homesite Value: | + | $290,000 | |
| (+) Curr Use (HS): | + | $0 | $0 |
| (+) Curr Use (NHS): | + | $0 | $0 |
| | | -------------------------- | |
| (=) Market Value: | = | $578,331 | |
| (–) Productivity Loss: | – | $0 | |
| | | -------------------------- | |
| (=) Subtotal: | = | $578,331 | |
| (+) Senior Appraised Value: | + | $0 | |
| (+) Non-Senior Appraised Value: | + | $578,331 | |
| | | -------------------------- | |
| (=) Total Appraised Value: | = | $578,331 | |
| (–) Senior Exemption Loss: | – | $0 | |
| (–) Exemption Loss: | – | $0 | |
| | | -------------------------- | |
| (=) Taxable Value: | = | $578,331 | |
Taxing Jurisdiction
| Owner: | KELLEY, BRANDON M | | |
| % Ownership: | 100.0000000000% | | |
| Total Value: | $578,331 | | |
| Tax Area: | 712 - APPRAISER-S Whid Schl Dist, outside Langley, improved, greater than 1 acre |
| CF | Conservation Futures | 0.0316035091 | $578,331 | $578,331 | $18.28 | | |
| FIRE3 | Fire & Rescue Dist #3 S Whidbey GEN | 1.2004855531 | $578,331 | $578,331 | $694.28 | | |
| HOBOND | Hospital BOND | 0.1910887512 | $578,331 | $578,331 | $110.51 | | |
| HOGEN | Hospital GEN | 0.3902502903 | $578,331 | $578,331 | $225.69 | | |
| CE | County Current Expense | 0.3708482477 | $578,331 | $578,331 | $214.47 | | |
| CR | County Roads | 0.4584763726 | $578,331 | $578,331 | $265.15 | | |
| ISLANDEMS | Hospital GEN (EMS) | 0.5000000000 | $578,331 | $578,331 | $289.17 | | |
| LIB | Library Sno-Isle GEN | 0.3153421757 | $578,331 | $578,331 | $182.37 | | |
| PORTWHID | Port of S Whidbey GEN | 0.1094540357 | $578,331 | $578,331 | $63.30 | | |
| SCH206BOND | School 206 BOND | 0.3161759235 | $578,331 | $578,331 | $182.85 | | |
| SCH206MO | School 206 Enrichment | 0.4547169547 | $578,331 | $578,331 | $262.98 | | |
| ST | State School | 1.3035497053 | $578,331 | $578,331 | $753.88 | | |
| ST2 | State School Part 2 | 0.8169543533 | $578,331 | $578,331 | $472.47 | | |
| SWHIDPRBD | P & R S Whidbey BOND | 0.0152817568 | $578,331 | $578,331 | $8.84 | | |
| SWHIDPRBD2 | P & R S Whidbey BOND2 | 0.0138911264 | $578,331 | $578,331 | $8.03 | | |
| SWHIDPRMT | P & R S Whidbey GEN | 0.2053334452 | $578,331 | $578,331 | $118.75 | | |
| | Total Tax Rate: | 6.6934522006 | | | | | |
| | | | | Taxes w/Current Exemptions: | $3,871.02 | | |
| | | | | Taxes w/o Exemptions: | $3,871.02 | | |
Improvement / Building
| Improvement #1: | RESIDENTIAL | State Code: | Y | 1240.0 sqft | Value: | $288,331 |
| Bathrooms: | 2 | Bedrooms: | 3 | | Ceiling: | DRYWALL PAINTED | Cooling: | HEAT PUMP/CONV/V | | Exterior Wall/Cover: | CEMENT FIBER | Floor Covering: | CARPET/VINYL 60-40 | | Floor Structure: | WOOD W/SUBFLOOR | Foundation: | CONCRETE | | Interior Finish: | DRYWALL PAINT | Plumbing Fixture Cnt: | 9 | | Roof Slope: | 4" IN 12" | Roof Structure/Cover: | CJ ASPHALT |
|
| | Type | Description | Class CD | Sub Class CD | Year Built | Area |
| | BAS | BASE/MAIN FLOOR | 3 | 0 | 2021 | 1240.0 |
| | AGR | ATTACHED GARAGE | 3 | 0 | 2021 | 576.0 |
| | OWC | OPEN WOOD PORCH W/STEPS/ROOF/C | 3 | 0 | 2021 | 64.0 |
| | OWP | OPEN WOOD PORCH W/STEPS | 3 | 0 | 2021 | 288.0 |
Sketch
Property Image
Land
| 1 | 17 | AC (01.01-02.00) | 1.3200 | 57499.20 | 0.00 | 0.00 | 1.00 | $290,000 | $0 |
Roll Value History
| 2026 | N/A | N/A | N/A | N/A | N/A |
| 2025 | $288,331 | $290,000 | $0 | $578,331 | $578,331 |
| 2024 | $291,358 | $280,000 | $0 | $571,358 | $571,358 |
| 2023 | $296,655 | $260,000 | $0 | $556,655 | $556,655 |
| 2022 | $274,113 | $250,000 | $0 | $524,113 | $524,113 |
| 2021 | $10,000 | $110,000 | $0 | $120,000 | $120,000 |
| 2020 | $0 | $110,000 | $0 | $110,000 | $110,000 |
| 2019 | $0 | $110,000 | $0 | $110,000 | $110,000 |
| 2018 | $0 | $100,000 | $0 | $100,000 | $100,000 |
| 2017 | $0 | $100,000 | $0 | $100,000 | $100,000 |
| 2016 | $0 | $100,000 | $0 | $100,000 | $100,000 |
| 2015 | $0 | $85,000 | $0 | $85,000 | $85,000 |
| 2014 | $0 | $80,000 | $0 | $80,000 | $80,000 |
| 2013 | $0 | $110,000 | $0 | $110,000 | $110,000 |
| 2012 | $0 | $110,000 | $0 | $110,000 | $110,000 |
| 2011 | $0 | $110,000 | $0 | $110,000 | $110,000 |
| 2010 | $0 | $110,000 | $0 | $110,000 | $110,000 |
| 2009 | $0 | $125,000 | $0 | $125,000 | $125,000 |
| 2008 | $0 | $147,900 | $0 | $147,900 | $147,900 |
| 2007 | $0 | $147,900 | $0 | $147,900 | $147,900 |
Deed and Sales History
| 1 | 02/08/2019 | OTHER | Other - Misc. Documents | KELLEY, MICHAEL F | KELLEY, BRANDON M | | | $0.00 | 37591 | 4459263 |
| 2 | 02/01/2018 | QCD | Quit Claim Deed | KELLEY, MICHAEL F | KELLEY, MICHAEL F | | | $0.00 | 32847 | 4438632 |
| 3 | 02/01/2018 | QCD | Quit Claim Deed | KELLEY, MICHAEL F | KELLEY, MICHAEL F | | | $0.00 | 32853 | 4438637 |
| 4 | 02/01/2018 | QCD | Quit Claim Deed | KELLEY, MICHAEL F | KELLEY, MICHAEL F | | | $0.00 | 32851 | 4438635 |
Payout Agreement
| No payout information available.. |