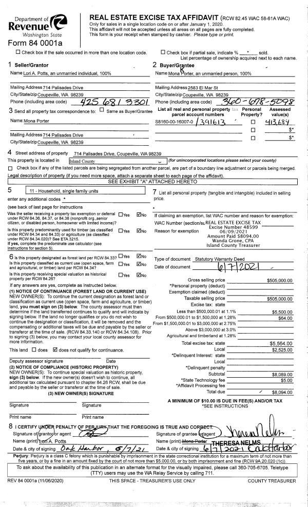
Property
Account |
| Property ID: | 130637 | Abbreviated Legal Description: | 39 - PT NE NW SE LY NELY OF ST HWY 525 EX: BG NECR OF NE NW SE S ALG ELN OF SD NE NW SE 324.94' TPB S ALG SD ELN 233.86' TP ON NELY LN SD ST HWY 525 NWLY ALG SD NELY LN CUR/L 103.85' N23*E170.14' TPB TGW PT NW NE SE DESC: BG NWCR OF NW NE SE S ALG WLN O |
| Geographic ID: | R32915-251-4090 | Agent Code: | |
| Type: | Real | | |
| Tax Area: | 712 - APPRAISER-S Whid Schl Dist, outside Langley, improved, greater than 1 acre | Land Use Code | 11 |
| Open Space: | N | DFL | N |
| Historic Property: | N | Remodel Property: | N |
| Multi-Family Redevelopment: | N | | |
| Township: | 29 | Section: | 15 |
| Range: | R3 |
Location |
| Address: | 11652 SR525 CLINTON, WA 98236 | Mapsco: | |
| Neighborhood: | Cycle 4 | Map ID: | 771 |
| Neighborhood CD: | 4 |
Owner |
| Name: | LEHMAN, CULLEY J | Owner ID: | 273619 |
| Mailing Address: | ADAM J LEHMAN PO BOX 91 CLINTON, WA 98236 | % Ownership: | 100.0000000000% |
| | | Exemptions: | |
Taxes and Assessment Details
Values
| (+) Improvement Homesite Value: | + | $0 | |
| (+) Improvement Non-Homesite Value: | + | $152,224 | |
| (+) Land Homesite Value: | + | $0 | |
| (+) Land Non-Homesite Value: | + | $370,000 | |
| (+) Curr Use (HS): | + | $0 | $0 |
| (+) Curr Use (NHS): | + | $0 | $0 |
| | | -------------------------- | |
| (=) Market Value: | = | $522,224 | |
| (–) Productivity Loss: | – | $0 | |
| | | -------------------------- | |
| (=) Subtotal: | = | $522,224 | |
| (+) Senior Appraised Value: | + | $0 | |
| (+) Non-Senior Appraised Value: | + | $522,224 | |
| | | -------------------------- | |
| (=) Total Appraised Value: | = | $522,224 | |
| (–) Senior Exemption Loss: | – | $0 | |
| (–) Exemption Loss: | – | $0 | |
| | | -------------------------- | |
| (=) Taxable Value: | = | $522,224 | |
Taxing Jurisdiction
| Owner: | LEHMAN, CULLEY J | | |
| % Ownership: | 100.0000000000% | | |
| Total Value: | $522,224 | | |
| Tax Area: | 712 - APPRAISER-S Whid Schl Dist, outside Langley, improved, greater than 1 acre |
| CF | Conservation Futures | 0.0316035091 | $522,224 | $522,224 | $16.50 | | |
| FIRE3 | Fire & Rescue Dist #3 S Whidbey GEN | 1.2004855531 | $522,224 | $522,224 | $626.92 | | |
| HOBOND | Hospital BOND | 0.1910887512 | $522,224 | $522,224 | $99.79 | | |
| HOGEN | Hospital GEN | 0.3902502903 | $522,224 | $522,224 | $203.80 | | |
| CE | County Current Expense | 0.3708482477 | $522,224 | $522,224 | $193.67 | | |
| CR | County Roads | 0.4584763726 | $522,224 | $522,224 | $239.43 | | |
| ISLANDEMS | Hospital GEN (EMS) | 0.5000000000 | $522,224 | $522,224 | $261.11 | | |
| LIB | Library Sno-Isle GEN | 0.3153421757 | $522,224 | $522,224 | $164.68 | | |
| PORTWHID | Port of S Whidbey GEN | 0.1094540357 | $522,224 | $522,224 | $57.16 | | |
| SCH206BOND | School 206 BOND | 0.3161759235 | $522,224 | $522,224 | $165.11 | | |
| SCH206MO | School 206 Enrichment | 0.4547169547 | $522,224 | $522,224 | $237.46 | | |
| ST | State School | 1.3035497053 | $522,224 | $522,224 | $680.74 | | |
| ST2 | State School Part 2 | 0.8169543533 | $522,224 | $522,224 | $426.63 | | |
| SWHIDPRBD | P & R S Whidbey BOND | 0.0152817568 | $522,224 | $522,224 | $7.98 | | |
| SWHIDPRBD2 | P & R S Whidbey BOND2 | 0.0138911264 | $522,224 | $522,224 | $7.25 | | |
| SWHIDPRMT | P & R S Whidbey GEN | 0.2053334452 | $522,224 | $522,224 | $107.23 | | |
| | Total Tax Rate: | 6.6934522006 | | | | | |
| | | | | Taxes w/Current Exemptions: | $3,495.46 | | |
| | | | | Taxes w/o Exemptions: | $3,495.46 | | |
Improvement / Building
| Improvement #1: | MANUFACTURED HOME | State Code: | Y | 1846.4 sqft | Value: | $152,224 |
| Bathrooms: | 2 | Bedrooms: | 3 | | Ceiling: | PLASTER PAINTED | Cooling: | EVAP NO DUCT | | Exterior Wall/Cover: | VINYL | Floor Covering: | CARPET 100% | | Floor Structure: | SLAB ON GRADE | Foundation: | SLAB | | Heating: | FHA ELECTRIC | Interior Finish: | PLASTER | | Plumbing Fixture Cnt: | 12 | Roof Slope: | FLAT | | Roof Structure/Cover: | CJ ALUMINIUM HEAVY |   |   |
|
| | Type | Description | Class CD | Sub Class CD | Year Built | Area |
| | BAS | BASE/MAIN FLOOR | 4 | 0 | 2004 | 1846.4 |
| | CPD | OPEN CARPORT DIRT FLOOR | 4 | 0 | 2004 | 24.0 |
| | OWP | OPEN WOOD PORCH W/STEPS | 4 | 0 | 2004 | 220.0 |
Sketch
Property Image
Land
| 1 | 32 | AC (03.01-09.99) | 4.1500 | 0.00 | 0.00 | 0.00 | 1.00 | $370,000 | $0 |
Roll Value History
| 2026 | N/A | N/A | N/A | N/A | N/A |
| 2025 | $152,224 | $370,000 | $0 | $522,224 | $522,224 |
| 2024 | $156,080 | $350,000 | $0 | $506,080 | $506,080 |
| 2023 | $139,062 | $330,000 | $0 | $469,062 | $469,062 |
| 2022 | $128,964 | $280,000 | $0 | $408,964 | $408,964 |
| 2021 | $113,469 | $230,000 | $0 | $343,469 | $343,469 |
| 2020 | $111,438 | $190,000 | $0 | $301,438 | $301,438 |
| 2019 | $89,862 | $250,000 | $0 | $339,862 | $339,862 |
| 2018 | $90,872 | $210,000 | $0 | $300,872 | $300,872 |
| 2017 | $92,891 | $190,000 | $0 | $282,891 | $282,891 |
| 2016 | $93,901 | $165,000 | $0 | $258,901 | $258,901 |
| 2015 | $81,274 | $135,000 | $0 | $216,274 | $216,274 |
| 2014 | $105,016 | $132,800 | $0 | $237,816 | $237,816 |
| 2013 | $107,138 | $132,800 | $0 | $239,938 | $239,938 |
| 2012 | $108,199 | $132,800 | $0 | $240,999 | $240,999 |
| 2011 | $110,321 | $132,800 | $0 | $243,121 | $243,121 |
| 2010 | $112,462 | $132,800 | $0 | $245,262 | $245,262 |
| 2009 | $116,784 | $176,000 | $0 | $292,784 | $292,784 |
| 2008 | $117,511 | $153,600 | $0 | $271,111 | $271,111 |
| 2007 | $118,797 | $153,600 | $0 | $272,397 | $272,397 |
Deed and Sales History
| 1 | 01/28/2016 | ESTSEPPROP | Establish Separate Property | LEHMAN, CULLEY J | LEHMAN, CULLEY J | | | $0.00 | 23041 | 4393578 |
| 2 | 01/28/2016 | WD | Warranty Deed | HANSEN, GARY D | LEHMAN, CULLEY J | | | $240,000.00 | 23040 | 4393577 |
| 3 | 05/25/2015 | WD | Warranty Deed | ARHONTAS, THOMAS | HANSEN, GARY D | | | $140,000.00 | 19940 | 4379925 |
| 4 | 11/08/2011 | EZ | Easement | ARHONTAS, THOMAS | ARHONTAS, THOMAS | | | $600.00 | 6771 | 4309177 |
| 5 | 04/19/2010 | BLA | DNU - Boundary Line Adjustment | ARHONTAS, THOMAS | ARHONTAS, THOMAS | | | $0.00 | 81620 | 4263231 |
| 6 | 07/07/2009 | ESTSEPPROP | Establish Separate Property | ARHONTAS, THOMAS | ARHONTAS, THOMAS | | | $0.00 | 92730 | 4272768 |
| 7 | 11/01/1981 | TRUSTEED | Trustee's Deed | HARDY, ROBERT V | ARHONTAS, THOMAS | | | $27,000.00 | 13469 | 389935 |
| 8 | 01/01/1900 | OTHER | Other - Misc. Documents | Unknown | HARDY, ROBERT V | | | $0.00 | 0 | 0 |
Payout Agreement
| No payout information available.. |