Property
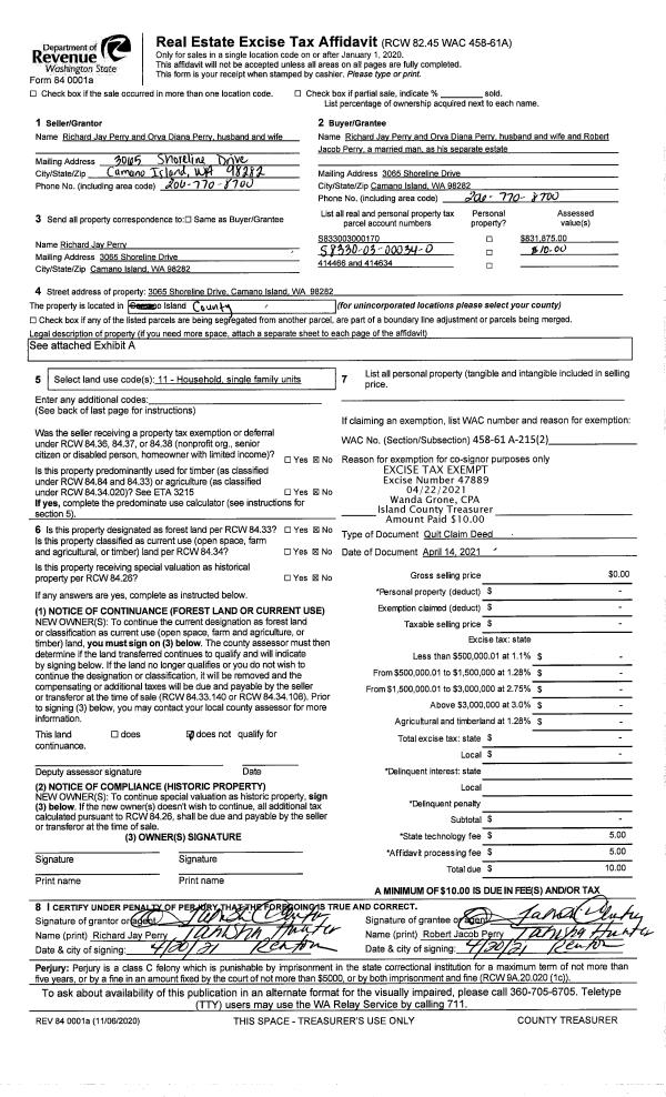
Account |
| Property ID: | 131226 | Abbreviated Legal Description: | 8 - N/2 SE SE SE SUB TO EZ |
| Geographic ID: | R32917-041-5090 | Agent Code: | |
| Type: | Real | | |
| Tax Area: | 712 - APPRAISER-S Whid Schl Dist, outside Langley, improved, greater than 1 acre | Land Use Code | 11 |
| Open Space: | N | DFL | N |
| Historic Property: | N | Remodel Property: | N |
| Multi-Family Redevelopment: | N | | |
| Township: | 29 | Section: | 17 |
| Range: | R3 |
Location |
| Address: | 5965 PIONEER PARK PLACE LANGLEY, WA 98260 | Mapsco: | |
| Neighborhood: | Cycle 4 | Map ID: | 779 |
| Neighborhood CD: | 4 |
Owner |
| Name: | COMPTON, LEE T | Owner ID: | 18030 |
| Mailing Address: | 5965 PIONEER PARK PLACE LANGLEY, WA 98260-8506 | % Ownership: | 100.0000000000% |
| | | Exemptions: | |
Taxes and Assessment Details
Values
| (+) Improvement Homesite Value: | + | $0 | |
| (+) Improvement Non-Homesite Value: | + | $228,426 | |
| (+) Land Homesite Value: | + | $0 | |
| (+) Land Non-Homesite Value: | + | $380,000 | |
| (+) Curr Use (HS): | + | $0 | $0 |
| (+) Curr Use (NHS): | + | $0 | $0 |
| | | -------------------------- | |
| (=) Market Value: | = | $608,426 | |
| (–) Productivity Loss: | – | $0 | |
| | | -------------------------- | |
| (=) Subtotal: | = | $608,426 | |
| (+) Senior Appraised Value: | + | $0 | |
| (+) Non-Senior Appraised Value: | + | $608,426 | |
| | | -------------------------- | |
| (=) Total Appraised Value: | = | $608,426 | |
| (–) Senior Exemption Loss: | – | $0 | |
| (–) Exemption Loss: | – | $0 | |
| | | -------------------------- | |
| (=) Taxable Value: | = | $608,426 | |
Taxing Jurisdiction
| Owner: | COMPTON, LEE T | | |
| % Ownership: | 100.0000000000% | | |
| Total Value: | $608,426 | | |
| Tax Area: | 712 - APPRAISER-S Whid Schl Dist, outside Langley, improved, greater than 1 acre |
| CF | Conservation Futures | 0.0316035091 | $608,426 | $608,426 | $19.23 | | |
| FIRE3 | Fire & Rescue Dist #3 S Whidbey GEN | 1.2004855531 | $608,426 | $608,426 | $730.41 | | |
| HOBOND | Hospital BOND | 0.1910887512 | $608,426 | $608,426 | $116.26 | | |
| HOGEN | Hospital GEN | 0.3902502903 | $608,426 | $608,426 | $237.44 | | |
| CE | County Current Expense | 0.3708482477 | $608,426 | $608,426 | $225.63 | | |
| CR | County Roads | 0.4584763726 | $608,426 | $608,426 | $278.95 | | |
| ISLANDEMS | Hospital GEN (EMS) | 0.5000000000 | $608,426 | $608,426 | $304.21 | | |
| LIB | Library Sno-Isle GEN | 0.3153421757 | $608,426 | $608,426 | $191.86 | | |
| PORTWHID | Port of S Whidbey GEN | 0.1094540357 | $608,426 | $608,426 | $66.59 | | |
| SCH206BOND | School 206 BOND | 0.3161759235 | $608,426 | $608,426 | $192.37 | | |
| SCH206MO | School 206 Enrichment | 0.4547169547 | $608,426 | $608,426 | $276.66 | | |
| ST | State School | 1.3035497053 | $608,426 | $608,426 | $793.11 | | |
| ST2 | State School Part 2 | 0.8169543533 | $608,426 | $608,426 | $497.06 | | |
| SWHIDPRBD | P & R S Whidbey BOND | 0.0152817568 | $608,426 | $608,426 | $9.30 | | |
| SWHIDPRBD2 | P & R S Whidbey BOND2 | 0.0138911264 | $608,426 | $608,426 | $8.45 | | |
| SWHIDPRMT | P & R S Whidbey GEN | 0.2053334452 | $608,426 | $608,426 | $124.93 | | |
| | Total Tax Rate: | 6.6934522006 | | | | | |
| | | | | Taxes w/Current Exemptions: | $4,072.46 | | |
| | | | | Taxes w/o Exemptions: | $4,072.46 | | |
Improvement / Building
| Improvement #1: | RESIDENTIAL | State Code: | Y | 856.0 sqft | Value: | $228,426 |
| Bathrooms: | 1 | Bedrooms: | 0 | | Ceiling: | TONGUE & GROOVE | Exterior Wall/Cover: | SHINGLE | | Floor Covering: | SOFTWOOD 100% | Floor Structure: | WOOD W/SUBFLOOR | | Foundation: | WOOD BLOCKS | Heating: | GAS HEATERS | | Interior Finish: | DRYWALL PAINT | Plumbing Fixture Cnt: | 8 | | Roof Slope: | 5" IN 12" | Roof Structure/Cover: | BEAM ASPHALT |
|
| | Type | Description | Class CD | Sub Class CD | Year Built | Area |
| | BAS | BASE/MAIN FLOOR | 3 | 0 | 1998 | 856.0 |
| | OWP | OPEN WOOD PORCH W/STEPS | 3 | 0 | 1998 | 351.1 |
| | OWR | OPEN WOOD PORCH W/STEPS/ROOF | 3 | 0 | 1998 | 28.0 |
| | UTY | STORAGE/UTILITY | 3 | 0 | 1998 | 120.0 |
| | UTY | STORAGE/UTILITY | 3 | 0 | 1998 | 200.0 |
| | CPD | OPEN CARPORT DIRT FLOOR | 3 | 0 | 1998 | 240.0 |
| | CPD | OPEN CARPORT DIRT FLOOR | 3 | 0 | 1998 | 192.0 |
| | UTY | STORAGE/UTILITY | 3 | 0 | 1998 | 768.0 |
| | UTY | STORAGE/UTILITY | 3 | 0 | 1998 | 84.0 |
Sketch
Property Image
Land
| 1 | 32 | AC (03.01-09.99) | 5.0000 | 0.00 | 0.00 | 0.00 | 1.00 | $380,000 | $0 |
Roll Value History
| 2026 | N/A | N/A | N/A | N/A | N/A |
| 2025 | $228,426 | $380,000 | $0 | $608,426 | $608,426 |
| 2024 | $231,171 | $350,000 | $0 | $581,171 | $581,171 |
| 2023 | $233,914 | $330,000 | $0 | $563,914 | $563,914 |
| 2022 | $214,298 | $290,000 | $0 | $504,298 | $504,298 |
| 2021 | $188,510 | $230,000 | $0 | $418,510 | $418,510 |
| 2020 | $137,790 | $190,000 | $0 | $327,790 | $327,790 |
| 2019 | $93,877 | $250,000 | $0 | $343,877 | $343,877 |
| 2018 | $94,153 | $210,000 | $0 | $304,153 | $304,153 |
| 2017 | $94,648 | $190,000 | $0 | $284,648 | $284,648 |
| 2016 | $95,747 | $150,000 | $0 | $245,747 | $245,747 |
| 2015 | $96,848 | $135,000 | $0 | $231,848 | $231,848 |
| 2014 | $105,119 | $125,000 | $0 | $230,119 | $117,211 |
| 2013 | $105,802 | $135,000 | $0 | $240,802 | $121,648 |
| 2012 | $106,485 | $170,000 | $0 | $276,485 | $136,084 |
| 2011 | $107,169 | $170,000 | $0 | $277,169 | $136,522 |
| 2010 | $104,219 | $170,000 | $0 | $274,219 | $274,219 |
| 2009 | $111,574 | $220,000 | $0 | $331,574 | $331,574 |
| 2008 | $113,717 | $250,000 | $0 | $363,717 | $363,717 |
| 2007 | $115,631 | $192,500 | $0 | $308,131 | $308,131 |
Deed and Sales History
| 1 | 09/01/1993 | WD | Warranty Deed | GRIFFIN, BETTY | COMPTON, LEE T | | | $48,000.00 | 33548 | 93018523 |
| 2 | 01/01/1987 | OTHER | Other - Misc. Documents | MCMILLAN, BETTY | GRIFFIN, BETTY | | | $0.00 | 61986 | 0 |
| 3 | 05/01/1985 | OTHER | Other - Misc. Documents | BARFUSS, JOHN R | MCMILLAN, BETTY | | | $0.00 | 61157 | 0 |
| 4 | 06/01/1984 | QCD | Quit Claim Deed | BARFUSS, JOHN R | BARFUSS, JOHN R | | | $0.00 | 41806 | 426257 |
| 5 | 12/01/1981 | EZ | Easement | MCMILLAN, ROBERT | BARFUSS, JOHN R | | | $15,360.00 | 13911 | 391658 |
| 6 | 01/01/1900 | OTHER | Other - Misc. Documents | Unknown | MCMILLAN, ROBERT | | | $0.00 | 0 | 0 |
Payout Agreement
| No payout information available.. |