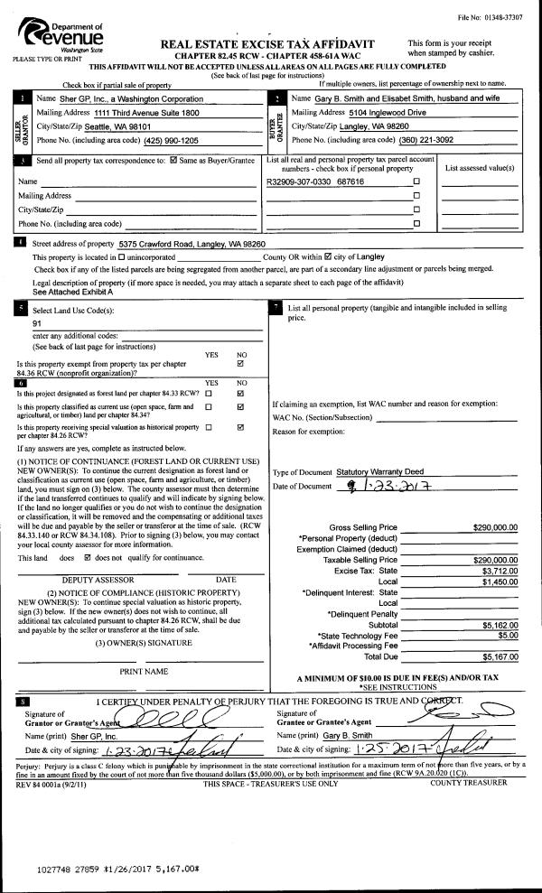
Property
Account |
| Property ID: | 131253 | Abbreviated Legal Description: | 52 - S/2 NE SE SE TGW EZ |
| Geographic ID: | R32917-073-5080 | Agent Code: | |
| Type: | Real | | |
| Tax Area: | 712 - APPRAISER-S Whid Schl Dist, outside Langley, improved, greater than 1 acre | Land Use Code | 11 |
| Open Space: | N | DFL | N |
| Historic Property: | N | Remodel Property: | N |
| Multi-Family Redevelopment: | N | | |
| Township: | 29 | Section: | 17 |
| Range: | R3 |
Location |
| Address: | 5935 PIONEER PARK PLACE LANGLEY, WA 98260 | Mapsco: | |
| Neighborhood: | Cycle 4 | Map ID: | 779 |
| Neighborhood CD: | 4 |
Owner |
| Name: | GATES, ADAM | Owner ID: | 291035 |
| Mailing Address: | DEVEN GATES 5935 PIONEER PARK PL LANGLEY, WA 98260 | % Ownership: | 100.0000000000% |
| | | Exemptions: | |
Taxes and Assessment Details
Values
| (+) Improvement Homesite Value: | + | $0 | |
| (+) Improvement Non-Homesite Value: | + | $944,843 | |
| (+) Land Homesite Value: | + | $0 | |
| (+) Land Non-Homesite Value: | + | $380,000 | |
| (+) Curr Use (HS): | + | $0 | $0 |
| (+) Curr Use (NHS): | + | $0 | $0 |
| | | -------------------------- | |
| (=) Market Value: | = | $1,324,843 | |
| (–) Productivity Loss: | – | $0 | |
| | | -------------------------- | |
| (=) Subtotal: | = | $1,324,843 | |
| (+) Senior Appraised Value: | + | $0 | |
| (+) Non-Senior Appraised Value: | + | $1,324,843 | |
| | | -------------------------- | |
| (=) Total Appraised Value: | = | $1,324,843 | |
| (–) Senior Exemption Loss: | – | $0 | |
| (–) Exemption Loss: | – | $0 | |
| | | -------------------------- | |
| (=) Taxable Value: | = | $1,324,843 | |
Taxing Jurisdiction
| Owner: | GATES, ADAM | | |
| % Ownership: | 100.0000000000% | | |
| Total Value: | $1,324,843 | | |
| Tax Area: | 712 - APPRAISER-S Whid Schl Dist, outside Langley, improved, greater than 1 acre |
| CF | Conservation Futures | 0.0316035091 | $1,324,843 | $1,324,843 | $41.87 | | |
| FIRE3 | Fire & Rescue Dist #3 S Whidbey GEN | 1.2004855531 | $1,324,843 | $1,324,843 | $1,590.45 | | |
| HOBOND | Hospital BOND | 0.1910887512 | $1,324,843 | $1,324,843 | $253.16 | | |
| HOGEN | Hospital GEN | 0.3902502903 | $1,324,843 | $1,324,843 | $517.02 | | |
| CE | County Current Expense | 0.3708482477 | $1,324,843 | $1,324,843 | $491.32 | | |
| CR | County Roads | 0.4584763726 | $1,324,843 | $1,324,843 | $607.41 | | |
| ISLANDEMS | Hospital GEN (EMS) | 0.5000000000 | $1,324,843 | $1,324,843 | $662.42 | | |
| LIB | Library Sno-Isle GEN | 0.3153421757 | $1,324,843 | $1,324,843 | $417.78 | | |
| PORTWHID | Port of S Whidbey GEN | 0.1094540357 | $1,324,843 | $1,324,843 | $145.01 | | |
| SCH206BOND | School 206 BOND | 0.3161759235 | $1,324,843 | $1,324,843 | $418.88 | | |
| SCH206MO | School 206 Enrichment | 0.4547169547 | $1,324,843 | $1,324,843 | $602.43 | | |
| ST | State School | 1.3035497053 | $1,324,843 | $1,324,843 | $1,727.00 | | |
| ST2 | State School Part 2 | 0.8169543533 | $1,324,843 | $1,324,843 | $1,082.34 | | |
| SWHIDPRBD | P & R S Whidbey BOND | 0.0152817568 | $1,324,843 | $1,324,843 | $20.25 | | |
| SWHIDPRBD2 | P & R S Whidbey BOND2 | 0.0138911264 | $1,324,843 | $1,324,843 | $18.40 | | |
| SWHIDPRMT | P & R S Whidbey GEN | 0.2053334452 | $1,324,843 | $1,324,843 | $272.03 | | |
| | Total Tax Rate: | 6.6934522006 | | | | | |
| | | | | Taxes w/Current Exemptions: | $8,867.77 | | |
| | | | | Taxes w/o Exemptions: | $8,867.77 | | |
Improvement / Building
| Improvement #1: | RESIDENTIAL | State Code: | Y | 3494.0 sqft | Value: | $762,976 |
| Bathrooms: | 2.5 | Bedrooms: | 5 | | Ceiling: | DRYWALL PAINTED | Cooling: | HEAT PUMP/CONV/V | | Exterior Wall/Cover: | CEMENT FIBER | Floor Covering: | CERAMIC TILE/CPT 40-60 | | Floor Structure: | WOOD W/SUBFLOOR | Foundation: | CONCRETE | | Interior Finish: | DRYWALL PAINT | Plumbing Fixture Cnt: | 15 | | Roof Slope: | 6" IN 12" | Roof Structure/Cover: | CJ ASPHALT |
|
| | Type | Description | Class CD | Sub Class CD | Year Built | Area |
| | BAS | BASE/MAIN FLOOR | 5 | 0 | 1994 | 2258.0 |
| | UPS | UPPER STORY | 5 | 0 | 1994 | 1236.0 |
| | OWP | OPEN WOOD PORCH W/STEPS | 5 | 0 | 1994 | 1830.9 |
| | OWP | OPEN WOOD PORCH W/STEPS | 5 | 0 | 1994 | 169.0 |
| | OWC | OPEN WOOD PORCH W/STEPS/ROOF/C | 5 | 0 | 1994 | 132.0 |
| | oPOL | POLE BARN | 5 | 0 | 1994 | 2400.0 |
| Improvement #2: | RESIDENTIAL | State Code: | Y | 917.0 sqft | Value: | $181,867 |
| Bathrooms: | 1 | Bedrooms: | 2 | | Ceiling: | DRYWALL PAINTED | Exterior Wall/Cover: | CEMENT FIBER | | Floor Covering: | HARDWOOD/CARP 20-80 | Floor Structure: | WOOD W/SUBFLOOR | | Foundation: | CONCRETE | Heating: | WALL HEAT ELECTRIC | | Interior Finish: | DRYWALL PAINT | Plumbing Fixture Cnt: | 6 | | Roof Slope: | 6" IN 12" | Roof Structure/Cover: | CJ ASPHALT |
|
| | Type | Description | Class CD | Sub Class CD | Year Built | Area |
| | BAS | BASE/MAIN FLOOR | 4 | 0 | 2006 | 550.0 |
| | OWC | OPEN WOOD PORCH W/STEPS/ROOF/C | 4 | 0 | 2006 | 224.0 |
| | LOF | LOFT | 4 | 0 | 2006 | 367.0 |
Sketch
Property Image
Land
| 1 | 32 | AC (03.01-09.99) | 5.0000 | 0.00 | 0.00 | 0.00 | 1.00 | $380,000 | $0 |
Roll Value History
| 2026 | N/A | N/A | N/A | N/A | N/A |
| 2025 | $944,843 | $380,000 | $0 | $1,324,843 | $1,324,843 |
| 2024 | $954,720 | $350,000 | $0 | $1,304,720 | $1,304,720 |
| 2023 | $955,818 | $330,000 | $0 | $1,285,818 | $1,285,818 |
| 2022 | $880,004 | $290,000 | $0 | $1,170,004 | $1,170,004 |
| 2021 | $782,211 | $230,000 | $0 | $1,012,211 | $1,012,211 |
| 2020 | $735,461 | $190,000 | $0 | $925,461 | $925,461 |
| 2019 | $542,636 | $250,000 | $0 | $792,636 | $792,636 |
| 2018 | $544,205 | $210,000 | $0 | $754,205 | $754,205 |
| 2017 | $537,102 | $190,000 | $0 | $727,102 | $727,102 |
| 2016 | $543,264 | $150,000 | $0 | $693,264 | $693,264 |
| 2015 | $549,426 | $135,000 | $0 | $684,426 | $684,426 |
| 2014 | $449,462 | $125,000 | $0 | $574,462 | $574,462 |
| 2013 | $454,137 | $135,000 | $0 | $589,137 | $589,137 |
| 2012 | $458,811 | $170,000 | $0 | $628,811 | $628,811 |
| 2011 | $463,487 | $170,000 | $0 | $633,487 | $633,487 |
| 2010 | $480,279 | $170,000 | $0 | $650,279 | $650,279 |
| 2009 | $503,631 | $220,000 | $0 | $723,631 | $723,631 |
| 2008 | $500,813 | $250,000 | $0 | $750,813 | $750,813 |
| 2007 | $507,422 | $192,500 | $0 | $699,922 | $699,922 |
Deed and Sales History
| 1 | 07/19/2019 | WD | Warranty Deed | HILLS TRUSTEE, CRAIG A | GATES, ADAM | | | $1,050,000.00 | 39531 | 4467865 |
| 2 | 05/05/2015 | WD | Warranty Deed | FOWLER, JAMES F | HILLS TRUSTEE, CRAIG A | | | $762,200.00 | 19540 | 4378356 |
| 3 | 11/18/2005 | 5 | DNU - Marriage License/Name Change | FOWLER, JAMES F | FOWLER, JAMES F | | | $0.00 | 55896 | 4155085 |
| 4 | 09/30/2004 | WD | Warranty Deed | MUNGER, WILLIAM E | FOWLER, JAMES F | | | $312,000.00 | 44716 | 4114820 |
| 5 | 07/25/2000 | WD | Warranty Deed | WATERMAN, DANIEL LEE | MUNGER, WILLIAM E | | | $256,500.00 | 2845 | 20013360 |
| 6 | 12/14/1998 | ESTSEPPROP | Establish Separate Property | WATERMAN, MARGARET E | WATERMAN, DANIEL LEE | | | $0.00 | 410 | 20002061 |
| 7 | 12/01/1997 | QCD | Quit Claim Deed | WATERMAN, MARGARET E | WATERMAN, MARGARET E | | | $0.00 | 74561 | 97021668 |
| 8 | 12/01/1997 | QCD | Quit Claim Deed | WATERMAN, DEBRA & | WATERMAN, MARGARET E | | | $0.00 | 74562 | 97021669 |
| 9 | 04/01/1997 | WD | Warranty Deed | BRANDT, WILLIAM M | WATERMAN, DEBRA & | | | $245,000.00 | 71247 | 97005634 |
| 10 | 09/01/1989 | WD | Warranty Deed | PHILLIPS, TRENNETH E | BRANDT, WILLIAM M | | | $32,000.00 | 94032 | 89013330 |
| 11 | 03/01/1986 | WD | Warranty Deed | MILLER, HELEN A | PHILLIPS, TRENNETH E | | | $28,500.00 | 60560 | 86002739 |
| 12 | 12/01/1982 | OTHER | Other - Misc. Documents | MILLER, WALTER R | MILLER, HELEN A | | | $0.00 | 59753 | 0 |
| 13 | 01/01/1900 | OTHER | Other - Misc. Documents | Unknown | MILLER, WALTER R | | | $0.00 | 0 | 0 |
Payout Agreement
| No payout information available.. |