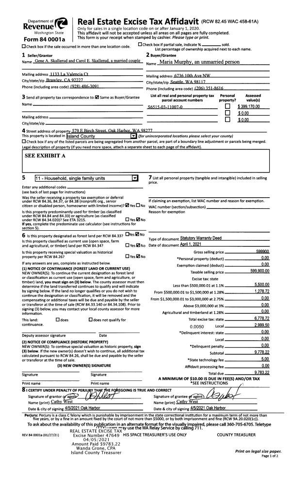
Property
Account |
| Property ID: | 131413 | Abbreviated Legal Description: | 95 - E/2 SE NW SE TGW & SUB EZ AF#339302 |
| Geographic ID: | R32917-158-3950 | Agent Code: | |
| Type: | Real | | |
| Tax Area: | 712 - APPRAISER-S Whid Schl Dist, outside Langley, improved, greater than 1 acre | Land Use Code | 11 |
| Open Space: | N | DFL | N |
| Historic Property: | N | Remodel Property: | N |
| Multi-Family Redevelopment: | N | | |
| Township: | 29 | Section: | 17 |
| Range: | R3 |
Location |
| Address: | 3080 BEARBERRY LN LANGLEY, WA 98260 | Mapsco: | |
| Neighborhood: | Cycle 4 | Map ID: | 779 |
| Neighborhood CD: | 4 |
Owner |
| Name: | BELL, EMILY | Owner ID: | 293212 |
| Mailing Address: | SHAUN W BELL 3080 BEARBERRY LN LANGLEY, WA 98260 | % Ownership: | 100.0000000000% |
| | | Exemptions: | |
Taxes and Assessment Details
Values
| (+) Improvement Homesite Value: | + | $0 | |
| (+) Improvement Non-Homesite Value: | + | $553,697 | |
| (+) Land Homesite Value: | + | $0 | |
| (+) Land Non-Homesite Value: | + | $380,000 | |
| (+) Curr Use (HS): | + | $0 | $0 |
| (+) Curr Use (NHS): | + | $0 | $0 |
| | | -------------------------- | |
| (=) Market Value: | = | $933,697 | |
| (–) Productivity Loss: | – | $0 | |
| | | -------------------------- | |
| (=) Subtotal: | = | $933,697 | |
| (+) Senior Appraised Value: | + | $0 | |
| (+) Non-Senior Appraised Value: | + | $933,697 | |
| | | -------------------------- | |
| (=) Total Appraised Value: | = | $933,697 | |
| (–) Senior Exemption Loss: | – | $0 | |
| (–) Exemption Loss: | – | $0 | |
| | | -------------------------- | |
| (=) Taxable Value: | = | $933,697 | |
Taxing Jurisdiction
| Owner: | BELL, EMILY | | |
| % Ownership: | 100.0000000000% | | |
| Total Value: | $933,697 | | |
| Tax Area: | 712 - APPRAISER-S Whid Schl Dist, outside Langley, improved, greater than 1 acre |
| CF | Conservation Futures | 0.0316035091 | $933,697 | $933,697 | $29.51 | | |
| FIRE3 | Fire & Rescue Dist #3 S Whidbey GEN | 1.2004855531 | $933,697 | $933,697 | $1,120.89 | | |
| HOBOND | Hospital BOND | 0.1910887512 | $933,697 | $933,697 | $178.42 | | |
| HOGEN | Hospital GEN | 0.3902502903 | $933,697 | $933,697 | $364.38 | | |
| CE | County Current Expense | 0.3708482477 | $933,697 | $933,697 | $346.26 | | |
| CR | County Roads | 0.4584763726 | $933,697 | $933,697 | $428.08 | | |
| ISLANDEMS | Hospital GEN (EMS) | 0.5000000000 | $933,697 | $933,697 | $466.85 | | |
| LIB | Library Sno-Isle GEN | 0.3153421757 | $933,697 | $933,697 | $294.43 | | |
| PORTWHID | Port of S Whidbey GEN | 0.1094540357 | $933,697 | $933,697 | $102.20 | | |
| SCH206BOND | School 206 BOND | 0.3161759235 | $933,697 | $933,697 | $295.21 | | |
| SCH206MO | School 206 Enrichment | 0.4547169547 | $933,697 | $933,697 | $424.57 | | |
| ST | State School | 1.3035497053 | $933,697 | $933,697 | $1,217.12 | | |
| ST2 | State School Part 2 | 0.8169543533 | $933,697 | $933,697 | $762.79 | | |
| SWHIDPRBD | P & R S Whidbey BOND | 0.0152817568 | $933,697 | $933,697 | $14.27 | | |
| SWHIDPRBD2 | P & R S Whidbey BOND2 | 0.0138911264 | $933,697 | $933,697 | $12.97 | | |
| SWHIDPRMT | P & R S Whidbey GEN | 0.2053334452 | $933,697 | $933,697 | $191.72 | | |
| | Total Tax Rate: | 6.6934522006 | | | | | |
| | | | | Taxes w/Current Exemptions: | $6,249.67 | | |
| | | | | Taxes w/o Exemptions: | $6,249.67 | | |
Improvement / Building
| Improvement #1: | RESIDENTIAL | State Code: | Y | 2570.0 sqft | Value: | $553,697 |
| Bathrooms: | 2 | Bedrooms: | 3 | | Ceiling: | DRYWALL PAINTED | Exterior Wall/Cover: | WOOD SIDING | | Floor Covering: | HARDWOOD/CARP 60-40 | Floor Structure: | WOOD W/SUBFLOOR | | Foundation: | CONCRETE BLOCKS | Heating: | WALL HEAT ELECTRIC | | Interior Finish: | DRYWALL PAINT | Plumbing Fixture Cnt: | 11 | | Roof Slope: | 8" IN 12" | Roof Structure/Cover: | BEAM ALUMINUM HEAVY |
|
| | Type | Description | Class CD | Sub Class CD | Year Built | Area |
| | BAS | BASE/MAIN FLOOR | 4 | 0 | 1988 | 1196.0 |
| | OP3 | OPEN PORCH W/ROOF | 4 | 0 | 1988 | 98.0 |
| | UPS | UPPER STORY | 4 | 0 | 1988 | 1374.0 |
| | ENP | ENCLOSED PORCH | 4 | 0 | 1988 | 192.0 |
| | UTY | STORAGE/UTILITY | 4 | 0 | 1988 | 720.0 |
| | DGR | DETACHED GARAGE | 4 | 0 | 1988 | 384.0 |
| | OCP | OPEN CARPORT | 4 | 0 | 1988 | 384.0 |
| | UTY | STORAGE/UTILITY | 4 | 0 | 1988 | 384.0 |
| | CPD | OPEN CARPORT DIRT FLOOR | 4 | 0 | 1988 | 200.0 |
| | ATF | ATTIC FINISHED | 4 | 0 | 1988 | 480.0 |
| | OWP | OPEN WOOD PORCH W/STEPS | 4 | 0 | 1988 | 112.0 |
Sketch
Property Image
Land
| 1 | 32 | AC (03.01-09.99) | 4.6000 | 0.00 | 0.00 | 0.00 | 1.00 | $380,000 | $0 |
Roll Value History
| 2026 | N/A | N/A | N/A | N/A | N/A |
| 2025 | $553,697 | $380,000 | $0 | $933,697 | $933,697 |
| 2024 | $560,597 | $350,000 | $0 | $910,597 | $910,597 |
| 2023 | $567,498 | $330,000 | $0 | $897,498 | $897,498 |
| 2022 | $520,114 | $290,000 | $0 | $810,114 | $810,114 |
| 2021 | $457,715 | $230,000 | $0 | $687,715 | $687,715 |
| 2020 | $421,382 | $190,000 | $0 | $611,382 | $611,382 |
| 2019 | $252,914 | $250,000 | $0 | $502,914 | $502,914 |
| 2018 | $253,663 | $210,000 | $0 | $463,663 | $463,663 |
| 2017 | $255,157 | $190,000 | $0 | $445,157 | $445,157 |
| 2016 | $258,143 | $135,000 | $0 | $393,143 | $393,143 |
| 2015 | $261,128 | $135,000 | $0 | $396,128 | $396,128 |
| 2014 | $261,606 | $115,000 | $0 | $376,606 | $376,606 |
| 2013 | $264,476 | $124,200 | $0 | $388,676 | $388,676 |
| 2012 | $267,346 | $156,400 | $0 | $423,746 | $423,746 |
| 2011 | $270,216 | $156,400 | $0 | $426,616 | $426,616 |
| 2010 | $276,165 | $156,400 | $0 | $432,565 | $432,565 |
| 2009 | $288,243 | $202,400 | $0 | $490,643 | $490,643 |
| 2008 | $293,204 | $230,000 | $0 | $523,204 | $523,204 |
| 2007 | $297,949 | $177,100 | $0 | $475,049 | $475,049 |
Deed and Sales History
| 1 | 01/13/2020 | WD | Warranty Deed | COSTELLO, MATTHEW DAMON | BELL, EMILY | | | $650,000.00 | 41810 | 4479378 |
| 2 | 10/02/2012 | WD | Warranty Deed | LEBARON, KATHRYN ELAINE | COSTELLO, MATTHEW DAMON | | | $354,900.00 | 9114 | 4324819 |
| 3 | 06/23/2011 | | | LEBARON, EVERELL M | LEBARON, KATHRYN ELAINE | | | | 82102 | |
| 4 | 09/01/1978 | OTHER | Other - Misc. Documents | Unknown | LEBARON, EVERELL M | | | $16,000.00 | 84356 | 339303 |
Payout Agreement
| No payout information available.. |