Property
Account |
| Property ID: | 131529 | Abbreviated Legal Description: | 6 - W/2 NW NW SE EX PT TO STATE AF#112542 TGW EZ SITE PLAN REVIEW #63-92 (LOT 8 UNREC WHIDBEY HILLS) |
| Geographic ID: | R32917-215-3010 | Agent Code: | |
| Type: | Real | | |
| Tax Area: | 712 - APPRAISER-S Whid Schl Dist, outside Langley, improved, greater than 1 acre | Land Use Code | 11 |
| Open Space: | N | DFL | N |
| Historic Property: | N | Remodel Property: | N |
| Multi-Family Redevelopment: | N | | |
| Township: | 29 | Section: | 17 |
| Range: | R3 |
Location |
| Address: | 5820 SANFORD DR LANGLEY, WA 98260 | Mapsco: | |
| Neighborhood: | Cycle 4 | Map ID: | 779 |
| Neighborhood CD: | 4 |
Owner |
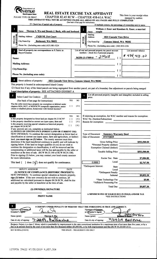
| Name: | MACDONALD, BYRON | Owner ID: | 291362 |
| Mailing Address: | LAINE HENDRA-ALDRICH PO BOX 1582 FREELAND, WA 98249 | % Ownership: | 100.0000000000% |
| | | Exemptions: | |
Taxes and Assessment Details
Values
| (+) Improvement Homesite Value: | + | $0 | |
| (+) Improvement Non-Homesite Value: | + | $88,891 | |
| (+) Land Homesite Value: | + | $0 | |
| (+) Land Non-Homesite Value: | + | $380,000 | |
| (+) Curr Use (HS): | + | $0 | $0 |
| (+) Curr Use (NHS): | + | $0 | $0 |
| | | -------------------------- | |
| (=) Market Value: | = | $468,891 | |
| (–) Productivity Loss: | – | $0 | |
| | | -------------------------- | |
| (=) Subtotal: | = | $468,891 | |
| (+) Senior Appraised Value: | + | $0 | |
| (+) Non-Senior Appraised Value: | + | $468,891 | |
| | | -------------------------- | |
| (=) Total Appraised Value: | = | $468,891 | |
| (–) Senior Exemption Loss: | – | $0 | |
| (–) Exemption Loss: | – | $0 | |
| | | -------------------------- | |
| (=) Taxable Value: | = | $468,891 | |
Taxing Jurisdiction
| Owner: | MACDONALD, BYRON | | |
| % Ownership: | 100.0000000000% | | |
| Total Value: | $468,891 | | |
| Tax Area: | 712 - APPRAISER-S Whid Schl Dist, outside Langley, improved, greater than 1 acre |
| CF | Conservation Futures | 0.0316035091 | $468,891 | $468,891 | $14.82 | | |
| FIRE3 | Fire & Rescue Dist #3 S Whidbey GEN | 1.2004855531 | $468,891 | $468,891 | $562.90 | | |
| HOBOND | Hospital BOND | 0.1910887512 | $468,891 | $468,891 | $89.60 | | |
| HOGEN | Hospital GEN | 0.3902502903 | $468,891 | $468,891 | $182.98 | | |
| CE | County Current Expense | 0.3708482477 | $468,891 | $468,891 | $173.89 | | |
| CR | County Roads | 0.4584763726 | $468,891 | $468,891 | $214.98 | | |
| ISLANDEMS | Hospital GEN (EMS) | 0.5000000000 | $468,891 | $468,891 | $234.45 | | |
| LIB | Library Sno-Isle GEN | 0.3153421757 | $468,891 | $468,891 | $147.86 | | |
| PORTWHID | Port of S Whidbey GEN | 0.1094540357 | $468,891 | $468,891 | $51.32 | | |
| SCH206BOND | School 206 BOND | 0.3161759235 | $468,891 | $468,891 | $148.25 | | |
| SCH206MO | School 206 Enrichment | 0.4547169547 | $468,891 | $468,891 | $213.21 | | |
| ST | State School | 1.3035497053 | $468,891 | $468,891 | $611.22 | | |
| ST2 | State School Part 2 | 0.8169543533 | $468,891 | $468,891 | $383.06 | | |
| SWHIDPRBD | P & R S Whidbey BOND | 0.0152817568 | $468,891 | $468,891 | $7.17 | | |
| SWHIDPRBD2 | P & R S Whidbey BOND2 | 0.0138911264 | $468,891 | $468,891 | $6.51 | | |
| SWHIDPRMT | P & R S Whidbey GEN | 0.2053334452 | $468,891 | $468,891 | $96.28 | | |
| | Total Tax Rate: | 6.6934522006 | | | | | |
| | | | | Taxes w/Current Exemptions: | $3,138.50 | | |
| | | | | Taxes w/o Exemptions: | $3,138.50 | | |
Improvement / Building
| Improvement #1: | RESIDENTIAL | State Code: | Y | 774.5 sqft | Value: | $88,891 |
| Bathrooms: | 0 | Bedrooms: | 1 | | Ceiling: | DRYWALL PAINTED | Exterior Wall/Cover: | WOOD SIDING | | Floor Covering: | CARPET/VINYL 80-20 | Floor Structure: | WOOD W/SUBFLOOR | | Foundation: | WOOD BLOCKS | Heating: | BASEBOARD ELECTRIC | | Interior Finish: | DRYWALL PAINT | Plumbing Fixture Cnt: | 6 | | Roof Slope: | FLAT | Roof Structure/Cover: | CJ COMP ROLL |
|
| | Type | Description | Class CD | Sub Class CD | Year Built | Area |
| | BAS | BASE/MAIN FLOOR | 2 | 0 | 1958 | 774.5 |
| | OWR | OPEN WOOD PORCH W/STEPS/ROOF | 2 | 0 | 1958 | 91.6 |
| | UTY | STORAGE/UTILITY | 2 | 0 | 1958 | 180.0 |
| | oGAR | GARAGE | 2 | 0 | 1958 | 864.0 |
Sketch
Property Image
Land
| 1 | 32 | AC (03.01-09.99) | 4.0600 | 0.00 | 0.00 | 0.00 | 1.00 | $380,000 | $0 |
Roll Value History
| 2026 | N/A | N/A | N/A | N/A | N/A |
| 2025 | $88,891 | $380,000 | $0 | $468,891 | $468,891 |
| 2024 | $92,190 | $350,000 | $0 | $442,190 | $442,190 |
| 2023 | $93,599 | $330,000 | $0 | $423,599 | $423,599 |
| 2022 | $87,253 | $290,000 | $0 | $377,253 | $377,253 |
| 2021 | $78,675 | $230,000 | $0 | $308,675 | $308,675 |
| 2020 | $77,604 | $190,000 | $0 | $267,604 | $267,604 |
| 2019 | $58,697 | $250,000 | $0 | $308,697 | $308,697 |
| 2018 | $58,884 | $210,000 | $0 | $268,884 | $268,884 |
| 2017 | $59,235 | $190,000 | $0 | $249,235 | $249,235 |
| 2016 | $59,981 | $120,000 | $0 | $179,981 | $179,981 |
| 2015 | $60,728 | $120,000 | $0 | $180,728 | $180,728 |
| 2014 | $60,207 | $101,500 | $0 | $161,707 | $161,707 |
| 2013 | $61,080 | $109,620 | $0 | $170,700 | $170,700 |
| 2012 | $61,954 | $138,040 | $0 | $199,994 | $199,994 |
| 2011 | $62,827 | $138,040 | $0 | $200,867 | $200,867 |
| 2010 | $66,015 | $138,040 | $0 | $204,055 | $204,055 |
| 2009 | $68,745 | $178,640 | $0 | $247,385 | $247,385 |
| 2008 | $69,471 | $203,000 | $0 | $272,471 | $272,471 |
| 2007 | $70,196 | $156,310 | $0 | $226,506 | $226,506 |
Deed and Sales History
| 1 | 07/19/2019 | QCD | Quit Claim Deed | MACDONALD, BYRON | MACDONALD, BYRON | | | $0.00 | 39875 | 4469440 |
| 2 | 06/14/2019 | WD | Warranty Deed | ENDRES, SCOTT G & LEINA | MACDONALD, BYRON | | | $270,000.00 | 38991 | 4465475 |
| 3 | 05/01/1994 | QCD | Quit Claim Deed | ENDRES, SCOTT G | ENDRES, SCOTT G | | | $0.00 | 41961 | 94011476 |
| 4 | 06/01/1989 | WD | Warranty Deed | ISAACSON, EDWARD C | ENDRES, SCOTT G | | | $45,000.00 | 92318 | 89007951 |
| 5 | 03/01/1984 | REC | Real Estate Contract | GARVEY, MARY E | ISAACSON, EDWARD C | | | $28,000.00 | 40767 | 422476 |
| 6 | 02/01/1979 | OTHER | Other - Misc. Documents | Unknown | GARVEY, MARY E | | | $27,500.00 | 90543 | 347031 |
Payout Agreement
| No payout information available.. |