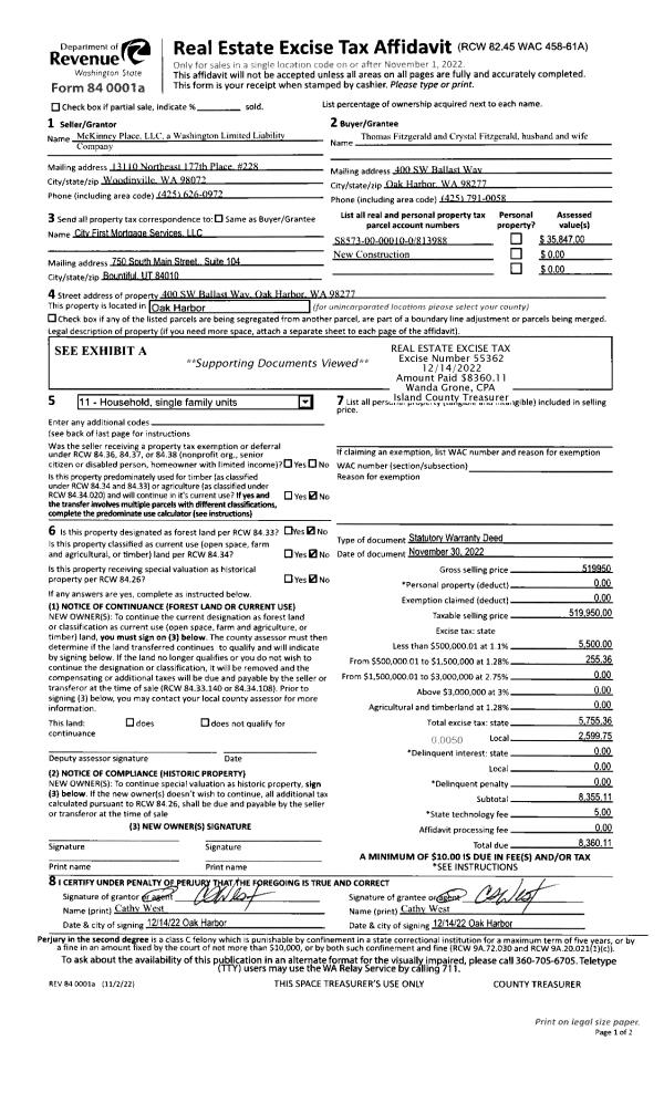
Property
Account |
| Property ID: | 131556 | Abbreviated Legal Description: | 89 - E/2 NE NW SE TGW EZ (TR 5 UNREC WHIDBEY HILLS) |
| Geographic ID: | R32917-218-3950 | Agent Code: | |
| Type: | Real | | |
| Tax Area: | 712 - APPRAISER-S Whid Schl Dist, outside Langley, improved, greater than 1 acre | Land Use Code | 11 |
| Open Space: | N | DFL | N |
| Historic Property: | N | Remodel Property: | N |
| Multi-Family Redevelopment: | N | | |
| Township: | 29 | Section: | 17 |
| Range: | R3 |
Location |
| Address: | 3083 BEARBERRY LN LANGLEY, WA 98260 | Mapsco: | |
| Neighborhood: | Cycle 4 | Map ID: | 779 |
| Neighborhood CD: | 4 |
Owner |
| Name: | COWGILL, MARY K | Owner ID: | 305210 |
| Mailing Address: | 4030 149TH AVE SE BELLEVUE, WA 98006 | % Ownership: | 100.0000000000% |
| | | Exemptions: | |
Taxes and Assessment Details
Values
| (+) Improvement Homesite Value: | + | $0 | |
| (+) Improvement Non-Homesite Value: | + | $66,227 | |
| (+) Land Homesite Value: | + | $0 | |
| (+) Land Non-Homesite Value: | + | $380,000 | |
| (+) Curr Use (HS): | + | $0 | $0 |
| (+) Curr Use (NHS): | + | $0 | $0 |
| | | -------------------------- | |
| (=) Market Value: | = | $446,227 | |
| (–) Productivity Loss: | – | $0 | |
| | | -------------------------- | |
| (=) Subtotal: | = | $446,227 | |
| (+) Senior Appraised Value: | + | $0 | |
| (+) Non-Senior Appraised Value: | + | $446,227 | |
| | | -------------------------- | |
| (=) Total Appraised Value: | = | $446,227 | |
| (–) Senior Exemption Loss: | – | $0 | |
| (–) Exemption Loss: | – | $0 | |
| | | -------------------------- | |
| (=) Taxable Value: | = | $446,227 | |
Taxing Jurisdiction
| Owner: | COWGILL, MARY K | | |
| % Ownership: | 100.0000000000% | | |
| Total Value: | $446,227 | | |
| Tax Area: | 712 - APPRAISER-S Whid Schl Dist, outside Langley, improved, greater than 1 acre |
| CF | Conservation Futures | 0.0316035091 | $446,227 | $446,227 | $14.10 | | |
| FIRE3 | Fire & Rescue Dist #3 S Whidbey GEN | 1.2004855531 | $446,227 | $446,227 | $535.69 | | |
| HOBOND | Hospital BOND | 0.1910887512 | $446,227 | $446,227 | $85.27 | | |
| HOGEN | Hospital GEN | 0.3902502903 | $446,227 | $446,227 | $174.14 | | |
| CE | County Current Expense | 0.3708482477 | $446,227 | $446,227 | $165.48 | | |
| CR | County Roads | 0.4584763726 | $446,227 | $446,227 | $204.58 | | |
| ISLANDEMS | Hospital GEN (EMS) | 0.5000000000 | $446,227 | $446,227 | $223.11 | | |
| LIB | Library Sno-Isle GEN | 0.3153421757 | $446,227 | $446,227 | $140.71 | | |
| PORTWHID | Port of S Whidbey GEN | 0.1094540357 | $446,227 | $446,227 | $48.84 | | |
| SCH206BOND | School 206 BOND | 0.3161759235 | $446,227 | $446,227 | $141.09 | | |
| SCH206MO | School 206 Enrichment | 0.4547169547 | $446,227 | $446,227 | $202.91 | | |
| ST | State School | 1.3035497053 | $446,227 | $446,227 | $581.68 | | |
| ST2 | State School Part 2 | 0.8169543533 | $446,227 | $446,227 | $364.55 | | |
| SWHIDPRBD | P & R S Whidbey BOND | 0.0152817568 | $446,227 | $446,227 | $6.82 | | |
| SWHIDPRBD2 | P & R S Whidbey BOND2 | 0.0138911264 | $446,227 | $446,227 | $6.20 | | |
| SWHIDPRMT | P & R S Whidbey GEN | 0.2053334452 | $446,227 | $446,227 | $91.63 | | |
| | Total Tax Rate: | 6.6934522006 | | | | | |
| | | | | Taxes w/Current Exemptions: | $2,986.80 | | |
| | | | | Taxes w/o Exemptions: | $2,986.80 | | |
Improvement / Building
| Improvement #1: | MANUFACTURED HOME | State Code: | Y | 1620.0 sqft | Value: | $66,227 |
| Bathrooms: | 0 | Bedrooms: | 0 | | Ceiling: | PLASTER PAINTED | Cooling: | EVAP NO DUCT | | Exterior Wall/Cover: | VINYL | Floor Covering: | CARPET 100% | | Floor Structure: | SLAB ON GRADE | Foundation: | SLAB | | Heating: | FHA ELECTRIC | Interior Finish: | PLASTER | | Plumbing Fixture Cnt: | 1 | Roof Slope: | FLAT | | Roof Structure/Cover: | CJ ALUMINIUM HEAVY |   |   |
|
| | Type | Description | Class CD | Sub Class CD | Year Built | Area |
| | BAS | BASE/MAIN FLOOR | 2 | 0 | 1989 | 1620.0 |
| | OWP | OPEN WOOD PORCH W/STEPS | 2 | 0 | 1989 | 432.0 |
| | OWP | OPEN WOOD PORCH W/STEPS | 2 | 0 | 1989 | 36.0 |
| | CPD | OPEN CARPORT DIRT FLOOR | 2 | 0 | 1989 | 256.0 |
Sketch
Property Image
Land
| 1 | 32 | AC (03.01-09.99) | 4.5600 | 0.00 | 0.00 | 0.00 | 1.00 | $380,000 | $0 |
Roll Value History
| 2026 | N/A | N/A | N/A | N/A | N/A |
| 2025 | $66,227 | $380,000 | $0 | $446,227 | $446,227 |
| 2024 | $69,236 | $350,000 | $0 | $419,236 | $419,236 |
| 2023 | $62,827 | $330,000 | $0 | $392,827 | $392,827 |
| 2022 | $60,445 | $290,000 | $0 | $350,445 | $350,445 |
| 2021 | $54,621 | $230,000 | $0 | $284,621 | $284,621 |
| 2020 | $55,028 | $190,000 | $0 | $245,028 | $245,028 |
| 2019 | $44,923 | $250,000 | $0 | $294,923 | $294,923 |
| 2018 | $47,288 | $210,000 | $0 | $257,288 | $257,288 |
| 2017 | $48,863 | $190,000 | $0 | $238,863 | $238,863 |
| 2016 | $50,440 | $135,000 | $0 | $185,440 | $185,440 |
| 2015 | $52,016 | $135,000 | $0 | $187,016 | $187,016 |
| 2014 | $57,706 | $114,000 | $0 | $171,706 | $171,706 |
| 2013 | $59,208 | $123,120 | $0 | $182,328 | $182,328 |
| 2012 | $60,711 | $155,040 | $0 | $215,751 | $215,751 |
| 2011 | $62,214 | $155,040 | $0 | $217,254 | $217,254 |
| 2010 | $54,960 | $155,040 | $0 | $210,000 | $210,000 |
| 2009 | $57,472 | $200,640 | $0 | $258,112 | $258,112 |
| 2008 | $62,610 | $228,000 | $0 | $290,610 | $290,610 |
| 2007 | $64,629 | $175,560 | $0 | $240,189 | $240,189 |
Deed and Sales History
| 1 | 07/20/2022 | DEED PA | Deed of Personal Administrator | SVACEK, JOHN | COWGILL, MARY K | | | $150,000.00 | 53944 | 4548857 |
| 2 | 10/01/1992 | OTHER | Other - Misc. Documents | SVACEK, JOHN T | SVACEK, JOHN T | | | $30,000.00 | 23875 | 0 |
| 3 | 07/01/1992 | DECREE | Divorce Decree/Legal Separation | SVACEK, JOHN T | SVACEK, JOHN T | | | $0.00 | 22679 | 92012928 |
| 4 | 02/01/1992 | WD | Warranty Deed | CASSOT, ROBERT W | SVACEK, JOHN T | | | $30,000.00 | 20610 | 92002965 |
| 5 | 06/01/1990 | WD | Warranty Deed | SAVAGE, MARIAN L | CASSOT, ROBERT W | | | $35,000.00 | 3458 | 90011243 |
| 6 | 06/01/1989 | QCD | Quit Claim Deed | MUNIZ, LOUIS | SAVAGE, MARIAN L | | | $0.00 | 92319 | 89007953 |
| 7 | 06/01/1989 | WD | Warranty Deed | MUNIZ, LOUIS | MUNIZ, LOUIS | | | $20,000.00 | 92320 | 89007955 |
| 8 | 06/01/1989 | QCD | Quit Claim Deed | SAVAGE, ELISSA L | MUNIZ, LOUIS | | | $0.00 | 92365 | 89008109 |
| 9 | 02/01/1983 | QCD | Quit Claim Deed | COLONEL, MARIAN L | SAVAGE, ELISSA L | | | $0.00 | 30485 | 406410 |
| 10 | 01/01/1979 | OTHER | Other - Misc. Documents | Unknown | COLONEL, MARIAN L | | | $17,500.00 | 90276 | 346194 |
Payout Agreement
| No payout information available.. |