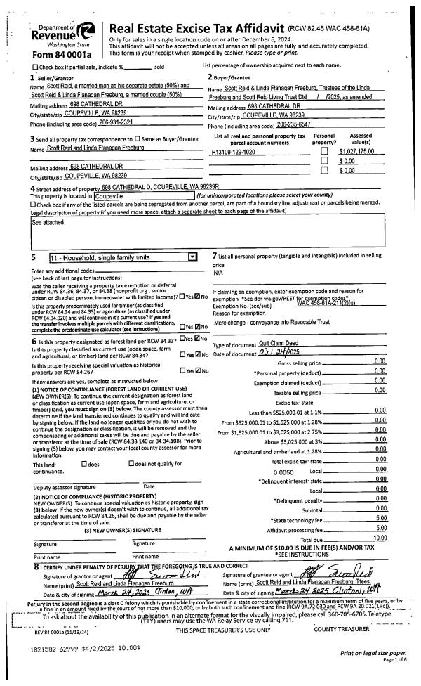
Property
Account |
| Property ID: | 132118 | Abbreviated Legal Description: | 10 - N488' OF E446.57' OF W864.57' OF NW NW TGW & SUB RIGHT OF WAY RECORDED ON AFN 177754 |
| Geographic ID: | R32917-493-0810 | Agent Code: | |
| Type: | Real | | |
| Tax Area: | 712 - APPRAISER-S Whid Schl Dist, outside Langley, improved, greater than 1 acre | Land Use Code | 11 |
| Open Space: | N | DFL | N |
| Historic Property: | N | Remodel Property: | N |
| Multi-Family Redevelopment: | N | | |
| Township: | 29 | Section: | 17 |
| Range: | R3 |
Location |
| Address: | 5629 BAYVIEW RD LANGLEY, WA 98260 | Mapsco: | |
| Neighborhood: | Cycle 4 | Map ID: | 780 |
| Neighborhood CD: | 4 |
Owner |
| Name: | MURPHY, MAUREEN P | Owner ID: | 312411 |
| Mailing Address: | 5269 BAYVIEW RD LANGLEY, WA 98260 | % Ownership: | 100.0000000000% |
| | | Exemptions: | |
Taxes and Assessment Details
Values
| (+) Improvement Homesite Value: | + | $0 | |
| (+) Improvement Non-Homesite Value: | + | $413,062 | |
| (+) Land Homesite Value: | + | $0 | |
| (+) Land Non-Homesite Value: | + | $420,000 | |
| (+) Curr Use (HS): | + | $0 | $0 |
| (+) Curr Use (NHS): | + | $0 | $0 |
| | | -------------------------- | |
| (=) Market Value: | = | $833,062 | |
| (–) Productivity Loss: | – | $0 | |
| | | -------------------------- | |
| (=) Subtotal: | = | $833,062 | |
| (+) Senior Appraised Value: | + | $0 | |
| (+) Non-Senior Appraised Value: | + | $833,062 | |
| | | -------------------------- | |
| (=) Total Appraised Value: | = | $833,062 | |
| (–) Senior Exemption Loss: | – | $0 | |
| (–) Exemption Loss: | – | $0 | |
| | | -------------------------- | |
| (=) Taxable Value: | = | $833,062 | |
Taxing Jurisdiction
| Owner: | MURPHY, MAUREEN P | | |
| % Ownership: | 100.0000000000% | | |
| Total Value: | $833,062 | | |
| Tax Area: | 712 - APPRAISER-S Whid Schl Dist, outside Langley, improved, greater than 1 acre |
| CF | Conservation Futures | 0.0316035091 | $833,062 | $833,062 | $26.33 | | |
| FIRE3 | Fire & Rescue Dist #3 S Whidbey GEN | 1.2004855531 | $833,062 | $833,062 | $1,000.08 | | |
| HOBOND | Hospital BOND | 0.1910887512 | $833,062 | $833,062 | $159.19 | | |
| HOGEN | Hospital GEN | 0.3902502903 | $833,062 | $833,062 | $325.10 | | |
| CE | County Current Expense | 0.3708482477 | $833,062 | $833,062 | $308.94 | | |
| CR | County Roads | 0.4584763726 | $833,062 | $833,062 | $381.94 | | |
| ISLANDEMS | Hospital GEN (EMS) | 0.5000000000 | $833,062 | $833,062 | $416.53 | | |
| LIB | Library Sno-Isle GEN | 0.3153421757 | $833,062 | $833,062 | $262.70 | | |
| PORTWHID | Port of S Whidbey GEN | 0.1094540357 | $833,062 | $833,062 | $91.18 | | |
| SCH206BOND | School 206 BOND | 0.3161759235 | $833,062 | $833,062 | $263.39 | | |
| SCH206MO | School 206 Enrichment | 0.4547169547 | $833,062 | $833,062 | $378.81 | | |
| ST | State School | 1.3035497053 | $833,062 | $833,062 | $1,085.94 | | |
| ST2 | State School Part 2 | 0.8169543533 | $833,062 | $833,062 | $680.57 | | |
| SWHIDPRBD | P & R S Whidbey BOND | 0.0152817568 | $833,062 | $833,062 | $12.73 | | |
| SWHIDPRBD2 | P & R S Whidbey BOND2 | 0.0138911264 | $833,062 | $833,062 | $11.57 | | |
| SWHIDPRMT | P & R S Whidbey GEN | 0.2053334452 | $833,062 | $833,062 | $171.06 | | |
| | Total Tax Rate: | 6.6934522006 | | | | | |
| | | | | Taxes w/Current Exemptions: | $5,576.06 | | |
| | | | | Taxes w/o Exemptions: | $5,576.06 | | |
Improvement / Building
| Improvement #1: | RESIDENTIAL | State Code: | Y | 2925.4 sqft | Value: | $413,062 |
| Bathrooms: | 2 | Bedrooms: | 3 | | Ceiling: | DRYWALL PAINTED | Exterior Wall/Cover: | METAL | | Floor Covering: | LAMINATE/LVP | Floor Structure: | WOOD W/SUBFLOOR | | Foundation: | CONCRETE | Heating: | HEAT PUMP | | Interior Finish: | DRYWALL PAINT | Plumbing Fixture Cnt: | 9 | | Roof Slope: | 6" IN 12" | Roof Structure/Cover: | CJ ALUMINIUM HEAVY |
|
| | Type | Description | Class CD | Sub Class CD | Year Built | Area |
| | BAS | BASE/MAIN FLOOR | 3 | 0 | 1945 | 1504.9 |
| | OP4 | OPEN PORCH W/CEILING-ROOF | 3 | 0 | 1945 | 64.0 |
| | OWC | OPEN WOOD PORCH W/STEPS/ROOF/C | 3 | 0 | 1945 | 64.0 |
| | DWN | DOWNSTAIRS LIVING AREA | 3 | 0 | 1945 | 1180.5 |
| | UTY | STORAGE/UTILITY | 3 | 0 | 1945 | 240.0 |
| | LOF | LOFT | 3 | 0 | 1945 | 240.0 |
| | CPD | OPEN CARPORT DIRT FLOOR | 3 | 0 | 1945 | 160.0 |
Sketch
| No sketches available for this property. |
Property Image
Land
| 1 | 32 | AC (03.01-09.99) | 5.0000 | 0.00 | 0.00 | 0.00 | 1.00 | $420,000 | $0 |
Roll Value History
| 2026 | N/A | N/A | N/A | N/A | N/A |
| 2025 | $413,062 | $420,000 | $0 | $833,062 | $833,062 |
| 2024 | $310,627 | $390,000 | $0 | $700,627 | $700,627 |
| 2023 | $314,810 | $350,000 | $0 | $664,810 | $664,810 |
| 2022 | $288,859 | $350,000 | $0 | $638,859 | $638,859 |
| 2021 | $254,476 | $300,000 | $0 | $554,476 | $554,476 |
| 2020 | $249,186 | $260,000 | $0 | $509,186 | $509,186 |
| 2019 | $196,728 | $300,000 | $0 | $496,728 | $496,728 |
| 2018 | $197,350 | $250,000 | $0 | $447,350 | $447,350 |
| 2017 | $197,626 | $200,000 | $0 | $397,626 | $397,626 |
| 2016 | $200,095 | $165,000 | $0 | $365,095 | $365,095 |
| 2015 | $202,565 | $165,000 | $0 | $367,565 | $367,565 |
| 2014 | $195,959 | $175,000 | $0 | $370,959 | $370,959 |
| 2013 | $198,324 | $170,000 | $0 | $368,324 | $368,324 |
| 2012 | $200,690 | $170,000 | $0 | $370,690 | $370,690 |
| 2011 | $203,055 | $170,000 | $0 | $373,055 | $373,055 |
| 2010 | $191,981 | $170,000 | $0 | $361,981 | $361,981 |
| 2009 | $257,605 | $220,000 | $0 | $477,605 | $477,605 |
| 2008 | $245,010 | $250,000 | $0 | $495,010 | $495,010 |
| 2007 | $245,383 | $192,500 | $0 | $437,883 | $437,883 |
Deed and Sales History
| 1 | 05/14/2024 | WD | Warranty Deed | MANN, WILLIAM GIBSON | MURPHY, MAUREEN P | | | $775,000.00 | 59995 | 4572461 |
| 2 | 01/17/2013 | TRUSTEED | Trustee's Deed | BERTRAM TRUSTEE, DIANNE | MANN, WILLIAM GIBSON | | | $0.00 | 10211 | 4332002 |
| 3 | 01/17/2013 | PRD | Personal Representatives Deed | BERTRAM TRUSTEE, DIANNE | BERTRAM TRUSTEE, DIANNE | | | $0.00 | 10180 | 4331733 |
| 4 | 10/22/2012 | QCD | Quit Claim Deed | BROWN, ROBERT | BERTRAM TRUSTEE, DIANNE | | | $0.00 | 9212 | 4325537 |
| 5 | 05/07/2009 | WD | Warranty Deed | LLC, BAYVIEW CORNER | BROWN, ROBERT E | | | $340,000.00 | 91026 | 4251002 |
| 6 | 06/20/2002 | WD | Warranty Deed | DICKERSON, VIRGINIA ANN | LLC, BAYVIEW CORNER | | | $225,000.00 | 22616 | 4024976 |
| 7 | 10/29/2001 | 5 | DNU - Marriage License/Name Change | SWENSON, VIRGINIA L | DICKERSON, VIRGINIA ANN | | | $0.00 | 69169 | 0 |
| 8 | 05/01/1996 | QCD | Quit Claim Deed | SWENSON, VIRGINIA | SWENSON, VIRGINIA L | | | $0.00 | 61681 | 96008401 |
| 9 | 03/01/1984 | OTHER | Other - Misc. Documents | SWENSON, CHESTER J | SWENSON, VIRGINIA | | | $0.00 | 60524 | 0 |
| 10 | 01/01/1900 | OTHER | Other - Misc. Documents | Unknown | SWENSON, CHESTER J | | | $0.00 | 0 | 0 |
Payout Agreement
| No payout information available.. |