Property
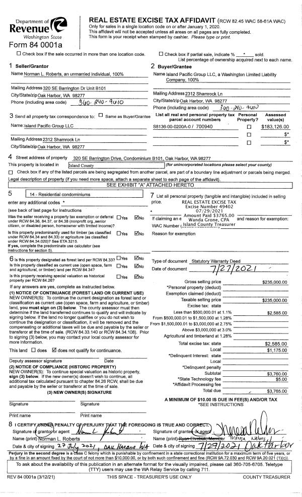
Account |
| Property ID: | 132145 | Abbreviated Legal Description: | 2 - IN S1/2 SE:BG E1/4 CR SEC 18 S2596.05'TO SE CR SEC 18 N87*W1080.31'TP N N87*W332.02' N2*E334.17' S87*E327.43' S1*W335.22'TPB SUB EZ |
| Geographic ID: | R32918-012-4490 | Agent Code: | |
| Type: | Real | | |
| Tax Area: | 712 - APPRAISER-S Whid Schl Dist, outside Langley, improved, greater than 1 acre | Land Use Code | 11 |
| Open Space: | N | DFL | N |
| Historic Property: | N | Remodel Property: | N |
| Multi-Family Redevelopment: | N | | |
| Township: | 29 | Section: | 18 |
| Range: | R3 |
Location |
| Address: | 2707 GABELEIN RD CLINTON, WA 98236 | Mapsco: | |
| Neighborhood: | Cycle 4 | Map ID: | 784 |
| Neighborhood CD: | 4 |
Owner |
| Name: | LADD, BECKY A | Owner ID: | 281030 |
| Mailing Address: | 2707 B GABELEIN RD CLINTON, WA 98236 | % Ownership: | 100.0000000000% |
| | | Exemptions: | |
Taxes and Assessment Details
Values
| (+) Improvement Homesite Value: | + | $0 | |
| (+) Improvement Non-Homesite Value: | + | $664,610 | |
| (+) Land Homesite Value: | + | $0 | |
| (+) Land Non-Homesite Value: | + | $380,000 | |
| (+) Curr Use (HS): | + | $0 | $0 |
| (+) Curr Use (NHS): | + | $0 | $0 |
| | | -------------------------- | |
| (=) Market Value: | = | $1,044,610 | |
| (–) Productivity Loss: | – | $0 | |
| | | -------------------------- | |
| (=) Subtotal: | = | $1,044,610 | |
| (+) Senior Appraised Value: | + | $0 | |
| (+) Non-Senior Appraised Value: | + | $1,044,610 | |
| | | -------------------------- | |
| (=) Total Appraised Value: | = | $1,044,610 | |
| (–) Senior Exemption Loss: | – | $0 | |
| (–) Exemption Loss: | – | $0 | |
| | | -------------------------- | |
| (=) Taxable Value: | = | $1,044,610 | |
Taxing Jurisdiction
| Owner: | LADD, BECKY A | | |
| % Ownership: | 100.0000000000% | | |
| Total Value: | $1,044,610 | | |
| Tax Area: | 712 - APPRAISER-S Whid Schl Dist, outside Langley, improved, greater than 1 acre |
| CF | Conservation Futures | 0.0316035091 | $1,044,610 | $1,044,610 | $33.01 | | |
| FIRE3 | Fire & Rescue Dist #3 S Whidbey GEN | 1.2004855531 | $1,044,610 | $1,044,610 | $1,254.04 | | |
| HOBOND | Hospital BOND | 0.1910887512 | $1,044,610 | $1,044,610 | $199.61 | | |
| HOGEN | Hospital GEN | 0.3902502903 | $1,044,610 | $1,044,610 | $407.66 | | |
| CE | County Current Expense | 0.3708482477 | $1,044,610 | $1,044,610 | $387.39 | | |
| CR | County Roads | 0.4584763726 | $1,044,610 | $1,044,610 | $478.93 | | |
| ISLANDEMS | Hospital GEN (EMS) | 0.5000000000 | $1,044,610 | $1,044,610 | $522.31 | | |
| LIB | Library Sno-Isle GEN | 0.3153421757 | $1,044,610 | $1,044,610 | $329.41 | | |
| PORTWHID | Port of S Whidbey GEN | 0.1094540357 | $1,044,610 | $1,044,610 | $114.34 | | |
| SCH206BOND | School 206 BOND | 0.3161759235 | $1,044,610 | $1,044,610 | $330.28 | | |
| SCH206MO | School 206 Enrichment | 0.4547169547 | $1,044,610 | $1,044,610 | $475.00 | | |
| ST | State School | 1.3035497053 | $1,044,610 | $1,044,610 | $1,361.70 | | |
| ST2 | State School Part 2 | 0.8169543533 | $1,044,610 | $1,044,610 | $853.40 | | |
| SWHIDPRBD | P & R S Whidbey BOND | 0.0152817568 | $1,044,610 | $1,044,610 | $15.96 | | |
| SWHIDPRBD2 | P & R S Whidbey BOND2 | 0.0138911264 | $1,044,610 | $1,044,610 | $14.51 | | |
| SWHIDPRMT | P & R S Whidbey GEN | 0.2053334452 | $1,044,610 | $1,044,610 | $214.49 | | |
| | Total Tax Rate: | 6.6934522006 | | | | | |
| | | | | Taxes w/Current Exemptions: | $6,992.04 | | |
| | | | | Taxes w/o Exemptions: | $6,992.04 | | |
Improvement / Building
| Improvement #1: | RESIDENTIAL | State Code: | Y | 3072.0 sqft | Value: | $352,190 |
| Bathrooms: | 2 | Bedrooms: | 4 | | Ceiling: | DRY WALL SPRAYED | Cooling: | HEAT PUMP/CONV/V | | Exterior Wall/Cover: | PLY/HARDBOARD T-111 | Floor Covering: | CARPET/VINYL 80-20 | | Floor Structure: | SLAB ON GRADE | Foundation: | SLAB/CONCRETE | | Interior Finish: | DRYWALL PAINT | Plumbing Fixture Cnt: | 9 | | Roof Slope: | 4" IN 12" | Roof Structure/Cover: | CJ ALUMINIUM HEAVY |
|
| | Type | Description | Class CD | Sub Class CD | Year Built | Area |
| | BAS | BASE/MAIN FLOOR | 3 | 0 | 1960 | 3072.0 |
| | OP4 | OPEN PORCH W/CEILING-ROOF | 3 | 0 | 1960 | 168.0 |
| | AGR | ATTACHED GARAGE | 3 | 0 | 1960 | 480.0 |
| | ENP | ENCLOSED PORCH | 3 | 0 | 1960 | 160.0 |
| | DGR | DETACHED GARAGE | 3 | 0 | 1960 | 1800.0 |
| Improvement #2: | RESIDENTIAL | State Code: | Y | 1024.8 sqft | Value: | $312,420 |
| Bathrooms: | 1 | Bedrooms: | 1 | | Ceiling: | DRYWALL PAINTED | Cooling: | HEAT PUMP/CONV/V | | Exterior Wall/Cover: | WOOD SIDING | Floor Covering: | CERAMIC TILE/CPT 40-60 | | Floor Structure: | WOOD W/SUBFLOOR | Foundation: | CONCRETE | | Interior Finish: | DRYWALL PAINT | Plumbing Fixture Cnt: | 6 | | Roof Slope: | 8" IN 12" | Roof Structure/Cover: | BEAM ASPHALT |
|
| | Type | Description | Class CD | Sub Class CD | Year Built | Area |
| | BAS | BASE/MAIN FLOOR | 4 | 0 | 2003 | 1024.8 |
| | AGR | ATTACHED GARAGE | 4 | 0 | 2003 | 1000.3 |
| | OWR | OPEN WOOD PORCH W/STEPS/ROOF | 4 | 0 | 2003 | 111.7 |
| | OWR | OPEN WOOD PORCH W/STEPS/ROOF | 4 | 0 | 2003 | 54.1 |
Sketch
Property Image
Land
| 1 | 18 | AC (02.01-03.00) | 0.0000 | 0.00 | 0.00 | 0.00 | 1.00 | $380,000 | $0 |
Roll Value History
| 2026 | N/A | N/A | N/A | N/A | N/A |
| 2025 | $664,610 | $380,000 | $0 | $1,044,610 | $1,044,610 |
| 2024 | $673,376 | $360,000 | $0 | $1,033,376 | $1,033,376 |
| 2023 | $682,141 | $330,000 | $0 | $1,012,141 | $1,012,141 |
| 2022 | $625,612 | $280,000 | $0 | $905,612 | $905,612 |
| 2021 | $550,909 | $260,000 | $0 | $810,909 | $810,909 |
| 2020 | $470,442 | $230,000 | $0 | $700,442 | $700,442 |
| 2019 | $360,929 | $260,000 | $0 | $620,929 | $620,929 |
| 2018 | $362,137 | $230,000 | $0 | $592,137 | $592,137 |
| 2017 | $364,430 | $180,000 | $0 | $544,430 | $544,430 |
| 2016 | $332,729 | $165,000 | $0 | $497,729 | $497,729 |
| 2015 | $337,294 | $165,000 | $0 | $502,294 | $502,294 |
| 2014 | $309,763 | $157,250 | $0 | $467,013 | $467,013 |
| 2013 | $313,947 | $157,250 | $0 | $471,197 | $471,197 |
| 2012 | $318,135 | $157,250 | $0 | $475,385 | $475,385 |
| 2011 | $322,319 | $185,000 | $0 | $507,319 | $507,319 |
| 2010 | $344,159 | $185,000 | $0 | $529,159 | $529,159 |
| 2009 | $358,000 | $225,000 | $0 | $583,000 | $583,000 |
| 2008 | $361,147 | $245,000 | $0 | $606,147 | $606,147 |
| 2007 | $363,951 | $173,040 | $0 | $536,991 | $536,991 |
Deed and Sales History
| 1 | 06/28/2017 | PRD | Personal Representatives Deed | LOOMIS, TED A | LADD, BECKY A | | | $0.00 | 30252 | 4426554 |
| 2 | 09/09/2016 | PRD | Personal Representatives Deed | LOOMIS, TED A | LOOMIS, TED A | | | $0.00 | 26174 | 4407572 |
| 3 | 01/01/1900 | OTHER | Other - Misc. Documents | Unknown | LOOMIS, TED A | | | $0.00 | 81913 | 3319940 |
Payout Agreement
| No payout information available.. |