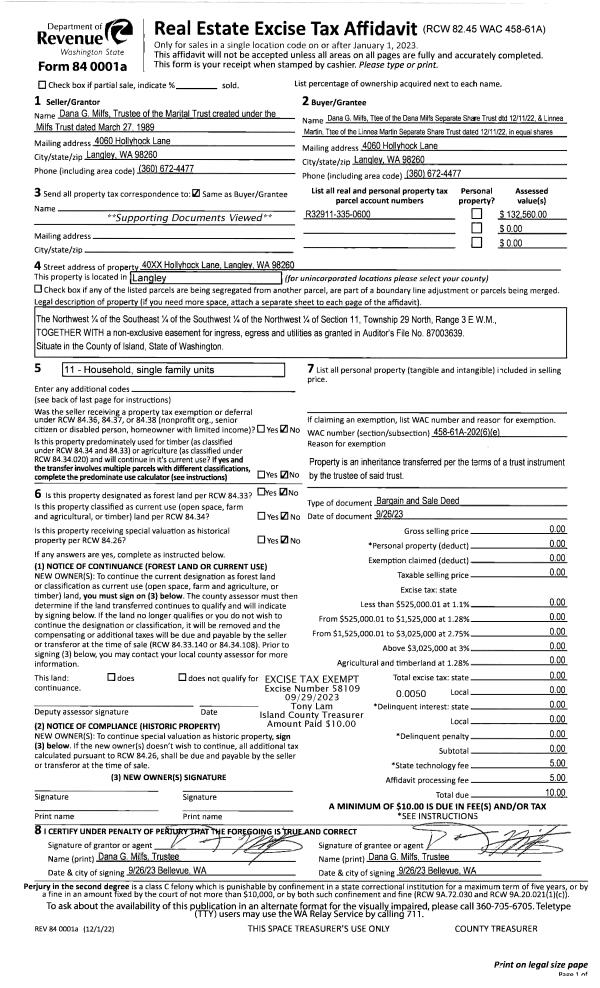
Property
Account |
| Property ID: | 132234 | Abbreviated Legal Description: | R3 T 29 S 18 TGW CONSERVATION EZ AF#4241742 LOT B BLC AF#4514873 LOT B BLC 4514974 LOT B BLC AF#4514876 LOT B BLC AF#4514878 LOT B BLC AF#4515933 |
| Geographic ID: | R32918-067-2360 | Agent Code: | |
| Type: | Real | | |
| Tax Area: | 812 - APPRAISER-S Whid Schl Dist, outside Langley, improved, greater than 1 acre | Land Use Code | 11 |
| Open Space: | N | DFL | N |
| Historic Property: | N | Remodel Property: | N |
| Multi-Family Redevelopment: | N | | |
| Township: | 29 | Section: | 18 |
| Range: | R3 |
Location |
| Address: | 2465 SUNLIGHT BEACH RD CLINTON, WA 98236 | Mapsco: | |
| Neighborhood: | Cycle 4 | Map ID: | 783 |
| Neighborhood CD: | 4 |
Owner |
| Name: | KRAFT TTEE, T. J. | Owner ID: | 310542 |
| Mailing Address: | 2482 SUNLIGHT BEACH RD CLINTON, WA 98236 | % Ownership: | 100.0000000000% |
| | | Exemptions: | |
Taxes and Assessment Details
Values
| (+) Improvement Homesite Value: | + | $0 | |
| (+) Improvement Non-Homesite Value: | + | $48,000 | |
| (+) Land Homesite Value: | + | $0 | |
| (+) Land Non-Homesite Value: | + | $45,950 | |
| (+) Curr Use (HS): | + | $0 | $0 |
| (+) Curr Use (NHS): | + | $0 | $0 |
| | | -------------------------- | |
| (=) Market Value: | = | $93,950 | |
| (–) Productivity Loss: | – | $0 | |
| | | -------------------------- | |
| (=) Subtotal: | = | $93,950 | |
| (+) Senior Appraised Value: | + | $0 | |
| (+) Non-Senior Appraised Value: | + | $93,950 | |
| | | -------------------------- | |
| (=) Total Appraised Value: | = | $93,950 | |
| (–) Senior Exemption Loss: | – | $0 | |
| (–) Exemption Loss: | – | $0 | |
| | | -------------------------- | |
| (=) Taxable Value: | = | $93,950 | |
Taxing Jurisdiction
| Owner: | KRAFT TTEE, T. J. | | |
| % Ownership: | 100.0000000000% | | |
| Total Value: | $93,950 | | |
| Tax Area: | 812 - APPRAISER-S Whid Schl Dist, outside Langley, improved, greater than 1 acre |
| CF | Conservation Futures | 0.0316035091 | $93,950 | $93,950 | $2.97 | | |
| FIRE3 | Fire & Rescue Dist #3 S Whidbey GEN | 1.2004855531 | $93,950 | $93,950 | $112.79 | | |
| HOBOND | Hospital BOND | 0.1910887512 | $93,950 | $93,950 | $17.95 | | |
| HOGEN | Hospital GEN | 0.3902502903 | $93,950 | $93,950 | $36.66 | | |
| CE | County Current Expense | 0.3708482477 | $93,950 | $93,950 | $34.84 | | |
| CR | County Roads | 0.4584763726 | $93,950 | $93,950 | $43.07 | | |
| ISLANDEMS | Hospital GEN (EMS) | 0.5000000000 | $93,950 | $93,950 | $46.98 | | |
| LIB | Library Sno-Isle GEN | 0.3153421757 | $93,950 | $93,950 | $29.63 | | |
| PORTWHID | Port of S Whidbey GEN | 0.1094540357 | $93,950 | $93,950 | $10.28 | | |
| SCH206BOND | School 206 BOND | 0.3161759235 | $93,950 | $93,950 | $29.70 | | |
| SCH206MO | School 206 Enrichment | 0.4547169547 | $93,950 | $93,950 | $42.72 | | |
| ST | State School | 1.3035497053 | $93,950 | $93,950 | $122.47 | | |
| ST2 | State School Part 2 | 0.8169543533 | $93,950 | $93,950 | $76.75 | | |
| SWHIDPRBD | P & R S Whidbey BOND | 0.0152817568 | $93,950 | $93,950 | $1.44 | | |
| SWHIDPRBD2 | P & R S Whidbey BOND2 | 0.0138911264 | $93,950 | $93,950 | $1.31 | | |
| SWHIDPRMT | P & R S Whidbey GEN | 0.2053334452 | $93,950 | $93,950 | $19.29 | | |
| | Total Tax Rate: | 6.6934522006 | | | | | |
| | | | | Taxes w/Current Exemptions: | $628.85 | | |
| | | | | Taxes w/o Exemptions: | $628.85 | | |
Improvement / Building
| Improvement #1: | RESIDENTIAL | State Code: | Y | 0.0 sqft | Value: | $48,000 |
Sketch
| No sketches available for this property. |
Property Image
Land
| 1 | 37 | AC (31.00-+) | 45.9500 | 2001582.00 | 0.00 | 0.00 | 1.00 | $45,950 | $0 |
Roll Value History
| 2026 | N/A | N/A | N/A | N/A | N/A |
| 2025 | $48,000 | $45,950 | $0 | $93,950 | $93,950 |
| 2024 | $48,000 | $45,950 | $0 | $93,950 | $93,950 |
| 2023 | $48,000 | $45,950 | $0 | $93,950 | $93,950 |
| 2022 | $48,000 | $45,950 | $0 | $93,950 | $93,950 |
| 2021 | $48,000 | $45,950 | $0 | $93,950 | $93,950 |
| 2020 | $48,000 | $410,000 | $7,139 | $55,139 | $55,139 |
| 2019 | $48,000 | $410,000 | $7,139 | $55,139 | $55,139 |
| 2018 | $48,000 | $400,000 | $7,139 | $55,139 | $55,139 |
| 2017 | $48,000 | $400,000 | $7,139 | $55,139 | $55,139 |
| 2016 | $48,000 | $320,000 | $7,139 | $55,139 | $55,139 |
| 2015 | $48,000 | $300,000 | $7,139 | $55,139 | $55,139 |
| 2014 | $0 | $88,557 | $7,139 | $7,139 | $7,139 |
| 2013 | $0 | $88,557 | $7,139 | $7,139 | $7,139 |
| 2012 | $0 | $36,561 | $7,139 | $7,139 | $7,139 |
| 2011 | $0 | $43,013 | $7,139 | $7,139 | $7,139 |
| 2010 | $0 | $43,013 | $7,139 | $7,139 | $7,139 |
| 2009 | $0 | $43,013 | $7,139 | $7,139 | $7,139 |
| 2008 | $0 | $43,013 | $7,139 | $7,139 | $7,139 |
| 2007 | $0 | $43,013 | $7,139 | $7,139 | $7,139 |
Deed and Sales History
| 1 | 10/31/2023 | WD | Warranty Deed | BLOODLINE-11 LLC | KRAFT TTEE, T. J. | | | $90,000.00 | 58394 | 4566291 |
|   | |
| 2 | 05/30/2013 | QCD | Quit Claim Deed | LE-20 LLC | BLOODLINE-11 LLC | | | $0.00 | 11821 | 4342877 |
| 3 | 04/29/2013 | WD | Warranty Deed | GABELEIN, EVA MAE | LE-20 LLC | | | $425,000.00 | 11227 | 4339321 |
|   | |
| 4 | 10/13/2008 | EZ | Easement | GABELEIN, EVA MAE | GABELEIN, EVA MAE | | | $348,660.00 | 82827 | 4239166 |
| 5 | 02/21/2005 | QCD | Quit Claim Deed | GABELEIN, RAYMOND | GABELEIN, EVA MAE | | | $0.00 | 53212 | 4139877 |
| 6 | 06/01/1988 | QCD | Quit Claim Deed | GABELEIN, RAYMOND E | GABELEIN, RAYMOND | | | $0.00 | 82447 | 88009244 |
| 7 | 04/01/1988 | OTHER | Other - Misc. Documents | KOHLWES, TOM | GABELEIN, RAYMOND E | | | $0.00 | 81114 | 88004236 |
| 8 | 01/01/1900 | OTHER | Other - Misc. Documents | Unknown | KOHLWES, TOM | | | $0.00 | 0 | 0 |
Payout Agreement
| No payout information available.. |