Property
Account |
| Property ID: | 132608 | Abbreviated Legal Description: | 8.5400 Acres ins Section 18s Township 29s Range R3s LOT B BLC AF#4523005;s |
| Geographic ID: | R32918-242-3790 | Agent Code: | |
| Type: | Real | | |
| Tax Area: | 819 - APPRAISER-S Whid Schl Dist, outside Langley, vacant & 50 acres or less | Land Use Code | 91 |
| Open Space: | N | DFL | N |
| Historic Property: | N | Remodel Property: | N |
| Multi-Family Redevelopment: | N | | |
| Township: | 29 | Section: | 18 |
| Range: | R3 |
Location |
| Address: | | Mapsco: | |
| Neighborhood: | Cycle 4 | Map ID: | 784 |
| Neighborhood CD: | 4 |
Owner |
| Name: | PIEDMONT, ARIEL E | Owner ID: | 277553 |
| Mailing Address: | KRISTEN D KLASSEN 5818 BAYVIEW RD CLINTON, WA 98236 | % Ownership: | 100.0000000000% |
| | | Exemptions: | |
Taxes and Assessment Details
Values
| (+) Improvement Homesite Value: | + | $0 | |
| (+) Improvement Non-Homesite Value: | + | $0 | |
| (+) Land Homesite Value: | + | $0 | |
| (+) Land Non-Homesite Value: | + | $280,000 | |
| (+) Curr Use (HS): | + | $0 | $0 |
| (+) Curr Use (NHS): | + | $0 | $0 |
| | | -------------------------- | |
| (=) Market Value: | = | $280,000 | |
| (–) Productivity Loss: | – | $0 | |
| | | -------------------------- | |
| (=) Subtotal: | = | $280,000 | |
| (+) Senior Appraised Value: | + | $0 | |
| (+) Non-Senior Appraised Value: | + | $280,000 | |
| | | -------------------------- | |
| (=) Total Appraised Value: | = | $280,000 | |
| (–) Senior Exemption Loss: | – | $0 | |
| (–) Exemption Loss: | – | $0 | |
| | | -------------------------- | |
| (=) Taxable Value: | = | $280,000 | |
Taxing Jurisdiction
| Owner: | PIEDMONT, ARIEL E | | |
| % Ownership: | 100.0000000000% | | |
| Total Value: | $280,000 | | |
| Tax Area: | 819 - APPRAISER-S Whid Schl Dist, outside Langley, vacant & 50 acres or less |
| CF | Conservation Futures | 0.0316035091 | $280,000 | $280,000 | $8.85 | | |
| HOBOND | Hospital BOND | 0.1910887512 | $280,000 | $280,000 | $53.50 | | |
| HOGEN | Hospital GEN | 0.3902502903 | $280,000 | $280,000 | $109.27 | | |
| CE | County Current Expense | 0.3708482477 | $280,000 | $280,000 | $103.84 | | |
| CR | County Roads | 0.4584763726 | $280,000 | $280,000 | $128.37 | | |
| ISLANDEMS | Hospital GEN (EMS) | 0.5000000000 | $280,000 | $280,000 | $140.00 | | |
| LIB | Library Sno-Isle GEN | 0.3153421757 | $280,000 | $280,000 | $88.30 | | |
| PORTWHID | Port of S Whidbey GEN | 0.1094540357 | $280,000 | $280,000 | $30.65 | | |
| SCH206BOND | School 206 BOND | 0.3161759235 | $280,000 | $280,000 | $88.53 | | |
| SCH206MO | School 206 Enrichment | 0.4547169547 | $280,000 | $280,000 | $127.32 | | |
| ST | State School | 1.3035497053 | $280,000 | $280,000 | $364.99 | | |
| ST2 | State School Part 2 | 0.8169543533 | $280,000 | $280,000 | $228.75 | | |
| SWHIDPRBD | P & R S Whidbey BOND | 0.0152817568 | $280,000 | $280,000 | $4.28 | | |
| SWHIDPRBD2 | P & R S Whidbey BOND2 | 0.0138911264 | $280,000 | $280,000 | $3.89 | | |
| SWHIDPRMT | P & R S Whidbey GEN | 0.2053334452 | $280,000 | $280,000 | $57.49 | | |
| | Total Tax Rate: | 5.4929666475 | | | | | |
| | | | | Taxes w/Current Exemptions: | $1,538.03 | | |
| | | | | Taxes w/o Exemptions: | $1,538.03 | | |
Improvement / Building
Sketch
| No sketches available for this property. |
Property Image
Land
| 1 | 32 | AC (03.01-09.99) | 2.0000 | 326700.00 | 0.00 | 0.00 | 1.00 | $280,000 | $0 |
Roll Value History
| 2026 | N/A | N/A | N/A | N/A | N/A |
| 2025 | $0 | $280,000 | $0 | $280,000 | $280,000 |
| 2024 | $0 | $280,000 | $0 | $280,000 | $280,000 |
| 2023 | $0 | $240,000 | $0 | $240,000 | $240,000 |
| 2022 | $0 | $230,000 | $0 | $230,000 | $230,000 |
| 2021 | $0 | $170,000 | $0 | $170,000 | $170,000 |
| 2020 | $0 | $170,000 | $0 | $170,000 | $170,000 |
| 2019 | $0 | $135,000 | $0 | $135,000 | $135,000 |
| 2018 | $0 | $135,500 | $0 | $135,500 | $135,500 |
| 2017 | $0 | $135,500 | $0 | $135,500 | $135,500 |
| 2016 | $0 | $160,000 | $0 | $160,000 | $160,000 |
| 2015 | $0 | $160,000 | $1,269 | $1,269 | $1,269 |
| 2014 | $0 | $171,630 | $1,269 | $1,269 | $1,269 |
| 2013 | $0 | $171,630 | $1,269 | $1,269 | $1,269 |
| 2012 | $0 | $200,000 | $1,270 | $1,270 | $1,270 |
| 2011 | $0 | $206,630 | $1,270 | $1,270 | $1,270 |
| 2010 | $0 | $206,630 | $1,270 | $1,270 | $1,270 |
| 2009 | $0 | $2,540 | $1,270 | $1,270 | $1,270 |
| 2008 | $0 | $2,540 | $1,270 | $1,270 | $1,270 |
| 2007 | $0 | $2,540 | $1,270 | $1,270 | $1,270 |
Deed and Sales History
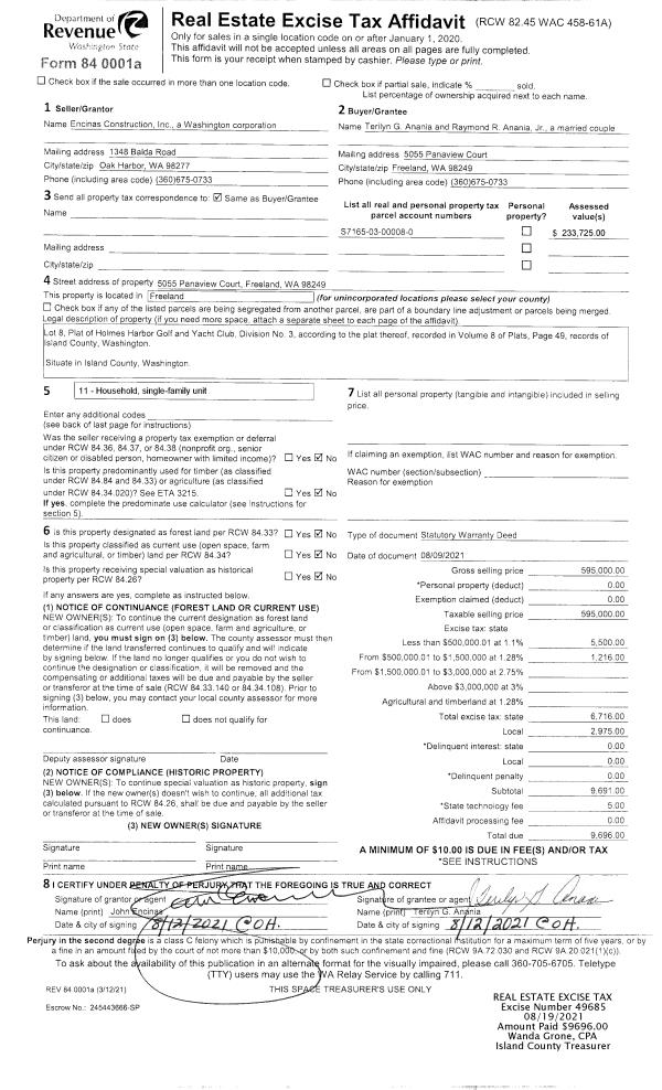
| 1 | 06/16/2021 | WD | Warranty Deed | PIEDMONT, ARIEL E | PIEDMONT, ARIEL E | | | $345.00 | 49300 | 4525150 |
|   | |
| 2 | 11/16/2016 | TRUSTEED | Trustee's Deed | GABELEIN, DORA | PIEDMONT, ARIEL E | | | $325,000.00 | 27003 | 4411819 |
|   | |
| 3 | 12/04/1998 | QCD | Quit Claim Deed | GABELEIN, ARTHUR P | GABELEIN, DORA | | | $0.00 | 84938 | 98027202 |
| 4 | 01/01/1900 | OTHER | Other - Misc. Documents | Unknown | GABELEIN, ARTHUR P | | | $0.00 | 0 | 0 |
Payout Agreement
| No payout information available.. |