Property
Account |
| Property ID: | 133162 | Abbreviated Legal Description: | 4 - GL 5 EX N308' EX E770' OF S847' LY E OF BAYVIEW RD EX RD TIDES |
| Geographic ID: | R32919-223-4460 | Agent Code: | |
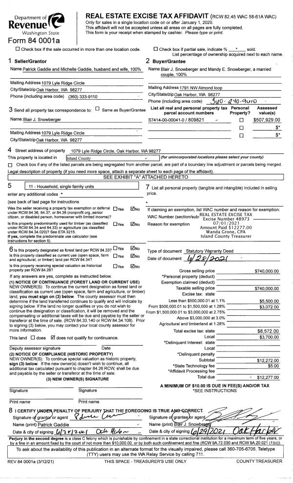
| Type: | Real | | |
| Tax Area: | 712 - APPRAISER-S Whid Schl Dist, outside Langley, improved, greater than 1 acre | Land Use Code | 11 |
| Open Space: | N | DFL | N |
| Historic Property: | N | Remodel Property: | N |
| Multi-Family Redevelopment: | N | | |
| Township: | 29 | Section: | 19 |
| Range: | R3 |
Location |
| Address: | 6290 BAYVIEW RD CLINTON, WA 98236 | Mapsco: | |
| Neighborhood: | Cycle 4 | Map ID: | 788 |
| Neighborhood CD: | 4 |
Owner |
| Name: | HENNY CO TRUSTEE, MARION FAY | Owner ID: | 253412 |
| Mailing Address: | GEORGE TEMPLE FAY HENNY CO TRUSTEE JULIA HENNY DEMARTINI CO TRUSTEE 14888 SR 525 LANGLEY, WA 98260 | % Ownership: | 100.0000000000% |
| | | Exemptions: | |
Taxes and Assessment Details
Values
| (+) Improvement Homesite Value: | + | $0 | |
| (+) Improvement Non-Homesite Value: | + | $2,678,767 | |
| (+) Land Homesite Value: | + | $0 | |
| (+) Land Non-Homesite Value: | + | $6,600,000 | |
| (+) Curr Use (HS): | + | $0 | $0 |
| (+) Curr Use (NHS): | + | $0 | $0 |
| | | -------------------------- | |
| (=) Market Value: | = | $9,278,767 | |
| (–) Productivity Loss: | – | $0 | |
| | | -------------------------- | |
| (=) Subtotal: | = | $9,278,767 | |
| (+) Senior Appraised Value: | + | $0 | |
| (+) Non-Senior Appraised Value: | + | $9,278,767 | |
| | | -------------------------- | |
| (=) Total Appraised Value: | = | $9,278,767 | |
| (–) Senior Exemption Loss: | – | $0 | |
| (–) Exemption Loss: | – | $0 | |
| | | -------------------------- | |
| (=) Taxable Value: | = | $9,278,767 | |
Taxing Jurisdiction
| Owner: | HENNY CO TRUSTEE, MARION FAY | | |
| % Ownership: | 100.0000000000% | | |
| Total Value: | $9,278,767 | | |
| Tax Area: | 712 - APPRAISER-S Whid Schl Dist, outside Langley, improved, greater than 1 acre |
| CF | Conservation Futures | 0.0316035091 | $9,278,767 | $9,278,767 | $293.24 | | |
| FIRE3 | Fire & Rescue Dist #3 S Whidbey GEN | 1.2004855531 | $9,278,767 | $9,278,767 | $11,139.03 | | |
| HOBOND | Hospital BOND | 0.1910887512 | $9,278,767 | $9,278,767 | $1,773.07 | | |
| HOGEN | Hospital GEN | 0.3902502903 | $9,278,767 | $9,278,767 | $3,621.04 | | |
| CE | County Current Expense | 0.3708482477 | $9,278,767 | $9,278,767 | $3,441.01 | | |
| CR | County Roads | 0.4584763726 | $9,278,767 | $9,278,767 | $4,254.10 | | |
| ISLANDEMS | Hospital GEN (EMS) | 0.5000000000 | $9,278,767 | $9,278,767 | $4,639.38 | | |
| LIB | Library Sno-Isle GEN | 0.3153421757 | $9,278,767 | $9,278,767 | $2,925.99 | | |
| PORTWHID | Port of S Whidbey GEN | 0.1094540357 | $9,278,767 | $9,278,767 | $1,015.60 | | |
| SCH206BOND | School 206 BOND | 0.3161759235 | $9,278,767 | $9,278,767 | $2,933.72 | | |
| SCH206MO | School 206 Enrichment | 0.4547169547 | $9,278,767 | $9,278,767 | $4,219.21 | | |
| ST | State School | 1.3035497053 | $9,278,767 | $9,278,767 | $12,095.33 | | |
| ST2 | State School Part 2 | 0.8169543533 | $9,278,767 | $9,278,767 | $7,580.33 | | |
| SWHIDPRBD | P & R S Whidbey BOND | 0.0152817568 | $9,278,767 | $9,278,767 | $141.80 | | |
| SWHIDPRBD2 | P & R S Whidbey BOND2 | 0.0138911264 | $9,278,767 | $9,278,767 | $128.89 | | |
| SWHIDPRMT | P & R S Whidbey GEN | 0.2053334452 | $9,278,767 | $9,278,767 | $1,905.24 | | |
| | Total Tax Rate: | 6.6934522006 | | | | | |
| | | | | Taxes w/Current Exemptions: | $62,106.98 | | |
| | | | | Taxes w/o Exemptions: | $62,106.98 | | |
Improvement / Building
| Improvement #1: | RESIDENTIAL | State Code: | Y | 2347.1 sqft | Value: | $483,308 |
| Bathrooms: | 2 | Bedrooms: | 3 | | Ceiling: | DRYWALL PAINTED | Cooling: | HEAT PUMP/CONV/V | | Exterior Wall/Cover: | WOOD SIDING | Floor Covering: | HARDWOOD/CARP 80-20 | | Floor Structure: | WOOD W/SUBFLOOR | Foundation: | CONCRETE | | Interior Finish: | DRYWALL PAINT | Plumbing Fixture Cnt: | 10 | | Roof Slope: | 5" IN 12" | Roof Structure/Cover: | BEAM CONCRETE TILE |
|
| | Type | Description | Class CD | Sub Class CD | Year Built | Area |
| | BAS | BASE/MAIN FLOOR | 4 | 0 | 1989 | 2347.1 |
| | AGR | ATTACHED GARAGE | 4 | 0 | 1989 | 1151.0 |
| | OWP | OPEN WOOD PORCH W/STEPS | 4 | 0 | 1989 | 2006.8 |
| | OWC | OPEN WOOD PORCH W/STEPS/ROOF/C | 4 | 0 | 1989 | 36.0 |
| Improvement #2: | RESIDENTIAL | State Code: | Y | 616.0 sqft | Value: | $124,899 |
| Bathrooms: | 1 | Bedrooms: | 0 | | Ceiling: | DRYWALL PAINTED | Exterior Wall/Cover: | WOOD SIDING | | Floor Covering: | VINYL 100% | Floor Structure: | SLAB ON GRADE | | Foundation: | CONCRETE | Heating: | WALL HEAT ELECTRIC | | Interior Finish: | DRYWALL PAINT | Plumbing Fixture Cnt: | 3 | | Roof Slope: | 6" IN 12" | Roof Structure/Cover: | CJ ASPHALT |
|
| | Type | Description | Class CD | Sub Class CD | Year Built | Area |
| | BAS | BASE/MAIN FLOOR | 2 | 0 | 1984 | 616.0 |
| | BIG | BUILT IN GARAGE | 2 | 0 | 1984 | 768.0 |
| | UTY | STORAGE/UTILITY | 2 | 0 | 1984 | 900.0 |
| | OWP | OPEN WOOD PORCH W/STEPS | 2 | 0 | 1984 | 128.0 |
| | ATU | ATTIC UNFINISHED | 2 | 0 | 1984 | 680.0 |
| Improvement #3: | RESIDENTIAL | State Code: | Y | 1169.2 sqft | Value: | $197,111 |
| Bathrooms: | 2 | Bedrooms: | 1 | | Ceiling: | DRYWALL PAINTED | Exterior Wall/Cover: | WOOD SIDING | | Floor Covering: | CARPET/VINYL 80-20 | Floor Structure: | WOOD W/SUBFLOOR | | Foundation: | CONCRETE | Heating: | BASEBOARD ELECTRIC | | Interior Finish: | DRYWALL PAINT | Plumbing Fixture Cnt: | 10 | | Roof Slope: | 4" IN 12" | Roof Structure/Cover: | CJ ASPHALT |
|
| | Type | Description | Class CD | Sub Class CD | Year Built | Area |
| | BAS | BASE/MAIN FLOOR | 3 | 0 | 1986 | 663.6 |
| | BGR | BASEMENT GARAGE | 3 | 0 | 1986 | 158.0 |
| | UTY | STORAGE/UTILITY | 3 | 0 | 1986 | 560.8 |
| | OWP | OPEN WOOD PORCH W/STEPS | 3 | 0 | 1986 | 54.8 |
| | OWP | OPEN WOOD PORCH W/STEPS | 3 | 0 | 1986 | 101.5 |
| | OWP | OPEN WOOD PORCH W/STEPS | 3 | 0 | 1986 | 424.7 |
| | OWC | OPEN WOOD PORCH W/STEPS/ROOF/C | 3 | 0 | 1986 | 93.5 |
| | DWN | DOWNSTAIRS LIVING AREA | 3 | 0 | 1986 | 505.6 |
| Improvement #4: | RESIDENTIAL | State Code: | Y | 615.0 sqft | Value: | $116,297 |
| Bathrooms: | 1 | Bedrooms: | 0 | | Ceiling: | DRYWALL PAINTED | Exterior Wall/Cover: | WOOD SIDING | | Floor Covering: | CARPET/VINYL 80-20 | Floor Structure: | WOOD W/SUBFLOOR | | Foundation: | CONCRETE | Heating: | FHA OIL | | Interior Finish: | DRYWALL PAINT | Plumbing Fixture Cnt: | 3 | | Roof Slope: | 3" IN 12" | Roof Structure/Cover: | CJ CONCRETE TILE |
|
| | Type | Description | Class CD | Sub Class CD | Year Built | Area |
| | BAS | BASE/MAIN FLOOR | 3 | 0 | 1990 | 615.0 |
| | BGR | BASEMENT GARAGE | 3 | 0 | 1990 | 615.0 |
| Improvement #5: | RESIDENTIAL | State Code: | Y | 13012.7 sqft | Value: | $1,757,152 |
| Bathrooms: | 6 | Bedrooms: | 8 | | Ceiling: | DRYWALL PAINTED | Cooling: | HEAT PUMP/CONV/V | | Exterior Wall/Cover: | WOOD SIDING | Floor Covering: | CERAMIC TILE/CPT 40-60 | | Floor Structure: | WOOD W/SUBFLOOR | Foundation: | CONCRETE | | Interior Finish: | DRYWALL PAINT | Plumbing Fixture Cnt: | 22 | | Roof Slope: | 6" IN 12" | Roof Structure/Cover: | BEAM CONCRETE TILE |
|
| | Type | Description | Class CD | Sub Class CD | Year Built | Area |
| | BAS | BASE/MAIN FLOOR | 5 | 0 | 1988 | 10095.5 |
| | OP4 | OPEN PORCH W/CEILING-ROOF | 5 | 0 | 1988 | 283.5 |
| | AGR | ATTACHED GARAGE | 5 | 0 | 1988 | 275.0 |
| | BGR | BASEMENT GARAGE | 5 | 0 | 1988 | 2444.9 |
| | OCP | OPEN CARPORT | 5 | 0 | 1988 | 526.5 |
| | OWP | OPEN WOOD PORCH W/STEPS | 5 | 0 | 1988 | 393.0 |
| | OWP | OPEN WOOD PORCH W/STEPS | 5 | 0 | 1988 | 6645.3 |
| | LOF | LOFT | 5 | 0 | 1988 | 931.9 |
| | DWN | DOWNSTAIRS LIVING AREA | 5 | 0 | 1988 | 1985.3 |
Sketch
Property Image
Land
| 1 | LB | LOW BANK | 18.4254 | 802610.42 | 1000.00 | 0.00 | 1.00 | $6,600,000 | $0 |
Roll Value History
| 2026 | N/A | N/A | N/A | N/A | N/A |
| 2025 | $2,678,767 | $6,600,000 | $0 | $9,278,767 | $9,278,767 |
| 2024 | $2,720,540 | $6,525,000 | $0 | $9,245,540 | $9,245,540 |
| 2023 | $2,758,367 | $6,525,000 | $0 | $9,283,367 | $9,283,367 |
| 2022 | $2,532,031 | $6,500,000 | $0 | $9,032,031 | $9,032,031 |
| 2021 | $2,231,558 | $6,300,000 | $0 | $8,531,558 | $8,531,558 |
| 2020 | $2,186,350 | $6,250,000 | $0 | $8,436,350 | $8,436,350 |
| 2019 | $1,916,266 | $6,500,000 | $0 | $8,416,266 | $8,416,266 |
| 2018 | $1,924,001 | $6,500,000 | $0 | $8,424,001 | $8,424,001 |
| 2017 | $1,846,604 | $6,500,000 | $0 | $8,346,604 | $8,346,604 |
| 2016 | $1,872,142 | $6,500,000 | $0 | $8,372,142 | $8,372,142 |
| 2015 | $1,897,678 | $6,500,000 | $0 | $8,397,678 | $8,397,678 |
| 2014 | $1,893,121 | $6,423,562 | $0 | $8,316,683 | $8,316,683 |
| 2013 | $1,918,173 | $6,423,562 | $0 | $8,341,735 | $8,341,735 |
| 2012 | $1,943,225 | $6,423,562 | $0 | $8,366,787 | $8,366,787 |
| 2011 | $1,968,275 | $6,423,562 | $0 | $8,391,837 | $8,391,837 |
| 2010 | $2,415,159 | $6,423,562 | $0 | $8,838,721 | $8,838,721 |
| 2009 | $2,523,042 | $8,291,513 | $0 | $10,814,555 | $10,814,555 |
| 2008 | $3,855,282 | $12,208,392 | $0 | $16,063,674 | $16,063,674 |
| 2007 | $2,684,163 | $8,822,100 | $0 | $11,506,263 | $11,506,263 |
Deed and Sales History
| 1 | 07/19/2010 | PRD | Personal Representatives Deed | HENNY, DAVID C | HENNY CO TRUSTEE, MARION FAY | | | | 0 | 4279790 |
Payout Agreement
| No payout information available.. |