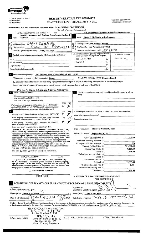
Property
Account |
| Property ID: | 13318 | Abbreviated Legal Description: | 25 - NENW: BGSWCR LOT3BLK4 KIMB HGTS #2 S79*E118.01'S01*W85.44' N88*W117.97'N02*E104.83' TPB (LOT A OH SP AF#398892) |
| Geographic ID: | R13203-403-2120 | Agent Code: | |
| Type: | Real | | |
| Tax Area: | 100 - APPRAISER-OH Schl Dist, in OH | Land Use Code | 11 |
| Open Space: | N | DFL | N |
| Historic Property: | N | Remodel Property: | N |
| Multi-Family Redevelopment: | N | | |
| Township: | 32 | Section: | 03 |
| Range: | R1 |
Location |
| Address: | 1102 SW 6TH AVE OAK HARBOR, WA 98277 | Mapsco: | |
| Neighborhood: | Cycle 1 | Map ID: | 92 |
| Neighborhood CD: | 1 |
Owner |
| Name: | VAN DAM, WAYNE J | Owner ID: | 300152 |
| Mailing Address: | AMY S VAN DAM & MAX T VAN DAM 3828 RIDGEWOOD DR OAK HARBOR, WA 98277 | % Ownership: | 100.0000000000% |
| | | Exemptions: | |
Taxes and Assessment Details
Values
| (+) Improvement Homesite Value: | + | $0 | |
| (+) Improvement Non-Homesite Value: | + | $338,786 | |
| (+) Land Homesite Value: | + | $0 | |
| (+) Land Non-Homesite Value: | + | $190,000 | |
| (+) Curr Use (HS): | + | $0 | $0 |
| (+) Curr Use (NHS): | + | $0 | $0 |
| | | -------------------------- | |
| (=) Market Value: | = | $528,786 | |
| (–) Productivity Loss: | – | $0 | |
| | | -------------------------- | |
| (=) Subtotal: | = | $528,786 | |
| (+) Senior Appraised Value: | + | $0 | |
| (+) Non-Senior Appraised Value: | + | $528,786 | |
| | | -------------------------- | |
| (=) Total Appraised Value: | = | $528,786 | |
| (–) Senior Exemption Loss: | – | $0 | |
| (–) Exemption Loss: | – | $0 | |
| | | -------------------------- | |
| (=) Taxable Value: | = | $528,786 | |
Taxing Jurisdiction
| Owner: | VAN DAM, WAYNE J | | |
| % Ownership: | 100.0000000000% | | |
| Total Value: | $528,786 | | |
| Tax Area: | 100 - APPRAISER-OH Schl Dist, in OH |
| CF | Conservation Futures | 0.0316035091 | $528,786 | $528,786 | $16.71 | | |
| CEM1 | Cemetery #1 | 0.0040320932 | $528,786 | $528,786 | $2.13 | | |
| COH | City of Oak Harbor | 2.3001546061 | $528,786 | $528,786 | $1,216.29 | | |
| OAKBOND | City of Oak Harbor BOND | 0.1926904192 | $528,786 | $528,786 | $101.89 | | |
| HOBOND | Hospital BOND | 0.1910887512 | $528,786 | $528,786 | $101.05 | | |
| HOGEN | Hospital GEN | 0.3902502903 | $528,786 | $528,786 | $206.36 | | |
| CE | County Current Expense | 0.3708482477 | $528,786 | $528,786 | $196.10 | | |
| ISLANDEMS | Hospital GEN (EMS) | 0.5000000000 | $528,786 | $528,786 | $264.39 | | |
| LIB | Library Sno-Isle GEN | 0.3153421757 | $528,786 | $528,786 | $166.75 | | |
| NWHIDPRMT | P & R N Whidbey GEN | 0.2004466701 | $528,786 | $528,786 | $105.99 | | |
| SCH201MO | School 201 Enrichment | 1.8559231640 | $528,786 | $528,786 | $981.39 | | |
| ST | State School | 1.3035497053 | $528,786 | $528,786 | $689.30 | | |
| ST2 | State School Part 2 | 0.8169543533 | $528,786 | $528,786 | $431.99 | | |
| | Total Tax Rate: | 8.4728839852 | | | | | |
| | | | | Taxes w/Current Exemptions: | $4,480.34 | | |
| | | | | Taxes w/o Exemptions: | $4,480.34 | | |
Improvement / Building
| Improvement #1: | RESIDENTIAL | State Code: | Y | 1727.0 sqft | Value: | $338,786 |
| Bathrooms: | 2 | Bedrooms: | 3 | | Ceiling: | DRYWALL PAINTED | Exterior Wall/Cover: | PLY/HARDBOARD T-111 | | Floor Covering: | CARPET/VINYL 80-20 | Floor Structure: | WOOD W/SUBFLOOR | | Foundation: | CONCRETE | Heating: | FHA GAS | | Interior Finish: | DRYWALL PAINT | Plumbing Fixture Cnt: | 9 | | Roof Slope: | 6" IN 12" | Roof Structure/Cover: | CJ ASPHALT |
|
| | Type | Description | Class CD | Sub Class CD | Year Built | Area |
| | BAS | BASE/MAIN FLOOR | 4 | 0 | 1992 | 1727.0 |
| | OP4 | OPEN PORCH W/CEILING-ROOF | 4 | 0 | 1992 | 36.0 |
| | AGR | ATTACHED GARAGE | 4 | 0 | 1992 | 552.0 |
| | OWP | OPEN WOOD PORCH W/STEPS | 4 | 0 | 1992 | 296.0 |
Sketch
Property Image
Land
| 1 | 14 | SQ (08001-12000) | 0.2600 | 11325.60 | 0.00 | 0.00 | 1.00 | $190,000 | $0 |
Roll Value History
| 2026 | N/A | N/A | N/A | N/A | N/A |
| 2025 | $338,786 | $190,000 | $0 | $528,786 | $528,786 |
| 2024 | $343,061 | $190,000 | $0 | $533,061 | $533,061 |
| 2023 | $306,030 | $190,000 | $0 | $496,030 | $496,030 |
| 2022 | $280,606 | $180,000 | $0 | $460,606 | $460,606 |
| 2021 | $247,052 | $120,000 | $0 | $367,052 | $367,052 |
| 2020 | $240,979 | $100,000 | $0 | $340,979 | $340,979 |
| 2019 | $178,063 | $150,000 | $0 | $328,063 | $328,063 |
| 2018 | $178,597 | $130,000 | $0 | $308,597 | $308,597 |
| 2017 | $171,111 | $110,000 | $0 | $281,111 | $281,111 |
| 2016 | $173,250 | $90,000 | $0 | $263,250 | $263,250 |
| 2015 | $175,389 | $70,000 | $0 | $245,389 | $245,389 |
| 2014 | $177,527 | $55,000 | $0 | $232,527 | $232,527 |
| 2013 | $179,666 | $55,000 | $0 | $234,666 | $234,666 |
| 2012 | $181,805 | $60,000 | $0 | $241,805 | $241,805 |
| 2011 | $203,303 | $50,000 | $0 | $253,303 | $253,303 |
| 2010 | $212,090 | $50,000 | $0 | $262,090 | $262,090 |
| 2009 | $221,034 | $60,000 | $0 | $281,034 | $281,034 |
| 2008 | $223,567 | $72,000 | $0 | $295,567 | $295,567 |
| 2007 | $226,247 | $72,000 | $0 | $298,247 | $298,247 |
Deed and Sales History
| 1 | 07/01/2021 | WD | Warranty Deed | VAN DAM LIFE ESTATE, MARGENE | VAN DAM, WAYNE J | | | $435,000.00 | 49094 | 4524022 |
| 2 | 12/20/2011 | PRD | Personal Representatives Deed | VAN DAM, JACK A | VAN DAM LIFE ESTATE, MARGENE | | | $0.00 | 6589 | 4307798 |
| 3 | 07/08/1998 | OTHER | Other - Misc. Documents | VAN DAM, JACK A | VAN DAM, JACK A | | | $0.00 | 67936 | 98013168 |
| 4 | 01/01/1900 | OTHER | Other - Misc. Documents | VAN, DAM, J | VAN DAM, JACK A | | | $0.00 | 0 | 0 |
| 5 | 01/01/1900 | OTHER | Other - Misc. Documents | Unknown | VAN, DAM, J | | | $0.00 | 0 | 0 |
Payout Agreement
| No payout information available.. |