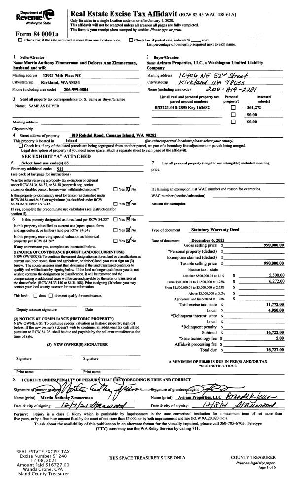
Property
Account |
| Property ID: | 13327 | Abbreviated Legal Description: | 49 - IN NE NW: BG SWCR LOT 3 BLK 4 KIMBALL HTS#2 S79*E 118.01' TPB S84*E149.19' S74.39' N88*W151' N1*E85.44 TPB (LOT B OH SP AF#398892) |
| Geographic ID: | R13203-403-2250 | Agent Code: | |
| Type: | Real | | |
| Tax Area: | 100 - APPRAISER-OH Schl Dist, in OH | Land Use Code | 11 |
| Open Space: | N | DFL | N |
| Historic Property: | N | Remodel Property: | N |
| Multi-Family Redevelopment: | N | | |
| Township: | 32 | Section: | 03 |
| Range: | R1 |
Location |
| Address: | | Mapsco: | |
| Neighborhood: | Cycle 1 | Map ID: | 92 |
| Neighborhood CD: | 1 |
Owner |
| Name: | CARLSON, ERIC | Owner ID: | 301158 |
| Mailing Address: | CHELSEA CARLSON 1070 SW 6TH AVE OAK HARBOR, WA 98277 | % Ownership: | 100.0000000000% |
| | | Exemptions: | |
Taxes and Assessment Details
Values
| (+) Improvement Homesite Value: | + | $0 | |
| (+) Improvement Non-Homesite Value: | + | $334,455 | |
| (+) Land Homesite Value: | + | $0 | |
| (+) Land Non-Homesite Value: | + | $200,000 | |
| (+) Curr Use (HS): | + | $0 | $0 |
| (+) Curr Use (NHS): | + | $0 | $0 |
| | | -------------------------- | |
| (=) Market Value: | = | $534,455 | |
| (–) Productivity Loss: | – | $0 | |
| | | -------------------------- | |
| (=) Subtotal: | = | $534,455 | |
| (+) Senior Appraised Value: | + | $0 | |
| (+) Non-Senior Appraised Value: | + | $534,455 | |
| | | -------------------------- | |
| (=) Total Appraised Value: | = | $534,455 | |
| (–) Senior Exemption Loss: | – | $0 | |
| (–) Exemption Loss: | – | $0 | |
| | | -------------------------- | |
| (=) Taxable Value: | = | $534,455 | |
Taxing Jurisdiction
| Owner: | CARLSON, ERIC | | |
| % Ownership: | 100.0000000000% | | |
| Total Value: | $534,455 | | |
| Tax Area: | 100 - APPRAISER-OH Schl Dist, in OH |
| CF | Conservation Futures | 0.0316035091 | $534,455 | $534,455 | $16.89 | | |
| CEM1 | Cemetery #1 | 0.0040320932 | $534,455 | $534,455 | $2.15 | | |
| COH | City of Oak Harbor | 2.3001546061 | $534,455 | $534,455 | $1,229.33 | | |
| OAKBOND | City of Oak Harbor BOND | 0.1926904192 | $534,455 | $534,455 | $102.98 | | |
| HOBOND | Hospital BOND | 0.1910887512 | $534,455 | $534,455 | $102.13 | | |
| HOGEN | Hospital GEN | 0.3902502903 | $534,455 | $534,455 | $208.57 | | |
| CE | County Current Expense | 0.3708482477 | $534,455 | $534,455 | $198.20 | | |
| ISLANDEMS | Hospital GEN (EMS) | 0.5000000000 | $534,455 | $534,455 | $267.23 | | |
| LIB | Library Sno-Isle GEN | 0.3153421757 | $534,455 | $534,455 | $168.54 | | |
| NWHIDPRMT | P & R N Whidbey GEN | 0.2004466701 | $534,455 | $534,455 | $107.13 | | |
| SCH201MO | School 201 Enrichment | 1.8559231640 | $534,455 | $534,455 | $991.91 | | |
| ST | State School | 1.3035497053 | $534,455 | $534,455 | $696.69 | | |
| ST2 | State School Part 2 | 0.8169543533 | $534,455 | $534,455 | $436.63 | | |
| | Total Tax Rate: | 8.4728839852 | | | | | |
| | | | | Taxes w/Current Exemptions: | $4,528.38 | | |
| | | | | Taxes w/o Exemptions: | $4,528.38 | | |
Improvement / Building
| Improvement #1: | RESIDENTIAL | State Code: | Y | 1861.5 sqft | Value: | $334,455 |
| Bathrooms: | 2.5 | Bedrooms: | 3 | | Ceiling: | DRYWALL PAINTED | Exterior Wall/Cover: | CEMENT FIBER | | Floor Covering: | HARDWOOD/CARP 60-40 | Floor Structure: | WOOD W/SUBFLOOR | | Foundation: | CONCRETE | Heating: | FHA GAS | | Interior Finish: | DRYWALL PAINT | Plumbing Fixture Cnt: | 12 | | Roof Slope: | 6" IN 12" | Roof Structure/Cover: | CJ ASPHALT |
|
| | Type | Description | Class CD | Sub Class CD | Year Built | Area |
| | BAS | BASE/MAIN FLOOR | 3 | 0 | 2004 | 1029.5 |
| | OWP | OPEN WOOD PORCH W/STEPS | 3 | 0 | 2004 | 420.0 |
| | AGR | ATTACHED GARAGE | 3 | 0 | 2004 | 480.0 |
| | UPS | UPPER STORY | 3 | 0 | 2004 | 832.0 |
| | OP4 | OPEN PORCH W/CEILING-ROOF | 3 | 0 | 2004 | 177.5 |
Sketch
Property Image
Land
| 1 | 15 | SQ (12001-21780) | 0.2800 | 12196.80 | 0.00 | 0.00 | 1.00 | $200,000 | $0 |
Roll Value History
| 2026 | N/A | N/A | N/A | N/A | N/A |
| 2025 | $334,455 | $200,000 | $0 | $534,455 | $534,455 |
| 2024 | $338,471 | $190,000 | $0 | $528,471 | $528,471 |
| 2023 | $342,489 | $190,000 | $0 | $532,489 | $532,489 |
| 2022 | $313,765 | $180,000 | $0 | $493,765 | $493,765 |
| 2021 | $263,349 | $135,000 | $0 | $398,349 | $398,349 |
| 2020 | $256,508 | $100,000 | $0 | $356,508 | $356,508 |
| 2019 | $191,060 | $150,000 | $0 | $341,060 | $341,060 |
| 2018 | $191,621 | $130,000 | $0 | $321,621 | $321,621 |
| 2017 | $183,790 | $110,000 | $0 | $293,790 | $293,790 |
| 2016 | $185,928 | $90,000 | $0 | $275,928 | $275,928 |
| 2015 | $188,064 | $70,000 | $0 | $258,064 | $258,064 |
| 2014 | $190,200 | $65,000 | $0 | $255,200 | $255,200 |
| 2013 | $192,338 | $65,000 | $0 | $257,338 | $257,338 |
| 2012 | $194,475 | $65,000 | $0 | $259,475 | $259,475 |
| 2011 | $217,379 | $50,000 | $0 | $267,379 | $267,379 |
| 2010 | $225,345 | $50,000 | $0 | $275,345 | $275,345 |
| 2009 | $237,319 | $60,000 | $0 | $297,319 | $297,319 |
| 2008 | $237,887 | $72,000 | $0 | $309,887 | $309,887 |
| 2007 | $240,742 | $72,000 | $0 | $312,742 | $312,742 |
Deed and Sales History
| 1 | 09/01/2021 | WD | Warranty Deed | HELLER, CHRISTOPHER COLE | CARLSON, ERIC | | | $499,000.00 | 50031 | 4529118 |
| 2 | 06/07/2013 | WD | Warranty Deed | WRIGHT, JUSTIN L | HELLER, CHRISTOPHER COLE | | | $264,250.00 | 11892 | 4343195 |
| 3 | 04/15/2008 | WD | Warranty Deed | MARLEY, BERT A | WRIGHT, JUSTIN L | | | $266,500.00 | 80970 | 4226834 |
| 4 | 12/01/2004 | WD | Warranty Deed | LANG BROTHERS HOMES INC, | MARLEY, BERT A | | | $250,000.00 | 45657 | 4119847 |
| 5 | 01/22/2004 | WD | Warranty Deed | VAN ZANDEN, THEODORE | LANG BROTHERS HOMES INC, | | | $52,000.00 | 40339 | 4089730 |
| 6 | 08/04/2000 | WD | Warranty Deed | KAISER, RALPH A | VAN ZANDEN, THEODORE | | | $45,500.00 | 3007 | 20014062 |
| 7 | 09/01/1995 | PRD | Personal Representatives Deed | KAISER, RALPH A | KAISER, RALPH A | | | $0.00 | 53346 | 95015407 |
| 8 | 04/01/1982 | REC | Real Estate Contract | VAN, ZANDEN, T | KAISER, RALPH A | | | $20,000.00 | 20897 | 395355 |
| 9 | 01/01/1900 | OTHER | Other - Misc. Documents | Unknown | VAN, ZANDEN, T | | | $0.00 | 0 | 0 |
Payout Agreement
| No payout information available.. |