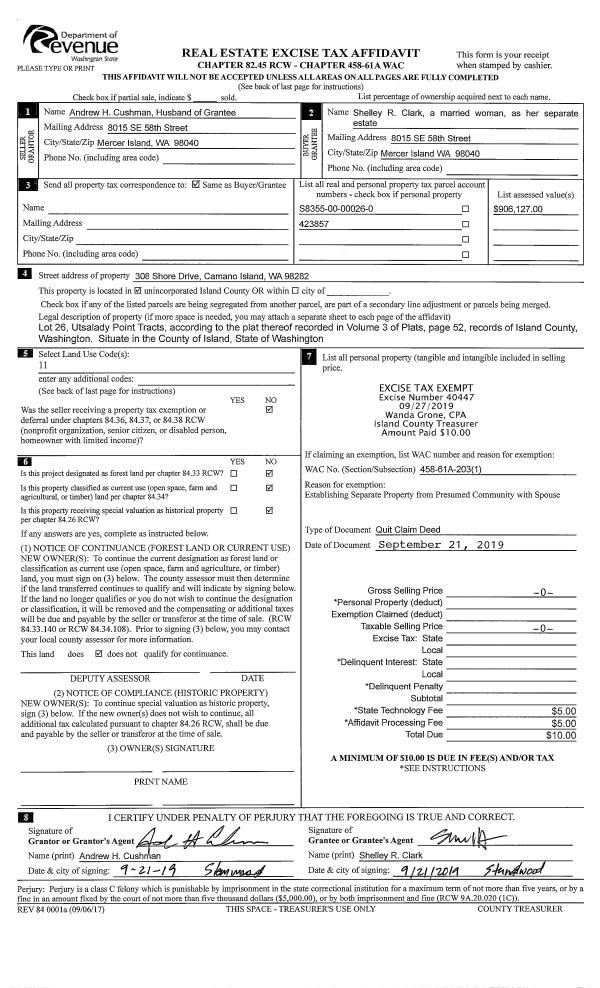
Property
Account |
| Property ID: | 133536 | Abbreviated Legal Description: | 29 - W20'OF: BG INT OF ELN LOT 42 SUNLIGHT BCH PROD NELY & SLN OF CO RD E ALG RD105.15' S17*W188.32' S43* W73.45' NWLY ALG SH LN TP S17*W FR TPB N17*E183.45' TPB |
| Geographic ID: | R32919-351-3350 | Agent Code: | |
| Type: | Real | | |
| Tax Area: | 810 - APPRAISER-S Whid Schl Dist, Diking District#1, improved & 1 acre or less | Land Use Code | 91 |
| Open Space: | N | DFL | N |
| Historic Property: | N | Remodel Property: | N |
| Multi-Family Redevelopment: | N | | |
| Township: | 29 | Section: | 19 |
| Range: | R3 |
Location |
| Address: | | Mapsco: | |
| Neighborhood: | Cycle 4 | Map ID: | 790 |
| Neighborhood CD: | 4 |
Owner |
| Name: | LUKER, STEPHEN | Owner ID: | 288252 |
| Mailing Address: | RACHEL GORENSTEIN PO BOX 1127 CLINTON, WA 98236 | % Ownership: | 100.0000000000% |
| | | Exemptions: | U500 |
Taxes and Assessment Details
Values
| (+) Improvement Homesite Value: | + | $0 | |
| (+) Improvement Non-Homesite Value: | + | $0 | |
| (+) Land Homesite Value: | + | $0 | |
| (+) Land Non-Homesite Value: | + | $450 | |
| (+) Curr Use (HS): | + | $0 | $0 |
| (+) Curr Use (NHS): | + | $0 | $0 |
| | | -------------------------- | |
| (=) Market Value: | = | $450 | |
| (–) Productivity Loss: | – | $0 | |
| | | -------------------------- | |
| (=) Subtotal: | = | $450 | |
| (+) Senior Appraised Value: | + | $0 | |
| (+) Non-Senior Appraised Value: | + | $450 | |
| | | -------------------------- | |
| (=) Total Appraised Value: | = | $450 | |
| (–) Senior Exemption Loss: | – | $0 | |
| (–) Exemption Loss: | – | $450 | |
| | | -------------------------- | |
| (=) Taxable Value: | = | $0 | |
Taxing Jurisdiction
| Owner: | LUKER, STEPHEN | | |
| % Ownership: | 100.0000000000% | | |
| Total Value: | $450 | | |
| Tax Area: | 810 - APPRAISER-S Whid Schl Dist, Diking District#1, improved & 1 acre or less |
| CF | Conservation Futures | 0.0316035091 | $450 | $0 | $0.00 | | |
| FIRE3 | Fire & Rescue Dist #3 S Whidbey GEN | 1.2004855531 | $450 | $0 | $0.00 | | |
| HOBOND | Hospital BOND | 0.1910887512 | $450 | $0 | $0.00 | | |
| HOGEN | Hospital GEN | 0.3902502903 | $450 | $0 | $0.00 | | |
| CE | County Current Expense | 0.3708482477 | $450 | $0 | $0.00 | | |
| CR | County Roads | 0.4584763726 | $450 | $0 | $0.00 | | |
| ISLANDEMS | Hospital GEN (EMS) | 0.5000000000 | $450 | $0 | $0.00 | | |
| LIB | Library Sno-Isle GEN | 0.3153421757 | $450 | $0 | $0.00 | | |
| PORTWHID | Port of S Whidbey GEN | 0.1094540357 | $450 | $0 | $0.00 | | |
| SCH206BOND | School 206 BOND | 0.3161759235 | $450 | $0 | $0.00 | | |
| SCH206MO | School 206 Enrichment | 0.4547169547 | $450 | $0 | $0.00 | | |
| ST | State School | 1.3035497053 | $450 | $0 | $0.00 | | |
| ST2 | State School Part 2 | 0.8169543533 | $450 | $0 | $0.00 | | |
| SWHIDPRBD | P & R S Whidbey BOND | 0.0152817568 | $450 | $0 | $0.00 | | |
| SWHIDPRBD2 | P & R S Whidbey BOND2 | 0.0138911264 | $450 | $0 | $0.00 | | |
| SWHIDPRMT | P & R S Whidbey GEN | 0.2053334452 | $450 | $0 | $0.00 | | |
| | Total Tax Rate: | 6.6934522006 | | | | | |
| | | | | Taxes w/Current Exemptions: | $0.00 | | |
| | | | | Taxes w/o Exemptions: | $3.03 | | |
Improvement / Building
Sketch
| No sketches available for this property. |
Property Image
Land
| 1 | LB | LOW BANK | 0.0000 | 0.00 | 20.00 | 0.00 | 1.00 | $450 | $0 |
Roll Value History
| 2026 | N/A | N/A | N/A | N/A | N/A |
| 2025 | $0 | $450 | $0 | $450 | $0 |
| 2024 | $0 | $450 | $0 | $450 | $0 |
| 2023 | $0 | $450 | $0 | $450 | $0 |
| 2022 | $0 | $450 | $0 | $450 | $0 |
| 2021 | $0 | $450 | $0 | $450 | $0 |
| 2020 | $0 | $450 | $0 | $450 | $0 |
| 2019 | $0 | $450 | $0 | $450 | $0 |
| 2018 | $0 | $450 | $0 | $450 | $0 |
| 2017 | $0 | $450 | $0 | $450 | $0 |
| 2016 | $0 | $450 | $0 | $450 | $0 |
| 2015 | $0 | $450 | $0 | $450 | $0 |
| 2014 | $0 | $2,039 | $0 | $2,039 | $2,039 |
| 2013 | $0 | $2,039 | $0 | $2,039 | $2,039 |
| 2012 | $0 | $2,039 | $0 | $2,039 | $2,039 |
| 2011 | $0 | $2,039 | $0 | $2,039 | $2,039 |
| 2010 | $0 | $2,039 | $0 | $2,039 | $2,039 |
| 2009 | $0 | $2,570 | $0 | $2,570 | $2,570 |
| 2008 | $0 | $2,570 | $0 | $2,570 | $2,570 |
| 2007 | $0 | $2,559 | $0 | $2,559 | $2,559 |
Deed and Sales History
| 1 | 11/13/2018 | QCD | Quit Claim Deed | BOJUCAST LLC | LUKER, STEPHEN | | | $0.00 | 36996 | 4456663 |
| 2 | 12/31/2012 | CHGOFIDENT | DNU - Change In Identity | PARSONS TRUSTEE, JUDITH J | BOJUCAST LLC | | | $0.00 | 10567 | 4334874 |
| 3 | 08/28/2001 | QCD | Quit Claim Deed | PARSONS, JUDITH J | PARSONS TRUSTEE, JUDITH J | | | $0.00 | 20337 | 4009576 |
| 4 | 05/03/2000 | QCD | Quit Claim Deed | LEE, SHIRLEY J | PARSONS, JUDITH J | | | $0.00 | 1989 | 20009523 |
| 5 | 11/01/1981 | CD | DNU - Correction Deed | LEE, SHIRLEY J | LEE, SHIRLEY J | | | $0.00 | 22383 | 401305 |
| 6 | 11/01/1981 | CD | DNU - Correction Deed | LEE, SHIRLEY J | LEE, SHIRLEY J | | | $0.00 | 22985 | 403705 |
| 7 | 11/01/1981 | CD | DNU - Correction Deed | VARNEY, DORTHY F | LEE, SHIRLEY J | | | $0.00 | 22986 | 403706 |
| 8 | 01/01/1900 | OTHER | Other - Misc. Documents | Unknown | VARNEY, DORTHY F | | | $0.00 | 0 | 0 |
Payout Agreement
| No payout information available.. |