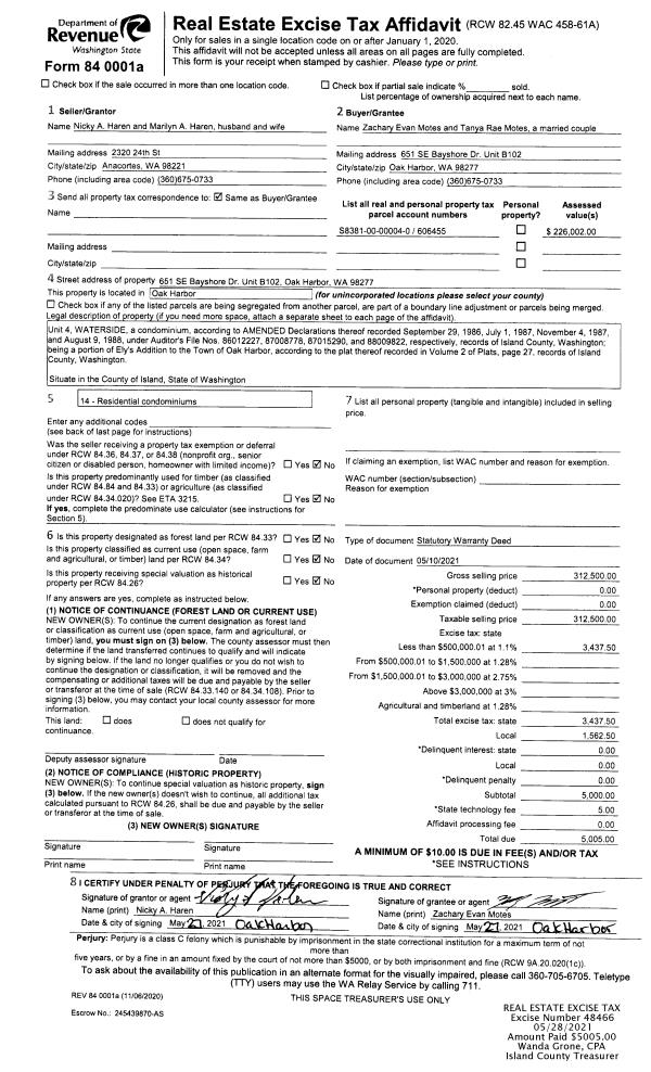
Property
Account |
| Property ID: | 134009 | Abbreviated Legal Description: | 36 - S/2 S/2 N/2 SW SW EX RD EX S40' TGW S40' OF N/2 S/2 N/2 SW SW ENCROACH EZ AF#93017610 |
| Geographic ID: | R32920-079-0680 | Agent Code: | |
| Type: | Real | | |
| Tax Area: | 712 - APPRAISER-S Whid Schl Dist, outside Langley, improved, greater than 1 acre | Land Use Code | 11 |
| Open Space: | N | DFL | N |
| Historic Property: | N | Remodel Property: | N |
| Multi-Family Redevelopment: | N | | |
| Township: | 29 | Section: | 20 |
| Range: | R3 |
Location |
| Address: | 6341 BAYVIEW RD CLINTON, WA 98236 | Mapsco: | |
| Neighborhood: | Cycle 4 | Map ID: | 791 |
| Neighborhood CD: | 4 |
Owner |
| Name: | DAVIS, ANDREW P | Owner ID: | 93372 |
| Mailing Address: | LISA A DAVIS 6341 BAYVIEW RD CLINTON, WA 98236-9103 | % Ownership: | 100.0000000000% |
| | | Exemptions: | |
Taxes and Assessment Details
Values
| (+) Improvement Homesite Value: | + | $0 | |
| (+) Improvement Non-Homesite Value: | + | $341,418 | |
| (+) Land Homesite Value: | + | $0 | |
| (+) Land Non-Homesite Value: | + | $420,000 | |
| (+) Curr Use (HS): | + | $0 | $0 |
| (+) Curr Use (NHS): | + | $0 | $0 |
| | | -------------------------- | |
| (=) Market Value: | = | $761,418 | |
| (–) Productivity Loss: | – | $0 | |
| | | -------------------------- | |
| (=) Subtotal: | = | $761,418 | |
| (+) Senior Appraised Value: | + | $0 | |
| (+) Non-Senior Appraised Value: | + | $761,418 | |
| | | -------------------------- | |
| (=) Total Appraised Value: | = | $761,418 | |
| (–) Senior Exemption Loss: | – | $0 | |
| (–) Exemption Loss: | – | $0 | |
| | | -------------------------- | |
| (=) Taxable Value: | = | $761,418 | |
Taxing Jurisdiction
| Owner: | DAVIS, ANDREW P | | |
| % Ownership: | 100.0000000000% | | |
| Total Value: | $761,418 | | |
| Tax Area: | 712 - APPRAISER-S Whid Schl Dist, outside Langley, improved, greater than 1 acre |
| CF | Conservation Futures | 0.0316035091 | $761,418 | $761,418 | $24.06 | | |
| FIRE3 | Fire & Rescue Dist #3 S Whidbey GEN | 1.2004855531 | $761,418 | $761,418 | $914.07 | | |
| HOBOND | Hospital BOND | 0.1910887512 | $761,418 | $761,418 | $145.50 | | |
| HOGEN | Hospital GEN | 0.3902502903 | $761,418 | $761,418 | $297.14 | | |
| CE | County Current Expense | 0.3708482477 | $761,418 | $761,418 | $282.37 | | |
| CR | County Roads | 0.4584763726 | $761,418 | $761,418 | $349.09 | | |
| ISLANDEMS | Hospital GEN (EMS) | 0.5000000000 | $761,418 | $761,418 | $380.71 | | |
| LIB | Library Sno-Isle GEN | 0.3153421757 | $761,418 | $761,418 | $240.11 | | |
| PORTWHID | Port of S Whidbey GEN | 0.1094540357 | $761,418 | $761,418 | $83.34 | | |
| SCH206BOND | School 206 BOND | 0.3161759235 | $761,418 | $761,418 | $240.74 | | |
| SCH206MO | School 206 Enrichment | 0.4547169547 | $761,418 | $761,418 | $346.23 | | |
| ST | State School | 1.3035497053 | $761,418 | $761,418 | $992.55 | | |
| ST2 | State School Part 2 | 0.8169543533 | $761,418 | $761,418 | $622.04 | | |
| SWHIDPRBD | P & R S Whidbey BOND | 0.0152817568 | $761,418 | $761,418 | $11.64 | | |
| SWHIDPRBD2 | P & R S Whidbey BOND2 | 0.0138911264 | $761,418 | $761,418 | $10.58 | | |
| SWHIDPRMT | P & R S Whidbey GEN | 0.2053334452 | $761,418 | $761,418 | $156.34 | | |
| | Total Tax Rate: | 6.6934522006 | | | | | |
| | | | | Taxes w/Current Exemptions: | $5,096.51 | | |
| | | | | Taxes w/o Exemptions: | $5,096.51 | | |
Improvement / Building
| Improvement #1: | RESIDENTIAL | State Code: | Y | 3002.9 sqft | Value: | $341,418 |
| Bathrooms: | 1.75 | Bedrooms: | 3 | | Ceiling: | DRYWALL PAINTED | Cooling: | HEAT PUMP/CONV/V | | Exterior Wall/Cover: | WOOD SIDING | Floor Covering: | VINYL/HARDWOOD 60-40 | | Floor Structure: | WOOD W/SUBFLOOR | Foundation: | CONCRETE | | Interior Finish: | DRYWALL PAINT | Plumbing Fixture Cnt: | 9 | | Roof Slope: | 5" IN 12" | Roof Structure/Cover: | CJ ASPHALT |
|
| | Type | Description | Class CD | Sub Class CD | Year Built | Area |
| | BAS | BASE/MAIN FLOOR | 3 | 0 | 1949 | 1508.5 |
| | DGR | DETACHED GARAGE | 3 | 0 | 1949 | 490.0 |
| | UTY | STORAGE/UTILITY | 3 | 0 | 1949 | 230.0 |
| | UTY | STORAGE/UTILITY | 3 | 0 | 1949 | 32.0 |
| | OWP | OPEN WOOD PORCH W/STEPS | 3 | 0 | 1949 | 590.4 |
| | OWP | OPEN WOOD PORCH W/STEPS | 3 | 0 | 1949 | 140.0 |
| | DWN | DOWNSTAIRS LIVING AREA | 3 | 0 | 1949 | 1494.4 |
Sketch
Property Image
Land
| 1 | 32 | AC (03.01-09.99) | 5.0000 | 0.00 | 0.00 | 0.00 | 1.00 | $420,000 | $0 |
Roll Value History
| 2026 | N/A | N/A | N/A | N/A | N/A |
| 2025 | $341,418 | $420,000 | $0 | $761,418 | $761,418 |
| 2024 | $346,276 | $390,000 | $0 | $736,276 | $736,276 |
| 2023 | $351,137 | $350,000 | $0 | $701,137 | $701,137 |
| 2022 | $322,727 | $350,000 | $0 | $672,727 | $672,727 |
| 2021 | $284,463 | $300,000 | $0 | $584,463 | $584,463 |
| 2020 | $275,397 | $260,000 | $0 | $535,397 | $535,397 |
| 2019 | $218,399 | $300,000 | $0 | $518,399 | $518,399 |
| 2018 | $219,223 | $250,000 | $0 | $469,223 | $469,223 |
| 2017 | $220,847 | $200,000 | $0 | $420,847 | $420,847 |
| 2016 | $224,144 | $145,000 | $0 | $369,144 | $369,144 |
| 2015 | $227,440 | $145,000 | $0 | $372,440 | $372,440 |
| 2014 | $205,319 | $150,000 | $0 | $355,319 | $355,319 |
| 2013 | $209,035 | $135,000 | $0 | $344,035 | $344,035 |
| 2012 | $212,747 | $170,000 | $0 | $382,747 | $382,747 |
| 2011 | $216,461 | $170,000 | $0 | $386,461 | $386,461 |
| 2010 | $236,567 | $170,000 | $0 | $406,567 | $406,567 |
| 2009 | $247,518 | $220,000 | $0 | $467,518 | $467,518 |
| 2008 | $236,919 | $250,000 | $0 | $486,919 | $486,919 |
| 2007 | $240,496 | $192,500 | $0 | $432,996 | $432,996 |
Deed and Sales History
| 1 | 05/18/2007 | WD | Warranty Deed | HON, PATRICIA L H | DAVIS, ANDREW P | | | $495,500.00 | 71706 | 4202746 |
| 2 | 08/07/2003 | WD | Warranty Deed | DION, F R | HON, PATRICIA L H | | | $400,000.00 | 33662 | 4071900 |
| 3 | 08/01/1993 | WD | Warranty Deed | DAILY, JOHN P | DION, F R | | | $200,000.00 | 33399 | 93017611 |
| 4 | 12/01/1990 | WD | Warranty Deed | BUTTERWORTH, FRANK I | DAILY, JOHN P | | | $220,000.00 | 10009 | 91000095 |
| 5 | 12/01/1985 | WD | Warranty Deed | JOHNSTON, ELIZABETH C | BUTTERWORTH, FRANK I | | | $85,000.00 | 53469 | 85013715 |
| 6 | 01/01/1983 | OTHER | Other - Misc. Documents | JOHNSTON, ROBERT J | JOHNSTON, ELIZABETH C | | | $0.00 | 59821 | 0 |
| 7 | 11/01/1970 | OTHER | Other - Misc. Documents | Unknown | JOHNSTON, ROBERT J | | | $32,000.00 | 40101 | 0 |
Payout Agreement
| No payout information available.. |