Property
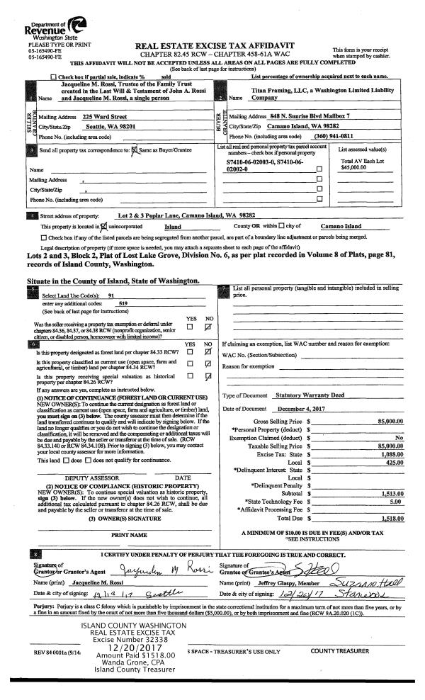
Account |
| Property ID: | 134081 | Abbreviated Legal Description: | 0.5700 Acres ins Section 20s Township 29s Range R3s LOT B BLA 376-17 AF# 4434117 TL 23 - IN NW SW;s |
| Geographic ID: | R32920-193-1320 | Agent Code: | |
| Type: | Real | | |
| Tax Area: | 710 - APPRAISER-S Whid Schl Dist, outside Langley, improved & 1 acre or less | Land Use Code | 11 |
| Open Space: | N | DFL | N |
| Historic Property: | N | Remodel Property: | N |
| Multi-Family Redevelopment: | N | | |
| Township: | 29 | Section: | 20 |
| Range: | R3 |
Location |
| Address: | 2897 LONGHOUSE LN CLINTON, WA 98236 | Mapsco: | |
| Neighborhood: | Cycle 4 | Map ID: | 791 |
| Neighborhood CD: | 4 |
Owner |
| Name: | SHERMAN, DIERDRE R | Owner ID: | 285701 |
| Mailing Address: | 2897 LONGHOUSE LN CLINTON, WA 98236 | % Ownership: | 100.0000000000% |
| | | Exemptions: | |
Taxes and Assessment Details
Values
| (+) Improvement Homesite Value: | + | $0 | |
| (+) Improvement Non-Homesite Value: | + | $105,388 | |
| (+) Land Homesite Value: | + | $0 | |
| (+) Land Non-Homesite Value: | + | $260,000 | |
| (+) Curr Use (HS): | + | $0 | $0 |
| (+) Curr Use (NHS): | + | $0 | $0 |
| | | -------------------------- | |
| (=) Market Value: | = | $365,388 | |
| (–) Productivity Loss: | – | $0 | |
| | | -------------------------- | |
| (=) Subtotal: | = | $365,388 | |
| (+) Senior Appraised Value: | + | $0 | |
| (+) Non-Senior Appraised Value: | + | $365,388 | |
| | | -------------------------- | |
| (=) Total Appraised Value: | = | $365,388 | |
| (–) Senior Exemption Loss: | – | $0 | |
| (–) Exemption Loss: | – | $0 | |
| | | -------------------------- | |
| (=) Taxable Value: | = | $365,388 | |
Taxing Jurisdiction
| Owner: | SHERMAN, DIERDRE R | | |
| % Ownership: | 100.0000000000% | | |
| Total Value: | $365,388 | | |
| Tax Area: | 710 - APPRAISER-S Whid Schl Dist, outside Langley, improved & 1 acre or less |
| CF | Conservation Futures | 0.0316035091 | $365,388 | $365,388 | $11.55 | | |
| FIRE3 | Fire & Rescue Dist #3 S Whidbey GEN | 1.2004855531 | $365,388 | $365,388 | $438.64 | | |
| HOBOND | Hospital BOND | 0.1910887512 | $365,388 | $365,388 | $69.82 | | |
| HOGEN | Hospital GEN | 0.3902502903 | $365,388 | $365,388 | $142.59 | | |
| CE | County Current Expense | 0.3708482477 | $365,388 | $365,388 | $135.50 | | |
| CR | County Roads | 0.4584763726 | $365,388 | $365,388 | $167.52 | | |
| ISLANDEMS | Hospital GEN (EMS) | 0.5000000000 | $365,388 | $365,388 | $182.69 | | |
| LIB | Library Sno-Isle GEN | 0.3153421757 | $365,388 | $365,388 | $115.22 | | |
| PORTWHID | Port of S Whidbey GEN | 0.1094540357 | $365,388 | $365,388 | $39.99 | | |
| SCH206BOND | School 206 BOND | 0.3161759235 | $365,388 | $365,388 | $115.53 | | |
| SCH206MO | School 206 Enrichment | 0.4547169547 | $365,388 | $365,388 | $166.15 | | |
| ST | State School | 1.3035497053 | $365,388 | $365,388 | $476.30 | | |
| ST2 | State School Part 2 | 0.8169543533 | $365,388 | $365,388 | $298.51 | | |
| SWHIDPRBD | P & R S Whidbey BOND | 0.0152817568 | $365,388 | $365,388 | $5.58 | | |
| SWHIDPRBD2 | P & R S Whidbey BOND2 | 0.0138911264 | $365,388 | $365,388 | $5.08 | | |
| SWHIDPRMT | P & R S Whidbey GEN | 0.2053334452 | $365,388 | $365,388 | $75.03 | | |
| | Total Tax Rate: | 6.6934522006 | | | | | |
| | | | | Taxes w/Current Exemptions: | $2,445.70 | | |
| | | | | Taxes w/o Exemptions: | $2,445.70 | | |
Improvement / Building
| Improvement #1: | MANUFACTURED HOME | State Code: | Y | 1300.0 sqft | Value: | $105,388 |
| Bathrooms: | 2 | Bedrooms: | 3 | | Ceiling: | PLASTER PAINTED | Cooling: | HEAT PUMP/CONV/V | | Exterior Wall/Cover: | VINYL | Floor Covering: | CARPET 100% | | Floor Structure: | SLAB ON GRADE | Foundation: | SLAB | | Interior Finish: | PLASTER | Plumbing Fixture Cnt: | 1 | | Roof Slope: | FLAT | Roof Structure/Cover: | CJ ALUMINIUM HEAVY |
|
Sketch
Property Image
Land
| 1 | 16 | AC (00.51-01.00) | 0.0000 | 0.00 | 0.00 | 0.00 | 1.00 | $260,000 | $0 |
Roll Value History
| 2026 | N/A | N/A | N/A | N/A | N/A |
| 2025 | $105,388 | $260,000 | $0 | $365,388 | $365,388 |
| 2024 | $108,198 | $250,000 | $0 | $358,198 | $358,198 |
| 2023 | $96,528 | $240,000 | $0 | $336,528 | $336,528 |
| 2022 | $89,621 | $240,000 | $0 | $329,621 | $329,621 |
| 2021 | $79,857 | $155,000 | $0 | $234,857 | $234,857 |
| 2020 | $86,157 | $135,000 | $0 | $221,157 | $221,157 |
| 2019 | $68,668 | $130,000 | $0 | $198,668 | $198,668 |
| 2018 | $69,466 | $130,000 | $0 | $199,466 | $199,466 |
| 2017 | $54,232 | $120,000 | $0 | $174,232 | $174,232 |
| 2016 | $54,985 | $100,000 | $0 | $154,985 | $154,985 |
| 2015 | $56,492 | $85,000 | $0 | $141,492 | $141,492 |
| 2014 | $56,881 | $106,250 | $0 | $163,131 | $163,131 |
| 2013 | $58,297 | $106,250 | $0 | $164,547 | $164,547 |
| 2012 | $59,713 | $106,250 | $0 | $165,963 | $165,963 |
| 2011 | $60,421 | $125,000 | $0 | $185,421 | $185,421 |
| 2010 | $67,155 | $125,000 | $0 | $192,155 | $192,155 |
| 2009 | $69,848 | $150,000 | $0 | $219,848 | $219,848 |
| 2008 | $72,290 | $170,000 | $0 | $242,290 | $242,290 |
| 2007 | $73,188 | $135,000 | $0 | $208,188 | $208,188 |
Deed and Sales History
| 1 | 05/21/2018 | WD | Warranty Deed | CANRIGHT, CHARLES | SHERMAN, DIERDRE R | | | $236,250.00 | 34181 | 4444822 |
| 2 | 02/09/2018 | WD | Warranty Deed | ZECH, JACK L | CANRIGHT, CHARLES | | | $200,000.00 | 32912 | 4439003 |
| 3 | 12/15/2017 | QCD | Quit Claim Deed | JONES, SHARON | ZECH, JACK L | | | $0.00 | 32550 | 4437144 |
| 4 | 12/15/2017 | QCD | Quit Claim Deed | JONES, SHARON | ZECH, JACK L | | | $0.00 | 32361 | 4436190 |
| 5 | 10/10/2007 | ESTSEPPROP | Establish Separate Property | ZECH, JACK L | ZECH, JACK L | | | $0.00 | 73444 | 4214117 |
| 6 | 11/08/2006 | WD | Warranty Deed | KISH, RUSSELL L | ZECH, JACK L | | | $222,000.00 | 64886 | 4187079 |
| 7 | 01/27/2000 | PRD | Personal Representatives Deed | KISH, RUSSELL | KISH, RUSSELL L | | | $0.00 | 257 | 20001357 |
| 8 | 09/17/1999 | OTHER | Other - Misc. Documents | KISH, MARGARET | KISH, RUSSELL | | | $0.00 | 93868 | 0 |
| 9 | 01/01/1994 | QCD | Quit Claim Deed | KISH, MARGARET | KISH, MARGARET | | | $0.00 | 40255 | 94001525 |
| 10 | 12/01/1993 | OTHER | Other - Misc. Documents | KISH, MARGARET & | KISH, MARGARET | | | $40,000.00 | 11111111 | 0 |
| 11 | 11/01/1993 | WD | Warranty Deed | GROH, JOHN P | KISH, MARGARET & | | | $28,500.00 | 34412 | 93023010 |
| 12 | 08/01/1991 | WD | Warranty Deed | AMBERSON, ROBERT C | GROH, JOHN P | | | $20,000.00 | 13200 | 91013597 |
| 13 | 01/01/1900 | OTHER | Other - Misc. Documents | Unknown | AMBERSON, ROBERT C | | | $0.00 | 0 | 0 |
Payout Agreement
| No payout information available.. |