Property
Account |
| Property ID: | 134214 | Abbreviated Legal Description: | 43 - N1/2 SE SE NE |
| Geographic ID: | R32920-314-4890 | Agent Code: | |
| Type: | Real | | |
| Tax Area: | 712 - APPRAISER-S Whid Schl Dist, outside Langley, improved, greater than 1 acre | Land Use Code | 11 |
| Open Space: | N | DFL | N |
| Historic Property: | N | Remodel Property: | N |
| Multi-Family Redevelopment: | N | | |
| Township: | 29 | Section: | 20 |
| Range: | R3 |
Location |
| Address: | 6169 PIONEER PARK PLACE LANGLEY, WA 98260 | Mapsco: | |
| Neighborhood: | Cycle 4 | Map ID: | 794 |
| Neighborhood CD: | 4 |
Owner |
| Name: | ALEXANDER, PETER D | Owner ID: | 297791 |
| Mailing Address: | REBECCA A ALEXANDER 6169 PIONEER PARK PL LANGLEY, WA 98260 | % Ownership: | 100.0000000000% |
| | | Exemptions: | |
Taxes and Assessment Details
Values
| (+) Improvement Homesite Value: | + | $0 | |
| (+) Improvement Non-Homesite Value: | + | $84,446 | |
| (+) Land Homesite Value: | + | $0 | |
| (+) Land Non-Homesite Value: | + | $380,000 | |
| (+) Curr Use (HS): | + | $0 | $0 |
| (+) Curr Use (NHS): | + | $0 | $0 |
| | | -------------------------- | |
| (=) Market Value: | = | $464,446 | |
| (–) Productivity Loss: | – | $0 | |
| | | -------------------------- | |
| (=) Subtotal: | = | $464,446 | |
| (+) Senior Appraised Value: | + | $0 | |
| (+) Non-Senior Appraised Value: | + | $464,446 | |
| | | -------------------------- | |
| (=) Total Appraised Value: | = | $464,446 | |
| (–) Senior Exemption Loss: | – | $0 | |
| (–) Exemption Loss: | – | $0 | |
| | | -------------------------- | |
| (=) Taxable Value: | = | $464,446 | |
Taxing Jurisdiction
| Owner: | ALEXANDER, PETER D | | |
| % Ownership: | 100.0000000000% | | |
| Total Value: | $464,446 | | |
| Tax Area: | 712 - APPRAISER-S Whid Schl Dist, outside Langley, improved, greater than 1 acre |
| CF | Conservation Futures | 0.0316035091 | $464,446 | $464,446 | $14.68 | | |
| FIRE3 | Fire & Rescue Dist #3 S Whidbey GEN | 1.2004855531 | $464,446 | $464,446 | $557.56 | | |
| HOBOND | Hospital BOND | 0.1910887512 | $464,446 | $464,446 | $88.75 | | |
| HOGEN | Hospital GEN | 0.3902502903 | $464,446 | $464,446 | $181.25 | | |
| CE | County Current Expense | 0.3708482477 | $464,446 | $464,446 | $172.24 | | |
| CR | County Roads | 0.4584763726 | $464,446 | $464,446 | $212.94 | | |
| ISLANDEMS | Hospital GEN (EMS) | 0.5000000000 | $464,446 | $464,446 | $232.22 | | |
| LIB | Library Sno-Isle GEN | 0.3153421757 | $464,446 | $464,446 | $146.46 | | |
| PORTWHID | Port of S Whidbey GEN | 0.1094540357 | $464,446 | $464,446 | $50.84 | | |
| SCH206BOND | School 206 BOND | 0.3161759235 | $464,446 | $464,446 | $146.85 | | |
| SCH206MO | School 206 Enrichment | 0.4547169547 | $464,446 | $464,446 | $211.19 | | |
| ST | State School | 1.3035497053 | $464,446 | $464,446 | $605.43 | | |
| ST2 | State School Part 2 | 0.8169543533 | $464,446 | $464,446 | $379.43 | | |
| SWHIDPRBD | P & R S Whidbey BOND | 0.0152817568 | $464,446 | $464,446 | $7.10 | | |
| SWHIDPRBD2 | P & R S Whidbey BOND2 | 0.0138911264 | $464,446 | $464,446 | $6.45 | | |
| SWHIDPRMT | P & R S Whidbey GEN | 0.2053334452 | $464,446 | $464,446 | $95.37 | | |
| | Total Tax Rate: | 6.6934522006 | | | | | |
| | | | | Taxes w/Current Exemptions: | $3,108.76 | | |
| | | | | Taxes w/o Exemptions: | $3,108.76 | | |
Improvement / Building
| Improvement #1: | MANUFACTURED HOME | State Code: | Y | 1152.0 sqft | Value: | $24,913 |
| Bathrooms: | 0 | Bedrooms: | 0 | | Ceiling: | PLASTER PAINTED | Cooling: | EVAP NO DUCT | | Exterior Wall/Cover: | VINYL | Floor Covering: | CARPET 100% | | Floor Structure: | SLAB ON GRADE | Foundation: | SLAB | | Heating: | FHA ELECTRIC | Interior Finish: | PLASTER | | Plumbing Fixture Cnt: | 1 | Roof Slope: | FLAT | | Roof Structure/Cover: | CJ ALUMINIUM HEAVY |   |   |
|
| | Type | Description | Class CD | Sub Class CD | Year Built | Area |
| | BAS | BASE/MAIN FLOOR | 3 | 0 | 1977 | 1152.0 |
| | OWP | OPEN WOOD PORCH W/STEPS | 3 | 0 | 1977 | 120.0 |
| | OWP | OPEN WOOD PORCH W/STEPS | 3 | 0 | 1977 | 120.0 |
| Improvement #2: | RESIDENTIAL | State Code: | Y | 1138.0 sqft | Value: | $59,533 |
| Bathrooms: | 2 | Bedrooms: | 2 | | Ceiling: | (NONE) | Exterior Wall/Cover: | PLYWOOD/WOOD FRAME | | Floor Covering: | (NONE) | Floor Structure: | WOOD ON WOOD JOIST | | Foundation: | CONCRETE | Heating: | FHA GAS | | Interior Finish: | (NONE) | Plumbing Fixture Cnt: | 1 | | Roof Slope: | 8" IN 12" | Roof Structure/Cover: | BEAM ALUMINUM HEAVY |
|
| | Type | Description | Class CD | Sub Class CD | Year Built | Area |
| | BAS | BASE/MAIN FLOOR | 3 | 0 | 2011 | 658.0 |
| | UPS | UPPER STORY | 3 | 0 | 2011 | 480.0 |
| | OWR | OPEN WOOD PORCH W/STEPS/ROOF | 3 | 0 | 2011 | 216.0 |
| | OWR | OPEN WOOD PORCH W/STEPS/ROOF | 3 | 0 | 2011 | 216.0 |
Sketch
Property Image
Land
| 1 | 32 | AC (03.01-09.99) | 5.0000 | 0.00 | 0.00 | 0.00 | 1.00 | $380,000 | $0 |
Roll Value History
| 2026 | N/A | N/A | N/A | N/A | N/A |
| 2025 | $84,446 | $380,000 | $0 | $464,446 | $464,446 |
| 2024 | $86,176 | $350,000 | $0 | $436,176 | $436,176 |
| 2023 | $88,940 | $330,000 | $0 | $418,940 | $418,940 |
| 2022 | $82,096 | $290,000 | $0 | $372,096 | $372,096 |
| 2021 | $73,430 | $230,000 | $0 | $303,430 | $303,430 |
| 2020 | $72,366 | $190,000 | $0 | $262,366 | $262,366 |
| 2019 | $56,221 | $250,000 | $0 | $306,221 | $306,221 |
| 2018 | $50,260 | $210,000 | $0 | $260,260 | $260,260 |
| 2017 | $47,301 | $190,000 | $0 | $237,301 | $237,301 |
| 2016 | $48,834 | $150,000 | $0 | $198,834 | $198,834 |
| 2015 | $50,368 | $135,000 | $0 | $185,368 | $185,368 |
| 2014 | $50,295 | $125,000 | $0 | $175,295 | $175,295 |
| 2013 | $56,034 | $135,000 | $0 | $191,034 | $191,034 |
| 2012 | $56,473 | $170,000 | $0 | $226,473 | $226,473 |
| 2011 | $39,801 | $170,000 | $0 | $209,801 | $209,801 |
| 2010 | $33,454 | $170,000 | $0 | $203,454 | $203,454 |
| 2009 | $34,265 | $220,000 | $0 | $254,265 | $254,265 |
| 2008 | $38,000 | $250,000 | $0 | $288,000 | $288,000 |
| 2007 | $39,416 | $192,500 | $0 | $231,916 | $231,916 |
Deed and Sales History
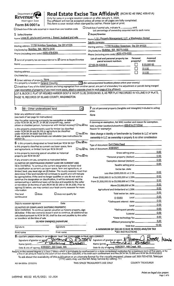
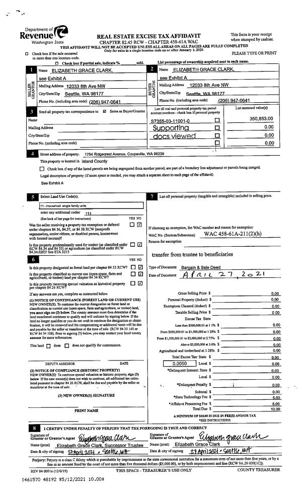
| 1 | 01/22/2021 | PRD | Personal Representatives Deed | ALEXANDER, LISA J | ALEXANDER, PETER D | | | $183,334.00 | 46669 | 4508576 |
| 2 | 01/14/2021 | QCD | Quit Claim Deed | ALEXANDER, LISA J | ALEXANDER, PETER D | | | $0.00 | 46624 | 4508575 |
| 3 | 10/07/2005 | WD | Warranty Deed | STRONG, BILL J | ALEXANDER, LISA J | | | $200,000.00 | 55120 | 4150275 |
| 4 | 04/01/1997 | WD | Warranty Deed | STRONG, JODEE M | STRONG, BILL J | | | $0.00 | 71026 | 0 |
| 5 | 07/01/1996 | OTHER | Other - Misc. Documents | STROEBEL, VERN | STRONG, JODEE | | | $0.00 | 62558 | 0 |
| 6 | 07/01/1996 | PRD | Personal Representatives Deed | STRONG, JODEE | STRONG, JODEE M | | | $45,000.00 | 62863 | 96014014 |
| 7 | 01/01/1974 | EXECUTORD | Executor Deed | BRYDGES, KENNETH A | STROEBEL, VERN | | | $0.00 | 49866 | 0 |
| 8 | 01/01/1900 | OTHER | Other - Misc. Documents | Unknown | STROEBEL, VERN R | | | $20,775.00 | 0 | 0 |
| 9 | 01/01/1900 | OTHER | Other - Misc. Documents | STROEBEL, VERN R | BRYDGES, KENNETH A | | | $0.00 | 0 | 0 |
Payout Agreement
| No payout information available.. |