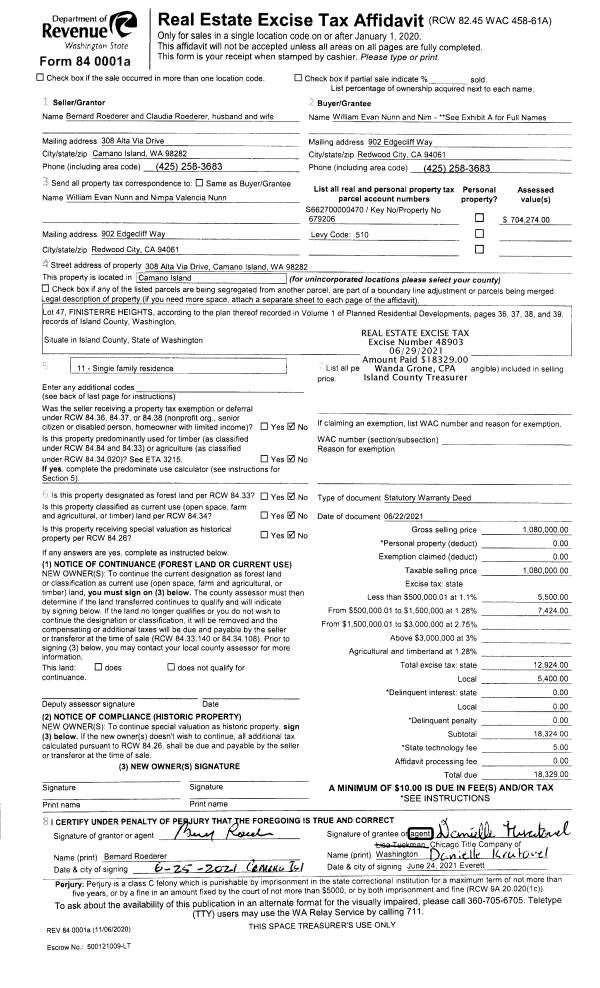
Property
Account |
| Property ID: | 134296 | Abbreviated Legal Description: | 1 - S/2 SE NE NE |
| Geographic ID: | R32920-414-4940 | Agent Code: | |
| Type: | Real | | |
| Tax Area: | 712 - APPRAISER-S Whid Schl Dist, outside Langley, improved, greater than 1 acre | Land Use Code | 11 |
| Open Space: | N | DFL | N |
| Historic Property: | N | Remodel Property: | N |
| Multi-Family Redevelopment: | N | | |
| Township: | 29 | Section: | 20 |
| Range: | R3 |
Location |
| Address: | 6095 PIONEER PARK PLACE LANGLEY, WA 98260 | Mapsco: | |
| Neighborhood: | Cycle 4 | Map ID: | 794 |
| Neighborhood CD: | 4 |
Owner |
| Name: | WHITAKER, LARRY D / JAMIE M | Owner ID: | 93412 |
| Mailing Address: | 6095 PIONEER PARK PLACE LANGLEY, WA 98260-9727 | % Ownership: | 100.0000000000% |
| | | Exemptions: | |
Taxes and Assessment Details
Values
| (+) Improvement Homesite Value: | + | $0 | |
| (+) Improvement Non-Homesite Value: | + | $167,009 | |
| (+) Land Homesite Value: | + | $0 | |
| (+) Land Non-Homesite Value: | + | $380,000 | |
| (+) Curr Use (HS): | + | $0 | $0 |
| (+) Curr Use (NHS): | + | $0 | $0 |
| | | -------------------------- | |
| (=) Market Value: | = | $547,009 | |
| (–) Productivity Loss: | – | $0 | |
| | | -------------------------- | |
| (=) Subtotal: | = | $547,009 | |
| (+) Senior Appraised Value: | + | $0 | |
| (+) Non-Senior Appraised Value: | + | $547,009 | |
| | | -------------------------- | |
| (=) Total Appraised Value: | = | $547,009 | |
| (–) Senior Exemption Loss: | – | $0 | |
| (–) Exemption Loss: | – | $0 | |
| | | -------------------------- | |
| (=) Taxable Value: | = | $547,009 | |
Taxing Jurisdiction
| Owner: | WHITAKER, LARRY D / JAMIE M | | |
| % Ownership: | 100.0000000000% | | |
| Total Value: | $547,009 | | |
| Tax Area: | 712 - APPRAISER-S Whid Schl Dist, outside Langley, improved, greater than 1 acre |
| CF | Conservation Futures | 0.0316035091 | $547,009 | $547,009 | $17.29 | | |
| FIRE3 | Fire & Rescue Dist #3 S Whidbey GEN | 1.2004855531 | $547,009 | $547,009 | $656.68 | | |
| HOBOND | Hospital BOND | 0.1910887512 | $547,009 | $547,009 | $104.53 | | |
| HOGEN | Hospital GEN | 0.3902502903 | $547,009 | $547,009 | $213.47 | | |
| CE | County Current Expense | 0.3708482477 | $547,009 | $547,009 | $202.86 | | |
| CR | County Roads | 0.4584763726 | $547,009 | $547,009 | $250.79 | | |
| ISLANDEMS | Hospital GEN (EMS) | 0.5000000000 | $547,009 | $547,009 | $273.50 | | |
| LIB | Library Sno-Isle GEN | 0.3153421757 | $547,009 | $547,009 | $172.50 | | |
| PORTWHID | Port of S Whidbey GEN | 0.1094540357 | $547,009 | $547,009 | $59.87 | | |
| SCH206BOND | School 206 BOND | 0.3161759235 | $547,009 | $547,009 | $172.95 | | |
| SCH206MO | School 206 Enrichment | 0.4547169547 | $547,009 | $547,009 | $248.73 | | |
| ST | State School | 1.3035497053 | $547,009 | $547,009 | $713.05 | | |
| ST2 | State School Part 2 | 0.8169543533 | $547,009 | $547,009 | $446.88 | | |
| SWHIDPRBD | P & R S Whidbey BOND | 0.0152817568 | $547,009 | $547,009 | $8.36 | | |
| SWHIDPRBD2 | P & R S Whidbey BOND2 | 0.0138911264 | $547,009 | $547,009 | $7.60 | | |
| SWHIDPRMT | P & R S Whidbey GEN | 0.2053334452 | $547,009 | $547,009 | $112.32 | | |
| | Total Tax Rate: | 6.6934522006 | | | | | |
| | | | | Taxes w/Current Exemptions: | $3,661.38 | | |
| | | | | Taxes w/o Exemptions: | $3,661.38 | | |
Improvement / Building
| Improvement #1: | RESIDENTIAL | State Code: | Y | 806.2 sqft | Value: | $159,916 |
| Bathrooms: | 1 | Bedrooms: | 2 | | Ceiling: | DRYWALL PAINTED | Exterior Wall/Cover: | WOOD SIDING | | Floor Covering: | HARDWOOD 100% | Floor Structure: | WOOD W/SUBFLOOR | | Foundation: | CONCRETE | Interior Finish: | DRYWALL PAINT | | Plumbing Fixture Cnt: | 7 | Roof Slope: | 4" IN 12" | | Roof Structure/Cover: | BEAM WOOD SHAKES |   |   |
|
| | Type | Description | Class CD | Sub Class CD | Year Built | Area |
| | BAS | BASE/MAIN FLOOR | 3 | 0 | 1976 | 806.2 |
| | UTY | STORAGE/UTILITY | 3 | 0 | 1976 | 128.0 |
| | OWP | OPEN WOOD PORCH W/STEPS | 3 | 0 | 1976 | 369.6 |
| | CPD | OPEN CARPORT DIRT FLOOR | 3 | 0 | 1976 | 80.0 |
| | CPD | OPEN CARPORT DIRT FLOOR | 3 | 0 | 1976 | 240.0 |
| | DGR | DETACHED GARAGE | 3 | 0 | 1976 | 308.0 |
| Improvement #2: | MANUFACTURED HOME | State Code: | Y | 480.0 sqft | Value: | $7,093 |
| Bathrooms: | 0 | Bedrooms: | 0 | | Ceiling: | PLASTER PAINTED | Cooling: | EVAP NO DUCT | | Exterior Wall/Cover: | VINYL | Floor Covering: | CARPET 100% | | Floor Structure: | SLAB ON GRADE | Foundation: | SLAB | | Heating: | FHA ELECTRIC | Interior Finish: | PLASTER | | Plumbing Fixture Cnt: | 1 | Roof Slope: | FLAT | | Roof Structure/Cover: | CJ ALUMINIUM HEAVY |   |   |
|
Sketch
Property Image
Land
| 1 | 32 | AC (03.01-09.99) | 5.0000 | 0.00 | 0.00 | 0.00 | 1.00 | $380,000 | $0 |
Roll Value History
| 2026 | N/A | N/A | N/A | N/A | N/A |
| 2025 | $167,009 | $380,000 | $0 | $547,009 | $547,009 |
| 2024 | $169,631 | $350,000 | $0 | $519,631 | $519,631 |
| 2023 | $171,286 | $330,000 | $0 | $501,286 | $501,286 |
| 2022 | $157,456 | $290,000 | $0 | $447,456 | $447,456 |
| 2021 | $138,968 | $230,000 | $0 | $368,968 | $368,968 |
| 2020 | $129,048 | $190,000 | $0 | $319,048 | $319,048 |
| 2019 | $90,187 | $250,000 | $0 | $340,187 | $340,187 |
| 2018 | $90,466 | $210,000 | $0 | $300,466 | $300,466 |
| 2017 | $89,485 | $190,000 | $0 | $279,485 | $279,485 |
| 2016 | $90,755 | $150,000 | $0 | $240,755 | $240,755 |
| 2015 | $92,029 | $135,000 | $0 | $227,029 | $227,029 |
| 2014 | $90,619 | $125,000 | $0 | $215,619 | $215,619 |
| 2013 | $91,759 | $135,000 | $0 | $226,759 | $226,759 |
| 2012 | $92,898 | $170,000 | $0 | $262,898 | $262,898 |
| 2011 | $94,037 | $170,000 | $0 | $264,037 | $264,037 |
| 2010 | $93,595 | $170,000 | $0 | $263,595 | $263,595 |
| 2009 | $97,249 | $220,000 | $0 | $317,249 | $317,249 |
| 2008 | $98,450 | $250,000 | $0 | $348,450 | $348,450 |
| 2007 | $99,643 | $192,500 | $0 | $292,143 | $292,143 |
Deed and Sales History
| 1 | 06/01/1992 | QCD | Quit Claim Deed | HOUSLEY, EDWINA L | WHITAKER, LARRY D | | | $0.00 | 22238 | 92010818 |
| 2 | 02/01/1989 | QCD | Quit Claim Deed | HOUSLEY, EDWINA L | HOUSLEY, EDWINA L | | | $0.00 | 90854 | 89003055 |
| 3 | 07/01/1981 | EXECUTORD | Executor Deed | DERENOFF, NICHOLAS M | HOUSLEY, EDWINA L | | | $54,500.00 | 12312 | 385959 |
| 4 | 01/01/1900 | OTHER | Other - Misc. Documents | Unknown | KROGSENG, PETER J | | | $0.00 | 0 | 0 |
| 5 | 01/01/1900 | OTHER | Other - Misc. Documents | KROGSENG, PETER J | DERENOFF, NICHOLAS M | | | $0.00 | 0 | 0 |
Payout Agreement
| No payout information available.. |