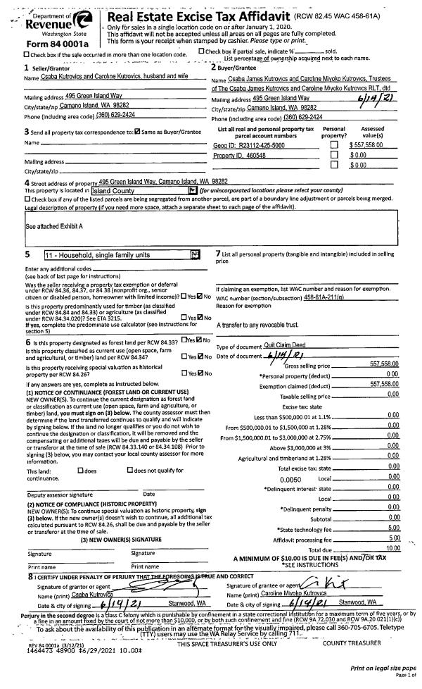
Property
Account |
| Property ID: | 134303 | Abbreviated Legal Description: | 27 - S/2 SW NE NE |
| Geographic ID: | R32920-415-4310 | Agent Code: | |
| Type: | Real | | |
| Tax Area: | 712 - APPRAISER-S Whid Schl Dist, outside Langley, improved, greater than 1 acre | Land Use Code | 11 |
| Open Space: | N | DFL | N |
| Historic Property: | N | Remodel Property: | N |
| Multi-Family Redevelopment: | N | | |
| Township: | 29 | Section: | 20 |
| Range: | R3 |
Location |
| Address: | 6090 PIONEER PARK PLACE LANGLEY, WA 98260 | Mapsco: | |
| Neighborhood: | Cycle 4 | Map ID: | 794 |
| Neighborhood CD: | 4 |
Owner |
| Name: | CONWAY, JUDITH ANN | Owner ID: | 316271 |
| Mailing Address: | 848 MENTONE AVE GROVER BEACH, CA 93433 | % Ownership: | 100.0000000000% |
| | | Exemptions: | |
Taxes and Assessment Details
Values
| (+) Improvement Homesite Value: | + | $0 | |
| (+) Improvement Non-Homesite Value: | + | $48,216 | |
| (+) Land Homesite Value: | + | $0 | |
| (+) Land Non-Homesite Value: | + | $380,000 | |
| (+) Curr Use (HS): | + | $0 | $0 |
| (+) Curr Use (NHS): | + | $0 | $0 |
| | | -------------------------- | |
| (=) Market Value: | = | $428,216 | |
| (–) Productivity Loss: | – | $0 | |
| | | -------------------------- | |
| (=) Subtotal: | = | $428,216 | |
| (+) Senior Appraised Value: | + | $0 | |
| (+) Non-Senior Appraised Value: | + | $428,216 | |
| | | -------------------------- | |
| (=) Total Appraised Value: | = | $428,216 | |
| (–) Senior Exemption Loss: | – | $0 | |
| (–) Exemption Loss: | – | $0 | |
| | | -------------------------- | |
| (=) Taxable Value: | = | $428,216 | |
Taxing Jurisdiction
| Owner: | CONWAY, JUDITH ANN | | |
| % Ownership: | 100.0000000000% | | |
| Total Value: | $428,216 | | |
| Tax Area: | 712 - APPRAISER-S Whid Schl Dist, outside Langley, improved, greater than 1 acre |
| CF | Conservation Futures | 0.0316035091 | $428,216 | $428,216 | $13.53 | | |
| FIRE3 | Fire & Rescue Dist #3 S Whidbey GEN | 1.2004855531 | $428,216 | $428,216 | $514.07 | | |
| HOBOND | Hospital BOND | 0.1910887512 | $428,216 | $428,216 | $81.83 | | |
| HOGEN | Hospital GEN | 0.3902502903 | $428,216 | $428,216 | $167.11 | | |
| CE | County Current Expense | 0.3708482477 | $428,216 | $428,216 | $158.80 | | |
| CR | County Roads | 0.4584763726 | $428,216 | $428,216 | $196.33 | | |
| ISLANDEMS | Hospital GEN (EMS) | 0.5000000000 | $428,216 | $428,216 | $214.11 | | |
| LIB | Library Sno-Isle GEN | 0.3153421757 | $428,216 | $428,216 | $135.03 | | |
| PORTWHID | Port of S Whidbey GEN | 0.1094540357 | $428,216 | $428,216 | $46.87 | | |
| SCH206BOND | School 206 BOND | 0.3161759235 | $428,216 | $428,216 | $135.39 | | |
| SCH206MO | School 206 Enrichment | 0.4547169547 | $428,216 | $428,216 | $194.72 | | |
| ST | State School | 1.3035497053 | $428,216 | $428,216 | $558.20 | | |
| ST2 | State School Part 2 | 0.8169543533 | $428,216 | $428,216 | $349.83 | | |
| SWHIDPRBD | P & R S Whidbey BOND | 0.0152817568 | $428,216 | $428,216 | $6.54 | | |
| SWHIDPRBD2 | P & R S Whidbey BOND2 | 0.0138911264 | $428,216 | $428,216 | $5.95 | | |
| SWHIDPRMT | P & R S Whidbey GEN | 0.2053334452 | $428,216 | $428,216 | $87.93 | | |
| | Total Tax Rate: | 6.6934522006 | | | | | |
| | | | | Taxes w/Current Exemptions: | $2,866.24 | | |
| | | | | Taxes w/o Exemptions: | $2,866.24 | | |
Improvement / Building
| Improvement #1: | MANUFACTURED HOME | State Code: | Y | 1440.0 sqft | Value: | $48,216 |
| Bathrooms: | 0 | Bedrooms: | 0 | | Ceiling: | PLASTER PAINTED | Cooling: | EVAP NO DUCT | | Exterior Wall/Cover: | VINYL | Floor Covering: | CARPET 100% | | Floor Structure: | SLAB ON GRADE | Foundation: | SLAB | | Heating: | FHA ELECTRIC | Interior Finish: | PLASTER | | Plumbing Fixture Cnt: | 1 | Roof Slope: | FLAT | | Roof Structure/Cover: | CJ ALUMINIUM HEAVY |   |   |
|
| | Type | Description | Class CD | Sub Class CD | Year Built | Area |
| | BAS | BASE/MAIN FLOOR | 3 | 0 | 1982 | 1440.0 |
| | DGR | DETACHED GARAGE | 3 | 0 | 1982 | 576.0 |
| | ENP | ENCLOSED PORCH | 3 | 0 | 1982 | 128.0 |
| | OWP | OPEN WOOD PORCH W/STEPS | 3 | 0 | 1982 | 64.0 |
| | UTY | STORAGE/UTILITY | 3 | 0 | 1982 | 64.0 |
Sketch
Property Image
Land
| 1 | 32 | AC (03.01-09.99) | 5.0000 | 0.00 | 0.00 | 0.00 | 1.00 | $380,000 | $0 |
Roll Value History
| 2026 | N/A | N/A | N/A | N/A | N/A |
| 2025 | $48,216 | $380,000 | $0 | $428,216 | $428,216 |
| 2024 | $52,350 | $350,000 | $0 | $402,350 | $402,350 |
| 2023 | $55,105 | $330,000 | $0 | $385,105 | $385,105 |
| 2022 | $52,388 | $290,000 | $0 | $342,388 | $342,388 |
| 2021 | $47,728 | $230,000 | $0 | $277,728 | $277,728 |
| 2020 | $48,440 | $190,000 | $0 | $238,440 | $238,440 |
| 2019 | $39,812 | $250,000 | $0 | $289,812 | $289,812 |
| 2018 | $42,301 | $210,000 | $0 | $252,301 | $252,301 |
| 2017 | $43,959 | $190,000 | $0 | $233,959 | $233,959 |
| 2016 | $45,618 | $150,000 | $0 | $195,618 | $70,249 |
| 2015 | $47,277 | $135,000 | $0 | $182,277 | $70,249 |
| 2014 | $50,623 | $125,000 | $0 | $175,623 | $114,155 |
| 2013 | $59,080 | $125,460 | $0 | $184,540 | $184,540 |
| 2012 | $60,471 | $125,460 | $0 | $185,931 | $185,931 |
| 2011 | $61,862 | $125,460 | $0 | $187,322 | $187,322 |
| 2010 | $55,992 | $125,460 | $0 | $181,452 | $181,452 |
| 2009 | $58,767 | $162,360 | $0 | $221,127 | $221,127 |
| 2008 | $62,755 | $184,500 | $0 | $247,255 | $247,255 |
| 2007 | $67,170 | $142,500 | $0 | $209,670 | $209,670 |
Deed and Sales History
| 1 | 04/24/2025 | WD | Warranty Deed | JOBE, AMBER | CONWAY, JUDITH ANN | | | $285,000.00 | 63260 | 4584982 |
| 2 | 02/06/2018 | WD | Warranty Deed | WARREN JR, WILLIAM FRANKLIN | JOBE, AMBER | | | $256,000.00 | 32919 | 4439080 |
| 3 | 10/02/2014 | QCD | Quit Claim Deed | MORRISON, MISTY | WARREN JR, WILLIAM FRANKLIN | | | $0.00 | 17373 | 4367754 |
| 4 | 02/28/2013 | WD | Warranty Deed | SERAFIN, MARK A | MORRISON, MISTY | | | $145,000.00 | 10534 | 4334572 |
| 5 | 12/02/1999 | OTHER | Other - Misc. Documents | SERAFIN, MARK A | SERAFIN, MARK A | | | $32,857.00 | 94897 | 0 |
| 6 | 11/09/1999 | WD | Warranty Deed | SHOEMAKER, JOHNNIE | SERAFIN, MARK A | | | $110,000.00 | 94896 | 99027399 |
| 7 | 02/01/1993 | WD | Warranty Deed | SHOEMAKER, JOHNNIE | SHOEMAKER, JOHNNIE | | | $108,500.00 | 30657 | 93003436 |
| 8 | 02/01/1993 | OTHER | Other - Misc. Documents | BATCHELDER, HOLLIS S | SHOEMAKER, JOHNNIE | | | $40,000.00 | 70855 | 0 |
| 9 | 08/01/1982 | OTHER | Other - Misc. Documents | BATCHELDER, HOLLIS S | BATCHELDER, HOLLIS S | | | $34,068.00 | 11111111 | 0 |
| 10 | 10/01/1979 | EXECUTORD | Executor Deed | SERAFIN, MARK A | BATCHELDER, HOLLIS S | | | $25,000.00 | 95123 | 360592 |
Payout Agreement
| No payout information available.. |