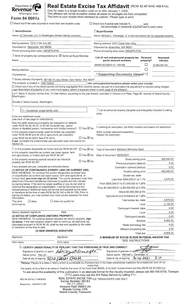
Property
Account |
| Property ID: | 134367 | Abbreviated Legal Description: | 48 - W 1 ROD OF W/2 OF NE NW - ROADWAY NO VALUE SC#10432 3/15/82 BD CHG) |
| Geographic ID: | R32920-467-1480 | Agent Code: | |
| Type: | Real | | |
| Tax Area: | 710 - APPRAISER-S Whid Schl Dist, outside Langley, improved & 1 acre or less | Land Use Code | 91 |
| Open Space: | N | DFL | N |
| Historic Property: | N | Remodel Property: | N |
| Multi-Family Redevelopment: | N | | |
| Township: | 29 | Section: | 20 |
| Range: | R3 |
Location |
| Address: | CLINTON, WA 98236 | Mapsco: | |
| Neighborhood: | Cycle 4 | Map ID: | 793 |
| Neighborhood CD: | 4 |
Owner |
| Name: | GABELEIN, VERLANE | Owner ID: | 200153 |
| Mailing Address: | MARILYN GABLEIN 2877 CEDAR SPRING LN CLINTON, WA 98236-9120 | % Ownership: | 100.0000000000% |
| | | Exemptions: | EX |
Taxes and Assessment Details
Values
| (+) Improvement Homesite Value: | + | $0 | |
| (+) Improvement Non-Homesite Value: | + | $0 | |
| (+) Land Homesite Value: | + | $0 | |
| (+) Land Non-Homesite Value: | + | $10 | |
| (+) Curr Use (HS): | + | $0 | $0 |
| (+) Curr Use (NHS): | + | $0 | $0 |
| | | -------------------------- | |
| (=) Market Value: | = | $10 | |
| (–) Productivity Loss: | – | $0 | |
| | | -------------------------- | |
| (=) Subtotal: | = | $10 | |
| (+) Senior Appraised Value: | + | $0 | |
| (+) Non-Senior Appraised Value: | + | $10 | |
| | | -------------------------- | |
| (=) Total Appraised Value: | = | $10 | |
| (–) Senior Exemption Loss: | – | $0 | |
| (–) Exemption Loss: | – | $10 | |
| | | -------------------------- | |
| (=) Taxable Value: | = | $0 | |
Taxing Jurisdiction
| Owner: | GABELEIN, VERLANE | | |
| % Ownership: | 100.0000000000% | | |
| Total Value: | $10 | | |
| Tax Area: | 710 - APPRAISER-S Whid Schl Dist, outside Langley, improved & 1 acre or less |
| CF | Conservation Futures | 0.0316035091 | $10 | $0 | $0.00 | | |
| FIRE3 | Fire & Rescue Dist #3 S Whidbey GEN | 1.2004855531 | $10 | $0 | $0.00 | | |
| HOBOND | Hospital BOND | 0.1910887512 | $10 | $0 | $0.00 | | |
| HOGEN | Hospital GEN | 0.3902502903 | $10 | $0 | $0.00 | | |
| CE | County Current Expense | 0.3708482477 | $10 | $0 | $0.00 | | |
| CR | County Roads | 0.4584763726 | $10 | $0 | $0.00 | | |
| ISLANDEMS | Hospital GEN (EMS) | 0.5000000000 | $10 | $0 | $0.00 | | |
| LIB | Library Sno-Isle GEN | 0.3153421757 | $10 | $0 | $0.00 | | |
| PORTWHID | Port of S Whidbey GEN | 0.1094540357 | $10 | $0 | $0.00 | | |
| SCH206BOND | School 206 BOND | 0.3161759235 | $10 | $0 | $0.00 | | |
| SCH206MO | School 206 Enrichment | 0.4547169547 | $10 | $0 | $0.00 | | |
| ST | State School | 1.3035497053 | $10 | $0 | $0.00 | | |
| ST2 | State School Part 2 | 0.8169543533 | $10 | $0 | $0.00 | | |
| SWHIDPRBD | P & R S Whidbey BOND | 0.0152817568 | $10 | $0 | $0.00 | | |
| SWHIDPRBD2 | P & R S Whidbey BOND2 | 0.0138911264 | $10 | $0 | $0.00 | | |
| SWHIDPRMT | P & R S Whidbey GEN | 0.2053334452 | $10 | $0 | $0.00 | | |
| | Total Tax Rate: | 6.6934522006 | | | | | |
| | | | | Taxes w/Current Exemptions: | $0.00 | | |
| | | | | Taxes w/o Exemptions: | $0.04 | | |
Improvement / Building
Sketch
| No sketches available for this property. |
Property Image
Land
| 1 | 54 | WASTE LAND | 0.0000 | 0.00 | 0.00 | 0.00 | 1.00 | $10 | $0 |
Roll Value History
| 2026 | N/A | N/A | N/A | N/A | N/A |
| 2025 | $0 | $10 | $0 | $10 | $0 |
| 2024 | $0 | $10 | $0 | $10 | $0 |
| 2023 | $0 | $10 | $0 | $10 | $0 |
| 2022 | $0 | $10 | $0 | $10 | $0 |
| 2021 | $0 | $10 | $0 | $10 | $0 |
| 2020 | $0 | $10 | $0 | $10 | $0 |
| 2019 | $0 | $10 | $0 | $10 | $0 |
| 2018 | $0 | $10 | $0 | $10 | $0 |
| 2017 | $0 | $10 | $0 | $10 | $0 |
| 2016 | $0 | $10 | $0 | $10 | $0 |
| 2015 | $0 | $10 | $0 | $10 | $0 |
| 2014 | $0 | $160 | $0 | $160 | $0 |
| 2013 | $0 | $160 | $0 | $160 | $0 |
| 2012 | $0 | $160 | $0 | $160 | $0 |
| 2011 | $0 | $160 | $0 | $160 | $0 |
| 2010 | $0 | $160 | $0 | $160 | $0 |
| 2009 | $0 | $160 | $0 | $160 | $0 |
| 2008 | $0 | $160 | $0 | $160 | $0 |
Deed and Sales History
| 1 | 07/22/2008 | WD | Warranty Deed | MADSEN, JUDITH A | GABELEIN, VERLANE | | | $165.00 | 81916 | 4233409 |
| 2 | 04/03/2008 | QCD | Quit Claim Deed | PEPPMILLER, MARVIN H | MADSEN, JUDITH A | | | $0.00 | 80834 | 4225526 |
| 3 | 03/01/1982 | CD | DNU - Correction Deed | Unknown | PEPPMILLER, MARVIN H | | | $1.00 | 59398 | 10432 |
Payout Agreement
| No payout information available.. |