Property
Account |
| Property ID: | 134893 | Abbreviated Legal Description: | 76 - E322.48' OF THE W1016' OF SE SE LY NLY OF CAMPBELL RD (AC CORR 3/83) |
| Geographic ID: | R32922-120-4860 | Agent Code: | |
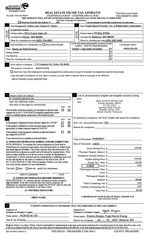
| Type: | Real | | |
| Tax Area: | 712 - APPRAISER-S Whid Schl Dist, outside Langley, improved, greater than 1 acre | Land Use Code | 11 |
| Open Space: | N | DFL | N |
| Historic Property: | N | Remodel Property: | N |
| Multi-Family Redevelopment: | N | | |
| Township: | 29 | Section: | 22 |
| Range: | R3 |
Location |
| Address: | 3975 CAMPBELL RD CLINTON, WA 98236 | Mapsco: | |
| Neighborhood: | Cycle 4 | Map ID: | 800 |
| Neighborhood CD: | 4 |
Owner |
| Name: | HUDZIAK, STEVE | Owner ID: | 182916 |
| Mailing Address: | 3975 CAMPBELL RD CLINTON, WA 98236-8642 | % Ownership: | 100.0000000000% |
| | | Exemptions: | SNR/DSBL |
Taxes and Assessment Details
Values
| (+) Improvement Homesite Value: | + | $238,515 | |
| (+) Improvement Non-Homesite Value: | + | $0 | |
| (+) Land Homesite Value: | + | $310,000 | |
| (+) Land Non-Homesite Value: | + | $0 | |
| (+) Curr Use (HS): | + | $0 | $0 |
| (+) Curr Use (NHS): | + | $0 | $0 |
| | | -------------------------- | |
| (=) Market Value: | = | $548,515 | |
| (–) Productivity Loss: | – | $0 | |
| | | -------------------------- | |
| (=) Subtotal: | = | $548,515 | |
| (+) Senior Appraised Value: | + | $261,026 | |
| (+) Non-Senior Appraised Value: | + | $0 | |
| | | -------------------------- | |
| (=) Total Appraised Value: | = | $261,026 | |
| (–) Senior Exemption Loss: | – | $156,616 | |
| (–) Exemption Loss: | – | $0 | |
| | | -------------------------- | |
| (=) Taxable Value: | = | $104,410 | |
Taxing Jurisdiction
| Owner: | HUDZIAK, STEVE | | |
| % Ownership: | 100.0000000000% | | |
| Total Value: | $548,515 | | |
| Tax Area: | 712 - APPRAISER-S Whid Schl Dist, outside Langley, improved, greater than 1 acre |
| CF | Conservation Futures | 0.0316035091 | $548,515 | $104,410 | $3.30 | | |
| FIRE3 | Fire & Rescue Dist #3 S Whidbey GEN | 1.2004855531 | $548,515 | $104,410 | $125.34 | | |
| HOBOND | Hospital BOND | 0.0000000000 | $548,515 | $0 | $0.00 | | |
| HOGEN | Hospital GEN | 0.3902502903 | $548,515 | $104,410 | $40.75 | | |
| CE | County Current Expense | 0.3708482477 | $548,515 | $104,410 | $38.72 | | |
| CR | County Roads | 0.4584763726 | $548,515 | $104,410 | $47.87 | | |
| ISLANDEMS | Hospital GEN (EMS) | 0.5000000000 | $548,515 | $104,410 | $52.21 | | |
| LIB | Library Sno-Isle GEN | 0.3153421757 | $548,515 | $104,410 | $32.92 | | |
| PORTWHID | Port of S Whidbey GEN | 0.1094540357 | $548,515 | $104,410 | $11.43 | | |
| SCH206BOND | School 206 BOND | 0.3161759235 | $548,515 | $104,410 | $33.01 | | |
| SCH206MO | School 206 Enrichment | 0.0000000000 | $548,515 | $0 | $0.00 | | |
| ST | State School | 1.3035497053 | $548,515 | $104,410 | $136.10 | | |
| ST2 | State School Part 2 | 0.0000000000 | $548,515 | $0 | $0.00 | | |
| SWHIDPRBD | P & R S Whidbey BOND | 0.0000000000 | $548,515 | $0 | $0.00 | | |
| SWHIDPRBD2 | P & R S Whidbey BOND2 | 0.0000000000 | $548,515 | $0 | $0.00 | | |
| SWHIDPRMT | P & R S Whidbey GEN | 0.2053334452 | $548,515 | $104,410 | $21.44 | | |
| | Total Tax Rate: | 5.2015192582 | | | | | |
| | | | | Taxes w/Current Exemptions: | $543.09 | | |
| | | | | Taxes w/o Exemptions: | $3,671.47 | | |
Improvement / Building
| Improvement #1: | RESIDENTIAL | State Code: | Y | 1917.0 sqft | Value: | $238,515 |
| Bathrooms: | 2 | Bedrooms: | 2 | | Ceiling: | TONGUE & GROOVE | Cooling: | HEAT PUMP/CONV/V | | Exterior Wall/Cover: | WOOD SIDING | Floor Covering: | HARDWOOD/CARP 20-80 | | Floor Structure: | WOOD W/SUBFLOOR | Foundation: | CONCRETE | | Interior Finish: | DRYWALL PAINT | Plumbing Fixture Cnt: | 9 | | Roof Slope: | 4" IN 12" | Roof Structure/Cover: | CJ ASPHALT |
|
| | Type | Description | Class CD | Sub Class CD | Year Built | Area |
| | BAS | BASE/MAIN FLOOR | 3 | 0 | 1976 | 1213.0 |
| | DGR | DETACHED GARAGE | 3 | 0 | 1976 | 440.0 |
| | UPS | UPPER STORY | 3 | 0 | 1976 | 704.0 |
| | OWP | OPEN WOOD PORCH W/STEPS | 3 | 0 | 1976 | 96.0 |
| | OWP | OPEN WOOD PORCH W/STEPS | 3 | 0 | 1976 | 560.0 |
| | OWR | OPEN WOOD PORCH W/STEPS/ROOF | 3 | 0 | 1976 | 160.0 |
| | OWR | OPEN WOOD PORCH W/STEPS/ROOF | 3 | 0 | 1976 | 35.0 |
| | OWR | OPEN WOOD PORCH W/STEPS/ROOF | 3 | 0 | 1976 | 220.0 |
| | oBAR | BARN | 3 | 0 | 1976 | 1380.0 |
Sketch
Property Image
Land
| 1 | 18 | AC (02.01-03.00) | 0.0000 | 0.00 | 0.00 | 0.00 | 1.00 | $310,000 | $0 |
Roll Value History
| 2026 | N/A | N/A | N/A | N/A | N/A |
| 2025 | $238,515 | $310,000 | $0 | $548,515 | $104,410 |
| 2024 | $242,283 | $300,000 | $0 | $542,283 | $104,410 |
| 2023 | $246,052 | $290,000 | $0 | $536,052 | $104,410 |
| 2022 | $226,221 | $270,000 | $0 | $496,221 | $104,410 |
| 2021 | $199,694 | $175,000 | $0 | $374,694 | $104,410 |
| 2020 | $183,629 | $165,000 | $0 | $348,629 | $104,410 |
| 2019 | $138,449 | $200,000 | $0 | $338,449 | $104,410 |
| 2018 | $138,968 | $170,000 | $0 | $308,968 | $104,410 |
| 2017 | $140,014 | $150,000 | $0 | $290,014 | $104,410 |
| 2016 | $142,101 | $150,000 | $0 | $292,101 | $292,101 |
| 2015 | $144,190 | $95,000 | $0 | $239,190 | $95,676 |
| 2014 | $141,974 | $95,000 | $0 | $236,974 | $94,790 |
| 2013 | $144,126 | $114,750 | $0 | $258,876 | $103,550 |
| 2012 | $146,276 | $114,750 | $0 | $261,026 | $104,410 |
| 2011 | $148,427 | $135,000 | $0 | $283,427 | $283,427 |
| 2010 | $158,704 | $135,000 | $0 | $293,704 | $293,704 |
| 2009 | $165,699 | $155,000 | $0 | $320,699 | $320,699 |
| 2008 | $162,603 | $147,900 | $0 | $310,503 | $310,503 |
| 2007 | $164,782 | $147,900 | $0 | $312,682 | $312,682 |
Deed and Sales History
| 1 | 03/08/2000 | ESTSEPPROP | Establish Separate Property | HUDZIAK, STEVE & | HUDZIAK, STEVE | | | $0.00 | 975 | 20004746 |
| 2 | 03/01/1993 | WD | Warranty Deed | BRUNJES, ROBERT E | HUDZIAK, STEVE & | | | $147,300.00 | 30867 | 93004546 |
| 3 | 06/01/1987 | WD | Warranty Deed | CORCE, DOUGLAS A | BRUNJES, ROBERT E | | | $0.00 | 71782 | 87008299 |
| 4 | 05/01/1987 | WD | Warranty Deed | BRUNJES, ROBERT E | CORCE, DOUGLAS A | | | $0.00 | 0 | 87007078 |
| 5 | 05/01/1987 | WD | Warranty Deed | CORCE, DOUGLAS A | BRUNJES, ROBERT E | | | $96,600.00 | 71479 | 87007079 |
| 6 | 06/01/1983 | WD | Warranty Deed | MCINTYRE, DOUGLAS | CORCE, DOUGLAS A | | | $96,180.00 | 31632 | 411050 |
| 7 | 03/01/1983 | OTHER | Other - Misc. Documents | MCINTYRE, DOUGLAS | MCINTYRE, DOUGLAS | | | $0.00 | 59907 | 405220 |
| 8 | 02/01/1981 | CD | DNU - Correction Deed | MCINTYRE, DOUGLAS | MCINTYRE, DOUGLAS | | | $0.00 | 10777 | 380675 |
| 9 | 01/01/1900 | OTHER | Other - Misc. Documents | Unknown | MCINTYRE, DOUGLAS | | | $0.00 | 0 | 0 |
Payout Agreement
| No payout information available.. |