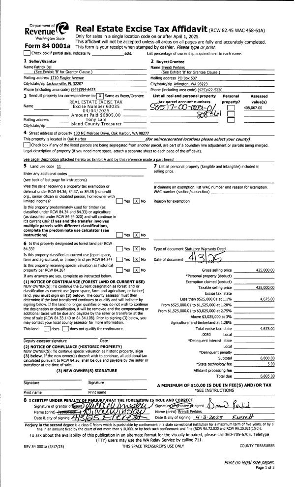
Property
Account |
| Property ID: | 135268 | Abbreviated Legal Description: | BG SW CR NW SE NE SEC 22 S88*E255.95' N2*E30' TPB N68*E226' S64*E137.01' N1* E547.97' TO NLN SE NE N88*W 404.5' S1*W578.99' S88*E71. 37'TPB |
| Geographic ID: | R32922-359-4460 | Agent Code: | |
| Type: | Real | | |
| Tax Area: | 712 - APPRAISER-S Whid Schl Dist, outside Langley, improved, greater than 1 acre | Land Use Code | 11 |
| Open Space: | N | DFL | N |
| Historic Property: | N | Remodel Property: | N |
| Multi-Family Redevelopment: | N | | |
| Township: | 29 | Section: | 22 |
| Range: | R3 |
Location |
| Address: | 3925 GOLDFINCH LN CLINTON, WA 98236 | Mapsco: | |
| Neighborhood: | Cycle 4 | Map ID: | 802 |
| Neighborhood CD: | 4 |
Owner |
| Name: | WOOD, JASON | Owner ID: | 316038 |
| Mailing Address: | MELISSA WOOD 3925 GOLDFINCH LN CLINTON, WA 98236 | % Ownership: | 100.0000000000% |
| | | Exemptions: | |
Taxes and Assessment Details
Values
| (+) Improvement Homesite Value: | + | $0 | |
| (+) Improvement Non-Homesite Value: | + | $176,750 | |
| (+) Land Homesite Value: | + | $0 | |
| (+) Land Non-Homesite Value: | + | $370,000 | |
| (+) Curr Use (HS): | + | $0 | $0 |
| (+) Curr Use (NHS): | + | $0 | $0 |
| | | -------------------------- | |
| (=) Market Value: | = | $546,750 | |
| (–) Productivity Loss: | – | $0 | |
| | | -------------------------- | |
| (=) Subtotal: | = | $546,750 | |
| (+) Senior Appraised Value: | + | $0 | |
| (+) Non-Senior Appraised Value: | + | $546,750 | |
| | | -------------------------- | |
| (=) Total Appraised Value: | = | $546,750 | |
| (–) Senior Exemption Loss: | – | $0 | |
| (–) Exemption Loss: | – | $0 | |
| | | -------------------------- | |
| (=) Taxable Value: | = | $546,750 | |
Taxing Jurisdiction
| Owner: | WOOD, JASON | | |
| % Ownership: | 100.0000000000% | | |
| Total Value: | $546,750 | | |
| Tax Area: | 712 - APPRAISER-S Whid Schl Dist, outside Langley, improved, greater than 1 acre |
| CF | Conservation Futures | 0.0316035091 | $546,750 | $546,750 | $17.28 | | |
| FIRE3 | Fire & Rescue Dist #3 S Whidbey GEN | 1.2004855531 | $546,750 | $546,750 | $656.37 | | |
| HOBOND | Hospital BOND | 0.1910887512 | $546,750 | $546,750 | $104.48 | | |
| HOGEN | Hospital GEN | 0.3902502903 | $546,750 | $546,750 | $213.37 | | |
| CE | County Current Expense | 0.3708482477 | $546,750 | $546,750 | $202.76 | | |
| CR | County Roads | 0.4584763726 | $546,750 | $546,750 | $250.67 | | |
| ISLANDEMS | Hospital GEN (EMS) | 0.5000000000 | $546,750 | $546,750 | $273.38 | | |
| LIB | Library Sno-Isle GEN | 0.3153421757 | $546,750 | $546,750 | $172.41 | | |
| PORTWHID | Port of S Whidbey GEN | 0.1094540357 | $546,750 | $546,750 | $59.84 | | |
| SCH206BOND | School 206 BOND | 0.3161759235 | $546,750 | $546,750 | $172.87 | | |
| SCH206MO | School 206 Enrichment | 0.4547169547 | $546,750 | $546,750 | $248.62 | | |
| ST | State School | 1.3035497053 | $546,750 | $546,750 | $712.72 | | |
| ST2 | State School Part 2 | 0.8169543533 | $546,750 | $546,750 | $446.67 | | |
| SWHIDPRBD | P & R S Whidbey BOND | 0.0152817568 | $546,750 | $546,750 | $8.36 | | |
| SWHIDPRBD2 | P & R S Whidbey BOND2 | 0.0138911264 | $546,750 | $546,750 | $7.59 | | |
| SWHIDPRMT | P & R S Whidbey GEN | 0.2053334452 | $546,750 | $546,750 | $112.27 | | |
| | Total Tax Rate: | 6.6934522006 | | | | | |
| | | | | Taxes w/Current Exemptions: | $3,659.66 | | |
| | | | | Taxes w/o Exemptions: | $3,659.66 | | |
Improvement / Building
| Improvement #1: | MANUFACTURED HOME | State Code: | Y | 3000.0 sqft | Value: | $176,750 |
| Bathrooms: | 2 | Bedrooms: | 3 | | Ceiling: | PLASTER PAINTED | Cooling: | EVAP NO DUCT | | Exterior Wall/Cover: | VINYL | Floor Covering: | CARPET 100% | | Floor Structure: | SLAB ON GRADE | Foundation: | SLAB | | Interior Finish: | PLASTER | Plumbing Fixture Cnt: | 9 | | Roof Slope: | FLAT | Roof Structure/Cover: | CJ ALUMINIUM HEAVY |
|
| | Type | Description | Class CD | Sub Class CD | Year Built | Area |
| | BAS | BASE/MAIN FLOOR | 4 | 0 | 1979 | 3000.0 |
| | DGR | DETACHED GARAGE | 4 | 0 | 1979 | 1584.0 |
| | OWP | OPEN WOOD PORCH W/STEPS | 4 | 0 | 1979 | 467.8 |
| | OWP | OPEN WOOD PORCH W/STEPS | 4 | 0 | 1979 | 258.5 |
Sketch
Property Image
Land
| 1 | 32 | AC (03.01-09.99) | 5.0000 | 0.00 | 0.00 | 0.00 | 1.00 | $370,000 | $0 |
Roll Value History
| 2026 | N/A | N/A | N/A | N/A | N/A |
| 2025 | $176,750 | $370,000 | $0 | $546,750 | $546,750 |
| 2024 | $183,177 | $350,000 | $0 | $533,177 | $533,177 |
| 2023 | $167,664 | $330,000 | $0 | $497,664 | $497,664 |
| 2022 | $156,878 | $280,000 | $0 | $436,878 | $436,878 |
| 2021 | $140,840 | $230,000 | $0 | $370,840 | $370,840 |
| 2020 | $130,714 | $190,000 | $0 | $320,714 | $320,714 |
| 2019 | $106,167 | $250,000 | $0 | $356,167 | $356,167 |
| 2018 | $109,289 | $210,000 | $0 | $319,289 | $319,289 |
| 2017 | $112,411 | $190,000 | $0 | $302,411 | $302,411 |
| 2016 | $113,973 | $165,000 | $0 | $278,973 | $278,973 |
| 2015 | $117,096 | $135,000 | $0 | $252,096 | $252,096 |
| 2014 | $144,507 | $160,000 | $0 | $304,507 | $304,507 |
| 2013 | $146,947 | $160,000 | $0 | $306,947 | $306,947 |
| 2012 | $149,386 | $160,000 | $0 | $309,386 | $309,386 |
| 2011 | $151,827 | $160,000 | $0 | $311,827 | $311,827 |
| 2010 | $149,154 | $160,000 | $0 | $309,154 | $309,154 |
| 2009 | $155,725 | $220,000 | $0 | $375,725 | $375,725 |
| 2008 | $170,041 | $192,000 | $0 | $362,041 | $362,041 |
| 2007 | $173,614 | $192,000 | $0 | $365,614 | $365,614 |
Deed and Sales History
| 1 | 04/02/2025 | WD | Warranty Deed | KAY SR, GARY L | WOOD, JASON | | | $635,000.00 | 63016 | 4584031 |
| 2 | 09/10/2024 | LACPROBATE | Lack of Probate | KAY, TAREY A | KAY SR, GARY L | | | $0.00 | 61245 | 4577008 |
| 3 | 10/01/1978 | OTHER | Other - Misc. Documents | KAY, GARY L | KAY, GARY L | | | $22,000.00 | 85881 | 343989 |
| 4 | 10/01/1978 | OTHER | Other - Misc. Documents | Unknown | KAY, GARY L | | | $22,000.00 | 85881 | 343989 |
Payout Agreement
| No payout information available.. |