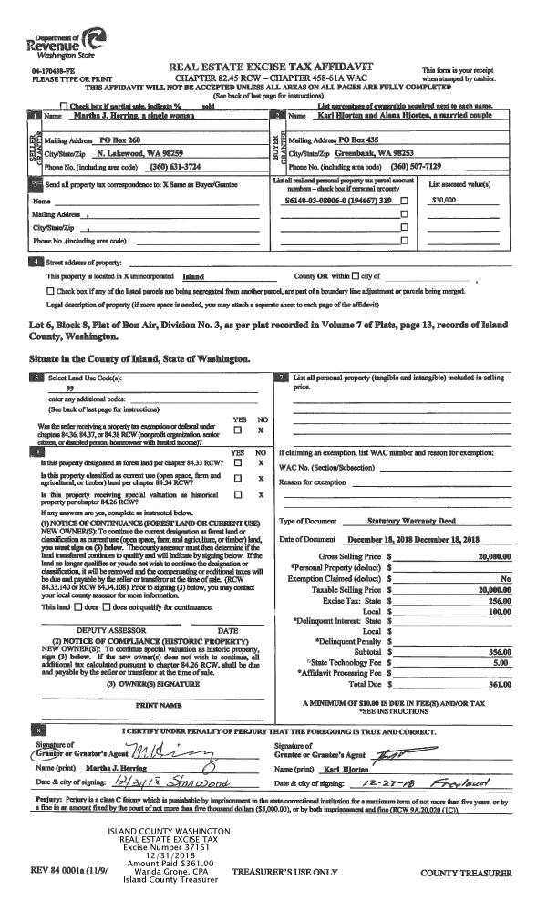
Property
Account |
| Property ID: | 135437 | Abbreviated Legal Description: | 20 - W750' OF S300' OF S/2 N/2 NE NW INCL EZ |
| Geographic ID: | R32922-486-1820 | Agent Code: | |
| Type: | Real | | |
| Tax Area: | 712 - APPRAISER-S Whid Schl Dist, outside Langley, improved, greater than 1 acre | Land Use Code | 11 |
| Open Space: | N | DFL | N |
| Historic Property: | N | Remodel Property: | N |
| Multi-Family Redevelopment: | N | | |
| Township: | 29 | Section: | 22 |
| Range: | R3 |
Location |
| Address: | 6029 CEDAR MARSH LN CLINTON, WA 98236 | Mapsco: | |
| Neighborhood: | Cycle 4 | Map ID: | 801 |
| Neighborhood CD: | 4 |
Owner |
| Name: | ELLISON TTEE, JAMES R | Owner ID: | 289587 |
| Mailing Address: | 6029 CEDAR MARCH LN CLINTON, WA 98236 | % Ownership: | 100.0000000000% |
| | | Exemptions: | |
Taxes and Assessment Details
Values
| (+) Improvement Homesite Value: | + | $0 | |
| (+) Improvement Non-Homesite Value: | + | $301,120 | |
| (+) Land Homesite Value: | + | $0 | |
| (+) Land Non-Homesite Value: | + | $370,000 | |
| (+) Curr Use (HS): | + | $0 | $0 |
| (+) Curr Use (NHS): | + | $0 | $0 |
| | | -------------------------- | |
| (=) Market Value: | = | $671,120 | |
| (–) Productivity Loss: | – | $0 | |
| | | -------------------------- | |
| (=) Subtotal: | = | $671,120 | |
| (+) Senior Appraised Value: | + | $0 | |
| (+) Non-Senior Appraised Value: | + | $671,120 | |
| | | -------------------------- | |
| (=) Total Appraised Value: | = | $671,120 | |
| (–) Senior Exemption Loss: | – | $0 | |
| (–) Exemption Loss: | – | $0 | |
| | | -------------------------- | |
| (=) Taxable Value: | = | $671,120 | |
Taxing Jurisdiction
| Owner: | ELLISON TTEE, JAMES R | | |
| % Ownership: | 100.0000000000% | | |
| Total Value: | $671,120 | | |
| Tax Area: | 712 - APPRAISER-S Whid Schl Dist, outside Langley, improved, greater than 1 acre |
| CF | Conservation Futures | 0.0316035091 | $671,120 | $671,120 | $21.21 | | |
| FIRE3 | Fire & Rescue Dist #3 S Whidbey GEN | 1.2004855531 | $671,120 | $671,120 | $805.67 | | |
| HOBOND | Hospital BOND | 0.1910887512 | $671,120 | $671,120 | $128.24 | | |
| HOGEN | Hospital GEN | 0.3902502903 | $671,120 | $671,120 | $261.90 | | |
| CE | County Current Expense | 0.3708482477 | $671,120 | $671,120 | $248.88 | | |
| CR | County Roads | 0.4584763726 | $671,120 | $671,120 | $307.69 | | |
| ISLANDEMS | Hospital GEN (EMS) | 0.5000000000 | $671,120 | $671,120 | $335.56 | | |
| LIB | Library Sno-Isle GEN | 0.3153421757 | $671,120 | $671,120 | $211.63 | | |
| PORTWHID | Port of S Whidbey GEN | 0.1094540357 | $671,120 | $671,120 | $73.46 | | |
| SCH206BOND | School 206 BOND | 0.3161759235 | $671,120 | $671,120 | $212.19 | | |
| SCH206MO | School 206 Enrichment | 0.4547169547 | $671,120 | $671,120 | $305.17 | | |
| ST | State School | 1.3035497053 | $671,120 | $671,120 | $874.84 | | |
| ST2 | State School Part 2 | 0.8169543533 | $671,120 | $671,120 | $548.27 | | |
| SWHIDPRBD | P & R S Whidbey BOND | 0.0152817568 | $671,120 | $671,120 | $10.26 | | |
| SWHIDPRBD2 | P & R S Whidbey BOND2 | 0.0138911264 | $671,120 | $671,120 | $9.32 | | |
| SWHIDPRMT | P & R S Whidbey GEN | 0.2053334452 | $671,120 | $671,120 | $137.80 | | |
| | Total Tax Rate: | 6.6934522006 | | | | | |
| | | | | Taxes w/Current Exemptions: | $4,492.09 | | |
| | | | | Taxes w/o Exemptions: | $4,492.09 | | |
Improvement / Building
| Improvement #1: | RESIDENTIAL | State Code: | Y | 1162.6 sqft | Value: | $301,120 |
| Bathrooms: | 2 | Bedrooms: | 3 | | Ceiling: | DRYWALL PAINTED | Exterior Wall/Cover: | WOOD SIDING | | Floor Covering: | VINYL 100% | Floor Structure: | WOOD W/SUBFLOOR | | Foundation: | CONCRETE | Heating: | HEAT PUMP | | Interior Finish: | DRYWALL PAINT | Plumbing Fixture Cnt: | 11 | | Roof Slope: | 3" IN 12" | Roof Structure/Cover: | CJ ASPHALT |
|
| | Type | Description | Class CD | Sub Class CD | Year Built | Area |
| | BAS | BASE/MAIN FLOOR | 3 | 0 | 1993 | 1162.6 |
| | UB8 | BASEMENT UNFINISHED 8" | 3 | 0 | 1993 | 580.0 |
| | BIG | BUILT IN GARAGE | 3 | 0 | 1993 | 540.0 |
| | OWP | OPEN WOOD PORCH W/STEPS | 3 | 0 | 1993 | 64.0 |
| | OWP | OPEN WOOD PORCH W/STEPS | 3 | 0 | 1993 | 777.5 |
| | OWR | OPEN WOOD PORCH W/STEPS/ROOF | 3 | 0 | 1993 | 63.1 |
| | CPD | OPEN CARPORT DIRT FLOOR | 3 | 0 | 1993 | 288.0 |
Sketch
Property Image
Land
| 1 | 32 | AC (03.01-09.99) | 4.0000 | 0.00 | 0.00 | 0.00 | 1.00 | $370,000 | $0 |
| 2 | 52 | SUMMER PASTURE | 1.1800 | 51400.80 | 0.00 | 0.00 | 1.00 | $0 | $0 |
Roll Value History
| 2026 | N/A | N/A | N/A | N/A | N/A |
| 2025 | $301,120 | $370,000 | $0 | $671,120 | $671,120 |
| 2024 | $294,484 | $350,000 | $0 | $644,484 | $644,484 |
| 2023 | $298,156 | $330,000 | $0 | $628,156 | $628,156 |
| 2022 | $273,314 | $280,000 | $0 | $553,314 | $553,314 |
| 2021 | $240,553 | $230,000 | $0 | $470,553 | $470,553 |
| 2020 | $215,996 | $190,000 | $0 | $405,996 | $405,996 |
| 2019 | $152,114 | $250,000 | $0 | $402,114 | $402,114 |
| 2018 | $152,585 | $210,000 | $0 | $362,585 | $362,585 |
| 2017 | $143,515 | $190,000 | $0 | $333,515 | $333,515 |
| 2016 | $145,274 | $165,000 | $0 | $310,274 | $310,274 |
| 2015 | $147,033 | $135,000 | $0 | $282,033 | $282,033 |
| 2014 | $139,131 | $129,020 | $0 | $268,151 | $268,151 |
| 2013 | $140,831 | $129,020 | $0 | $269,851 | $269,851 |
| 2012 | $142,531 | $129,020 | $0 | $271,551 | $271,551 |
| 2011 | $144,232 | $129,020 | $0 | $273,252 | $273,252 |
| 2010 | $148,337 | $129,020 | $0 | $277,357 | $277,357 |
| 2009 | $154,611 | $177,020 | $0 | $331,631 | $331,631 |
| 2008 | $160,444 | $173,600 | $0 | $334,044 | $334,044 |
| 2007 | $162,736 | $173,600 | $0 | $336,336 | $336,336 |
Deed and Sales History
| 1 | 05/01/2019 | WD | Warranty Deed | ELLISON, JAMES R | ELLISON TTEE, JAMES R | | | $0.00 | 38319 | 4462498 |
| 2 | 09/27/2005 | QCD | Quit Claim Deed | ELLISON, JAMES R | ELLISON, JAMES R | | | $0.00 | 55033 | 4149882 |
| 3 | 08/01/1992 | WD | Warranty Deed | HAMILTON, GARY | ELLISON, JAMES R | | | $35,000.00 | 23126 | 92015164 |
| 4 | 01/01/1992 | QCD | Quit Claim Deed | EIXENBERGER, WALTER W | HAMILTON, GARY | | | $0.00 | 20349 | 92001618 |
| 5 | 07/01/1989 | QCD | Quit Claim Deed | POWELL, STEPHEN E | EIXENBERGER, WALTER W | | | $0.00 | 92990 | 89010002 |
| 6 | 06/01/1984 | REC | Real Estate Contract | STELTZ, CHRISTY T | POWELL, STEPHEN E | | | $23,500.00 | 41788 | 426198 |
| 7 | 01/01/1900 | OTHER | Other - Misc. Documents | Unknown | STELTZ, CHRISTY T | | | $0.00 | 0 | 0 |
Payout Agreement
| No payout information available.. |