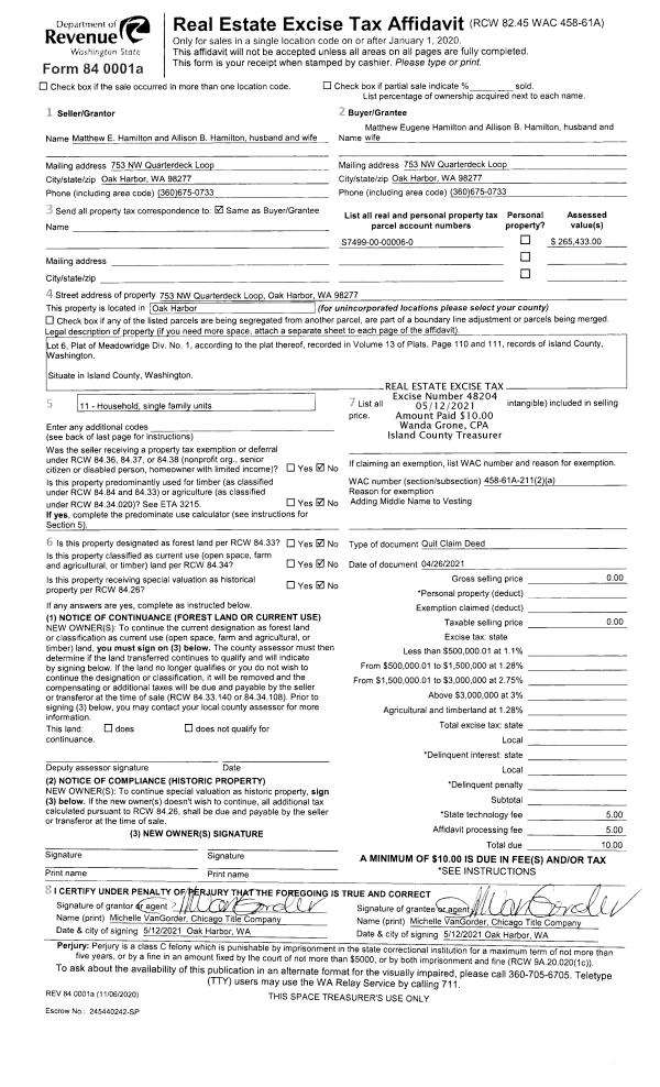
Property
Account |
| Property ID: | 135687 | Abbreviated Legal Description: | 56 - PT SW SW LY N OF CAMP- BELL RD EX W30'FOR RD EX PT TO IS CO TGW: NW SW EX N990' & EX W 5AC EX RDS (PT FR 156-0700) |
| Geographic ID: | R32923-128-0500 | Agent Code: | |
| Type: | Real | | |
| Tax Area: | 712 - APPRAISER-S Whid Schl Dist, outside Langley, improved, greater than 1 acre | Land Use Code | 11 |
| Open Space: | N | DFL | N |
| Historic Property: | N | Remodel Property: | N |
| Multi-Family Redevelopment: | N | | |
| Township: | 29 | Section: | 23 |
| Range: | R3 |
Location |
| Address: | 4049 CAMPBELL RD CLINTON, WA 98236 | Mapsco: | |
| Neighborhood: | Cycle 4 | Map ID: | 803 |
| Neighborhood CD: | 4 |
Owner |
| Name: | READ, CHARLES W | Owner ID: | 287922 |
| Mailing Address: | CAROL TABER 4049 CAMPBELL RD CLINTON, WA 98236-8402 | % Ownership: | 100.0000000000% |
| | | Exemptions: | |
Taxes and Assessment Details
Values
| (+) Improvement Homesite Value: | + | $0 | |
| (+) Improvement Non-Homesite Value: | + | $369,667 | |
| (+) Land Homesite Value: | + | $0 | |
| (+) Land Non-Homesite Value: | + | $370,000 | |
| (+) Curr Use (HS): | + | $0 | $0 |
| (+) Curr Use (NHS): | + | $0 | $0 |
| | | -------------------------- | |
| (=) Market Value: | = | $739,667 | |
| (–) Productivity Loss: | – | $0 | |
| | | -------------------------- | |
| (=) Subtotal: | = | $739,667 | |
| (+) Senior Appraised Value: | + | $0 | |
| (+) Non-Senior Appraised Value: | + | $739,667 | |
| | | -------------------------- | |
| (=) Total Appraised Value: | = | $739,667 | |
| (–) Senior Exemption Loss: | – | $0 | |
| (–) Exemption Loss: | – | $0 | |
| | | -------------------------- | |
| (=) Taxable Value: | = | $739,667 | |
Taxing Jurisdiction
| Owner: | READ, CHARLES W | | |
| % Ownership: | 100.0000000000% | | |
| Total Value: | $739,667 | | |
| Tax Area: | 712 - APPRAISER-S Whid Schl Dist, outside Langley, improved, greater than 1 acre |
| CF | Conservation Futures | 0.0316035091 | $739,667 | $739,667 | $23.38 | | |
| FIRE3 | Fire & Rescue Dist #3 S Whidbey GEN | 1.2004855531 | $739,667 | $739,667 | $887.96 | | |
| HOBOND | Hospital BOND | 0.1910887512 | $739,667 | $739,667 | $141.34 | | |
| HOGEN | Hospital GEN | 0.3902502903 | $739,667 | $739,667 | $288.66 | | |
| CE | County Current Expense | 0.3708482477 | $739,667 | $739,667 | $274.30 | | |
| CR | County Roads | 0.4584763726 | $739,667 | $739,667 | $339.12 | | |
| ISLANDEMS | Hospital GEN (EMS) | 0.5000000000 | $739,667 | $739,667 | $369.83 | | |
| LIB | Library Sno-Isle GEN | 0.3153421757 | $739,667 | $739,667 | $233.25 | | |
| PORTWHID | Port of S Whidbey GEN | 0.1094540357 | $739,667 | $739,667 | $80.96 | | |
| SCH206BOND | School 206 BOND | 0.3161759235 | $739,667 | $739,667 | $233.86 | | |
| SCH206MO | School 206 Enrichment | 0.4547169547 | $739,667 | $739,667 | $336.34 | | |
| ST | State School | 1.3035497053 | $739,667 | $739,667 | $964.19 | | |
| ST2 | State School Part 2 | 0.8169543533 | $739,667 | $739,667 | $604.27 | | |
| SWHIDPRBD | P & R S Whidbey BOND | 0.0152817568 | $739,667 | $739,667 | $11.30 | | |
| SWHIDPRBD2 | P & R S Whidbey BOND2 | 0.0138911264 | $739,667 | $739,667 | $10.27 | | |
| SWHIDPRMT | P & R S Whidbey GEN | 0.2053334452 | $739,667 | $739,667 | $151.88 | | |
| | Total Tax Rate: | 6.6934522006 | | | | | |
| | | | | Taxes w/Current Exemptions: | $4,950.91 | | |
| | | | | Taxes w/o Exemptions: | $4,950.91 | | |
Improvement / Building
| Improvement #1: | RESIDENTIAL | State Code: | Y | 2050.0 sqft | Value: | $369,667 |
| Bathrooms: | 2 | Bedrooms: | 3 | | Ceiling: | BEAM PAINTED | Exterior Wall/Cover: | LOG TO 10" | | Floor Covering: | HARDWOOD/CARP 20-80 | Floor Structure: | WOOD W/SUBFLOOR | | Foundation: | CONCRETE | Heating: | FHA ELECTRIC | | Interior Finish: | DRYWALL PAINT | Plumbing Fixture Cnt: | 9 | | Roof Slope: | 8" IN 12" | Roof Structure/Cover: | BEAM WOOD SHINGLE |
|
| | Type | Description | Class CD | Sub Class CD | Year Built | Area |
| | BAS | BASE/MAIN FLOOR | 3 | 0 | 1982 | 1150.0 |
| | UPH | HALF STORY | 3 | 0 | 1982 | 900.0 |
| | OWP | OPEN WOOD PORCH W/STEPS | 3 | 0 | 1982 | 1753.2 |
| | OWC | OPEN WOOD PORCH W/STEPS/ROOF/C | 3 | 0 | 1982 | 80.0 |
| | DGR | DETACHED GARAGE | 3 | 0 | 1982 | 672.0 |
| | ATU | ATTIC UNFINISHED | 3 | 0 | 1982 | 504.0 |
Sketch
Property Image
Land
| 1 | 32 | AC (03.01-09.99) | 0.0000 | 0.00 | 0.00 | 0.00 | 1.00 | $370,000 | $0 |
Roll Value History
| 2026 | N/A | N/A | N/A | N/A | N/A |
| 2025 | $369,667 | $370,000 | $0 | $739,667 | $739,667 |
| 2024 | $370,708 | $350,000 | $0 | $720,708 | $720,708 |
| 2023 | $375,839 | $330,000 | $0 | $705,839 | $705,839 |
| 2022 | $344,975 | $280,000 | $0 | $624,975 | $624,975 |
| 2021 | $304,007 | $230,000 | $0 | $534,007 | $534,007 |
| 2020 | $265,235 | $190,000 | $0 | $455,235 | $455,235 |
| 2019 | $206,385 | $250,000 | $0 | $456,385 | $456,385 |
| 2018 | $207,100 | $210,000 | $0 | $417,100 | $417,100 |
| 2017 | $208,495 | $190,000 | $0 | $398,495 | $398,495 |
| 2016 | $211,351 | $165,000 | $0 | $376,351 | $376,351 |
| 2015 | $214,208 | $150,000 | $0 | $364,208 | $364,208 |
| 2014 | $206,256 | $155,000 | $0 | $361,256 | $361,256 |
| 2013 | $209,697 | $125,000 | $0 | $334,697 | $334,697 |
| 2012 | $212,331 | $150,000 | $0 | $362,331 | $362,331 |
| 2011 | $214,966 | $150,000 | $0 | $364,966 | $364,966 |
| 2010 | $226,545 | $150,000 | $0 | $376,545 | $376,545 |
| 2009 | $235,825 | $180,000 | $0 | $415,825 | $415,825 |
| 2008 | $235,345 | $384,000 | $0 | $619,345 | $619,345 |
| 2007 | $235,746 | $384,000 | $0 | $619,746 | $619,746 |
Deed and Sales History
| 1 | 12/12/2006 | QCD | Quit Claim Deed | READ, CHARLES W | READ, CHARLES W | | | | 65191 | 4189262 |
| 2 | 09/13/2006 | DECREE | Divorce Decree/Legal Separation | READ, CHARLES W | READ, CHARLES W | | | $0.00 | 63959 | 4181691 |
| 3 | 03/01/1990 | OTHER | Other - Misc. Documents | READ, CHARLES W | READ, CHARLES W | | | $0.00 | 63548 | 90001524 |
| 4 | 02/01/1990 | WD | Warranty Deed | READ, CHARLES W | READ, CHARLES W | | | $15,000.00 | 986 | 90003276 |
| 5 | 05/01/1988 | QCD | Quit Claim Deed | READ, CHARLES W | READ, CHARLES W | | | $0.00 | 81677 | 88006293 |
| 6 | 04/01/1976 | EXECUTORD | Executor Deed | WATERMAN, LOGGING C | READ, CHARLES W | | | $0.00 | 61360 | 0 |
| 7 | 01/01/1900 | OTHER | Other - Misc. Documents | Unknown | WATERMAN, LOGGING C | | | $0.00 | 0 | 0 |
Payout Agreement
| No payout information available.. |