Property
Account |
| Property ID: | 135776 | Abbreviated Legal Description: | 36 - E/2 SE NE SW LY N OF RD TGW WLY PT VAC RD AF#89006535 |
| Geographic ID: | R32923-172-2460 | Agent Code: | |
| Type: | Real | | |
| Tax Area: | 712 - APPRAISER-S Whid Schl Dist, outside Langley, improved, greater than 1 acre | Land Use Code | 11 |
| Open Space: | N | DFL | N |
| Historic Property: | N | Remodel Property: | N |
| Multi-Family Redevelopment: | N | | |
| Township: | 29 | Section: | 23 |
| Range: | R3 |
Location |
| Address: | 4189 CAMPBELL RD CLINTON, WA 98236 | Mapsco: | |
| Neighborhood: | Cycle 4 | Map ID: | 803 |
| Neighborhood CD: | 4 |
Owner |
| Name: | HAYNES, CODY | Owner ID: | 310750 |
| Mailing Address: | MARIE SHIMADA 4189 CAMPBELL RD CLINTON, WA 98236 | % Ownership: | 100.0000000000% |
| | | Exemptions: | |
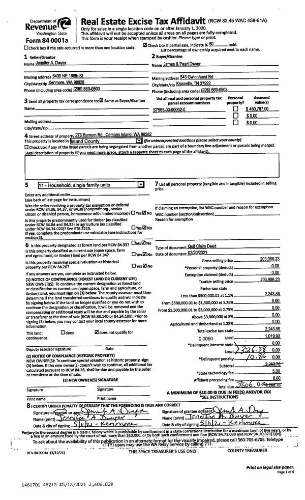
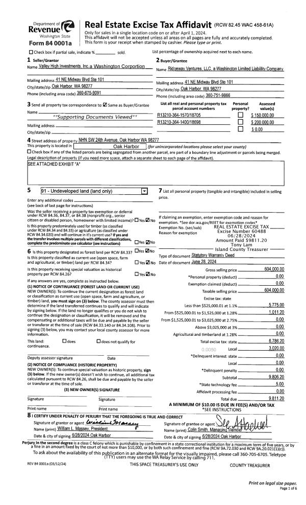
Taxes and Assessment Details
Values
| (+) Improvement Homesite Value: | + | $0 | |
| (+) Improvement Non-Homesite Value: | + | $203,449 | |
| (+) Land Homesite Value: | + | $0 | |
| (+) Land Non-Homesite Value: | + | $310,000 | |
| (+) Curr Use (HS): | + | $0 | $0 |
| (+) Curr Use (NHS): | + | $0 | $0 |
| | | -------------------------- | |
| (=) Market Value: | = | $513,449 | |
| (–) Productivity Loss: | – | $0 | |
| | | -------------------------- | |
| (=) Subtotal: | = | $513,449 | |
| (+) Senior Appraised Value: | + | $0 | |
| (+) Non-Senior Appraised Value: | + | $513,449 | |
| | | -------------------------- | |
| (=) Total Appraised Value: | = | $513,449 | |
| (–) Senior Exemption Loss: | – | $0 | |
| (–) Exemption Loss: | – | $0 | |
| | | -------------------------- | |
| (=) Taxable Value: | = | $513,449 | |
Taxing Jurisdiction
| Owner: | HAYNES, CODY | | |
| % Ownership: | 100.0000000000% | | |
| Total Value: | $513,449 | | |
| Tax Area: | 712 - APPRAISER-S Whid Schl Dist, outside Langley, improved, greater than 1 acre |
| CF | Conservation Futures | 0.0316035091 | $513,449 | $513,449 | $16.23 | | |
| FIRE3 | Fire & Rescue Dist #3 S Whidbey GEN | 1.2004855531 | $513,449 | $513,449 | $616.39 | | |
| HOBOND | Hospital BOND | 0.1910887512 | $513,449 | $513,449 | $98.11 | | |
| HOGEN | Hospital GEN | 0.3902502903 | $513,449 | $513,449 | $200.37 | | |
| CE | County Current Expense | 0.3708482477 | $513,449 | $513,449 | $190.41 | | |
| CR | County Roads | 0.4584763726 | $513,449 | $513,449 | $235.40 | | |
| ISLANDEMS | Hospital GEN (EMS) | 0.5000000000 | $513,449 | $513,449 | $256.72 | | |
| LIB | Library Sno-Isle GEN | 0.3153421757 | $513,449 | $513,449 | $161.91 | | |
| PORTWHID | Port of S Whidbey GEN | 0.1094540357 | $513,449 | $513,449 | $56.20 | | |
| SCH206BOND | School 206 BOND | 0.3161759235 | $513,449 | $513,449 | $162.34 | | |
| SCH206MO | School 206 Enrichment | 0.4547169547 | $513,449 | $513,449 | $233.47 | | |
| ST | State School | 1.3035497053 | $513,449 | $513,449 | $669.31 | | |
| ST2 | State School Part 2 | 0.8169543533 | $513,449 | $513,449 | $419.46 | | |
| SWHIDPRBD | P & R S Whidbey BOND | 0.0152817568 | $513,449 | $513,449 | $7.85 | | |
| SWHIDPRBD2 | P & R S Whidbey BOND2 | 0.0138911264 | $513,449 | $513,449 | $7.13 | | |
| SWHIDPRMT | P & R S Whidbey GEN | 0.2053334452 | $513,449 | $513,449 | $105.43 | | |
| | Total Tax Rate: | 6.6934522006 | | | | | |
| | | | | Taxes w/Current Exemptions: | $3,436.73 | | |
| | | | | Taxes w/o Exemptions: | $3,436.73 | | |
Improvement / Building
| Improvement #1: | RESIDENTIAL | State Code: | Y | 1432.0 sqft | Value: | $203,449 |
| Bathrooms: | 1 | Bedrooms: | 2 | | Ceiling: | DRYWALL PAINTED | Exterior Wall/Cover: | SHINGLE | | Floor Covering: | CARPET/VINYL 80-20 | Floor Structure: | WOOD W/SUBFLOOR | | Foundation: | CONCRETE BLOCKS | Heating: | BASEBOARD ELECTRIC | | Interior Finish: | DRYWALL PAINT | Plumbing Fixture Cnt: | 6 | | Roof Slope: | 8" IN 12" | Roof Structure/Cover: | CJ ASPHALT |
|
| | Type | Description | Class CD | Sub Class CD | Year Built | Area |
| | BAS | BASE/MAIN FLOOR | 3 | 0 | 1932 | 1432.0 |
| | ATF | ATTIC FINISHED | 3 | 0 | 1932 | 336.0 |
| | OWR | OPEN WOOD PORCH W/STEPS/ROOF | 3 | 0 | 1932 | 170.5 |
| | OWC | OPEN WOOD PORCH W/STEPS/ROOF/C | 3 | 0 | 1932 | 48.0 |
| | oGAR | GARAGE | 3 | 0 | 1932 | 520.0 |
| | oPOL | POLE BARN | 3 | 0 | 1932 | 640.0 |
| | UTY | STORAGE/UTILITY | 3 | 0 | 1932 | 320.0 |
Sketch
Property Image
Land
| 1 | 18 | AC (02.01-03.00) | 0.0000 | 0.00 | 0.00 | 0.00 | 1.00 | $310,000 | $0 |
Roll Value History
| 2026 | N/A | N/A | N/A | N/A | N/A |
| 2025 | $203,449 | $310,000 | $0 | $513,449 | $513,449 |
| 2024 | $210,325 | $300,000 | $0 | $510,325 | $510,325 |
| 2023 | $213,252 | $290,000 | $0 | $503,252 | $503,252 |
| 2022 | $197,854 | $270,000 | $0 | $467,854 | $467,854 |
| 2021 | $177,253 | $175,000 | $0 | $352,253 | $352,253 |
| 2020 | $174,062 | $165,000 | $0 | $339,062 | $339,062 |
| 2019 | $133,205 | $200,000 | $0 | $333,205 | $333,205 |
| 2018 | $133,605 | $170,000 | $0 | $303,605 | $303,605 |
| 2017 | $120,459 | $150,000 | $0 | $270,459 | $270,459 |
| 2016 | $121,859 | $130,000 | $0 | $251,859 | $251,859 |
| 2015 | $123,258 | $100,000 | $0 | $223,258 | $223,258 |
| 2014 | $80,737 | $100,000 | $0 | $180,737 | $180,737 |
| 2013 | $83,785 | $85,000 | $0 | $168,785 | $168,785 |
| 2012 | $85,085 | $90,000 | $0 | $175,085 | $175,085 |
| 2011 | $86,385 | $100,000 | $0 | $186,385 | $186,385 |
| 2010 | $97,559 | $100,000 | $0 | $197,559 | $197,559 |
| 2009 | $101,708 | $155,000 | $0 | $256,708 | $256,708 |
| 2008 | $101,755 | $147,900 | $0 | $249,655 | $249,655 |
| 2007 | $104,072 | $147,900 | $0 | $251,972 | $251,972 |
Deed and Sales History
| 1 | 11/15/2023 | WD | Warranty Deed | BATT, MARISSA N | HAYNES, CODY | | | $523,600.00 | 58588 | 4566955 |
|   | |
| 2 | 04/16/2018 | WD | Warranty Deed | KOHLER TRUSTEE, CARLETON V | BATT, MARISSA N | | | $335,000.00 | 33732 | 4442862 |
|   | |
| 3 | 11/28/2007 | QCD | Quit Claim Deed | KOHLER, CARLETON V | KOHLER TRUSTEE, CARLETON V | | | $0.00 | 74125 | 4218766 |
| 4 | 07/02/2004 | WD | Warranty Deed | EDWARDS, JESSE C | KOHLER, CARLETON V | | | $187,800.00 | 43238 | 4107220 |
| 5 | 04/01/1978 | OTHER | Other - Misc. Documents | Unknown | EDWARDS, JESSE C | | | $49,500.00 | 81807 | 3317100 |
Payout Agreement
| No payout information available.. |