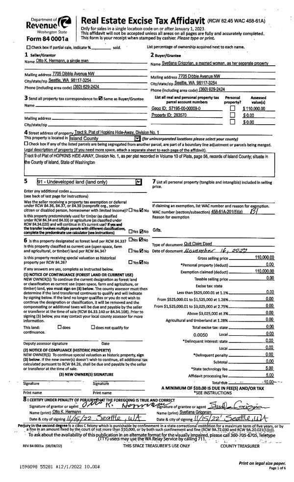
Property
Account |
| Property ID: | 135972 | Abbreviated Legal Description: | 54 - IN SE NW: BG SWCR N/2 SE NW E580' N150' TPB N75' W580' S75' E580' TPB EX RDS |
| Geographic ID: | R32923-344-1630 | Agent Code: | |
| Type: | Real | | |
| Tax Area: | 710 - APPRAISER-S Whid Schl Dist, outside Langley, improved & 1 acre or less | Land Use Code | 11 |
| Open Space: | N | DFL | N |
| Historic Property: | N | Remodel Property: | N |
| Multi-Family Redevelopment: | N | | |
| Township: | 29 | Section: | 23 |
| Range: | R3 |
Location |
| Address: | 6143 HARLEY AVE CLINTON, WA 98236 | Mapsco: | |
| Neighborhood: | Cycle 4 | Map ID: | 805 |
| Neighborhood CD: | 4 |
Owner |
| Name: | NELSON, GREG | Owner ID: | 300835 |
| Mailing Address: | HEIDI NELSON 6143 HARLEY AVE CLINTON, WA 98236-8645 | % Ownership: | 100.0000000000% |
| | | Exemptions: | |
Taxes and Assessment Details
Values
| (+) Improvement Homesite Value: | + | $0 | |
| (+) Improvement Non-Homesite Value: | + | $231,902 | |
| (+) Land Homesite Value: | + | $0 | |
| (+) Land Non-Homesite Value: | + | $260,000 | |
| (+) Curr Use (HS): | + | $0 | $0 |
| (+) Curr Use (NHS): | + | $0 | $0 |
| | | -------------------------- | |
| (=) Market Value: | = | $491,902 | |
| (–) Productivity Loss: | – | $0 | |
| | | -------------------------- | |
| (=) Subtotal: | = | $491,902 | |
| (+) Senior Appraised Value: | + | $0 | |
| (+) Non-Senior Appraised Value: | + | $491,902 | |
| | | -------------------------- | |
| (=) Total Appraised Value: | = | $491,902 | |
| (–) Senior Exemption Loss: | – | $0 | |
| (–) Exemption Loss: | – | $0 | |
| | | -------------------------- | |
| (=) Taxable Value: | = | $491,902 | |
Taxing Jurisdiction
| Owner: | NELSON, GREG | | |
| % Ownership: | 100.0000000000% | | |
| Total Value: | $491,902 | | |
| Tax Area: | 710 - APPRAISER-S Whid Schl Dist, outside Langley, improved & 1 acre or less |
| CF | Conservation Futures | 0.0316035091 | $491,902 | $491,902 | $15.55 | | |
| FIRE3 | Fire & Rescue Dist #3 S Whidbey GEN | 1.2004855531 | $491,902 | $491,902 | $590.52 | | |
| HOBOND | Hospital BOND | 0.1910887512 | $491,902 | $491,902 | $94.00 | | |
| HOGEN | Hospital GEN | 0.3902502903 | $491,902 | $491,902 | $191.96 | | |
| CE | County Current Expense | 0.3708482477 | $491,902 | $491,902 | $182.42 | | |
| CR | County Roads | 0.4584763726 | $491,902 | $491,902 | $225.53 | | |
| ISLANDEMS | Hospital GEN (EMS) | 0.5000000000 | $491,902 | $491,902 | $245.95 | | |
| LIB | Library Sno-Isle GEN | 0.3153421757 | $491,902 | $491,902 | $155.12 | | |
| PORTWHID | Port of S Whidbey GEN | 0.1094540357 | $491,902 | $491,902 | $53.84 | | |
| SCH206BOND | School 206 BOND | 0.3161759235 | $491,902 | $491,902 | $155.53 | | |
| SCH206MO | School 206 Enrichment | 0.4547169547 | $491,902 | $491,902 | $223.68 | | |
| ST | State School | 1.3035497053 | $491,902 | $491,902 | $641.22 | | |
| ST2 | State School Part 2 | 0.8169543533 | $491,902 | $491,902 | $401.86 | | |
| SWHIDPRBD | P & R S Whidbey BOND | 0.0152817568 | $491,902 | $491,902 | $7.52 | | |
| SWHIDPRBD2 | P & R S Whidbey BOND2 | 0.0138911264 | $491,902 | $491,902 | $6.83 | | |
| SWHIDPRMT | P & R S Whidbey GEN | 0.2053334452 | $491,902 | $491,902 | $101.00 | | |
| | Total Tax Rate: | 6.6934522006 | | | | | |
| | | | | Taxes w/Current Exemptions: | $3,292.53 | | |
| | | | | Taxes w/o Exemptions: | $3,292.53 | | |
Improvement / Building
| Improvement #1: | RESIDENTIAL | State Code: | Y | 1216.0 sqft | Value: | $231,902 |
| Bathrooms: | 2 | Bedrooms: | 3 | | Ceiling: | DRYWALL PAINTED | Exterior Wall/Cover: | WOOD SIDING | | Floor Covering: | CARPET/VINYL 80-20 | Floor Structure: | WOOD W/SUBFLOOR | | Foundation: | CONCRETE | Heating: | WALL HEAT ELECTRIC | | Interior Finish: | DRYWALL PAINT | Plumbing Fixture Cnt: | 9 | | Roof Slope: | 5" IN 12" | Roof Structure/Cover: | CJ ASPHALT |
|
| | Type | Description | Class CD | Sub Class CD | Year Built | Area |
| | BAS | BASE/MAIN FLOOR | 3 | 0 | 1995 | 1216.0 |
| | DGR | DETACHED GARAGE | 3 | 0 | 1995 | 576.0 |
| | OWP | OPEN WOOD PORCH W/STEPS | 3 | 0 | 1995 | 160.0 |
| | OWR | OPEN WOOD PORCH W/STEPS/ROOF | 3 | 0 | 1995 | 48.0 |
Sketch
Property Image
Land
| 1 | 16 | AC (00.51-01.00) | 0.0000 | 0.00 | 0.00 | 0.00 | 1.00 | $260,000 | $0 |
Roll Value History
| 2026 | N/A | N/A | N/A | N/A | N/A |
| 2025 | $231,902 | $260,000 | $0 | $491,902 | $491,902 |
| 2024 | $234,904 | $250,000 | $0 | $484,904 | $484,904 |
| 2023 | $237,905 | $240,000 | $0 | $477,905 | $477,905 |
| 2022 | $218,146 | $240,000 | $0 | $458,146 | $458,146 |
| 2021 | $182,596 | $160,000 | $0 | $342,596 | $342,596 |
| 2020 | $175,468 | $135,000 | $0 | $310,468 | $310,468 |
| 2019 | $124,599 | $180,000 | $0 | $304,599 | $304,599 |
| 2018 | $124,997 | $150,000 | $0 | $274,997 | $274,997 |
| 2017 | $125,794 | $140,000 | $0 | $265,794 | $265,794 |
| 2016 | $127,385 | $115,000 | $0 | $242,385 | $242,385 |
| 2015 | $128,979 | $100,000 | $0 | $228,979 | $228,979 |
| 2014 | $129,829 | $100,000 | $0 | $229,829 | $229,829 |
| 2013 | $131,453 | $85,000 | $0 | $216,453 | $216,453 |
| 2012 | $133,075 | $51,300 | $0 | $184,375 | $184,375 |
| 2011 | $134,697 | $57,000 | $0 | $191,697 | $191,697 |
| 2010 | $137,058 | $57,000 | $0 | $194,058 | $194,058 |
| 2009 | $142,928 | $91,200 | $0 | $234,128 | $234,128 |
| 2008 | $144,585 | $82,650 | $0 | $227,235 | $227,235 |
| 2007 | $146,243 | $82,650 | $0 | $228,893 | $228,893 |
Deed and Sales History
| 1 | 08/13/2021 | WD | Warranty Deed | JOVICH, BRIAN D | NELSON, GREG | | | $465,000.00 | 49679 | 4527153 |
| 2 | 02/04/2009 | WD | Warranty Deed | MYDYNSKI, STEVEN | JOVICH, BRIAN D | | | $229,000.00 | 90312 | 4244629 |
| 3 | 12/16/2008 | TRUSTEED | Trustee's Deed | KLOPFENSTEIN, KEVIN J | MYDYNSKI, STEVEN | | | $0.00 | 83163 | 4241496 |
| 4 | 03/26/2002 | QCD | Quit Claim Deed | KLOPFENSTEIN, KEVIN J | KLOPFENSTEIN, KEVIN J | | | $0.00 | 21079 | 4014890 |
| 5 | 03/01/1998 | QCD | Quit Claim Deed | KLOPFENSTEIN, KEVIN J | KLOPFENSTEIN, KEVIN J | | | $0.00 | 80937 | 98005234 |
| 6 | 07/01/1997 | 5 | DNU - Marriage License/Name Change | KLOPFENSTEIN, KEVIN J | KLOPFENSTEIN, KEVIN J | | | $0.00 | 72240 | 97010419 |
| 7 | 02/01/1992 | QCD | Quit Claim Deed | CAPES, GREGORY R | KLOPFENSTEIN, KEVIN J | | | $0.00 | 20538 | 92002595 |
| 8 | 07/01/1990 | WD | Warranty Deed | GOODFELLOW, DONALD M | CAPES, GREGORY R | | | $14,000.00 | 4007 | 90013053 |
| 9 | 01/01/1900 | OTHER | Other - Misc. Documents | Unknown | GOODFELLOW, DONALD M | | | $0.00 | 0 | 0 |
Payout Agreement
| No payout information available.. |