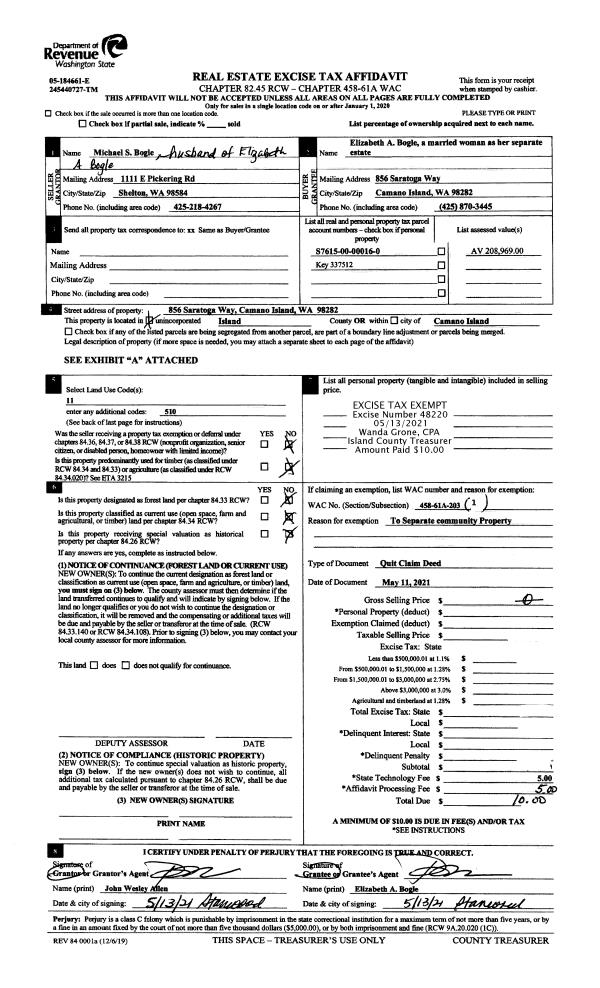
Property
Account |
| Property ID: | 136043 | Abbreviated Legal Description: | 52 - IN SE NW: BG NWCR SE NW E208' S208' W208' N208' TPB EX PT IN CAMPBELL GLEN #1 |
| Geographic ID: | R32923-378-1440 | Agent Code: | |
| Type: | Real | | |
| Tax Area: | 719 - APPRAISER-S Whid Schl Dist, outside Langley, vacant & 50 acres or less | Land Use Code | 91 |
| Open Space: | N | DFL | N |
| Historic Property: | N | Remodel Property: | N |
| Multi-Family Redevelopment: | N | | |
| Township: | 29 | Section: | 23 |
| Range: | R3 |
Location |
| Address: | | Mapsco: | |
| Neighborhood: | Cycle 4 | Map ID: | 805 |
| Neighborhood CD: | 4 |
Owner |
| Name: | MCDOUGALL, JACOB S | Owner ID: | 269100 |
| Mailing Address: | EMILY J MCDOUGALL 4104 TARTAN WAY CLINTON, WA 98236 | % Ownership: | 100.0000000000% |
| | | Exemptions: | |
Taxes and Assessment Details
Values
| (+) Improvement Homesite Value: | + | $0 | |
| (+) Improvement Non-Homesite Value: | + | $0 | |
| (+) Land Homesite Value: | + | $0 | |
| (+) Land Non-Homesite Value: | + | $110,000 | |
| (+) Curr Use (HS): | + | $0 | $0 |
| (+) Curr Use (NHS): | + | $0 | $0 |
| | | -------------------------- | |
| (=) Market Value: | = | $110,000 | |
| (–) Productivity Loss: | – | $0 | |
| | | -------------------------- | |
| (=) Subtotal: | = | $110,000 | |
| (+) Senior Appraised Value: | + | $0 | |
| (+) Non-Senior Appraised Value: | + | $110,000 | |
| | | -------------------------- | |
| (=) Total Appraised Value: | = | $110,000 | |
| (–) Senior Exemption Loss: | – | $0 | |
| (–) Exemption Loss: | – | $0 | |
| | | -------------------------- | |
| (=) Taxable Value: | = | $110,000 | |
Taxing Jurisdiction
| Owner: | MCDOUGALL, JACOB S | | |
| % Ownership: | 100.0000000000% | | |
| Total Value: | $110,000 | | |
| Tax Area: | 719 - APPRAISER-S Whid Schl Dist, outside Langley, vacant & 50 acres or less |
| CF | Conservation Futures | 0.0316035091 | $110,000 | $110,000 | $3.48 | | |
| HOBOND | Hospital BOND | 0.1910887512 | $110,000 | $110,000 | $21.02 | | |
| HOGEN | Hospital GEN | 0.3902502903 | $110,000 | $110,000 | $42.93 | | |
| CE | County Current Expense | 0.3708482477 | $110,000 | $110,000 | $40.79 | | |
| CR | County Roads | 0.4584763726 | $110,000 | $110,000 | $50.43 | | |
| ISLANDEMS | Hospital GEN (EMS) | 0.5000000000 | $110,000 | $110,000 | $55.00 | | |
| LIB | Library Sno-Isle GEN | 0.3153421757 | $110,000 | $110,000 | $34.69 | | |
| PORTWHID | Port of S Whidbey GEN | 0.1094540357 | $110,000 | $110,000 | $12.04 | | |
| SCH206BOND | School 206 BOND | 0.3161759235 | $110,000 | $110,000 | $34.78 | | |
| SCH206MO | School 206 Enrichment | 0.4547169547 | $110,000 | $110,000 | $50.02 | | |
| ST | State School | 1.3035497053 | $110,000 | $110,000 | $143.39 | | |
| ST2 | State School Part 2 | 0.8169543533 | $110,000 | $110,000 | $89.86 | | |
| SWHIDPRBD | P & R S Whidbey BOND | 0.0152817568 | $110,000 | $110,000 | $1.68 | | |
| SWHIDPRBD2 | P & R S Whidbey BOND2 | 0.0138911264 | $110,000 | $110,000 | $1.53 | | |
| SWHIDPRMT | P & R S Whidbey GEN | 0.2053334452 | $110,000 | $110,000 | $22.59 | | |
| | Total Tax Rate: | 5.4929666475 | | | | | |
| | | | | Taxes w/Current Exemptions: | $604.23 | | |
| | | | | Taxes w/o Exemptions: | $604.23 | | |
Improvement / Building
Sketch
| No sketches available for this property. |
Property Image
Land
| 1 | 16 | AC (00.51-01.00) | 0.0000 | 0.00 | 0.00 | 0.00 | 1.00 | $110,000 | $0 |
Roll Value History
| 2026 | N/A | N/A | N/A | N/A | N/A |
| 2025 | $0 | $110,000 | $0 | $110,000 | $110,000 |
| 2024 | $0 | $110,000 | $0 | $110,000 | $110,000 |
| 2023 | $0 | $110,000 | $0 | $110,000 | $110,000 |
| 2022 | $0 | $110,000 | $0 | $110,000 | $110,000 |
| 2021 | $0 | $100,000 | $0 | $100,000 | $100,000 |
| 2020 | $0 | $100,000 | $0 | $100,000 | $100,000 |
| 2019 | $0 | $70,000 | $0 | $70,000 | $70,000 |
| 2018 | $0 | $65,000 | $0 | $65,000 | $65,000 |
| 2017 | $0 | $65,000 | $0 | $65,000 | $65,000 |
| 2016 | $0 | $65,000 | $0 | $65,000 | $65,000 |
| 2015 | $0 | $65,000 | $0 | $65,000 | $65,000 |
| 2014 | $0 | $65,000 | $0 | $65,000 | $65,000 |
| 2013 | $0 | $65,000 | $0 | $65,000 | $65,000 |
| 2012 | $0 | $65,000 | $0 | $65,000 | $65,000 |
| 2011 | $0 | $65,000 | $0 | $65,000 | $65,000 |
| 2010 | $0 | $65,000 | $0 | $65,000 | $65,000 |
| 2009 | $0 | $80,000 | $0 | $80,000 | $80,000 |
| 2008 | $0 | $92,800 | $0 | $92,800 | $92,800 |
| 2007 | $0 | $92,800 | $0 | $92,800 | $92,800 |
Deed and Sales History
| 1 | 12/12/2016 | WD | Warranty Deed | FOSTER, MICHAEL C. | MCDOUGALL, JACOB S | | | $36,000.00 | 27323 | 4413311 |
| 2 | 12/04/2016 | QCD | Quit Claim Deed | KEARTON, REGNAR RB | FOSTER, MICHAEL C. | | | $0.00 | 27322 | 4413310 |
| 3 | 12/15/2000 | ESTSEPPROP | Establish Separate Property | KEARTON, REGNAR R | KEARTON, REGNAR RB | | | $0.00 | 10184 | 20023731 |
| 4 | 10/01/1997 | QCD | Quit Claim Deed | KEARTON, REGNAR | KEARTON, REGNAR R | | | $0.00 | 73941 | 97018860 |
| 5 | 03/01/1995 | QCD | Quit Claim Deed | KEARTON, REGNAR & | KEARTON, REGNAR | | | $0.00 | 51985 | 95009262 |
| 6 | 05/01/1994 | PACD | Purchaser's Assignment | KEARTON, REGNAR & | KEARTON, REGNAR & | | | $45,750.00 | 42298 | 94013042 |
| 7 | 05/01/1994 | QCD | Quit Claim Deed | THOMPSON, SIDNEY J | KEARTON, REGNAR & | | | $0.00 | 42297 | 94013041 |
| 8 | 09/01/1992 | PACD | Purchaser's Assignment | HOPE, C D | THOMPSON, SIDNEY J | | | $36,800.00 | 23995 | 92019429 |
| 9 | 01/01/1982 | EXECUTORD | Executor Deed | MRM, PARTNERSHIP | HOPE, C D | | | $25,000.00 | 20208 | 392589 |
| 10 | 05/01/1980 | CD | DNU - Correction Deed | VALKYRIE, ENTERPRISES, I | MRM, PARTNERSHIP | | | $0.00 | 1887 | 369520 |
| 11 | 01/01/1900 | OTHER | Other - Misc. Documents | Unknown | VALKYRIE, ENTERPRISES, I | | | $0.00 | 0 | 0 |
Payout Agreement
| No payout information available.. |