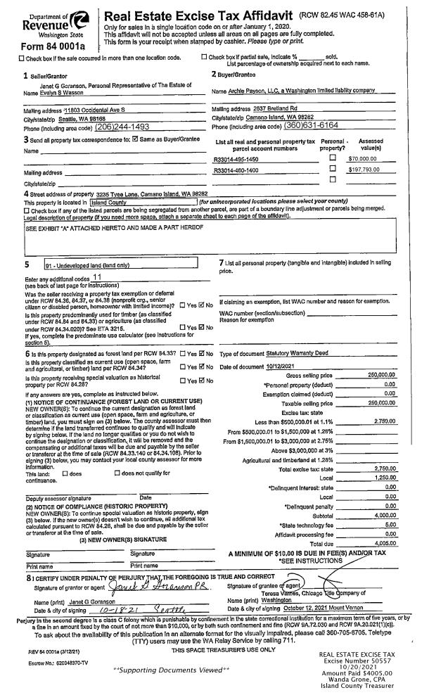
Property
Account |
| Property ID: | 136267 | Abbreviated Legal Description: | 144 - N200' OF E150' W400' OF SW SE S OF HWY SUB EZ |
| Geographic ID: | R32924-062-2910 | Agent Code: | |
| Type: | Real | | |
| Tax Area: | 720 - APPRAISER-S Whid Schl Dist, Special District, improved & less than 1 acre | Land Use Code | 59 |
| Open Space: | N | DFL | N |
| Historic Property: | N | Remodel Property: | N |
| Multi-Family Redevelopment: | N | | |
| Township: | 29 | Section: | 24 |
| Range: | R3 |
Location |
| Address: | 9257 SR525 CLINTON, WA 98236 | Mapsco: | |
| Neighborhood: | 44cCL-highway 525 | Map ID: | 808 |
| Neighborhood CD: | 44cCLhw525 |
Owner |
| Name: | KALK, JASON D | Owner ID: | 264843 |
| Mailing Address: | BOX 658 CLINTON, WA 98236 | % Ownership: | 100.0000000000% |
| | | Exemptions: | |
Taxes and Assessment Details
Values
| (+) Improvement Homesite Value: | + | $0 | |
| (+) Improvement Non-Homesite Value: | + | $131,876 | |
| (+) Land Homesite Value: | + | $0 | |
| (+) Land Non-Homesite Value: | + | $250,000 | |
| (+) Curr Use (HS): | + | $0 | $0 |
| (+) Curr Use (NHS): | + | $0 | $0 |
| | | -------------------------- | |
| (=) Market Value: | = | $381,876 | |
| (–) Productivity Loss: | – | $0 | |
| | | -------------------------- | |
| (=) Subtotal: | = | $381,876 | |
| (+) Senior Appraised Value: | + | $0 | |
| (+) Non-Senior Appraised Value: | + | $381,876 | |
| | | -------------------------- | |
| (=) Total Appraised Value: | = | $381,876 | |
| (–) Senior Exemption Loss: | – | $0 | |
| (–) Exemption Loss: | – | $0 | |
| | | -------------------------- | |
| (=) Taxable Value: | = | $381,876 | |
Taxing Jurisdiction
| Owner: | KALK, JASON D | | |
| % Ownership: | 100.0000000000% | | |
| Total Value: | $381,876 | | |
| Tax Area: | 720 - APPRAISER-S Whid Schl Dist, Special District, improved & less than 1 acre |
| CF | Conservation Futures | 0.0316035091 | $381,876 | $381,876 | $12.07 | | |
| FIRE3 | Fire & Rescue Dist #3 S Whidbey GEN | 1.2004855531 | $381,876 | $381,876 | $458.44 | | |
| HOBOND | Hospital BOND | 0.1910887512 | $381,876 | $381,876 | $72.97 | | |
| HOGEN | Hospital GEN | 0.3902502903 | $381,876 | $381,876 | $149.03 | | |
| CE | County Current Expense | 0.3708482477 | $381,876 | $381,876 | $141.62 | | |
| CR | County Roads | 0.4584763726 | $381,876 | $381,876 | $175.08 | | |
| ISLANDEMS | Hospital GEN (EMS) | 0.5000000000 | $381,876 | $381,876 | $190.94 | | |
| LIB | Library Sno-Isle GEN | 0.3153421757 | $381,876 | $381,876 | $120.42 | | |
| PORTWHID | Port of S Whidbey GEN | 0.1094540357 | $381,876 | $381,876 | $41.80 | | |
| SCH206BOND | School 206 BOND | 0.3161759235 | $381,876 | $381,876 | $120.74 | | |
| SCH206MO | School 206 Enrichment | 0.4547169547 | $381,876 | $381,876 | $173.65 | | |
| ST | State School | 1.3035497053 | $381,876 | $381,876 | $497.79 | | |
| ST2 | State School Part 2 | 0.8169543533 | $381,876 | $381,876 | $311.98 | | |
| SWHIDPRBD | P & R S Whidbey BOND | 0.0152817568 | $381,876 | $381,876 | $5.84 | | |
| SWHIDPRBD2 | P & R S Whidbey BOND2 | 0.0138911264 | $381,876 | $381,876 | $5.30 | | |
| SWHIDPRMT | P & R S Whidbey GEN | 0.2053334452 | $381,876 | $381,876 | $78.41 | | |
| | Total Tax Rate: | 6.6934522006 | | | | | |
| | | | | Taxes w/Current Exemptions: | $2,556.08 | | |
| | | | | Taxes w/o Exemptions: | $2,556.08 | | |
Improvement / Building
| Improvement #1: | COMMERCIAL | State Code: | F1 | 2584.0 sqft | Value: | $131,876 |
| Bathrooms: | 2 | Bedrooms: | 2 | | Ceiling: | DRYWALL PAINTED | Exterior Wall/Cover: | PLYWD/WD OR ST STUDS | | Floor Covering: | CARPET 100% | Floor Structure: | WOOD ON WOOD JOIST | | Foundation: | CONCRETE | Heating: | SPACE HEATERS | | Interior Finish: | RETAIL | Plumbing Fixture Cnt: | 10 | | Roof Structure/Cover: | BEAM BUILT-UP ROCK |   |   |
|
| | Type | Description | Class CD | Sub Class CD | Year Built | Area |
| | BAS | BASE/MAIN FLOOR | 3 | 0 | 1970 | 1880.0 |
| | UPS | UPPER STORY | 3 | 0 | 1970 | 704.0 |
| | OWR | OPEN WOOD PORCH W/STEPS/ROOF | 3 | 0 | 1970 | 440.0 |
| | OWP | OPEN WOOD PORCH W/STEPS | 3 | 0 | 1970 | 76.0 |
| | OP1 | OPEN PORCH SLAB | 3 | 0 | 1970 | 336.0 |
| | UTY | STORAGE/UTILITY | 3 | 0 | 1970 | 480.0 |
| | oPV2 | PV/ASPH 3" | 3 | 0 | 1970 | 6098.0 |
Sketch
Property Image
Land
| 1 | 15 | SQ (12001-21780) | 0.4132 | 18000.00 | 0.00 | 0.00 | 1.00 | $250,000 | $0 |
Roll Value History
| 2026 | N/A | N/A | N/A | N/A | N/A |
| 2025 | $131,876 | $250,000 | $0 | $381,876 | $381,876 |
| 2024 | $142,553 | $230,000 | $0 | $372,553 | $372,553 |
| 2023 | $153,231 | $180,000 | $0 | $333,231 | $333,231 |
| 2022 | $129,448 | $180,000 | $0 | $309,448 | $309,448 |
| 2021 | $126,233 | $180,000 | $0 | $306,233 | $306,233 |
| 2020 | $61,643 | $180,000 | $0 | $241,643 | $241,643 |
| 2019 | $58,769 | $180,000 | $0 | $238,769 | $238,769 |
| 2018 | $58,769 | $180,000 | $0 | $238,769 | $238,769 |
| 2017 | $58,769 | $234,000 | $0 | $292,769 | $292,769 |
| 2016 | $58,769 | $234,000 | $0 | $292,769 | $292,769 |
| 2015 | $61,360 | $234,000 | $0 | $295,360 | $295,360 |
| 2014 | $76,931 | $237,380 | $0 | $314,311 | $314,311 |
| 2013 | $70,119 | $237,380 | $0 | $307,499 | $307,499 |
| 2012 | $147,433 | $237,380 | $0 | $384,813 | $384,813 |
| 2011 | $147,433 | $237,380 | $0 | $384,813 | $384,813 |
| 2010 | $98,443 | $237,380 | $0 | $335,823 | $335,823 |
| 2009 | $100,340 | $260,780 | $0 | $361,120 | $361,120 |
| 2008 | $105,390 | $260,780 | $0 | $366,170 | $366,170 |
| 2007 | $107,309 | $260,780 | $0 | $368,089 | $368,089 |
Deed and Sales History
| 1 | 01/01/2014 | WD | Warranty Deed | LINCOLN, SCOTT & CANDY | KALK, JASON D | | | $50,000.00 | 14041 | 4354024 |
| 2 | 03/28/2007 | WD | Warranty Deed | OSWALT, DENNIS K | LINCOLN, SCOTT & CANDY | | | $375,000.00 | 71179 | 4199050 |
| 3 | 07/01/2003 | WD | Warranty Deed | RICHARDSON, I | OSWALT, DENNIS K | | | $200,000.00 | 32849 | 4065230 |
| 4 | 10/01/1998 | WD | Warranty Deed | SMITH, E H | RICHARDSON, I | | | $95,964.00 | 83924 | 98021042 |
| 5 | 08/01/1978 | OTHER | Other - Misc. Documents | Unknown | SMITH, E H | | | $0.00 | 83585 | 3370450 |
Payout Agreement
| No payout information available.. |