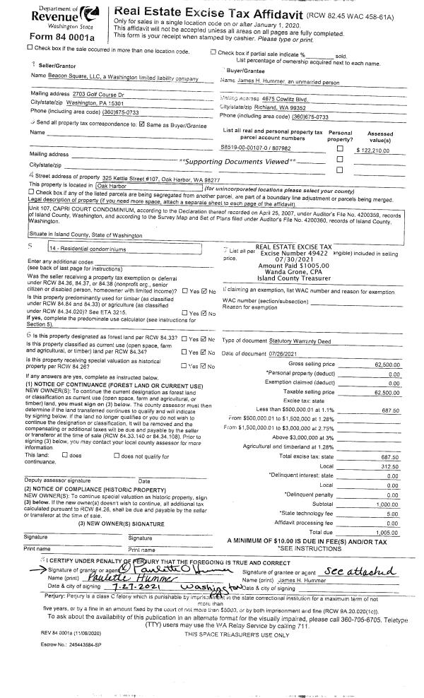
Property
Account |
| Property ID: | 136285 | Abbreviated Legal Description: | 72 - W602.25' OF SW SW LY N OF OLD CO RD EX N330' |
| Geographic ID: | R32924-084-0300 | Agent Code: | |
| Type: | Real | | |
| Tax Area: | 722 - APPRAISER-S Whid Schl Dist, Special District, improved, greater than 1 acre | Land Use Code | 11 |
| Open Space: | N | DFL | N |
| Historic Property: | N | Remodel Property: | N |
| Multi-Family Redevelopment: | N | | |
| Township: | 29 | Section: | 24 |
| Range: | R3 |
Location |
| Address: | 4441 FORGOTTEN LN CLINTON, WA 98236 | Mapsco: | |
| Neighborhood: | Cycle 4 | Map ID: | 807 |
| Neighborhood CD: | 4 |
Owner |
| Name: | ANDOLINA, LUCA | Owner ID: | 300628 |
| Mailing Address: | PO BOX 683 CLINTON, WA 98236 | % Ownership: | 100.0000000000% |
| | | Exemptions: | |
Taxes and Assessment Details
Values
| (+) Improvement Homesite Value: | + | $0 | |
| (+) Improvement Non-Homesite Value: | + | $325,512 | |
| (+) Land Homesite Value: | + | $0 | |
| (+) Land Non-Homesite Value: | + | $290,000 | |
| (+) Curr Use (HS): | + | $0 | $0 |
| (+) Curr Use (NHS): | + | $0 | $0 |
| | | -------------------------- | |
| (=) Market Value: | = | $615,512 | |
| (–) Productivity Loss: | – | $0 | |
| | | -------------------------- | |
| (=) Subtotal: | = | $615,512 | |
| (+) Senior Appraised Value: | + | $0 | |
| (+) Non-Senior Appraised Value: | + | $615,512 | |
| | | -------------------------- | |
| (=) Total Appraised Value: | = | $615,512 | |
| (–) Senior Exemption Loss: | – | $0 | |
| (–) Exemption Loss: | – | $0 | |
| | | -------------------------- | |
| (=) Taxable Value: | = | $615,512 | |
Taxing Jurisdiction
| Owner: | ANDOLINA, LUCA | | |
| % Ownership: | 100.0000000000% | | |
| Total Value: | $615,512 | | |
| Tax Area: | 722 - APPRAISER-S Whid Schl Dist, Special District, improved, greater than 1 acre |
| CF | Conservation Futures | 0.0316035091 | $615,512 | $615,512 | $19.45 | | |
| FIRE3 | Fire & Rescue Dist #3 S Whidbey GEN | 1.2004855531 | $615,512 | $615,512 | $738.91 | | |
| HOBOND | Hospital BOND | 0.1910887512 | $615,512 | $615,512 | $117.62 | | |
| HOGEN | Hospital GEN | 0.3902502903 | $615,512 | $615,512 | $240.20 | | |
| CE | County Current Expense | 0.3708482477 | $615,512 | $615,512 | $228.26 | | |
| CR | County Roads | 0.4584763726 | $615,512 | $615,512 | $282.20 | | |
| ISLANDEMS | Hospital GEN (EMS) | 0.5000000000 | $615,512 | $615,512 | $307.76 | | |
| LIB | Library Sno-Isle GEN | 0.3153421757 | $615,512 | $615,512 | $194.10 | | |
| PORTWHID | Port of S Whidbey GEN | 0.1094540357 | $615,512 | $615,512 | $67.37 | | |
| SCH206BOND | School 206 BOND | 0.3161759235 | $615,512 | $615,512 | $194.61 | | |
| SCH206MO | School 206 Enrichment | 0.4547169547 | $615,512 | $615,512 | $279.88 | | |
| ST | State School | 1.3035497053 | $615,512 | $615,512 | $802.35 | | |
| ST2 | State School Part 2 | 0.8169543533 | $615,512 | $615,512 | $502.85 | | |
| SWHIDPRBD | P & R S Whidbey BOND | 0.0152817568 | $615,512 | $615,512 | $9.41 | | |
| SWHIDPRBD2 | P & R S Whidbey BOND2 | 0.0138911264 | $615,512 | $615,512 | $8.55 | | |
| SWHIDPRMT | P & R S Whidbey GEN | 0.2053334452 | $615,512 | $615,512 | $126.39 | | |
| | Total Tax Rate: | 6.6934522006 | | | | | |
| | | | | Taxes w/Current Exemptions: | $4,119.91 | | |
| | | | | Taxes w/o Exemptions: | $4,119.91 | | |
Improvement / Building
| Improvement #1: | RESIDENTIAL | State Code: | Y | 2332.8 sqft | Value: | $325,512 |
| Bathrooms: | 2 | Bedrooms: | 3 | | Ceiling: | DRYWALL PAINTED | Exterior Wall/Cover: | CEMENT FIBER | | Floor Covering: | CARPET/VINYL 60-40 | Floor Structure: | WOOD W/SUBFLOOR | | Foundation: | CONCRETE | Heating: | WALL HEAT ELECTRIC | | Interior Finish: | DRYWALL PAINT | Plumbing Fixture Cnt: | 10 | | Roof Slope: | 4" IN 12" | Roof Structure/Cover: | CJ ASPHALT |
|
| | Type | Description | Class CD | Sub Class CD | Year Built | Area |
| | BAS | BASE/MAIN FLOOR | 3 | 0 | 2007 | 1848.8 |
| | AGR | ATTACHED GARAGE | 3 | 0 | 2007 | 484.0 |
| | OWP | OPEN WOOD PORCH W/STEPS | 3 | 0 | 2007 | 104.0 |
| | UPH | HALF STORY | 3 | 0 | 2007 | 484.0 |
Sketch
Property Image
Land
| 1 | 17 | AC (01.01-02.00) | 5.5400 | 0.00 | 0.00 | 0.00 | 1.00 | $290,000 | $0 |
Roll Value History
| 2026 | N/A | N/A | N/A | N/A | N/A |
| 2025 | $325,512 | $290,000 | $0 | $615,512 | $615,512 |
| 2024 | $329,287 | $280,000 | $0 | $609,287 | $609,287 |
| 2023 | $333,059 | $260,000 | $0 | $593,059 | $593,059 |
| 2022 | $235,855 | $250,000 | $0 | $485,855 | $485,855 |
| 2021 | $199,949 | $175,000 | $0 | $374,949 | $374,949 |
| 2020 | $250,092 | $165,000 | $0 | $415,092 | $415,092 |
| 2019 | $193,515 | $200,000 | $0 | $393,515 | $393,515 |
| 2018 | $194,064 | $170,000 | $0 | $364,064 | $364,064 |
| 2017 | $195,115 | $110,000 | $0 | $305,115 | $305,115 |
| 2016 | $197,310 | $85,000 | $0 | $282,310 | $282,310 |
| 2015 | $199,501 | $85,000 | $0 | $284,501 | $284,501 |
| 2014 | $201,693 | $85,000 | $0 | $286,693 | $286,693 |
| 2013 | $215,413 | $69,360 | $0 | $284,773 | $284,773 |
| 2012 | $217,729 | $69,360 | $0 | $287,089 | $287,089 |
| 2011 | $220,045 | $69,360 | $0 | $289,405 | $289,405 |
| 2010 | $212,144 | $69,360 | $0 | $281,504 | $281,504 |
| 2009 | $213,977 | $89,760 | $0 | $303,737 | $303,737 |
| 2008 | $202,254 | $102,000 | $0 | $304,254 | $304,254 |
| 2007 | $204,309 | $97,400 | $0 | $301,709 | $301,709 |
Deed and Sales History
| 1 | 07/28/2021 | WD | Warranty Deed | LOMINAC, ALFORD W | ANDOLINA, LUCA | | | $520,000.00 | 49531 | 4526288 |
| 2 | 05/25/2006 | WD | Warranty Deed | TRAN, TUAN A | LOMINAC, ALFORD W | | | $80,000.00 | 62368 | 4171858 |
| 3 | 09/01/1997 | WD | Warranty Deed | KOENIGS, LINDA & | TRAN, TUAN A | | | $47,500.00 | 73440 | 97016256 |
| 4 | 06/01/1995 | TRUSTEED | Trustee's Deed | GARDUNO, EDWARD C | KOENIGS, LINDA & | | | $0.00 | 51991 | 95009291 |
| 5 | 09/01/1990 | WD | Warranty Deed | BRIGGS, JAMES H | GARDUNO, EDWARD C | | | $49,500.00 | 5207 | 90017331 |
| 6 | 08/01/1980 | TRUSTEED | Trustee's Deed | DYNES, LARRY | BRIGGS, JAMES H | | | $25,000.00 | 2912 | 373134 |
| 7 | 01/01/1900 | OTHER | Other - Misc. Documents | Unknown | DYNES, LARRY | | | $0.00 | 0 | 0 |
Payout Agreement
| No payout information available.. |