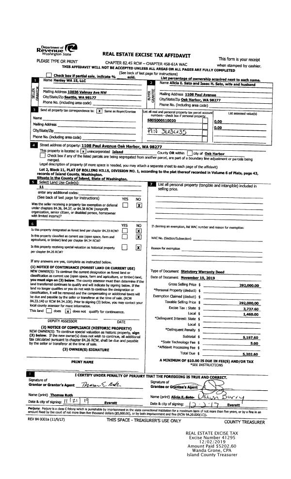
Property
Account |
| Property ID: | 136472 | Abbreviated Legal Description: | 38 - IN SE:BG NW CR L11 CLINT HTS#1 S69*W290' TPB S69*W90' CUR/L92.2' S14*W81 .96' E228.9' N20*W184.49' TPB TGW EZ SUB DRAIN EAS AF#420857 FOR 116-3080 |
| Geographic ID: | R32924-135-3040 | Agent Code: | |
| Type: | Real | | |
| Tax Area: | 720 - APPRAISER-S Whid Schl Dist, Special District, improved & less than 1 acre | Land Use Code | 11 |
| Open Space: | N | DFL | N |
| Historic Property: | N | Remodel Property: | N |
| Multi-Family Redevelopment: | N | | |
| Township: | 29 | Section: | 24 |
| Range: | R3 |
Location |
| Address: | 9330 SR525 CLINTON, WA 98236 | Mapsco: | |
| Neighborhood: | Cycle 4 | Map ID: | 808 |
| Neighborhood CD: | 4 |
Owner |
| Name: | DUHUA USA, LLC | Owner ID: | 292084 |
| Mailing Address: | PO BOX 654 CLINTON, WA 98236 | % Ownership: | 100.0000000000% |
| | | Exemptions: | |
Taxes and Assessment Details
Values
| (+) Improvement Homesite Value: | + | $0 | |
| (+) Improvement Non-Homesite Value: | + | $49,720 | |
| (+) Land Homesite Value: | + | $0 | |
| (+) Land Non-Homesite Value: | + | $260,000 | |
| (+) Curr Use (HS): | + | $0 | $0 |
| (+) Curr Use (NHS): | + | $0 | $0 |
| | | -------------------------- | |
| (=) Market Value: | = | $309,720 | |
| (–) Productivity Loss: | – | $0 | |
| | | -------------------------- | |
| (=) Subtotal: | = | $309,720 | |
| (+) Senior Appraised Value: | + | $0 | |
| (+) Non-Senior Appraised Value: | + | $309,720 | |
| | | -------------------------- | |
| (=) Total Appraised Value: | = | $309,720 | |
| (–) Senior Exemption Loss: | – | $0 | |
| (–) Exemption Loss: | – | $0 | |
| | | -------------------------- | |
| (=) Taxable Value: | = | $309,720 | |
Taxing Jurisdiction
| Owner: | DUHUA USA, LLC | | |
| % Ownership: | 100.0000000000% | | |
| Total Value: | $309,720 | | |
| Tax Area: | 720 - APPRAISER-S Whid Schl Dist, Special District, improved & less than 1 acre |
| CF | Conservation Futures | 0.0316035091 | $309,720 | $309,720 | $9.79 | | |
| FIRE3 | Fire & Rescue Dist #3 S Whidbey GEN | 1.2004855531 | $309,720 | $309,720 | $371.81 | | |
| HOBOND | Hospital BOND | 0.1910887512 | $309,720 | $309,720 | $59.18 | | |
| HOGEN | Hospital GEN | 0.3902502903 | $309,720 | $309,720 | $120.87 | | |
| CE | County Current Expense | 0.3708482477 | $309,720 | $309,720 | $114.86 | | |
| CR | County Roads | 0.4584763726 | $309,720 | $309,720 | $142.00 | | |
| ISLANDEMS | Hospital GEN (EMS) | 0.5000000000 | $309,720 | $309,720 | $154.86 | | |
| LIB | Library Sno-Isle GEN | 0.3153421757 | $309,720 | $309,720 | $97.67 | | |
| PORTWHID | Port of S Whidbey GEN | 0.1094540357 | $309,720 | $309,720 | $33.90 | | |
| SCH206BOND | School 206 BOND | 0.3161759235 | $309,720 | $309,720 | $97.93 | | |
| SCH206MO | School 206 Enrichment | 0.4547169547 | $309,720 | $309,720 | $140.83 | | |
| ST | State School | 1.3035497053 | $309,720 | $309,720 | $403.74 | | |
| ST2 | State School Part 2 | 0.8169543533 | $309,720 | $309,720 | $253.03 | | |
| SWHIDPRBD | P & R S Whidbey BOND | 0.0152817568 | $309,720 | $309,720 | $4.73 | | |
| SWHIDPRBD2 | P & R S Whidbey BOND2 | 0.0138911264 | $309,720 | $309,720 | $4.30 | | |
| SWHIDPRMT | P & R S Whidbey GEN | 0.2053334452 | $309,720 | $309,720 | $63.60 | | |
| | Total Tax Rate: | 6.6934522006 | | | | | |
| | | | | Taxes w/Current Exemptions: | $2,073.10 | | |
| | | | | Taxes w/o Exemptions: | $2,073.10 | | |
Improvement / Building
| Improvement #1: | MANUFACTURED HOME | State Code: | Y | 1568.0 sqft | Value: | $49,720 |
| Bathrooms: | 0 | Bedrooms: | 0 | | Ceiling: | PLASTER PAINTED | Cooling: | EVAP NO DUCT | | Exterior Wall/Cover: | VINYL | Floor Covering: | CARPET 100% | | Floor Structure: | SLAB ON GRADE | Foundation: | SLAB | | Heating: | FHA ELECTRIC | Interior Finish: | PLASTER | | Plumbing Fixture Cnt: | 1 | Roof Slope: | FLAT | | Roof Structure/Cover: | CJ ALUMINIUM HEAVY |   |   |
|
| | Type | Description | Class CD | Sub Class CD | Year Built | Area |
| | BAS | BASE/MAIN FLOOR | 4 | 0 | 1984 | 1568.0 |
| | OWP | OPEN WOOD PORCH W/STEPS | 4 | 0 | 1984 | 160.0 |
| | OWP | OPEN WOOD PORCH W/STEPS | 4 | 0 | 1984 | 48.0 |
| | OWP | OPEN WOOD PORCH W/STEPS | 4 | 0 | 1984 | 24.5 |
Sketch
Property Image
Land
| 1 | 16 | AC (00.51-01.00) | 0.0000 | 0.00 | 0.00 | 0.00 | 1.00 | $260,000 | $0 |
Roll Value History
| 2026 | N/A | N/A | N/A | N/A | N/A |
| 2025 | $49,720 | $260,000 | $0 | $309,720 | $309,720 |
| 2024 | $51,377 | $250,000 | $0 | $301,377 | $301,377 |
| 2023 | $47,557 | $240,000 | $0 | $287,557 | $287,557 |
| 2022 | $45,674 | $240,000 | $0 | $285,674 | $285,674 |
| 2021 | $43,117 | $155,000 | $0 | $198,117 | $198,117 |
| 2020 | $37,884 | $130,000 | $0 | $167,884 | $167,884 |
| 2019 | $32,402 | $140,000 | $0 | $172,402 | $172,402 |
| 2018 | $34,107 | $110,000 | $0 | $144,107 | $144,107 |
| 2017 | $35,813 | $100,000 | $0 | $135,813 | $135,813 |
| 2016 | $37,518 | $75,000 | $0 | $112,518 | $112,518 |
| 2015 | $39,223 | $75,000 | $0 | $114,223 | $114,223 |
| 2014 | $31,513 | $72,250 | $0 | $103,763 | $103,763 |
| 2013 | $33,483 | $72,250 | $0 | $105,733 | $105,733 |
| 2012 | $34,796 | $72,250 | $0 | $107,046 | $107,046 |
| 2011 | $36,109 | $85,000 | $0 | $121,109 | $121,109 |
| 2010 | $33,818 | $125,000 | $0 | $158,818 | $158,818 |
| 2009 | $36,260 | $150,000 | $0 | $186,260 | $186,260 |
| 2008 | $38,631 | $165,000 | $0 | $203,631 | $203,631 |
| 2007 | $40,366 | $165,000 | $0 | $205,366 | $205,366 |
Deed and Sales History
| 1 | 10/01/2019 | WD | Warranty Deed | YU CO TRUSTEE, CHIU TUNG | DUHUA USA, LLC | | | $1,430,000.00 | 40546 | 4472653 |
|   | |
| 2 | 01/01/1994 | QCD | Quit Claim Deed | YU, CHIU T | YU, CHIU T | | | $0.00 | 40699 | 94004415 |
| 3 | 02/01/1984 | OTHER | Other - Misc. Documents | YU, CHIU T | YU, CHIU T | | | $21,900.00 | 11111111 | 0 |
| 4 | 02/01/1984 | EZ | Easement | YU, CHIU T | YU, CHIU T | | | $0.00 | 60917 | 420857 |
| 5 | 06/01/1983 | PACD | Purchaser's Assignment | YU, CHIU T | YU, CHIU T | | | $0.00 | 31832 | 411706 |
| 6 | 05/01/1983 | PACD | Purchaser's Assignment | HOLLINGER, LLOYD L | YU, CHIU T | | | $0.00 | 32060 | 412545 |
| 7 | 11/01/1982 | QCD | Quit Claim Deed | KINGSMORE, GRANT | HOLLINGER, LLOYD L | | | $0.00 | 22850 | 403085 |
| 8 | 06/01/1981 | REC | Real Estate Contract | HOLLINGER, L & | KINGSMORE, GRANT | | | $11,518.00 | 12055 | 385021 |
| 9 | 06/01/1978 | OTHER | Other - Misc. Documents | Unknown | HOLLINGER, L & | | | $2,700.00 | 86289 | 345379 |
Payout Agreement
| No payout information available.. |