Property
Account |
| Property ID: | 136677 | Abbreviated Legal Description: | 45 - IN GL5 N95' OF:BG 516' N OF SE CR GL5 S80*W135.3' TPB S80*W271.48' N11*W230' N80*E174.63' S33*E252.94' TPB |
| Geographic ID: | R32924-237-4790 | Agent Code: | |
| Type: | Real | | |
| Tax Area: | 720 - APPRAISER-S Whid Schl Dist, Special District, improved & less than 1 acre | Land Use Code | 11 |
| Open Space: | N | DFL | N |
| Historic Property: | N | Remodel Property: | N |
| Multi-Family Redevelopment: | N | | |
| Township: | 29 | Section: | 24 |
| Range: | R3 |
Location |
| Address: | 4792 HANSEN DR CLINTON, WA 98236 | Mapsco: | |
| Neighborhood: | Cycle 4 | Map ID: | 808 |
| Neighborhood CD: | 4 |
Owner |
| Name: | JAS, ELISABETH C | Owner ID: | 293644 |
| Mailing Address: | ERIK SVENSON 43 COOLIDGE AVE LEXINGTON, MA 02420 | % Ownership: | 100.0000000000% |
| | | Exemptions: | |
Taxes and Assessment Details
Values
| (+) Improvement Homesite Value: | + | $0 | |
| (+) Improvement Non-Homesite Value: | + | $99,525 | |
| (+) Land Homesite Value: | + | $0 | |
| (+) Land Non-Homesite Value: | + | $340,000 | |
| (+) Curr Use (HS): | + | $0 | $0 |
| (+) Curr Use (NHS): | + | $0 | $0 |
| | | -------------------------- | |
| (=) Market Value: | = | $439,525 | |
| (–) Productivity Loss: | – | $0 | |
| | | -------------------------- | |
| (=) Subtotal: | = | $439,525 | |
| (+) Senior Appraised Value: | + | $0 | |
| (+) Non-Senior Appraised Value: | + | $439,525 | |
| | | -------------------------- | |
| (=) Total Appraised Value: | = | $439,525 | |
| (–) Senior Exemption Loss: | – | $0 | |
| (–) Exemption Loss: | – | $0 | |
| | | -------------------------- | |
| (=) Taxable Value: | = | $439,525 | |
Taxing Jurisdiction
| Owner: | JAS, ELISABETH C | | |
| % Ownership: | 100.0000000000% | | |
| Total Value: | $439,525 | | |
| Tax Area: | 720 - APPRAISER-S Whid Schl Dist, Special District, improved & less than 1 acre |
| CF | Conservation Futures | 0.0316035091 | $439,525 | $439,525 | $13.89 | | |
| FIRE3 | Fire & Rescue Dist #3 S Whidbey GEN | 1.2004855531 | $439,525 | $439,525 | $527.64 | | |
| HOBOND | Hospital BOND | 0.1910887512 | $439,525 | $439,525 | $83.99 | | |
| HOGEN | Hospital GEN | 0.3902502903 | $439,525 | $439,525 | $171.52 | | |
| CE | County Current Expense | 0.3708482477 | $439,525 | $439,525 | $163.00 | | |
| CR | County Roads | 0.4584763726 | $439,525 | $439,525 | $201.51 | | |
| ISLANDEMS | Hospital GEN (EMS) | 0.5000000000 | $439,525 | $439,525 | $219.76 | | |
| LIB | Library Sno-Isle GEN | 0.3153421757 | $439,525 | $439,525 | $138.60 | | |
| PORTWHID | Port of S Whidbey GEN | 0.1094540357 | $439,525 | $439,525 | $48.11 | | |
| SCH206BOND | School 206 BOND | 0.3161759235 | $439,525 | $439,525 | $138.97 | | |
| SCH206MO | School 206 Enrichment | 0.4547169547 | $439,525 | $439,525 | $199.86 | | |
| ST | State School | 1.3035497053 | $439,525 | $439,525 | $572.94 | | |
| ST2 | State School Part 2 | 0.8169543533 | $439,525 | $439,525 | $359.07 | | |
| SWHIDPRBD | P & R S Whidbey BOND | 0.0152817568 | $439,525 | $439,525 | $6.72 | | |
| SWHIDPRBD2 | P & R S Whidbey BOND2 | 0.0138911264 | $439,525 | $439,525 | $6.11 | | |
| SWHIDPRMT | P & R S Whidbey GEN | 0.2053334452 | $439,525 | $439,525 | $90.25 | | |
| | Total Tax Rate: | 6.6934522006 | | | | | |
| | | | | Taxes w/Current Exemptions: | $2,941.94 | | |
| | | | | Taxes w/o Exemptions: | $2,941.94 | | |
Improvement / Building
| Improvement #1: | MANUFACTURED HOME | State Code: | Y | 1056.0 sqft | Value: | $99,525 |
| Bathrooms: | 0 | Bedrooms: | 0 | | Ceiling: | PLASTER PAINTED | Cooling: | EVAP NO DUCT | | Exterior Wall/Cover: | VINYL | Floor Covering: | CARPET 100% | | Floor Structure: | SLAB ON GRADE | Foundation: | SLAB | | Heating: | FHA ELECTRIC | Interior Finish: | PLASTER | | Plumbing Fixture Cnt: | 1 | Roof Slope: | FLAT | | Roof Structure/Cover: | CJ ALUMINIUM HEAVY |   |   |
|
| | Type | Description | Class CD | Sub Class CD | Year Built | Area |
| | BAS | BASE/MAIN FLOOR | 4 | 0 | 1967 | 1056.0 |
| | OWP | OPEN WOOD PORCH W/STEPS | 4 | 0 | 1967 | 698.0 |
Sketch
Property Image
Land
| 1 | 15 | SQ (12001-21780) | 0.0000 | 0.00 | 0.00 | 0.00 | 1.00 | $340,000 | $0 |
Roll Value History
| 2026 | N/A | N/A | N/A | N/A | N/A |
| 2025 | $99,525 | $340,000 | $0 | $439,525 | $439,525 |
| 2024 | $102,251 | $320,000 | $0 | $422,251 | $422,251 |
| 2023 | $91,288 | $300,000 | $0 | $391,288 | $391,288 |
| 2022 | $84,808 | $280,000 | $0 | $364,808 | $364,808 |
| 2021 | $75,620 | $230,000 | $0 | $305,620 | $305,620 |
| 2020 | $71,592 | $180,000 | $0 | $251,592 | $251,592 |
| 2019 | $57,832 | $190,000 | $0 | $247,832 | $247,832 |
| 2018 | $59,260 | $160,000 | $0 | $219,260 | $219,260 |
| 2017 | $60,688 | $150,000 | $0 | $210,688 | $210,688 |
| 2016 | $61,401 | $150,000 | $0 | $211,401 | $211,401 |
| 2015 | $49,978 | $150,000 | $0 | $199,978 | $199,978 |
| 2014 | $32,546 | $150,000 | $0 | $182,546 | $182,546 |
| 2013 | $33,703 | $150,000 | $0 | $183,703 | $183,703 |
| 2012 | $34,861 | $170,000 | $0 | $204,861 | $204,861 |
| 2011 | $36,018 | $200,000 | $0 | $236,018 | $236,018 |
| 2010 | $37,854 | $200,000 | $0 | $237,854 | $237,854 |
| 2009 | $40,057 | $250,000 | $0 | $290,057 | $290,057 |
| 2008 | $40,588 | $250,000 | $0 | $290,588 | $290,588 |
| 2007 | $67,032 | $224,410 | $0 | $291,442 | $291,442 |
Deed and Sales History
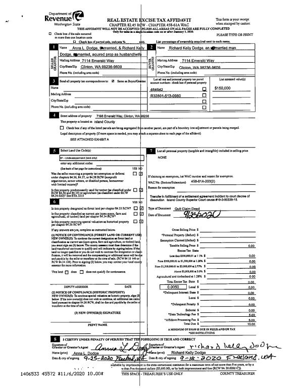
| 1 | 02/21/2020 | WD | Warranty Deed | ADAMS, RENE S | JAS, ELISABETH C | | | $280,000.00 | 42271 | 4482267 |
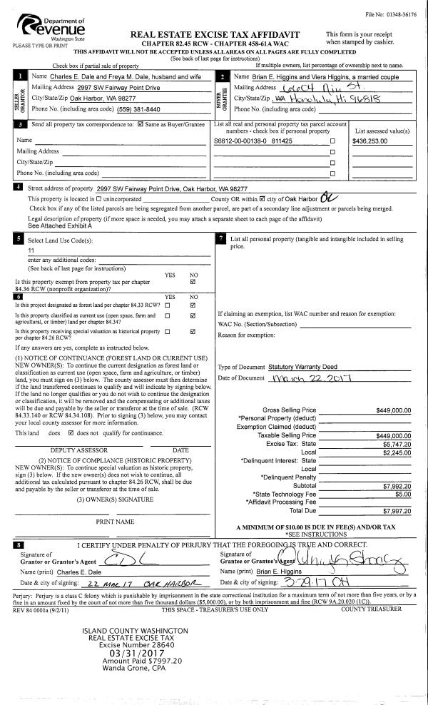
| 2 | 04/07/2017 | WD | Warranty Deed | SWANN, BRENT | ADAMS, RENE S | | | $198,500.00 | 28895 | 4420777 |
| 3 | 03/07/2007 | WD | Warranty Deed | FREEMAN, HERSHEL/LAURIE R | SWANN, BRENT | | | $328,000.00 | 70823 | 4196255 |
| 4 | 03/14/2000 | OTHER | Other - Misc. Documents | FREEMAN, HERSHEL | FREEMAN, HERSHEL/LAURIE R | | | $12,502.00 | 903 | 0 |
| 5 | 02/15/2000 | WD | Warranty Deed | DEEL, ROBERT H | FREEMAN, HERSHEL | | | $85,000.00 | 900 | 20004486 |
| 6 | 12/01/1983 | REC | Real Estate Contract | DEEL, ROBERT H | DEEL, ROBERT H | | | $31,300.00 | 33457 | 417933 |
| 7 | 11/01/1983 | OTHER | Other - Misc. Documents | RUGG, JOHN E | DEEL, ROBERT H | | | $8,700.00 | 33456 | 0 |
| 8 | 01/01/1900 | OTHER | Other - Misc. Documents | Unknown | RUGG, JOHN B | | | $0.00 | 0 | 0 |
| 9 | 01/01/1900 | OTHER | Other - Misc. Documents | RUGG, JOHN B | RUGG, JOHN E | | | $0.00 | 0 | 0 |
Payout Agreement
| No payout information available.. |