Property
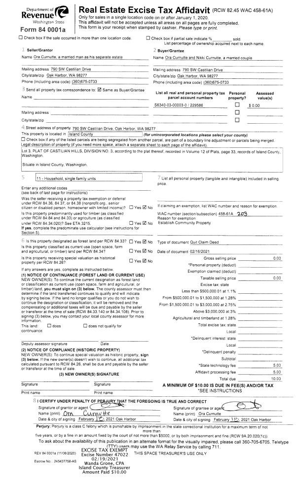
Account |
| Property ID: | 136846 | Abbreviated Legal Description: | 137 - IN GL5:BG MC BTWN SEC 24 & 19 ALG SWLN RD & A FENCE LN CC#2413 N45*W98.68 TPB N45*W80' S44*W100' S45* E80' N44*E100' TPB TGW ADJ TIDES EX BG MC BET SEC 24 & 19 ALG SWLN RD & ALG A FENCE LN CC#2413 N45*W141. 68' TPB N45*W37' S44*W100' S45*E37' N44*E1 |
| Geographic ID: | R32924-288-5050 | Agent Code: | |
| Type: | Real | | |
| Tax Area: | 720 - APPRAISER-S Whid Schl Dist, Special District, improved & less than 1 acre | Land Use Code | 11 |
| Open Space: | N | DFL | N |
| Historic Property: | N | Remodel Property: | N |
| Multi-Family Redevelopment: | N | | |
| Township: | 29 | Section: | 24 |
| Range: | R3 |
Location |
| Address: | 6214 BRIGHTON BEACH RD CLINTON, WA 98236 | Mapsco: | |
| Neighborhood: | Cycle 4 | Map ID: | 808 |
| Neighborhood CD: | 4 |
Owner |
| Name: | O'CONNOR, DAVID R | Owner ID: | 18780 |
| Mailing Address: | 1415 84TH ST SE OFC EVERETT, WA 98208-2122 | % Ownership: | 100.0000000000% |
| | | Exemptions: | |
Taxes and Assessment Details
Values
| (+) Improvement Homesite Value: | + | $0 | |
| (+) Improvement Non-Homesite Value: | + | $217,833 | |
| (+) Land Homesite Value: | + | $0 | |
| (+) Land Non-Homesite Value: | + | $700,430 | |
| (+) Curr Use (HS): | + | $0 | $0 |
| (+) Curr Use (NHS): | + | $0 | $0 |
| | | -------------------------- | |
| (=) Market Value: | = | $918,263 | |
| (–) Productivity Loss: | – | $0 | |
| | | -------------------------- | |
| (=) Subtotal: | = | $918,263 | |
| (+) Senior Appraised Value: | + | $0 | |
| (+) Non-Senior Appraised Value: | + | $918,263 | |
| | | -------------------------- | |
| (=) Total Appraised Value: | = | $918,263 | |
| (–) Senior Exemption Loss: | – | $0 | |
| (–) Exemption Loss: | – | $0 | |
| | | -------------------------- | |
| (=) Taxable Value: | = | $918,263 | |
Taxing Jurisdiction
| Owner: | O'CONNOR, DAVID R | | |
| % Ownership: | 100.0000000000% | | |
| Total Value: | $918,263 | | |
| Tax Area: | 720 - APPRAISER-S Whid Schl Dist, Special District, improved & less than 1 acre |
| CF | Conservation Futures | 0.0316035091 | $918,263 | $918,263 | $29.02 | | |
| FIRE3 | Fire & Rescue Dist #3 S Whidbey GEN | 1.2004855531 | $918,263 | $918,263 | $1,102.36 | | |
| HOBOND | Hospital BOND | 0.1910887512 | $918,263 | $918,263 | $175.47 | | |
| HOGEN | Hospital GEN | 0.3902502903 | $918,263 | $918,263 | $358.35 | | |
| CE | County Current Expense | 0.3708482477 | $918,263 | $918,263 | $340.54 | | |
| CR | County Roads | 0.4584763726 | $918,263 | $918,263 | $421.00 | | |
| ISLANDEMS | Hospital GEN (EMS) | 0.5000000000 | $918,263 | $918,263 | $459.13 | | |
| LIB | Library Sno-Isle GEN | 0.3153421757 | $918,263 | $918,263 | $289.57 | | |
| PORTWHID | Port of S Whidbey GEN | 0.1094540357 | $918,263 | $918,263 | $100.51 | | |
| SCH206BOND | School 206 BOND | 0.3161759235 | $918,263 | $918,263 | $290.33 | | |
| SCH206MO | School 206 Enrichment | 0.4547169547 | $918,263 | $918,263 | $417.55 | | |
| ST | State School | 1.3035497053 | $918,263 | $918,263 | $1,197.00 | | |
| ST2 | State School Part 2 | 0.8169543533 | $918,263 | $918,263 | $750.18 | | |
| SWHIDPRBD | P & R S Whidbey BOND | 0.0152817568 | $918,263 | $918,263 | $14.03 | | |
| SWHIDPRBD2 | P & R S Whidbey BOND2 | 0.0138911264 | $918,263 | $918,263 | $12.76 | | |
| SWHIDPRMT | P & R S Whidbey GEN | 0.2053334452 | $918,263 | $918,263 | $188.55 | | |
| | Total Tax Rate: | 6.6934522006 | | | | | |
| | | | | Taxes w/Current Exemptions: | $6,146.35 | | |
| | | | | Taxes w/o Exemptions: | $6,146.35 | | |
Improvement / Building
| Improvement #1: | RESIDENTIAL | State Code: | Y | 1500.0 sqft | Value: | $217,833 |
| Bathrooms: | 2 | Bedrooms: | 3 | | Ceiling: | DRYWALL PAINTED | Exterior Wall/Cover: | WOOD SIDING | | Floor Covering: | CARPET/VINYL 80-20 | Floor Structure: | SLAB ON GRADE | | Foundation: | CONCRETE | Heating: | FHA GAS | | Interior Finish: | DRYWALL PAINT | Plumbing Fixture Cnt: | 10 | | Roof Slope: | 4" IN 12" | Roof Structure/Cover: | CJ ASPHALT |
|
| | Type | Description | Class CD | Sub Class CD | Year Built | Area |
| | BAS | BASE/MAIN FLOOR | 3 | 0 | 1956 | 500.0 |
| | OP3 | OPEN PORCH W/ROOF | 3 | 0 | 1956 | 288.0 |
| | BIG | BUILT IN GARAGE | 3 | 0 | 1956 | 500.0 |
| | UPS | UPPER STORY | 3 | 0 | 1956 | 1000.0 |
| | BAW | BALCONY WOOD RAIL | 3 | 0 | 1956 | 125.0 |
| | oOBD | Out Buildings | 3 | 0 | 1956 | 0.0 |
Sketch
Property Image
Land
| 1 | LB | LOW BANK | 0.0000 | 0.00 | 43.00 | 0.00 | 1.00 | $700,000 | $0 |
| 2 | 55 | TIDES | 0.0000 | 0.00 | 43.00 | 0.00 | 1.00 | $430 | $0 |
Roll Value History
| 2026 | N/A | N/A | N/A | N/A | N/A |
| 2025 | $217,833 | $700,430 | $0 | $918,263 | $918,263 |
| 2024 | $220,750 | $675,430 | $0 | $896,180 | $896,180 |
| 2023 | $223,667 | $675,430 | $0 | $899,097 | $899,097 |
| 2022 | $206,117 | $675,430 | $0 | $881,547 | $881,547 |
| 2021 | $182,842 | $380,430 | $0 | $563,272 | $563,272 |
| 2020 | $147,215 | $380,430 | $0 | $527,645 | $527,645 |
| 2019 | $110,239 | $350,430 | $0 | $460,669 | $460,669 |
| 2018 | $110,622 | $250,430 | $0 | $361,052 | $361,052 |
| 2017 | $111,392 | $250,430 | $0 | $361,822 | $361,822 |
| 2016 | $112,928 | $250,430 | $0 | $363,358 | $363,358 |
| 2015 | $114,463 | $250,430 | $0 | $364,893 | $364,893 |
| 2014 | $95,065 | $250,430 | $0 | $345,495 | $345,495 |
| 2013 | $96,601 | $217,952 | $0 | $314,553 | $314,553 |
| 2012 | $98,137 | $217,952 | $0 | $316,089 | $316,089 |
| 2011 | $99,672 | $256,338 | $0 | $356,010 | $356,010 |
| 2010 | $109,482 | $256,338 | $0 | $365,820 | $365,820 |
| 2009 | $114,035 | $320,315 | $0 | $434,350 | $434,350 |
| 2008 | $116,581 | $320,315 | $0 | $436,896 | $436,896 |
| 2007 | $118,414 | $320,014 | $0 | $438,428 | $438,428 |
Deed and Sales History
| 1 | 01/01/1984 | QCD | Quit Claim Deed | O'CONNOR, ROBERT D | O'CONNOR, DAVID R | | | $0.00 | 40064 | 419669 |
| 2 | 12/01/1983 | QCD | Quit Claim Deed | O'CONNOR, ROBERT D | O'CONNOR, ROBERT D | | | $0.00 | 33625 | 418603 |
| 3 | 01/01/1900 | OTHER | Other - Misc. Documents | Unknown | O'CONNOR, ROBERT D | | | $0.00 | 0 | 0 |
Payout Agreement
| No payout information available.. |