Property
Account |
| Property ID: | 137079 | Abbreviated Legal Description: | 0.4200 Acres ins Section 24s Township 29s Range R3s LOT A LOT COMB AF#4506116;s |
| Geographic ID: | R32924-309-4750 | Agent Code: | |
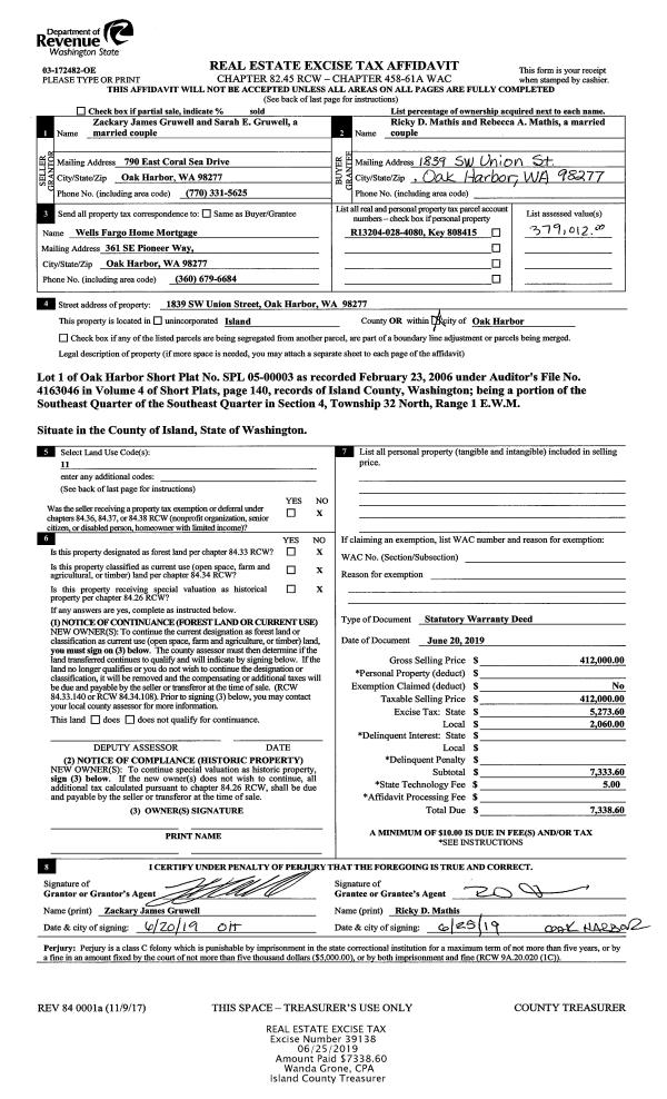
| Type: | Real | | |
| Tax Area: | 720 - APPRAISER-S Whid Schl Dist, Special District, improved & less than 1 acre | Land Use Code | 11 |
| Open Space: | N | DFL | N |
| Historic Property: | N | Remodel Property: | N |
| Multi-Family Redevelopment: | N | | |
| Township: | 29 | Section: | 24 |
| Range: | R3 |
Location |
| Address: | 6197 BRIGHTON BEACH RD CLINTON, WA 98236 | Mapsco: | |
| Neighborhood: | Cycle 4 | Map ID: | 811 |
| Neighborhood CD: | 4 |
Owner |
| Name: | VICTOR, DAVID M | Owner ID: | 289550 |
| Mailing Address: | LAURA ROGERS VICTOR 163 DORFFEL DR E SEATTLE, WA 98112 | % Ownership: | 100.0000000000% |
| | | Exemptions: | |
Taxes and Assessment Details
Values
| (+) Improvement Homesite Value: | + | $0 | |
| (+) Improvement Non-Homesite Value: | + | $177,577 | |
| (+) Land Homesite Value: | + | $0 | |
| (+) Land Non-Homesite Value: | + | $775,750 | |
| (+) Curr Use (HS): | + | $0 | $0 |
| (+) Curr Use (NHS): | + | $0 | $0 |
| | | -------------------------- | |
| (=) Market Value: | = | $953,327 | |
| (–) Productivity Loss: | – | $0 | |
| | | -------------------------- | |
| (=) Subtotal: | = | $953,327 | |
| (+) Senior Appraised Value: | + | $0 | |
| (+) Non-Senior Appraised Value: | + | $953,327 | |
| | | -------------------------- | |
| (=) Total Appraised Value: | = | $953,327 | |
| (–) Senior Exemption Loss: | – | $0 | |
| (–) Exemption Loss: | – | $0 | |
| | | -------------------------- | |
| (=) Taxable Value: | = | $953,327 | |
Taxing Jurisdiction
| Owner: | VICTOR, DAVID M | | |
| % Ownership: | 100.0000000000% | | |
| Total Value: | $953,327 | | |
| Tax Area: | 720 - APPRAISER-S Whid Schl Dist, Special District, improved & less than 1 acre |
| CF | Conservation Futures | 0.0316035091 | $953,327 | $953,327 | $30.13 | | |
| FIRE3 | Fire & Rescue Dist #3 S Whidbey GEN | 1.2004855531 | $953,327 | $953,327 | $1,144.46 | | |
| HOBOND | Hospital BOND | 0.1910887512 | $953,327 | $953,327 | $182.17 | | |
| HOGEN | Hospital GEN | 0.3902502903 | $953,327 | $953,327 | $372.04 | | |
| CE | County Current Expense | 0.3708482477 | $953,327 | $953,327 | $353.54 | | |
| CR | County Roads | 0.4584763726 | $953,327 | $953,327 | $437.08 | | |
| ISLANDEMS | Hospital GEN (EMS) | 0.5000000000 | $953,327 | $953,327 | $476.66 | | |
| LIB | Library Sno-Isle GEN | 0.3153421757 | $953,327 | $953,327 | $300.62 | | |
| PORTWHID | Port of S Whidbey GEN | 0.1094540357 | $953,327 | $953,327 | $104.35 | | |
| SCH206BOND | School 206 BOND | 0.3161759235 | $953,327 | $953,327 | $301.42 | | |
| SCH206MO | School 206 Enrichment | 0.4547169547 | $953,327 | $953,327 | $433.49 | | |
| ST | State School | 1.3035497053 | $953,327 | $953,327 | $1,242.71 | | |
| ST2 | State School Part 2 | 0.8169543533 | $953,327 | $953,327 | $778.82 | | |
| SWHIDPRBD | P & R S Whidbey BOND | 0.0152817568 | $953,327 | $953,327 | $14.57 | | |
| SWHIDPRBD2 | P & R S Whidbey BOND2 | 0.0138911264 | $953,327 | $953,327 | $13.24 | | |
| SWHIDPRMT | P & R S Whidbey GEN | 0.2053334452 | $953,327 | $953,327 | $195.75 | | |
| | Total Tax Rate: | 6.6934522006 | | | | | |
| | | | | Taxes w/Current Exemptions: | $6,381.05 | | |
| | | | | Taxes w/o Exemptions: | $6,381.05 | | |
Improvement / Building
| Improvement #1: | RESIDENTIAL | State Code: | Y | 1200.0 sqft | Value: | $177,577 |
| Bathrooms: | 1 | Bedrooms: | 2 | | Ceiling: | DRY WALL SPRAYED | Exterior Wall/Cover: | COMMON BRICK VENEER | | Floor Covering: | CARPET/VINYL 60-40 | Floor Structure: | WOOD W/SUBFLOOR | | Foundation: | CONCRETE | Heating: | FHA ELECTRIC | | Interior Finish: | DRYWALL PAINT | Plumbing Fixture Cnt: | 6 | | Roof Slope: | 3" IN 12" | Roof Structure/Cover: | BEAM BUILT-UP ROCK |
|
| | Type | Description | Class CD | Sub Class CD | Year Built | Area |
| | BAS | BASE/MAIN FLOOR | 3 | 0 | 1968 | 1200.0 |
| | OP2 | OPEN PORCH W/STEPS | 3 | 0 | 1968 | 25.0 |
| | OWP | OPEN WOOD PORCH W/STEPS | 3 | 0 | 1968 | 472.0 |
Sketch
Property Image
Land
| 1 | LB | LOW BANK | 0.0000 | 0.00 | 37.50 | 0.00 | 1.00 | $775,000 | $0 |
| 2 | 55 | TIDES | 0.0000 | 0.00 | 37.50 | 0.00 | 1.00 | $750 | $0 |
Roll Value History
| 2026 | N/A | N/A | N/A | N/A | N/A |
| 2025 | $177,577 | $775,750 | $0 | $953,327 | $953,327 |
| 2024 | $180,298 | $750,750 | $0 | $931,048 | $931,048 |
| 2023 | $183,019 | $750,750 | $0 | $933,769 | $933,769 |
| 2022 | $168,191 | $700,750 | $0 | $868,941 | $868,941 |
| 2021 | $148,400 | $430,750 | $0 | $579,150 | $579,150 |
| 2020 | $134,844 | $430,500 | $0 | $565,344 | $565,344 |
| 2019 | $98,283 | $300,500 | $0 | $398,783 | $398,783 |
| 2018 | $98,655 | $250,500 | $0 | $349,155 | $349,155 |
| 2017 | $99,396 | $250,500 | $0 | $349,896 | $349,896 |
| 2016 | $100,879 | $250,500 | $0 | $351,379 | $351,379 |
| 2015 | $102,363 | $250,500 | $0 | $352,863 | $352,863 |
| 2014 | $95,447 | $250,500 | $0 | $345,947 | $345,947 |
| 2013 | $96,916 | $243,977 | $0 | $340,893 | $340,893 |
| 2012 | $98,384 | $243,977 | $0 | $342,361 | $342,361 |
| 2011 | $99,853 | $286,943 | $0 | $386,796 | $386,796 |
| 2010 | $109,459 | $286,943 | $0 | $396,402 | $396,402 |
| 2009 | $114,396 | $358,553 | $0 | $472,949 | $472,949 |
| 2008 | $100,726 | $357,118 | $0 | $457,844 | $201,261 |
| 2007 | $100,960 | $357,949 | $0 | $458,909 | $201,261 |
Deed and Sales History
| 1 | 05/01/2019 | WD | Warranty Deed | GRACE E THORSEN | VICTOR, DAVID M | | | $820,000.00 | 38285 | 4462366 |
|   | |
| 2 | 01/25/2011 | | | THORSEN, WENDELL E | GRACE E THORSEN | | | | 81957 | |
Payout Agreement
| No payout information available.. |