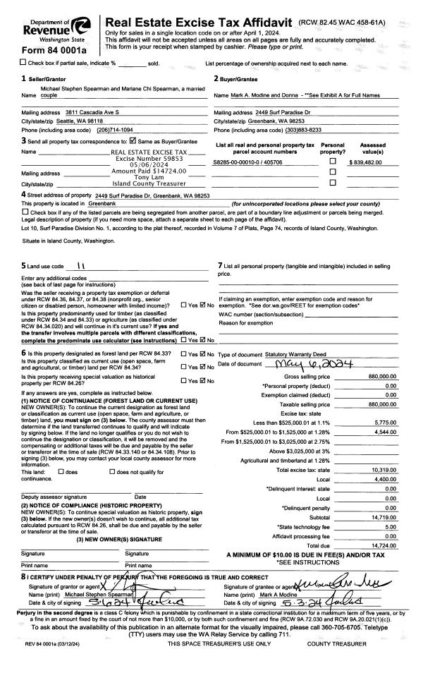
Property
Account |
| Property ID: | 13746 | Abbreviated Legal Description: | 53 - IN NW NW: BG 1078.31'E FR NWCR SEC 3 E100' S156.32 N87*W100.08' N153.16' TPB TGW EZ |
| Geographic ID: | R13203-509-1110 | Agent Code: | |
| Type: | Real | | |
| Tax Area: | 100 - APPRAISER-OH Schl Dist, in OH | Land Use Code | 11 |
| Open Space: | N | DFL | N |
| Historic Property: | N | Remodel Property: | N |
| Multi-Family Redevelopment: | N | | |
| Township: | 32 | Section: | 03 |
| Range: | R1 |
Location |
| Address: | 1482 SW 2ND WAY OAK HARBOR, WA 98277 | Mapsco: | |
| Neighborhood: | Cycle 1 | Map ID: | 92 |
| Neighborhood CD: | 1 |
Owner |
| Name: | ANDERSON, CARY H | Owner ID: | 300975 |
| Mailing Address: | BILL C ANDERSON 1504 SW 2ND WAY OAK HARBOR, WA 98277 | % Ownership: | 100.0000000000% |
| | | Exemptions: | |
Taxes and Assessment Details
Values
| (+) Improvement Homesite Value: | + | $0 | |
| (+) Improvement Non-Homesite Value: | + | $298,535 | |
| (+) Land Homesite Value: | + | $0 | |
| (+) Land Non-Homesite Value: | + | $200,000 | |
| (+) Curr Use (HS): | + | $0 | $0 |
| (+) Curr Use (NHS): | + | $0 | $0 |
| | | -------------------------- | |
| (=) Market Value: | = | $498,535 | |
| (–) Productivity Loss: | – | $0 | |
| | | -------------------------- | |
| (=) Subtotal: | = | $498,535 | |
| (+) Senior Appraised Value: | + | $0 | |
| (+) Non-Senior Appraised Value: | + | $498,535 | |
| | | -------------------------- | |
| (=) Total Appraised Value: | = | $498,535 | |
| (–) Senior Exemption Loss: | – | $0 | |
| (–) Exemption Loss: | – | $0 | |
| | | -------------------------- | |
| (=) Taxable Value: | = | $498,535 | |
Taxing Jurisdiction
| Owner: | ANDERSON, CARY H | | |
| % Ownership: | 100.0000000000% | | |
| Total Value: | $498,535 | | |
| Tax Area: | 100 - APPRAISER-OH Schl Dist, in OH |
| CF | Conservation Futures | 0.0316035091 | $498,535 | $498,535 | $15.76 | | |
| CEM1 | Cemetery #1 | 0.0040320932 | $498,535 | $498,535 | $2.01 | | |
| COH | City of Oak Harbor | 2.3001546061 | $498,535 | $498,535 | $1,146.71 | | |
| OAKBOND | City of Oak Harbor BOND | 0.1926904192 | $498,535 | $498,535 | $96.06 | | |
| HOBOND | Hospital BOND | 0.1910887512 | $498,535 | $498,535 | $95.26 | | |
| HOGEN | Hospital GEN | 0.3902502903 | $498,535 | $498,535 | $194.55 | | |
| CE | County Current Expense | 0.3708482477 | $498,535 | $498,535 | $184.88 | | |
| ISLANDEMS | Hospital GEN (EMS) | 0.5000000000 | $498,535 | $498,535 | $249.27 | | |
| LIB | Library Sno-Isle GEN | 0.3153421757 | $498,535 | $498,535 | $157.21 | | |
| NWHIDPRMT | P & R N Whidbey GEN | 0.2004466701 | $498,535 | $498,535 | $99.93 | | |
| SCH201MO | School 201 Enrichment | 1.8559231640 | $498,535 | $498,535 | $925.24 | | |
| ST | State School | 1.3035497053 | $498,535 | $498,535 | $649.87 | | |
| ST2 | State School Part 2 | 0.8169543533 | $498,535 | $498,535 | $407.28 | | |
| | Total Tax Rate: | 8.4728839852 | | | | | |
| | | | | Taxes w/Current Exemptions: | $4,224.03 | | |
| | | | | Taxes w/o Exemptions: | $4,224.03 | | |
Improvement / Building
| Improvement #1: | RESIDENTIAL | State Code: | Y | 1991.0 sqft | Value: | $298,535 |
| Bathrooms: | 3.5 | Bedrooms: | 3 | | Ceiling: | DRYWALL PAINTED | Exterior Wall/Cover: | COMMON BRICK VENEER | | Floor Covering: | CARPET/VINYL 20-80 | Floor Structure: | SLAB ON GRADE | | Foundation: | SLAB | Heating: | B/B HOT WATER-GAS | | Interior Finish: | DRYWALL PAINT | Plumbing Fixture Cnt: | 13 | | Roof Slope: | 4" IN 12" | Roof Structure/Cover: | CJ ASPHALT |
|
| | Type | Description | Class CD | Sub Class CD | Year Built | Area |
| | BAS | BASE/MAIN FLOOR | 3 | 0 | 1959 | 1991.0 |
| | OP1 | OPEN PORCH SLAB | 3 | 0 | 1959 | 140.0 |
| | AGR | ATTACHED GARAGE | 3 | 0 | 1959 | 550.0 |
| | OP4 | OPEN PORCH W/CEILING-ROOF | 3 | 0 | 1959 | 104.0 |
| | OCP | OPEN CARPORT | 3 | 0 | 1959 | 412.5 |
Sketch
Property Image
Land
| 1 | 15 | SQ (12001-21780) | 0.3500 | 15246.00 | 0.00 | 0.00 | 1.00 | $200,000 | $0 |
Roll Value History
| 2026 | N/A | N/A | N/A | N/A | N/A |
| 2025 | $298,535 | $200,000 | $0 | $498,535 | $498,535 |
| 2024 | $302,503 | $190,000 | $0 | $492,503 | $492,503 |
| 2023 | $298,535 | $180,000 | $0 | $478,535 | $478,535 |
| 2022 | $273,928 | $180,000 | $0 | $453,928 | $453,928 |
| 2021 | $241,318 | $135,000 | $0 | $376,318 | $376,318 |
| 2020 | $197,135 | $100,000 | $0 | $297,135 | $297,135 |
| 2019 | $140,820 | $150,000 | $0 | $290,820 | $290,820 |
| 2018 | $141,328 | $130,000 | $0 | $271,328 | $271,328 |
| 2017 | $138,093 | $110,000 | $0 | $248,093 | $248,093 |
| 2016 | $140,251 | $90,000 | $0 | $230,251 | $230,251 |
| 2015 | $142,408 | $70,000 | $0 | $212,408 | $212,408 |
| 2014 | $144,567 | $60,000 | $0 | $204,567 | $204,567 |
| 2013 | $146,723 | $60,000 | $0 | $206,723 | $206,723 |
| 2012 | $148,882 | $60,000 | $0 | $208,882 | $208,882 |
| 2011 | $166,217 | $50,000 | $0 | $216,217 | $216,217 |
| 2010 | $179,868 | $50,000 | $0 | $229,868 | $229,868 |
| 2009 | $187,801 | $60,000 | $0 | $247,801 | $247,801 |
| 2008 | $190,345 | $72,000 | $0 | $262,345 | $262,345 |
| 2007 | $193,010 | $72,000 | $0 | $265,010 | $265,010 |
Deed and Sales History
| 1 | 08/30/2021 | WD | Warranty Deed | FOX, JODY J | ANDERSON, CARY H | | | $456,000.00 | 49860 | 4528122 |
| 2 | 08/17/2020 | WD | Warranty Deed | SMITH, MATTHEW EVERETT | FOX, JODY J | | | $400,000.00 | 44355 | 4494456 |
| 3 | 07/16/2018 | QCD | Quit Claim Deed | SMITH, MATTHEW E | SMITH, MATTHEW EVERETT | | | $0.00 | 35913 | 4451790 |
| 4 | 12/17/2013 | WD | Warranty Deed | SECRETARY OF VETERAN AFFAIRS | SMITH, MATTHEW E | | | $176,500.00 | 13814 | 4352889 |
| 5 | 06/26/2013 | WD | Warranty Deed | WELLS FARGO BANK NA | SECRETARY OF VETERAN AFFAIRS | | | $184,110.00 | 11934 | 4343562 |
| 6 | 06/24/2013 | TRUSTEED | Trustee's Deed | LEWIS, JEFFREY D | WELLS FARGO BANK NA | | | $180,666.00 | 11829 | 4342872 |
| 7 | 04/21/2005 | WD | Warranty Deed | FOXE, THOMAS G | LEWIS, JEFFREY D | | | $210,000.00 | 51870 | 4132835 |
| 8 | 08/23/1999 | WD | Warranty Deed | SEC OF VETERANS AFFAIRS, | FOXE, THOMAS G | | | $137,900.00 | 93488 | 99019977 |
| 9 | 12/31/1998 | WD | Warranty Deed | NORWEST MORTGAGE INC, | SEC OF VETERANS AFFAIRS, | | | $0.00 | 90015 | 99000122 |
| 10 | 12/31/1998 | TRUSTEED | Trustee's Deed | WEAR, JEROME K | NORWEST MORTGAGE INC, | | | $114,851.00 | 90014 | 99000121 |
| 11 | 01/01/1996 | WD | Warranty Deed | WASHINGTON, MICHAEL J | WEAR, JEROME K | | | $139,900.00 | 60212 | 96001074 |
| 12 | 11/01/1990 | WD | Warranty Deed | WASHINGTON, MICHAEL J | WASHINGTON, MICHAEL J | | | $104,900.00 | 6094 | 90020750 |
| 13 | 11/01/1990 | WD | Warranty Deed | WASHINGTON, MICHAEL J | WASHINGTON, MICHAEL J | | | $0.00 | 11411 | 91006027 |
| 14 | 11/01/1990 | WD | Warranty Deed | SURBER, ELAINE M | WASHINGTON, MICHAEL J | | | $0.00 | 11680 | 91007105 |
| 15 | 08/01/1981 | CD | DNU - Correction Deed | SURBER, ELAINE M | SURBER, ELAINE M | | | $1.00 | 12827 | 387724 |
| 16 | 07/01/1981 | TRUSTEED | Trustee's Deed | SURBER, EDWIN W | SURBER, ELAINE M | | | $0.00 | 59196 | 0 |
| 17 | 01/01/1900 | OTHER | Other - Misc. Documents | Unknown | SURBER, EDWIN W | | | $0.00 | 0 | 0 |
Payout Agreement
| No payout information available.. |