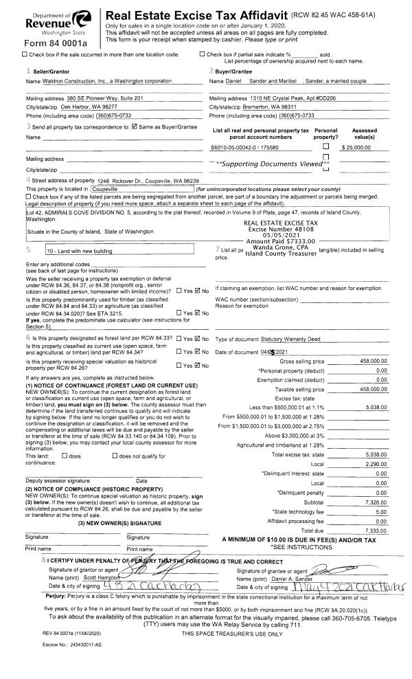
Property
Account |
| Property ID: | 138309 | Abbreviated Legal Description: | 54 - IN SE SW NE: BG NWCR SE SW NE E208'6" N208'6" TPB TWG: STRIP OF LAND 10' WIDE FR NLN SE SW NE FOR ROAD (V47 P41) |
| Geographic ID: | R32925-319-3200 | Agent Code: | |
| Type: | Real | | |
| Tax Area: | 720 - APPRAISER-S Whid Schl Dist, Special District, improved & less than 1 acre | Land Use Code | 11 |
| Open Space: | N | DFL | N |
| Historic Property: | N | Remodel Property: | N |
| Multi-Family Redevelopment: | N | | |
| Township: | 29 | Section: | 25 |
| Range: | R3 |
Location |
| Address: | 6550 ANDERSON RD CLINTON, WA 98236 | Mapsco: | |
| Neighborhood: | Cycle 4 | Map ID: | 815 |
| Neighborhood CD: | 4 |
Owner |
| Name: | GROSKREUTZ, DUSTI D | Owner ID: | 251671 |
| Mailing Address: | 1134 EAGLE PASS ROYSE CITY, TX 75189-8452 | % Ownership: | 100.0000000000% |
| | | Exemptions: | |
Taxes and Assessment Details
Values
| (+) Improvement Homesite Value: | + | $0 | |
| (+) Improvement Non-Homesite Value: | + | $611,037 | |
| (+) Land Homesite Value: | + | $0 | |
| (+) Land Non-Homesite Value: | + | $410,000 | |
| (+) Curr Use (HS): | + | $0 | $0 |
| (+) Curr Use (NHS): | + | $0 | $0 |
| | | -------------------------- | |
| (=) Market Value: | = | $1,021,037 | |
| (–) Productivity Loss: | – | $0 | |
| | | -------------------------- | |
| (=) Subtotal: | = | $1,021,037 | |
| (+) Senior Appraised Value: | + | $0 | |
| (+) Non-Senior Appraised Value: | + | $1,021,037 | |
| | | -------------------------- | |
| (=) Total Appraised Value: | = | $1,021,037 | |
| (–) Senior Exemption Loss: | – | $0 | |
| (–) Exemption Loss: | – | $0 | |
| | | -------------------------- | |
| (=) Taxable Value: | = | $1,021,037 | |
Taxing Jurisdiction
| Owner: | GROSKREUTZ, DUSTI D | | |
| % Ownership: | 100.0000000000% | | |
| Total Value: | $1,021,037 | | |
| Tax Area: | 720 - APPRAISER-S Whid Schl Dist, Special District, improved & less than 1 acre |
| CF | Conservation Futures | 0.0316035091 | $1,021,037 | $1,021,037 | $32.27 | | |
| FIRE3 | Fire & Rescue Dist #3 S Whidbey GEN | 1.2004855531 | $1,021,037 | $1,021,037 | $1,225.74 | | |
| HOBOND | Hospital BOND | 0.1910887512 | $1,021,037 | $1,021,037 | $195.11 | | |
| HOGEN | Hospital GEN | 0.3902502903 | $1,021,037 | $1,021,037 | $398.46 | | |
| CE | County Current Expense | 0.3708482477 | $1,021,037 | $1,021,037 | $378.65 | | |
| CR | County Roads | 0.4584763726 | $1,021,037 | $1,021,037 | $468.12 | | |
| ISLANDEMS | Hospital GEN (EMS) | 0.5000000000 | $1,021,037 | $1,021,037 | $510.52 | | |
| LIB | Library Sno-Isle GEN | 0.3153421757 | $1,021,037 | $1,021,037 | $321.98 | | |
| PORTWHID | Port of S Whidbey GEN | 0.1094540357 | $1,021,037 | $1,021,037 | $111.76 | | |
| SCH206BOND | School 206 BOND | 0.3161759235 | $1,021,037 | $1,021,037 | $322.83 | | |
| SCH206MO | School 206 Enrichment | 0.4547169547 | $1,021,037 | $1,021,037 | $464.28 | | |
| ST | State School | 1.3035497053 | $1,021,037 | $1,021,037 | $1,330.97 | | |
| ST2 | State School Part 2 | 0.8169543533 | $1,021,037 | $1,021,037 | $834.14 | | |
| SWHIDPRBD | P & R S Whidbey BOND | 0.0152817568 | $1,021,037 | $1,021,037 | $15.60 | | |
| SWHIDPRBD2 | P & R S Whidbey BOND2 | 0.0138911264 | $1,021,037 | $1,021,037 | $14.18 | | |
| SWHIDPRMT | P & R S Whidbey GEN | 0.2053334452 | $1,021,037 | $1,021,037 | $209.65 | | |
| | Total Tax Rate: | 6.6934522006 | | | | | |
| | | | | Taxes w/Current Exemptions: | $6,834.26 | | |
| | | | | Taxes w/o Exemptions: | $6,834.26 | | |
Improvement / Building
| Improvement #1: | RESIDENTIAL | State Code: | Y | 2835.5 sqft | Value: | $611,037 |
| Bathrooms: | 3 | Bedrooms: | 4 | | Ceiling: | DRYWALL PAINTED | Exterior Wall/Cover: | SHINGLE | | Floor Covering: | HARDWOOD/CARP 80-20 | Floor Structure: | WOOD W/SUBFLOOR | | Foundation: | CONCRETE | Heating: | FHA GAS | | Interior Finish: | DRYWALL PAINT | Plumbing Fixture Cnt: | 14 | | Roof Slope: | 6" IN 12" | Roof Structure/Cover: | CJ ASPHALT |
|
| | Type | Description | Class CD | Sub Class CD | Year Built | Area |
| | BAS | BASE/MAIN FLOOR | 4 | 0 | 1994 | 1472.0 |
| | UB8 | BASEMENT UNFINISHED 8" | 4 | 0 | 1994 | 1392.0 |
| | OP4 | OPEN PORCH W/CEILING-ROOF | 4 | 0 | 1994 | 84.0 |
| | OP4 | OPEN PORCH W/CEILING-ROOF | 4 | 0 | 1994 | 27.0 |
| | DGR | DETACHED GARAGE | 4 | 0 | 1994 | 1040.0 |
| | UPS | UPPER STORY | 4 | 0 | 1994 | 1363.5 |
| | OWP | OPEN WOOD PORCH W/STEPS | 4 | 0 | 1994 | 496.0 |
Sketch
Property Image
Land
| 1 | 16 | AC (00.51-01.00) | 0.0000 | 0.00 | 0.00 | 0.00 | 1.00 | $410,000 | $0 |
Roll Value History
| 2026 | N/A | N/A | N/A | N/A | N/A |
| 2025 | $611,037 | $410,000 | $0 | $1,021,037 | $1,021,037 |
| 2024 | $618,747 | $390,000 | $0 | $1,008,747 | $1,008,747 |
| 2023 | $626,457 | $360,000 | $0 | $986,457 | $986,457 |
| 2022 | $574,246 | $350,000 | $0 | $924,246 | $924,246 |
| 2021 | $505,422 | $280,000 | $0 | $785,422 | $785,422 |
| 2020 | $469,685 | $260,000 | $0 | $729,685 | $729,685 |
| 2019 | $364,655 | $290,000 | $0 | $654,655 | $654,655 |
| 2018 | $365,776 | $250,000 | $0 | $615,776 | $615,776 |
| 2017 | $367,998 | $250,000 | $0 | $617,998 | $617,998 |
| 2016 | $372,486 | $250,000 | $0 | $622,486 | $622,486 |
| 2015 | $376,973 | $150,000 | $0 | $526,973 | $526,973 |
| 2014 | $349,437 | $150,000 | $0 | $499,437 | $499,437 |
| 2013 | $353,848 | $150,000 | $0 | $503,848 | $503,848 |
| 2012 | $358,260 | $148,750 | $0 | $507,010 | $507,010 |
| 2011 | $362,674 | $175,000 | $0 | $537,674 | $537,674 |
| 2010 | $372,213 | $175,000 | $0 | $547,213 | $547,213 |
| 2009 | $388,218 | $200,000 | $0 | $588,218 | $588,218 |
| 2008 | $362,792 | $225,000 | $0 | $587,792 | $587,792 |
| 2007 | $367,334 | $225,000 | $0 | $592,334 | $592,334 |
Deed and Sales History
| 1 | 09/10/2010 | WD | Warranty Deed | SUNDQUIST, DAVID M / CAROLYN | GROSKREUTZ, DUSTI D | | | $545,000.00 | 2299 | 4281044 |
|   | |
| 2 | 03/01/1992 | QCD | Quit Claim Deed | BIPPART, JOHN D | SUNDQUIST, DAVID M | | | $0.00 | 21091 | 92005417 |
| 3 | 10/01/1989 | WD | Warranty Deed | ROSWALL, LOUISE E | BIPPART, JOHN D | | | $52,500.00 | 94915 | 89015900 |
| 4 | 09/01/1988 | OTHER | Other - Misc. Documents | ROSWALL, WINFRID | ROSWALL, LOUISE E | | | $0.00 | 62873 | 410160 |
| 5 | 01/01/1900 | OTHER | Other - Misc. Documents | Unknown | ROSWALL, WINFRID | | | $0.00 | 0 | 0 |
Payout Agreement
| No payout information available.. |