Property
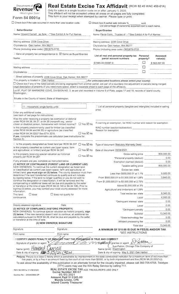
Account |
| Property ID: | 138354 | Abbreviated Legal Description: | 2.3500 Acres ins Section 25s Township 29s Range R3s LOT B BLA 209-16 AF# 4410901 TL 99 - IN S/2 NE SW NE;s |
| Geographic ID: | R32925-339-3450 | Agent Code: | |
| Type: | Real | | |
| Tax Area: | 722 - APPRAISER-S Whid Schl Dist, Special District, improved, greater than 1 acre | Land Use Code | 11 |
| Open Space: | N | DFL | N |
| Historic Property: | N | Remodel Property: | N |
| Multi-Family Redevelopment: | N | | |
| Township: | 29 | Section: | 25 |
| Range: | R3 |
Location |
| Address: | 6548 ANDERSON RD CLINTON, WA 98236 | Mapsco: | |
| Neighborhood: | Cycle 4 | Map ID: | 815 |
| Neighborhood CD: | 4 |
Owner |
| Name: | ANDERSON, CLAYTON S | Owner ID: | 287703 |
| Mailing Address: | CANDY L ANDERSON PO BOX 205 CLINTON, WA 98236 | % Ownership: | 100.0000000000% |
| | | Exemptions: | |
Taxes and Assessment Details
Values
| (+) Improvement Homesite Value: | + | $0 | |
| (+) Improvement Non-Homesite Value: | + | $655,201 | |
| (+) Land Homesite Value: | + | $0 | |
| (+) Land Non-Homesite Value: | + | $430,000 | |
| (+) Curr Use (HS): | + | $0 | $0 |
| (+) Curr Use (NHS): | + | $0 | $0 |
| | | -------------------------- | |
| (=) Market Value: | = | $1,085,201 | |
| (–) Productivity Loss: | – | $0 | |
| | | -------------------------- | |
| (=) Subtotal: | = | $1,085,201 | |
| (+) Senior Appraised Value: | + | $0 | |
| (+) Non-Senior Appraised Value: | + | $1,085,201 | |
| | | -------------------------- | |
| (=) Total Appraised Value: | = | $1,085,201 | |
| (–) Senior Exemption Loss: | – | $0 | |
| (–) Exemption Loss: | – | $0 | |
| | | -------------------------- | |
| (=) Taxable Value: | = | $1,085,201 | |
Taxing Jurisdiction
| Owner: | ANDERSON, CLAYTON S | | |
| % Ownership: | 100.0000000000% | | |
| Total Value: | $1,085,201 | | |
| Tax Area: | 722 - APPRAISER-S Whid Schl Dist, Special District, improved, greater than 1 acre |
| CF | Conservation Futures | 0.0316035091 | $1,085,201 | $1,085,201 | $34.30 | | |
| FIRE3 | Fire & Rescue Dist #3 S Whidbey GEN | 1.2004855531 | $1,085,201 | $1,085,201 | $1,302.77 | | |
| HOBOND | Hospital BOND | 0.1910887512 | $1,085,201 | $1,085,201 | $207.37 | | |
| HOGEN | Hospital GEN | 0.3902502903 | $1,085,201 | $1,085,201 | $423.50 | | |
| CE | County Current Expense | 0.3708482477 | $1,085,201 | $1,085,201 | $402.44 | | |
| CR | County Roads | 0.4584763726 | $1,085,201 | $1,085,201 | $497.54 | | |
| ISLANDEMS | Hospital GEN (EMS) | 0.5000000000 | $1,085,201 | $1,085,201 | $542.60 | | |
| LIB | Library Sno-Isle GEN | 0.3153421757 | $1,085,201 | $1,085,201 | $342.21 | | |
| PORTWHID | Port of S Whidbey GEN | 0.1094540357 | $1,085,201 | $1,085,201 | $118.78 | | |
| SCH206BOND | School 206 BOND | 0.3161759235 | $1,085,201 | $1,085,201 | $343.11 | | |
| SCH206MO | School 206 Enrichment | 0.4547169547 | $1,085,201 | $1,085,201 | $493.46 | | |
| ST | State School | 1.3035497053 | $1,085,201 | $1,085,201 | $1,414.61 | | |
| ST2 | State School Part 2 | 0.8169543533 | $1,085,201 | $1,085,201 | $886.56 | | |
| SWHIDPRBD | P & R S Whidbey BOND | 0.0152817568 | $1,085,201 | $1,085,201 | $16.58 | | |
| SWHIDPRBD2 | P & R S Whidbey BOND2 | 0.0138911264 | $1,085,201 | $1,085,201 | $15.07 | | |
| SWHIDPRMT | P & R S Whidbey GEN | 0.2053334452 | $1,085,201 | $1,085,201 | $222.83 | | |
| | Total Tax Rate: | 6.6934522006 | | | | | |
| | | | | Taxes w/Current Exemptions: | $7,263.73 | | |
| | | | | Taxes w/o Exemptions: | $7,263.73 | | |
Improvement / Building
| Improvement #1: | RESIDENTIAL | State Code: | Y | 3403.3 sqft | Value: | $655,201 |
| Bathrooms: | 2 | Bedrooms: | 3 | | Ceiling: | DRYWALL PAINTED | Exterior Wall/Cover: | WOOD SIDING | | Floor Covering: | HARDWOOD/CARP 20-80 | Floor Structure: | WOOD W/SUBFLOOR | | Foundation: | CONCRETE | Heating: | FHA GAS | | Interior Finish: | DRYWALL PAINT | Plumbing Fixture Cnt: | 16 | | Roof Slope: | 8" IN 12" | Roof Structure/Cover: | CJ ASPHALT |
|
| | Type | Description | Class CD | Sub Class CD | Year Built | Area |
| | BAS | BASE/MAIN FLOOR | 5 | 0 | 1999 | 1951.3 |
| | BIG | BUILT IN GARAGE | 5 | 0 | 1999 | 576.0 |
| | OWP | OPEN WOOD PORCH W/STEPS | 5 | 0 | 1999 | 59.5 |
| | OWP | OPEN WOOD PORCH W/STEPS | 5 | 0 | 1999 | 68.4 |
| | OWC | OPEN WOOD PORCH W/STEPS/ROOF/C | 5 | 0 | 1999 | 210.6 |
| | OWC | OPEN WOOD PORCH W/STEPS/ROOF/C | 5 | 0 | 1999 | 347.3 |
| | UPH | HALF STORY | 5 | 0 | 1999 | 420.0 |
| | DGR | DETACHED GARAGE | 5 | 0 | 1999 | 768.0 |
| | OCP | OPEN CARPORT | 5 | 0 | 1999 | 320.0 |
| | OCP | OPEN CARPORT | 5 | 0 | 1999 | 320.0 |
| | LOF | LOFT | 5 | 0 | 1999 | 1032.0 |
| | OWP | OPEN WOOD PORCH W/STEPS | 5 | 0 | 1999 | 256.0 |
| | OP1 | OPEN PORCH SLAB | 5 | 0 | 1999 | 564.0 |
Sketch
Property Image
Land
| 1 | 18 | AC (02.01-03.00) | 0.0000 | 0.00 | 0.00 | 0.00 | 1.00 | $430,000 | $0 |
Roll Value History
| 2026 | N/A | N/A | N/A | N/A | N/A |
| 2025 | $655,201 | $430,000 | $0 | $1,085,201 | $1,085,201 |
| 2024 | $662,887 | $420,000 | $0 | $1,082,887 | $1,082,887 |
| 2023 | $670,570 | $390,000 | $0 | $1,060,570 | $1,060,570 |
| 2022 | $614,182 | $360,000 | $0 | $974,182 | $974,182 |
| 2021 | $540,114 | $300,000 | $0 | $840,114 | $840,114 |
| 2020 | $508,381 | $270,000 | $0 | $778,381 | $778,381 |
| 2019 | $429,118 | $300,000 | $0 | $729,118 | $729,118 |
| 2018 | $411,115 | $250,000 | $0 | $661,115 | $661,115 |
| 2017 | $412,907 | $250,000 | $0 | $662,907 | $662,907 |
| 2016 | $417,712 | $250,000 | $0 | $667,712 | $667,712 |
| 2015 | $422,514 | $200,000 | $0 | $622,514 | $622,514 |
| 2014 | $407,907 | $200,000 | $0 | $607,907 | $607,907 |
| 2013 | $411,942 | $200,000 | $0 | $611,942 | $611,942 |
| 2012 | $415,977 | $185,000 | $0 | $600,977 | $600,977 |
| 2011 | $420,013 | $200,000 | $0 | $620,013 | $620,013 |
| 2010 | $430,415 | $200,000 | $0 | $630,415 | $630,415 |
| 2009 | $447,096 | $250,000 | $0 | $697,096 | $697,096 |
| 2008 | $421,118 | $250,000 | $0 | $671,118 | $671,118 |
| 2007 | $426,203 | $250,000 | $0 | $676,203 | $676,203 |
Deed and Sales History
| 1 | 10/26/2018 | WD | Warranty Deed | HEGGENES, GARTH | ANDERSON, CLAYTON S | | | $950,000.00 | 36459 | 4454172 |
| 2 | 01/31/2017 | QCD | Quit Claim Deed | HEGGENES, ROY P & JOYCE | HEGGENES, GARTH | | | $0.00 | 28063 | 4416938 |
| 3 | 08/07/1998 | QCD | Quit Claim Deed | HEGGENES, GARTH & | HEGGENES, GORTIN | | | $0.00 | 83131 | 98016461 |
| 4 | 01/01/1900 | OTHER | Other - Misc. Documents | Unknown | HEGGENES, NORMAN A | | | $0.00 | 0 | 0 |
| 5 | 01/01/1900 | OTHER | Other - Misc. Documents | HEGGENES, NORMAN A | HEGGENES, GARTH & | | | $0.00 | 83131 | 98016461 |
Payout Agreement
| No payout information available.. |