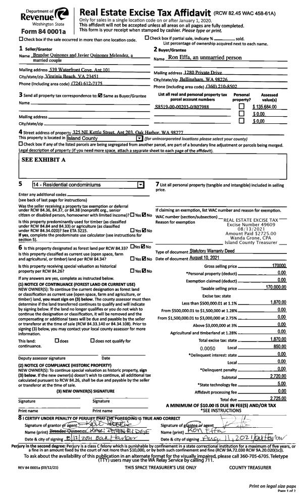
Property
Account |
| Property ID: | 138452 | Abbreviated Legal Description: | 70 - IN E/2 SE NW & IN W/2 SW NE: N400' OF E/2 SE NW ALSO N400' OF W/2 SW NE LY W OF SIMMONS TR AF#69794 DESC: BG NECR W/2 SW NE W313' TPB S532' TO PRIV RD NWLY ALG SD RD TO NLN SD W/2 SW NE E217' TPB TGW EZ AF#90022012 |
| Geographic ID: | R32925-370-2250 | Agent Code: | |
| Type: | Real | | |
| Tax Area: | 722 - APPRAISER-S Whid Schl Dist, Special District, improved, greater than 1 acre | Land Use Code | 11 |
| Open Space: | N | DFL | N |
| Historic Property: | N | Remodel Property: | N |
| Multi-Family Redevelopment: | N | | |
| Township: | 29 | Section: | 25 |
| Range: | R3 |
Location |
| Address: | 6504 ROBIN LN CLINTON, WA 98236 | Mapsco: | |
| Neighborhood: | Cycle 4 | Map ID: | 814 |
| Neighborhood CD: | 4 |
Owner |
| Name: | BECK, JERRY D | Owner ID: | 93855 |
| Mailing Address: | BECK, LOIS A 6504 ROBIN LN CLINTON, WA 98236-8437 | % Ownership: | 100.0000000000% |
| | | Exemptions: | |
Taxes and Assessment Details
Values
| (+) Improvement Homesite Value: | + | $0 | |
| (+) Improvement Non-Homesite Value: | + | $443,126 | |
| (+) Land Homesite Value: | + | $0 | |
| (+) Land Non-Homesite Value: | + | $370,000 | |
| (+) Curr Use (HS): | + | $0 | $0 |
| (+) Curr Use (NHS): | + | $0 | $0 |
| | | -------------------------- | |
| (=) Market Value: | = | $813,126 | |
| (–) Productivity Loss: | – | $0 | |
| | | -------------------------- | |
| (=) Subtotal: | = | $813,126 | |
| (+) Senior Appraised Value: | + | $0 | |
| (+) Non-Senior Appraised Value: | + | $813,126 | |
| | | -------------------------- | |
| (=) Total Appraised Value: | = | $813,126 | |
| (–) Senior Exemption Loss: | – | $0 | |
| (–) Exemption Loss: | – | $0 | |
| | | -------------------------- | |
| (=) Taxable Value: | = | $813,126 | |
Taxing Jurisdiction
| Owner: | BECK, JERRY D | | |
| % Ownership: | 100.0000000000% | | |
| Total Value: | $813,126 | | |
| Tax Area: | 722 - APPRAISER-S Whid Schl Dist, Special District, improved, greater than 1 acre |
| CF | Conservation Futures | 0.0316035091 | $813,126 | $813,126 | $25.70 | | |
| FIRE3 | Fire & Rescue Dist #3 S Whidbey GEN | 1.2004855531 | $813,126 | $813,126 | $976.15 | | |
| HOBOND | Hospital BOND | 0.1910887512 | $813,126 | $813,126 | $155.38 | | |
| HOGEN | Hospital GEN | 0.3902502903 | $813,126 | $813,126 | $317.32 | | |
| CE | County Current Expense | 0.3708482477 | $813,126 | $813,126 | $301.55 | | |
| CR | County Roads | 0.4584763726 | $813,126 | $813,126 | $372.80 | | |
| ISLANDEMS | Hospital GEN (EMS) | 0.5000000000 | $813,126 | $813,126 | $406.56 | | |
| LIB | Library Sno-Isle GEN | 0.3153421757 | $813,126 | $813,126 | $256.41 | | |
| PORTWHID | Port of S Whidbey GEN | 0.1094540357 | $813,126 | $813,126 | $89.00 | | |
| SCH206BOND | School 206 BOND | 0.3161759235 | $813,126 | $813,126 | $257.09 | | |
| SCH206MO | School 206 Enrichment | 0.4547169547 | $813,126 | $813,126 | $369.74 | | |
| ST | State School | 1.3035497053 | $813,126 | $813,126 | $1,059.95 | | |
| ST2 | State School Part 2 | 0.8169543533 | $813,126 | $813,126 | $664.29 | | |
| SWHIDPRBD | P & R S Whidbey BOND | 0.0152817568 | $813,126 | $813,126 | $12.43 | | |
| SWHIDPRBD2 | P & R S Whidbey BOND2 | 0.0138911264 | $813,126 | $813,126 | $11.30 | | |
| SWHIDPRMT | P & R S Whidbey GEN | 0.2053334452 | $813,126 | $813,126 | $166.96 | | |
| | Total Tax Rate: | 6.6934522006 | | | | | |
| | | | | Taxes w/Current Exemptions: | $5,442.63 | | |
| | | | | Taxes w/o Exemptions: | $5,442.63 | | |
Improvement / Building
| Improvement #1: | RESIDENTIAL | State Code: | Y | 2952.2 sqft | Value: | $443,126 |
| Bathrooms: | 3 | Bedrooms: | 4 | | Ceiling: | DRYWALL PAINTED | Exterior Wall/Cover: | WOOD SIDING | | Floor Covering: | CARPET/VINYL 60-40 | Floor Structure: | WOOD W/SUBFLOOR | | Foundation: | CONCRETE BLOCKS | Heating: | FHA GAS | | Interior Finish: | DRYWALL PAINT | Plumbing Fixture Cnt: | 12 | | Roof Slope: | 4" IN 12" | Roof Structure/Cover: | CJ ASPHALT |
|
| | Type | Description | Class CD | Sub Class CD | Year Built | Area |
| | BAS | BASE/MAIN FLOOR | 3 | 0 | 1915 | 2568.2 |
| | OP4 | OPEN PORCH W/CEILING-ROOF | 3 | 0 | 1915 | 63.0 |
| | OWP | OPEN WOOD PORCH W/STEPS | 3 | 0 | 1915 | 180.0 |
| | OWP | OPEN WOOD PORCH W/STEPS | 3 | 0 | 1915 | 208.0 |
| | OWR | OPEN WOOD PORCH W/STEPS/ROOF | 3 | 0 | 1915 | 156.0 |
| | OWR | OPEN WOOD PORCH W/STEPS/ROOF | 3 | 0 | 1915 | 60.0 |
| | OWC | OPEN WOOD PORCH W/STEPS/ROOF/C | 3 | 0 | 1915 | 364.0 |
| | oOBD | Out Buildings | 3 | 0 | 1915 | 0.0 |
| | oOBD | Out Buildings | 3 | 0 | 1915 | 0.0 |
| | LOF | LOFT | 3 | 0 | 1915 | 384.0 |
Sketch
Property Image
Land
| 1 | 32 | AC (03.01-09.99) | 6.0000 | 0.00 | 0.00 | 0.00 | 1.00 | $370,000 | $0 |
Roll Value History
| 2026 | N/A | N/A | N/A | N/A | N/A |
| 2025 | $443,126 | $370,000 | $0 | $813,126 | $813,126 |
| 2024 | $447,885 | $350,000 | $0 | $797,885 | $797,885 |
| 2023 | $452,643 | $330,000 | $0 | $782,643 | $782,643 |
| 2022 | $422,223 | $290,000 | $0 | $712,223 | $712,223 |
| 2021 | $381,971 | $230,000 | $0 | $611,971 | $611,971 |
| 2020 | $357,118 | $190,000 | $0 | $547,118 | $547,118 |
| 2019 | $302,871 | $250,000 | $0 | $552,871 | $552,871 |
| 2018 | $303,585 | $210,000 | $0 | $513,585 | $513,585 |
| 2017 | $305,019 | $200,000 | $0 | $505,019 | $505,019 |
| 2016 | $307,876 | $200,000 | $0 | $507,876 | $507,876 |
| 2015 | $310,734 | $200,000 | $0 | $510,734 | $510,734 |
| 2014 | $290,377 | $204,784 | $0 | $495,161 | $495,161 |
| 2013 | $293,310 | $204,784 | $0 | $498,094 | $498,094 |
| 2012 | $330,706 | $204,784 | $0 | $535,490 | $535,490 |
| 2011 | $333,639 | $204,784 | $0 | $538,423 | $538,423 |
| 2010 | $343,310 | $204,784 | $0 | $548,094 | $548,094 |
| 2009 | $351,835 | $264,784 | $0 | $616,619 | $616,619 |
| 2008 | $321,498 | $296,768 | $0 | $618,266 | $618,266 |
| 2007 | $328,791 | $278,600 | $0 | $607,391 | $607,391 |
Deed and Sales History
| 1 | 02/01/1994 | WD | Warranty Deed | HARALSON, ELVIN L | BECK, JERRY D | | | $155,000.00 | 40453 | 94002789 |
| 2 | 01/01/1900 | OTHER | Other - Misc. Documents | Unknown | HARALSON, ELVIN L | | | $0.00 | 0 | 0 |
Payout Agreement
| No payout information available.. |