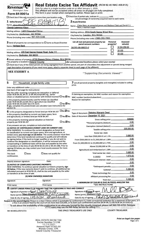
Property
Account |
| Property ID: | 138817 | Abbreviated Legal Description: | 49 - BG SWCR SEC 26 E561' (34 RODS) N387.75' (23-1/2 RODS) W561' S387.75' TPB EX RD 029-0309 COMBD/W 029-0300 8/21/84 |
| Geographic ID: | R32926-029-0300 | Agent Code: | |
| Type: | Real | | |
| Tax Area: | 712 - APPRAISER-S Whid Schl Dist, outside Langley, improved, greater than 1 acre | Land Use Code | 11 |
| Open Space: | N | DFL | N |
| Historic Property: | N | Remodel Property: | N |
| Multi-Family Redevelopment: | N | | |
| Township: | 29 | Section: | 26 |
| Range: | R3 |
Location |
| Address: | 6777 CULTUS BAY RD CLINTON, WA 98236 | Mapsco: | |
| Neighborhood: | Cycle 4 | Map ID: | 816 |
| Neighborhood CD: | 4 |
Owner |
| Name: | CAMERON LANDING HOLDINGS LLC | Owner ID: | 300854 |
| Mailing Address: | 4835 GEDNEY VIEW LN CLINTON, WA 98236 | % Ownership: | 100.0000000000% |
| | | Exemptions: | |
Taxes and Assessment Details
Values
| (+) Improvement Homesite Value: | + | $0 | |
| (+) Improvement Non-Homesite Value: | + | $193,507 | |
| (+) Land Homesite Value: | + | $0 | |
| (+) Land Non-Homesite Value: | + | $360,000 | |
| (+) Curr Use (HS): | + | $0 | $0 |
| (+) Curr Use (NHS): | + | $0 | $0 |
| | | -------------------------- | |
| (=) Market Value: | = | $553,507 | |
| (–) Productivity Loss: | – | $0 | |
| | | -------------------------- | |
| (=) Subtotal: | = | $553,507 | |
| (+) Senior Appraised Value: | + | $0 | |
| (+) Non-Senior Appraised Value: | + | $553,507 | |
| | | -------------------------- | |
| (=) Total Appraised Value: | = | $553,507 | |
| (–) Senior Exemption Loss: | – | $0 | |
| (–) Exemption Loss: | – | $0 | |
| | | -------------------------- | |
| (=) Taxable Value: | = | $553,507 | |
Taxing Jurisdiction
| Owner: | CAMERON LANDING HOLDINGS LLC | | |
| % Ownership: | 100.0000000000% | | |
| Total Value: | $553,507 | | |
| Tax Area: | 712 - APPRAISER-S Whid Schl Dist, outside Langley, improved, greater than 1 acre |
| CF | Conservation Futures | 0.0316035091 | $553,507 | $553,507 | $17.49 | | |
| FIRE3 | Fire & Rescue Dist #3 S Whidbey GEN | 1.2004855531 | $553,507 | $553,507 | $664.48 | | |
| HOBOND | Hospital BOND | 0.1910887512 | $553,507 | $553,507 | $105.77 | | |
| HOGEN | Hospital GEN | 0.3902502903 | $553,507 | $553,507 | $216.01 | | |
| CE | County Current Expense | 0.3708482477 | $553,507 | $553,507 | $205.27 | | |
| CR | County Roads | 0.4584763726 | $553,507 | $553,507 | $253.77 | | |
| ISLANDEMS | Hospital GEN (EMS) | 0.5000000000 | $553,507 | $553,507 | $276.75 | | |
| LIB | Library Sno-Isle GEN | 0.3153421757 | $553,507 | $553,507 | $174.54 | | |
| PORTWHID | Port of S Whidbey GEN | 0.1094540357 | $553,507 | $553,507 | $60.58 | | |
| SCH206BOND | School 206 BOND | 0.3161759235 | $553,507 | $553,507 | $175.01 | | |
| SCH206MO | School 206 Enrichment | 0.4547169547 | $553,507 | $553,507 | $251.69 | | |
| ST | State School | 1.3035497053 | $553,507 | $553,507 | $721.52 | | |
| ST2 | State School Part 2 | 0.8169543533 | $553,507 | $553,507 | $452.19 | | |
| SWHIDPRBD | P & R S Whidbey BOND | 0.0152817568 | $553,507 | $553,507 | $8.46 | | |
| SWHIDPRBD2 | P & R S Whidbey BOND2 | 0.0138911264 | $553,507 | $553,507 | $7.69 | | |
| SWHIDPRMT | P & R S Whidbey GEN | 0.2053334452 | $553,507 | $553,507 | $113.65 | | |
| | Total Tax Rate: | 6.6934522006 | | | | | |
| | | | | Taxes w/Current Exemptions: | $3,704.87 | | |
| | | | | Taxes w/o Exemptions: | $3,704.87 | | |
Improvement / Building
| Improvement #1: | RESIDENTIAL | State Code: | Y | 1190.0 sqft | Value: | $193,507 |
| Bathrooms: | 1 | Bedrooms: | 3 | | Ceiling: | DRYWALL PAINTED | Exterior Wall/Cover: | WOOD SIDING | | Floor Covering: | SOFTWOOD 100% | Floor Structure: | WOOD W/SUBFLOOR | | Foundation: | WOOD BLOCKS | Heating: | BASEBOARD ELECTRIC | | Interior Finish: | DRYWALL PAINT | Plumbing Fixture Cnt: | 8 | | Roof Slope: | 4" IN 12" | Roof Structure/Cover: | CJ ASPHALT |
|
| | Type | Description | Class CD | Sub Class CD | Year Built | Area |
| | BAS | BASE/MAIN FLOOR | 3 | 0 | 1927 | 998.0 |
| | OWP | OPEN WOOD PORCH W/STEPS | 3 | 0 | 1927 | 500.0 |
| | DGR | DETACHED GARAGE | 3 | 0 | 1927 | 1442.4 |
| | LOF | LOFT | 3 | 0 | 1927 | 192.0 |
| | UTY | STORAGE/UTILITY | 3 | 0 | 1927 | 200.0 |
| | CPD | OPEN CARPORT DIRT FLOOR | 3 | 0 | 1927 | 390.0 |
| | UTY | STORAGE/UTILITY | 3 | 0 | 1927 | 320.0 |
Sketch
Property Image
Land
| 1 | 32 | AC (03.01-09.99) | 4.7300 | 0.00 | 0.00 | 0.00 | 1.00 | $360,000 | $0 |
Roll Value History
| 2026 | N/A | N/A | N/A | N/A | N/A |
| 2025 | $193,507 | $360,000 | $0 | $553,507 | $553,507 |
| 2024 | $201,125 | $340,000 | $0 | $541,125 | $541,125 |
| 2023 | $204,576 | $330,000 | $0 | $534,576 | $534,576 |
| 2022 | $188,379 | $280,000 | $0 | $468,379 | $468,379 |
| 2021 | $166,525 | $230,000 | $0 | $396,525 | $396,525 |
| 2020 | $134,503 | $190,000 | $0 | $324,503 | $324,503 |
| 2019 | $94,417 | $220,000 | $0 | $314,417 | $314,417 |
| 2018 | $94,816 | $210,000 | $0 | $304,816 | $304,816 |
| 2017 | $95,612 | $165,000 | $0 | $260,612 | $260,612 |
| 2016 | $97,206 | $165,000 | $0 | $262,206 | $262,206 |
| 2015 | $98,799 | $150,000 | $0 | $248,799 | $248,799 |
| 2014 | $90,053 | $150,000 | $0 | $240,053 | $240,053 |
| 2013 | $91,253 | $160,820 | $0 | $252,073 | $252,073 |
| 2012 | $92,454 | $160,820 | $0 | $253,274 | $253,274 |
| 2011 | $70,414 | $160,820 | $0 | $231,234 | $231,234 |
| 2010 | $79,269 | $160,820 | $0 | $240,089 | $240,089 |
| 2009 | $81,884 | $208,120 | $0 | $290,004 | $290,004 |
| 2008 | $83,159 | $236,500 | $0 | $319,659 | $319,659 |
| 2007 | $84,950 | $198,660 | $0 | $283,610 | $283,610 |
Deed and Sales History
| 1 | 08/17/2021 | QCD | Quit Claim Deed | CAMERON, KELLY | CAMERON LANDING HOLDINGS LLC | | | $0.00 | 49748 | 4527498 |
| 2 | 06/17/2015 | QCD | Quit Claim Deed | MATTHEWS, JANAE | CAMERON, KELLY | | | $0.00 | 20118 | 4380723 |
| 3 | 07/19/2011 | ESTSEPPROP | Establish Separate Property | MATTHEWS, JANAE | MATTHEWS, JANAE | | | $0.00 | 5005 | 4298361 |
| 4 | 07/13/2011 | WD | Warranty Deed | GROSSMAN, KATHRYN A | MATTHEWS, JANAE | | | $250,000.00 | 5004 | 4298360 |
| 5 | 09/01/1997 | WD | Warranty Deed | KREISMAN, SARRI L | GROSSMAN, KATHRYN A | | | $145,000.00 | 73154 | 97014915 |
| 6 | 08/01/1994 | WD | Warranty Deed | GORDON, W R | KREISMAN, SARRI L | | | $138,000.00 | 43254 | 94017513 |
| 7 | 10/01/1987 | WD | Warranty Deed | WHITCOMB, GARY M | GORDON, W R | | | $64,500.00 | 73221 | 87014140 |
| 8 | 10/01/1984 | WD | Warranty Deed | WHITCOMB, GARY M | WHITCOMB, GARY M | | | $27,500.00 | 42871 | 84003852 |
| 9 | 09/01/1984 | QCD | Quit Claim Deed | TUCKER, MARY K | WHITCOMB, GARY M | | | $0.00 | 42872 | 84003854 |
| 10 | 08/01/1984 | QCD | Quit Claim Deed | GRIFFIN, L E | TUCKER, MARY K | | | $0.00 | 42450 | 84002185 |
| 11 | 06/01/1980 | EXECUTORD | Executor Deed | GRIFFIN, L E | GRIFFIN, L E | | | $26,500.00 | 1898 | 369556 |
| 12 | 01/01/1900 | OTHER | Other - Misc. Documents | Unknown | GRIFFIN, L E | | | $0.00 | 0 | 0 |
Payout Agreement
| No payout information available.. |