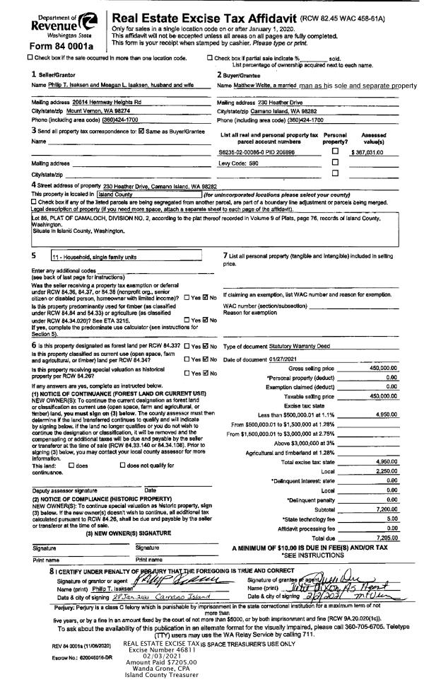
Property
Account |
| Property ID: | 139264 | Abbreviated Legal Description: | LOT 1 REV #1 SP 78-57 GL 6: BG @ PT 360'E OF NW CR S/2 GL 6 S1*W15.10'TPB E360.01' S1*W338.11' W360' N1*E335.90'TPB SUB EZ |
| Geographic ID: | R32926-179-3200 | Agent Code: | |
| Type: | Real | | |
| Tax Area: | 712 - APPRAISER-S Whid Schl Dist, outside Langley, improved, greater than 1 acre | Land Use Code | 11 |
| Open Space: | N | DFL | N |
| Historic Property: | N | Remodel Property: | N |
| Multi-Family Redevelopment: | N | | |
| Township: | 29 | Section: | 26 |
| Range: | R3 |
Location |
| Address: | 4108 DEER LAKE RD CLINTON, WA 98236 | Mapsco: | |
| Neighborhood: | Cycle 4 | Map ID: | 817 |
| Neighborhood CD: | 4 |
Owner |
| Name: | WINTERS, MICHAEL ADAM | Owner ID: | 293733 |
| Mailing Address: | 4108 DEER LAKE RD CLINTON, WA 98236 | % Ownership: | 100.0000000000% |
| | | Exemptions: | |
Taxes and Assessment Details
Values
| (+) Improvement Homesite Value: | + | $0 | |
| (+) Improvement Non-Homesite Value: | + | $450,010 | |
| (+) Land Homesite Value: | + | $0 | |
| (+) Land Non-Homesite Value: | + | $310,000 | |
| (+) Curr Use (HS): | + | $0 | $0 |
| (+) Curr Use (NHS): | + | $0 | $0 |
| | | -------------------------- | |
| (=) Market Value: | = | $760,010 | |
| (–) Productivity Loss: | – | $0 | |
| | | -------------------------- | |
| (=) Subtotal: | = | $760,010 | |
| (+) Senior Appraised Value: | + | $0 | |
| (+) Non-Senior Appraised Value: | + | $760,010 | |
| | | -------------------------- | |
| (=) Total Appraised Value: | = | $760,010 | |
| (–) Senior Exemption Loss: | – | $0 | |
| (–) Exemption Loss: | – | $0 | |
| | | -------------------------- | |
| (=) Taxable Value: | = | $760,010 | |
Taxing Jurisdiction
| Owner: | WINTERS, MICHAEL ADAM | | |
| % Ownership: | 100.0000000000% | | |
| Total Value: | $760,010 | | |
| Tax Area: | 712 - APPRAISER-S Whid Schl Dist, outside Langley, improved, greater than 1 acre |
| CF | Conservation Futures | 0.0316035091 | $760,010 | $760,010 | $24.02 | | |
| FIRE3 | Fire & Rescue Dist #3 S Whidbey GEN | 1.2004855531 | $760,010 | $760,010 | $912.38 | | |
| HOBOND | Hospital BOND | 0.1910887512 | $760,010 | $760,010 | $145.23 | | |
| HOGEN | Hospital GEN | 0.3902502903 | $760,010 | $760,010 | $296.59 | | |
| CE | County Current Expense | 0.3708482477 | $760,010 | $760,010 | $281.85 | | |
| CR | County Roads | 0.4584763726 | $760,010 | $760,010 | $348.45 | | |
| ISLANDEMS | Hospital GEN (EMS) | 0.5000000000 | $760,010 | $760,010 | $380.01 | | |
| LIB | Library Sno-Isle GEN | 0.3153421757 | $760,010 | $760,010 | $239.66 | | |
| PORTWHID | Port of S Whidbey GEN | 0.1094540357 | $760,010 | $760,010 | $83.19 | | |
| SCH206BOND | School 206 BOND | 0.3161759235 | $760,010 | $760,010 | $240.30 | | |
| SCH206MO | School 206 Enrichment | 0.4547169547 | $760,010 | $760,010 | $345.59 | | |
| ST | State School | 1.3035497053 | $760,010 | $760,010 | $990.71 | | |
| ST2 | State School Part 2 | 0.8169543533 | $760,010 | $760,010 | $620.89 | | |
| SWHIDPRBD | P & R S Whidbey BOND | 0.0152817568 | $760,010 | $760,010 | $11.61 | | |
| SWHIDPRBD2 | P & R S Whidbey BOND2 | 0.0138911264 | $760,010 | $760,010 | $10.56 | | |
| SWHIDPRMT | P & R S Whidbey GEN | 0.2053334452 | $760,010 | $760,010 | $156.06 | | |
| | Total Tax Rate: | 6.6934522006 | | | | | |
| | | | | Taxes w/Current Exemptions: | $5,087.10 | | |
| | | | | Taxes w/o Exemptions: | $5,087.10 | | |
Improvement / Building
| Improvement #1: | RESIDENTIAL | State Code: | Y | 2622.0 sqft | Value: | $450,010 |
| Bathrooms: | 2 | Bedrooms: | 3 | | Ceiling: | DRYWALL PAINTED | Cooling: | HEAT PUMP/CONV/V | | Exterior Wall/Cover: | WOOD SIDING | Floor Covering: | CARPET/VINYL 60-40 | | Floor Structure: | WOOD W/SUBFLOOR | Foundation: | CONCRETE | | Interior Finish: | DRYWALL PAINT | Plumbing Fixture Cnt: | 12 | | Roof Slope: | 4" IN 12" | Roof Structure/Cover: | CJ ALUMINIUM HEAVY |
|
| | Type | Description | Class CD | Sub Class CD | Year Built | Area |
| | BAS | BASE/MAIN FLOOR | 4 | 0 | 1979 | 1670.0 |
| | UPS | UPPER STORY | 4 | 0 | 1979 | 952.0 |
| | OWP | OPEN WOOD PORCH W/STEPS | 4 | 0 | 1979 | 80.0 |
| | OWP | OPEN WOOD PORCH W/STEPS | 4 | 0 | 1979 | 317.0 |
| | OWC | OPEN WOOD PORCH W/STEPS/ROOF/C | 4 | 0 | 1979 | 496.0 |
| | ATU | ATTIC UNFINISHED | 4 | 0 | 1979 | 200.0 |
| | DGR | DETACHED GARAGE | 4 | 0 | 1979 | 864.0 |
| | UTY | STORAGE/UTILITY | 4 | 0 | 1979 | 400.0 |
Sketch
Property Image
Land
| 1 | 18 | AC (02.01-03.00) | 2.7800 | 121096.80 | 0.00 | 0.00 | 1.00 | $310,000 | $0 |
Roll Value History
| 2026 | N/A | N/A | N/A | N/A | N/A |
| 2025 | $450,010 | $310,000 | $0 | $760,010 | $760,010 |
| 2024 | $456,325 | $300,000 | $0 | $756,325 | $756,325 |
| 2023 | $462,641 | $290,000 | $0 | $752,641 | $752,641 |
| 2022 | $418,936 | $260,000 | $0 | $678,936 | $678,936 |
| 2021 | $369,266 | $175,000 | $0 | $544,266 | $544,266 |
| 2020 | $272,054 | $165,000 | $0 | $437,054 | $437,054 |
| 2019 | $218,348 | $200,000 | $0 | $418,348 | $418,348 |
| 2018 | $219,047 | $170,000 | $0 | $389,047 | $389,047 |
| 2017 | $220,447 | $150,000 | $0 | $370,447 | $370,447 |
| 2016 | $223,244 | $115,000 | $0 | $338,244 | $338,244 |
| 2015 | $226,043 | $100,000 | $0 | $326,043 | $326,043 |
| 2014 | $229,143 | $100,000 | $0 | $329,143 | $329,143 |
| 2013 | $231,942 | $85,000 | $0 | $316,942 | $316,942 |
| 2012 | $234,740 | $125,000 | $0 | $359,740 | $359,740 |
| 2011 | $237,537 | $125,000 | $0 | $362,537 | $362,537 |
| 2010 | $247,347 | $125,000 | $0 | $372,347 | $372,347 |
| 2009 | $257,232 | $155,000 | $0 | $412,232 | $412,232 |
| 2008 | $212,809 | $165,000 | $0 | $377,809 | $377,809 |
| 2007 | $216,222 | $165,000 | $0 | $381,222 | $381,222 |
Deed and Sales History
| 1 | 03/04/2020 | QCD | Quit Claim Deed | WINTERS, BRIDGETT KAY | WINTERS, MICHAEL ADAM | | | $0.00 | 42373 | 4482984 |
| 2 | 03/04/2020 | WD | Warranty Deed | SHEA, RONALD L | WINTERS, MICHAEL ADAM | | | $555,000.00 | 42372 | 4482983 |
| 3 | 08/19/2013 | ESTSEPPROP | Establish Separate Property | SHEA, RONALD L | SHEA, RONALD L | | | $0.00 | 12823 | 4348290 |
| 4 | 03/01/1984 | OTHER | Other - Misc. Documents | SHEA, RONALD L | SHEA, RONALD L | | | $0.00 | 60500 | 385610 |
| 5 | 06/01/1983 | WD | Warranty Deed | CURRIER, JAMES | SHEA, RONALD L | | | $85,000.00 | 31658 | 411154 |
| 6 | 05/01/1983 | QCD | Quit Claim Deed | GAVEL, FRANK D | CURRIER, JAMES | | | $0.00 | 31657 | 411153 |
| 7 | 02/01/1982 | CD | DNU - Correction Deed | GAVEL, FRANK D | GAVEL, FRANK D | | | $1.00 | 20398 | 393310 |
| 8 | 07/01/1981 | CD | DNU - Correction Deed | GAVEL, FRANK D | GAVEL, FRANK D | | | $1.00 | 60592 | 0 |
| 9 | 06/01/1980 | EXECUTORD | Executor Deed | CURRIER, JAMES W | GAVEL, FRANK D | | | $102,000.00 | 2223 | 371650 |
| 10 | 07/01/1978 | OTHER | Other - Misc. Documents | Unknown | CURRIER, JAMES W | | | $10,000.00 | 83179 | 335719 |
Payout Agreement
| No payout information available.. |