Property
Account |
| Property ID: | 139451 | Abbreviated Legal Description: | 1.4000 Acres ins Section 26s Township 29s Range R3s LOT B SP 173-19 AF#4475921 BLA 260/22 4554591;s |
| Geographic ID: | R32926-268-1750 | Agent Code: | |
| Type: | Real | | |
| Tax Area: | 712 - APPRAISER-S Whid Schl Dist, outside Langley, improved, greater than 1 acre | Land Use Code | 11 |
| Open Space: | N | DFL | N |
| Historic Property: | N | Remodel Property: | N |
| Multi-Family Redevelopment: | N | | |
| Township: | 29 | Section: | 26 |
| Range: | R3 |
Location |
| Address: | 6599 WINTERGREEN DR CLINTON, WA 98236 | Mapsco: | |
| Neighborhood: | Cycle 4 | Map ID: | 818 |
| Neighborhood CD: | 4 |
Owner |
| Name: | HOWARD, CHRISTOPHER | Owner ID: | 306980 |
| Mailing Address: | LEAKHENA SOM 6599 WINTERGREEN DR CLINTON, WA 98236 | % Ownership: | 100.0000000000% |
| | | Exemptions: | |
Taxes and Assessment Details
Values
| (+) Improvement Homesite Value: | + | $0 | |
| (+) Improvement Non-Homesite Value: | + | $323,391 | |
| (+) Land Homesite Value: | + | $0 | |
| (+) Land Non-Homesite Value: | + | $360,000 | |
| (+) Curr Use (HS): | + | $0 | $0 |
| (+) Curr Use (NHS): | + | $0 | $0 |
| | | -------------------------- | |
| (=) Market Value: | = | $683,391 | |
| (–) Productivity Loss: | – | $0 | |
| | | -------------------------- | |
| (=) Subtotal: | = | $683,391 | |
| (+) Senior Appraised Value: | + | $0 | |
| (+) Non-Senior Appraised Value: | + | $683,391 | |
| | | -------------------------- | |
| (=) Total Appraised Value: | = | $683,391 | |
| (–) Senior Exemption Loss: | – | $0 | |
| (–) Exemption Loss: | – | $0 | |
| | | -------------------------- | |
| (=) Taxable Value: | = | $683,391 | |
Taxing Jurisdiction
| Owner: | HOWARD, CHRISTOPHER | | |
| % Ownership: | 100.0000000000% | | |
| Total Value: | $683,391 | | |
| Tax Area: | 712 - APPRAISER-S Whid Schl Dist, outside Langley, improved, greater than 1 acre |
| CF | Conservation Futures | 0.0316035091 | $683,391 | $683,391 | $21.60 | | |
| FIRE3 | Fire & Rescue Dist #3 S Whidbey GEN | 1.2004855531 | $683,391 | $683,391 | $820.40 | | |
| HOBOND | Hospital BOND | 0.1910887512 | $683,391 | $683,391 | $130.59 | | |
| HOGEN | Hospital GEN | 0.3902502903 | $683,391 | $683,391 | $266.69 | | |
| CE | County Current Expense | 0.3708482477 | $683,391 | $683,391 | $253.43 | | |
| CR | County Roads | 0.4584763726 | $683,391 | $683,391 | $313.32 | | |
| ISLANDEMS | Hospital GEN (EMS) | 0.5000000000 | $683,391 | $683,391 | $341.70 | | |
| LIB | Library Sno-Isle GEN | 0.3153421757 | $683,391 | $683,391 | $215.50 | | |
| PORTWHID | Port of S Whidbey GEN | 0.1094540357 | $683,391 | $683,391 | $74.80 | | |
| SCH206BOND | School 206 BOND | 0.3161759235 | $683,391 | $683,391 | $216.07 | | |
| SCH206MO | School 206 Enrichment | 0.4547169547 | $683,391 | $683,391 | $310.75 | | |
| ST | State School | 1.3035497053 | $683,391 | $683,391 | $890.83 | | |
| ST2 | State School Part 2 | 0.8169543533 | $683,391 | $683,391 | $558.30 | | |
| SWHIDPRBD | P & R S Whidbey BOND | 0.0152817568 | $683,391 | $683,391 | $10.44 | | |
| SWHIDPRBD2 | P & R S Whidbey BOND2 | 0.0138911264 | $683,391 | $683,391 | $9.49 | | |
| SWHIDPRMT | P & R S Whidbey GEN | 0.2053334452 | $683,391 | $683,391 | $140.32 | | |
| | Total Tax Rate: | 6.6934522006 | | | | | |
| | | | | Taxes w/Current Exemptions: | $4,574.23 | | |
| | | | | Taxes w/o Exemptions: | $4,574.23 | | |
Improvement / Building
| Improvement #1: | RESIDENTIAL | State Code: | Y | 1728.0 sqft | Value: | $323,391 |
| Bathrooms: | 2 | Bedrooms: | 2 | | Ceiling: | DRYWALL PAINTED | Exterior Wall/Cover: | PLY/HARDBOARD T-111 | | Floor Covering: | CARPET/VINYL 20-80 | Floor Structure: | SLAB ON GRADE | | Foundation: | CONCRETE | Heating: | WALL HEAT ELECTRIC | | Interior Finish: | DRYWALL PAINT | Plumbing Fixture Cnt: | 9 | | Roof Slope: | 5" IN 12" | Roof Structure/Cover: | CJ ASPHALT |
|
| | Type | Description | Class CD | Sub Class CD | Year Built | Area |
| | BAS | BASE/MAIN FLOOR | 3 | 0 | 2010 | 736.0 |
| | DWN | DOWNSTAIRS LIVING AREA | 3 | 0 | 2010 | 736.0 |
| | OWP | OPEN WOOD PORCH W/STEPS | 3 | 0 | 2010 | 160.0 |
| | AGR | ATTACHED GARAGE | 3 | 0 | 2010 | 1656.0 |
| | UPH | HALF STORY | 3 | 0 | 2010 | 256.0 |
Sketch
| No sketches available for this property. |
Property Image
Land
| 1 | 17 | AC (01.01-02.00) | 1.4000 | 60984.00 | 0.00 | 0.00 | 1.00 | $360,000 | $0 |
Roll Value History
| 2026 | N/A | N/A | N/A | N/A | N/A |
| 2025 | $323,391 | $360,000 | $0 | $683,391 | $683,391 |
| 2024 | $325,885 | $340,000 | $0 | $665,885 | $665,885 |
| 2023 | $328,556 | $320,000 | $0 | $648,556 | $648,556 |
| 2022 | $283,443 | $280,000 | $0 | $563,443 | $563,443 |
| 2021 | $271,335 | $260,000 | $0 | $531,335 | $531,335 |
| 2020 | $252,993 | $220,000 | $0 | $472,993 | $472,993 |
| 2019 | $172,717 | $140,000 | $0 | $312,717 | $312,717 |
| 2018 | $532,249 | $250,000 | $0 | $782,249 | $782,249 |
| 2017 | $557,245 | $230,000 | $0 | $787,245 | $787,245 |
| 2016 | $230,416 | $200,000 | $0 | $430,416 | $430,416 |
| 2015 | $211,948 | $200,000 | $0 | $411,948 | $411,948 |
| 2014 | $203,195 | $185,000 | $0 | $388,195 | $388,195 |
| 2013 | $205,334 | $185,000 | $0 | $390,334 | $390,334 |
| 2012 | $207,472 | $185,000 | $0 | $392,472 | $392,472 |
| 2011 | $209,612 | $200,000 | $0 | $409,612 | $409,612 |
| 2010 | $149,180 | $200,000 | $0 | $349,180 | $349,180 |
| 2009 | $0 | $250,000 | $0 | $250,000 | $250,000 |
| 2008 | $0 | $250,000 | $0 | $250,000 | $250,000 |
| 2007 | $0 | $175,000 | $0 | $175,000 | $175,000 |
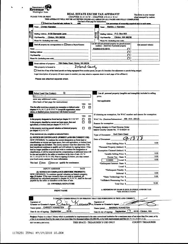
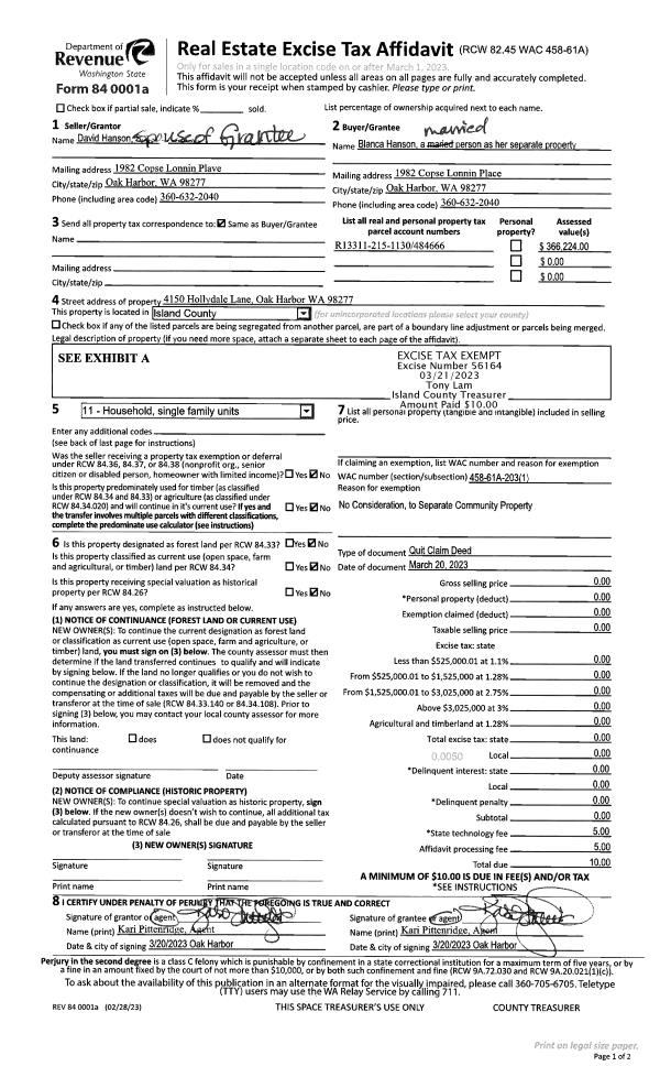
Deed and Sales History
| 1 | 12/01/2022 | WD | Warranty Deed | WHITE, TIANE M | HOWARD, CHRISTOPHER | | | $805,000.00 | 55420 | 4554951 |
| 2 | 12/07/2022 | QCD | Quit Claim Deed | WHITE, RANDALL B | WHITE, TIANE M | | | $0.00 | 55419 | 4554950 |
| 3 | 09/26/2018 | QCD | Quit Claim Deed | WHITE, RANDY V | WHITE, TIANE M | | | $0.00 | 36240 | 4453189 |
| 4 | 09/24/2007 | WD | Warranty Deed | STAMPER TTEE, JOANNE M | WHITE, RANDY V | | | $342,500.00 | 73301 | 4213230 |
| 5 | 02/16/2007 | QCD | Quit Claim Deed | STAMPER, JOANNE M | STAMPER TTEE, JOANNE M | | | $0.00 | 70678 | 4195291 |
| 6 | 11/09/1998 | ESTSEPPROP | Establish Separate Property | STAMPER, RAYMOND L | STAMPER, JOANNE M | | | $0.00 | 68079 | 0 |
| 7 | 09/01/1992 | QCD | Quit Claim Deed | STAMPER, RAYMOND L | STAMPER, RAYMOND L | | | $0.00 | 24134 | 92021316 |
| 8 | 01/01/1991 | WD | Warranty Deed | LEVINE, ROBERT L | STAMPER, RAYMOND L | | | $220,000.00 | 10137 | 91000699 |
| 9 | 06/01/1990 | WD | Warranty Deed | KUSEL, ILSE | LEVINE, ROBERT L | | | $160,000.00 | 3978 | 90012943 |
| 10 | 01/01/1981 | EXECUTORD | Executor Deed | PURDY, DON D | KUSEL, ILSE | | | $65,000.00 | 10207 | 378711 |
| 11 | 06/01/1961 | EXECUTORD | Executor Deed | CRAWFORD, RANDOLPH | PURDY, DON D | | | $0.00 | 10237 | 0 |
| 12 | 01/01/1900 | OTHER | Other - Misc. Documents | Unknown | CRAWFORD, RANDOLPH | | | $0.00 | 0 | 0 |
Payout Agreement
| No payout information available.. |