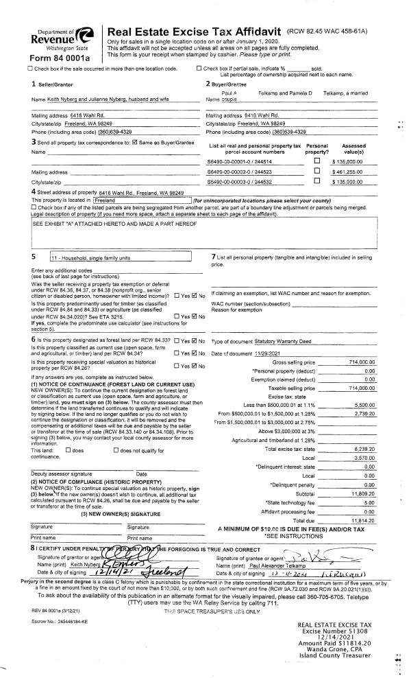
Property
Account |
| Property ID: | 139969 | Abbreviated Legal Description: | E/2 SE SW SE |
| Geographic ID: | R32927-035-3850 | Agent Code: | |
| Type: | Real | | |
| Tax Area: | 712 - APPRAISER-S Whid Schl Dist, outside Langley, improved, greater than 1 acre | Land Use Code | 11 |
| Open Space: | N | DFL | N |
| Historic Property: | N | Remodel Property: | N |
| Multi-Family Redevelopment: | N | | |
| Township: | 29 | Section: | 27 |
| Range: | R3 |
Location |
| Address: | 3890 BEAVER CREEK LN CLINTON, WA 98236 | Mapsco: | |
| Neighborhood: | Cycle 4 | Map ID: | 821 |
| Neighborhood CD: | 4 |
Owner |
| Name: | GALL, STEPHEN J | Owner ID: | 93993 |
| Mailing Address: | BARBARA A MORGAN PO BOX 51028 SEATTLE, WA 98115-1028 | % Ownership: | 100.0000000000% |
| | | Exemptions: | |
Taxes and Assessment Details
Values
| (+) Improvement Homesite Value: | + | $0 | |
| (+) Improvement Non-Homesite Value: | + | $395,679 | |
| (+) Land Homesite Value: | + | $0 | |
| (+) Land Non-Homesite Value: | + | $370,000 | |
| (+) Curr Use (HS): | + | $0 | $0 |
| (+) Curr Use (NHS): | + | $0 | $0 |
| | | -------------------------- | |
| (=) Market Value: | = | $765,679 | |
| (–) Productivity Loss: | – | $0 | |
| | | -------------------------- | |
| (=) Subtotal: | = | $765,679 | |
| (+) Senior Appraised Value: | + | $0 | |
| (+) Non-Senior Appraised Value: | + | $765,679 | |
| | | -------------------------- | |
| (=) Total Appraised Value: | = | $765,679 | |
| (–) Senior Exemption Loss: | – | $0 | |
| (–) Exemption Loss: | – | $0 | |
| | | -------------------------- | |
| (=) Taxable Value: | = | $765,679 | |
Taxing Jurisdiction
| Owner: | GALL, STEPHEN J | | |
| % Ownership: | 100.0000000000% | | |
| Total Value: | $765,679 | | |
| Tax Area: | 712 - APPRAISER-S Whid Schl Dist, outside Langley, improved, greater than 1 acre |
| CF | Conservation Futures | 0.0316035091 | $765,679 | $765,679 | $24.20 | | |
| FIRE3 | Fire & Rescue Dist #3 S Whidbey GEN | 1.2004855531 | $765,679 | $765,679 | $919.19 | | |
| HOBOND | Hospital BOND | 0.1910887512 | $765,679 | $765,679 | $146.31 | | |
| HOGEN | Hospital GEN | 0.3902502903 | $765,679 | $765,679 | $298.81 | | |
| CE | County Current Expense | 0.3708482477 | $765,679 | $765,679 | $283.95 | | |
| CR | County Roads | 0.4584763726 | $765,679 | $765,679 | $351.05 | | |
| ISLANDEMS | Hospital GEN (EMS) | 0.5000000000 | $765,679 | $765,679 | $382.84 | | |
| LIB | Library Sno-Isle GEN | 0.3153421757 | $765,679 | $765,679 | $241.45 | | |
| PORTWHID | Port of S Whidbey GEN | 0.1094540357 | $765,679 | $765,679 | $83.81 | | |
| SCH206BOND | School 206 BOND | 0.3161759235 | $765,679 | $765,679 | $242.09 | | |
| SCH206MO | School 206 Enrichment | 0.4547169547 | $765,679 | $765,679 | $348.17 | | |
| ST | State School | 1.3035497053 | $765,679 | $765,679 | $998.10 | | |
| ST2 | State School Part 2 | 0.8169543533 | $765,679 | $765,679 | $625.52 | | |
| SWHIDPRBD | P & R S Whidbey BOND | 0.0152817568 | $765,679 | $765,679 | $11.70 | | |
| SWHIDPRBD2 | P & R S Whidbey BOND2 | 0.0138911264 | $765,679 | $765,679 | $10.64 | | |
| SWHIDPRMT | P & R S Whidbey GEN | 0.2053334452 | $765,679 | $765,679 | $157.22 | | |
| | Total Tax Rate: | 6.6934522006 | | | | | |
| | | | | Taxes w/Current Exemptions: | $5,125.05 | | |
| | | | | Taxes w/o Exemptions: | $5,125.05 | | |
Improvement / Building
| Improvement #1: | RESIDENTIAL | State Code: | Y | 1824.0 sqft | Value: | $395,679 |
| Bathrooms: | 1.75 | Bedrooms: | 2 | | Ceiling: | TONGUE & GROOVE | Exterior Wall/Cover: | WOOD SIDING | | Floor Covering: | VINYL TILE/HARWD 20-80 | Floor Structure: | WOOD W/SUBFLOOR | | Foundation: | CONCRETE | Heating: | FHA GAS | | Interior Finish: | DRYWALL PAINT | Plumbing Fixture Cnt: | 10 | | Roof Slope: | 5" IN 12" | Roof Structure/Cover: | CJ ALUMINIUM HEAVY |
|
| | Type | Description | Class CD | Sub Class CD | Year Built | Area |
| | BAS | BASE/MAIN FLOOR | 4 | 0 | 1979 | 1392.0 |
| | OP3 | OPEN PORCH W/ROOF | 4 | 0 | 1979 | 150.0 |
| | BIG | BUILT IN GARAGE | 4 | 0 | 1979 | 432.0 |
| | UPS | UPPER STORY | 4 | 0 | 1979 | 432.0 |
| | OWC | OPEN WOOD PORCH W/STEPS/ROOF/C | 4 | 0 | 1979 | 192.0 |
| | OP3 | OPEN PORCH W/ROOF | 4 | 0 | 1979 | 48.0 |
Sketch
Property Image
Land
| 1 | 32 | AC (03.01-09.99) | 5.0000 | 0.00 | 0.00 | 0.00 | 1.00 | $370,000 | $0 |
Roll Value History
| 2026 | N/A | N/A | N/A | N/A | N/A |
| 2025 | $395,679 | $370,000 | $0 | $765,679 | $765,679 |
| 2024 | $400,549 | $350,000 | $0 | $750,549 | $750,549 |
| 2023 | $405,419 | $330,000 | $0 | $735,419 | $735,419 |
| 2022 | $371,530 | $280,000 | $0 | $651,530 | $651,530 |
| 2021 | $296,564 | $230,000 | $0 | $526,564 | $526,564 |
| 2020 | $300,336 | $190,000 | $0 | $490,336 | $490,336 |
| 2019 | $222,890 | $250,000 | $0 | $472,890 | $472,890 |
| 2018 | $223,574 | $210,000 | $0 | $433,574 | $433,574 |
| 2017 | $224,948 | $190,000 | $0 | $414,948 | $414,948 |
| 2016 | $136,435 | $165,000 | $0 | $301,435 | $301,435 |
| 2015 | $138,324 | $135,000 | $0 | $273,324 | $109,330 |
| 2014 | $138,489 | $160,000 | $0 | $298,489 | $119,396 |
| 2013 | $140,386 | $160,000 | $0 | $300,386 | $300,386 |
| 2012 | $142,284 | $160,000 | $0 | $302,284 | $302,284 |
| 2011 | $144,181 | $160,000 | $0 | $304,181 | $304,181 |
| 2010 | $148,227 | $160,000 | $0 | $308,227 | $308,227 |
| 2009 | $154,534 | $220,000 | $0 | $374,534 | $374,534 |
| 2008 | $139,995 | $215,000 | $0 | $354,995 | $354,995 |
| 2007 | $141,867 | $215,000 | $0 | $356,867 | $356,867 |
Deed and Sales History
| 1 | 08/16/2021 | WD | Warranty Deed | WELSH, QUINTIN A | GALL, STEPHEN J | | | $851,000.00 | 49831 | 4527696 |
| 2 | 08/05/2016 | WD | Warranty Deed | PILCHER, GERALDINE E | WELSH, QUINTIN A | | | $440,000.00 | 25652 | 4405011 |
| 3 | 04/18/2005 | WD | Warranty Deed | SMITH, CLAYTON C | PILCHER, GERALDINE E | | | $329,000.00 | 51771 | 4132486 |
| 4 | 10/21/1999 | WD | Warranty Deed | FREMONT INVESTMENT & LOAN, | SMITH, CLAYTON C | | | $128,000.00 | 94446 | 99024211 |
| 5 | 04/30/1999 | TRUSTEED | Trustee's Deed | MCS FINANCE & BROKERS, | FREMONT INVESTMENT & LOAN, | | | $0.00 | 92495 | 99015041 |
| 6 | 10/30/1998 | QCD | Quit Claim Deed | TOMASO, VINCENT A | MCS FINANCE & BROKERS, | | | $0.00 | 84402 | 98024403 |
| 7 | 04/01/1997 | DECREE | Divorce Decree/Legal Separation | TOMASO, NANCY J | TOMASO, VINCENT A | | | $0.00 | 71235 | 97005572 |
| 8 | 06/01/1980 | CD | DNU - Correction Deed | TOMASO, VINCENT A | TOMASO, NANCY J | | | $11,304.00 | 1897 | 369553 |
| 9 | 05/01/1980 | EXECUTORD | Executor Deed | WALLIN, CRAIG | TOMASO, VINCENT A | | | $72,000.00 | 1819 | 369285 |
| 10 | 09/01/1978 | OTHER | Other - Misc. Documents | Unknown | WALLIN, CRAIG | | | $0.00 | 84754 | 340354 |
Payout Agreement
| No payout information available.. |